Zonstraat 47, De meern | Beumer

Zonstraat 47

3454 AE, De meern

Een fijne, uitstekend onderhouden maisonnettewoning; heerlijk licht, ruim en netjes afgewerkt. De woning bied je, naast een royale woonkamer, ruime keuken en twee slaapkamers, ook werkruimte en zelfs twee balkons. Je bevindt je op korte afstand van vele voorzieningen;

  • 108 m2
  • Label B
  • 4 kamer(s)

€ 359.000,- k.k. Bereken maandlasten

Bereken maandlasten
Heb je een hypotheek nodig?

Omschrijving

Een fijne, uitstekend onderhouden maisonnettewoning; heerlijk licht, ruim en netjes afgewerkt. De woning bied je, naast een royale woonkamer, ruime keuken en twee slaapkamers, ook werkruimte en zelfs twee balkons.

Je bevindt je op korte afstand van vele voorzieningen; winkels, restaurants, terrasjes, diverse scholen, winkelcentrum, openbaar vervoer en goed gangbare uitvalswegen richting de A12. Ook het gezellige centrum van Utrecht is in korte tijd bereikbaar, alwaar je getrakteerd wordt op allerhande winkels en horecagelegenheden.

Indeling:

Begane grond:
Middels je eigen voordeur betreed je de woning in de entree; hier tref je de meterkast en de trapopgang naar de woonverdieping.

Een fijne, uitstekend onderhouden maisonnettewoning; heerlijk licht, ruim en netjes afgewerkt. De woning bied je, naast een royale woonkamer, ruime keuken en twee slaapkamers, ook werkruimte en zelfs twee balkons.

Je bevindt je op korte afstand van vele voorzieningen; winkels, restaurants, terrasjes, diverse scholen, winkelcentrum, openbaar vervoer en goed gangbare uitvalswegen richting de A12. Ook het gezellige centrum van Utrecht is in korte tijd bereikbaar, alwaar je getrakteerd wordt op allerhande winkels en horecagelegenheden.

Indeling:

Begane grond:
Middels je eigen voordeur betreed je de woning in de entree; hier tref je de meterkast en de trapopgang naar de woonverdieping.

1e verdieping:
De hal is ruim, licht en voorzien van een toiletruimte. Je krijgt toegang tot de woonkamer en de gesloten keuken. De royale woonkamer is heerlijk licht; er valt veel daglicht binnen door de raampartijen aan weerszijden. De kamer is voorzien van een sfeervolle afwerking; een paneeldeur met glas, een nette radiatorombouw, de wanden zijn glad gestuukt en op de vloer ligt laminaat. Vanuit hier bereik je tevens één van de twee balkons, die je tot je beschikking hebt.

De ruime keuken is ingericht met een grijs keukenmeubel in een parallelopstelling, waardoor je extra werkruimte hebt. Het meubel is voorzien van een gaskookplaat, oven, afzuigkap, koelkast, vriezer, vaatwasser en wasmachine. Vanuit de keuken krijg je toegang tot het 2e balkon en de badkamer.

De badkamer is volledig betegeld en uitgerust met een bad/douchecombinatie, een wastafelmeubel, een spiegelkast en een designradiator.

2e verdieping:
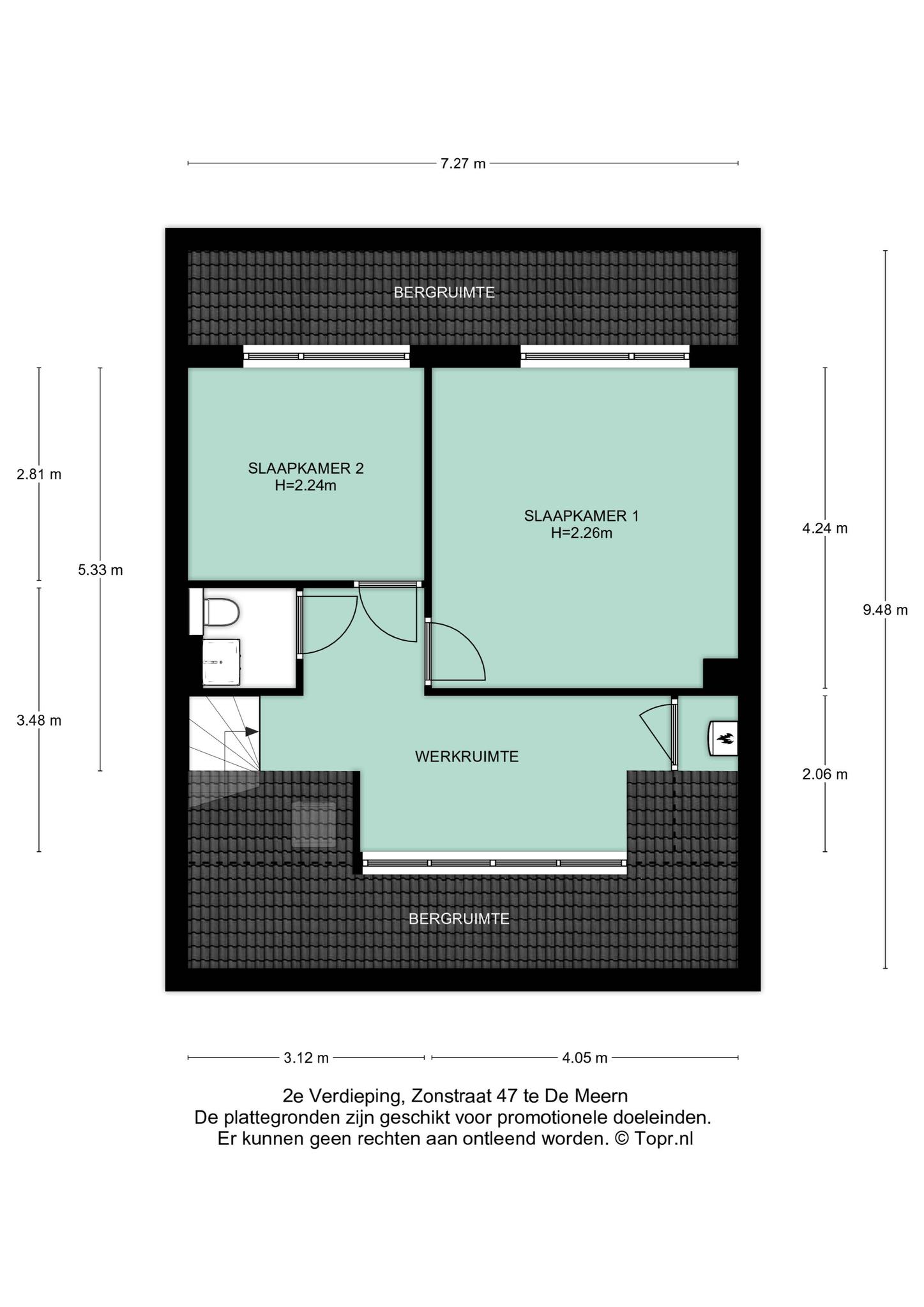
Een vaste trap brengt je op de 2e verdieping; door de grote dakkapel heb je hier veel lichtinval. De open ruimte wordt momenteel gebruikt als slaapkamer, maar er zijn meerdere doeleinden mogelijk. De cv-ketel opstelling is netjes weggewerkt in een bergkast en je hebt een tweede toiletruimte met fontein tot je beschikking. De slaapkamers zijn ruim, lekker licht en tevens voorzien van een nette afwerking en extra opbergruimte achter de knieschotten.

Buiten:
Zoals gezegd heb je twee balkons tot je beschikking; aan de voorzijde en de achterzijde. Het zonnige balkon aan de voorzijde is half overdekt en biedt ruimte voor een comfortabel zitje. Het balkon aan de achterzijde is geheel overdekt; ideaal op regenachtige warme dagen.
Er is voldoende openbare parkeergelegenheid rondom de woning aanwezig.

Bijzonderheden:
• Woonoppervlakte: 108 m²;
• Externe bergruimte: 7 m²;
• Inhoud: 312 m³;
• Bouwjaar: 1977;
• Maisonnettewoning;
• Energielabel B.
• De servicekosten van de VvE bedragen €59,40 per maand;
• Nette afwerking, uitstekend onderhouden;
• Royale, lichte woonkamer;
• Ruime, complete keuken;
• 2 slaapkamers;
• 1 open slaapkamer/werkruimte;
• 2 balkons;
• Kunststof kozijnen (2022), HR++ beglazing en spouwmuurisolatie;
• Openbare parkeergelegenheid.

Interesse in deze woning? Kom gerust eens langs met je aankoopmakelaar!

Lees verder

Kenmerken

  • Vraagprijs € 359.000,- k.k.
  • Aanvaarding In overleg
  • Bouwjaar 1977
  • Woonoppervlakte ca. 108 m2
  • Oppervlakte gebouwgebonden ca. 8 m2
  • Externe bergruimte ca. 7 m2
  • Slaapkamers 2
  • Inhoud ca. 312 m3
  • Energielabel B
  • Isolatie Muurisolatie, dubbel glas, hr glas
  • Verwarming Cv ketel
  • C.v.-ketel bouwjaar 2009
  • Voorzieningen Tv kabel
  • Parkeerfaciliteiten Openbaar parkeren
  • Garage Geen garage
Meer kenmerken

In de buurt

Zonstraat 47 • 3454 AE • De meern

      De buurt

      Burgerlijke staat in wijk
      Gehuwd
      Ongehuwd
      Gescheiden
      Verweduwd
      • Gehuwd (43.93%)
      • Ongehuwd (43.20%)
      • Gescheiden (7.04%)
      • Verweduwd (5.83%)
      Leeftijd in wijk
      0 - 15 jaar
      15 - 25 jaar
      25-45 jaar
      45 - 65 jaar
      65+ jaar
      • 0 - 15 jaar (16.83%)
      • 15 - 25 jaar (11.41%)
      • 25 - 45 jaar (21.28%)
      • 45 - 65 jaar (29.45%)
      • 65+ jaar (21.04%)
      Geslacht
      • Mannen (49.15%)
      • Vrouwen (50.85%)
      Gezinnen met kinderen
      0 - 15 jaar
      15 - 25 jaar
      25-45 jaar
      • Met kinderen (38.20%)
      • Zonder kinderen (31.46%)
      • Éénpersoons huishoudens (30.34%)
      Woningen koop / huur
      • Koop (70.00%)
      • Huur (30.00%)
      Aantal inwoners:

      6165

      Schaduwwijzer

      Media

      Plattegronden

      Ander aanbod