Kruidentuinlaan 12, Vleuten | Beumer

Kruidentuinlaan 12

3452 SW, Vleuten

*See English text below Ben je op zoek naar een fijne gezinswoning op een plek waar kinderen veilig kunnen opgroeien? Dan is deze moderne tussenwoning in het populaire Vleuterweide absoluut een bezichtiging waard. Met 4 slaapkamers, een zonnige tuin op het zuidoosten

  • 126 m2
  • 130 m2
  • Label A
  • 5 kamer(s)

€ 650.000,- k.k. Bereken maandlasten

Bereken maandlasten
Heb je een hypotheek nodig?

Omschrijving

*See English text below

Ben je op zoek naar een fijne gezinswoning op een plek waar kinderen veilig kunnen opgroeien? Dan is deze moderne tussenwoning in het populaire Vleuterweide absoluut een bezichtiging waard. Met 4 slaapkamers, een zonnige tuin op het zuidoosten én een basisschool letterlijk achter de woning, woon je hier op een ideale plek voor het hele gezin. Als een van de weinige woningen in de straat beschikt deze woning over een unieke kunststof ombouw met Franse balkons, die zorgt voor een kenmerkend en karaktervol aanzicht. Dankzij deze fraaie uitbreiding is de tweede verdieping aan de voorzijde vergroot…

*See English text below

Ben je op zoek naar een fijne gezinswoning op een plek waar kinderen veilig kunnen opgroeien? Dan is deze moderne tussenwoning in het populaire Vleuterweide absoluut een bezichtiging waard. Met 4 slaapkamers, een zonnige tuin op het zuidoosten én een basisschool letterlijk achter de woning, woon je hier op een ideale plek voor het hele gezin. Als een van de weinige woningen in de straat beschikt deze woning over een unieke kunststof ombouw met Franse balkons, die zorgt voor een kenmerkend en karaktervol aanzicht. Dankzij deze fraaie uitbreiding is de tweede verdieping aan de voorzijde vergroot en voorzien van een indrukwekkende raampartij van vloer tot plafond. Dit resulteert in een prachtige lichtval en een vrij uitzicht over de wijk.

Vleuterweide is niet voor niets zo geliefd. Het is een jonge, ruim opgezette wijk met veel voorzieningen binnen handbereik. Op loopafstand vind je winkels, supermarkten, sportclubs, horeca, scholen en kinderopvang. Treinstation Vleuten en het winkelcentrum liggen dichtbij en binnen een kwartiertje fietsen sta je in het centrum van Utrecht.

De woning ligt in een nette, rustige straat met een prettige sfeer. Parkeren kan gratis voor de deur en dankzij de gunstige ligging ben je ook zo onderweg richting de uitvalswegen.

Indeling
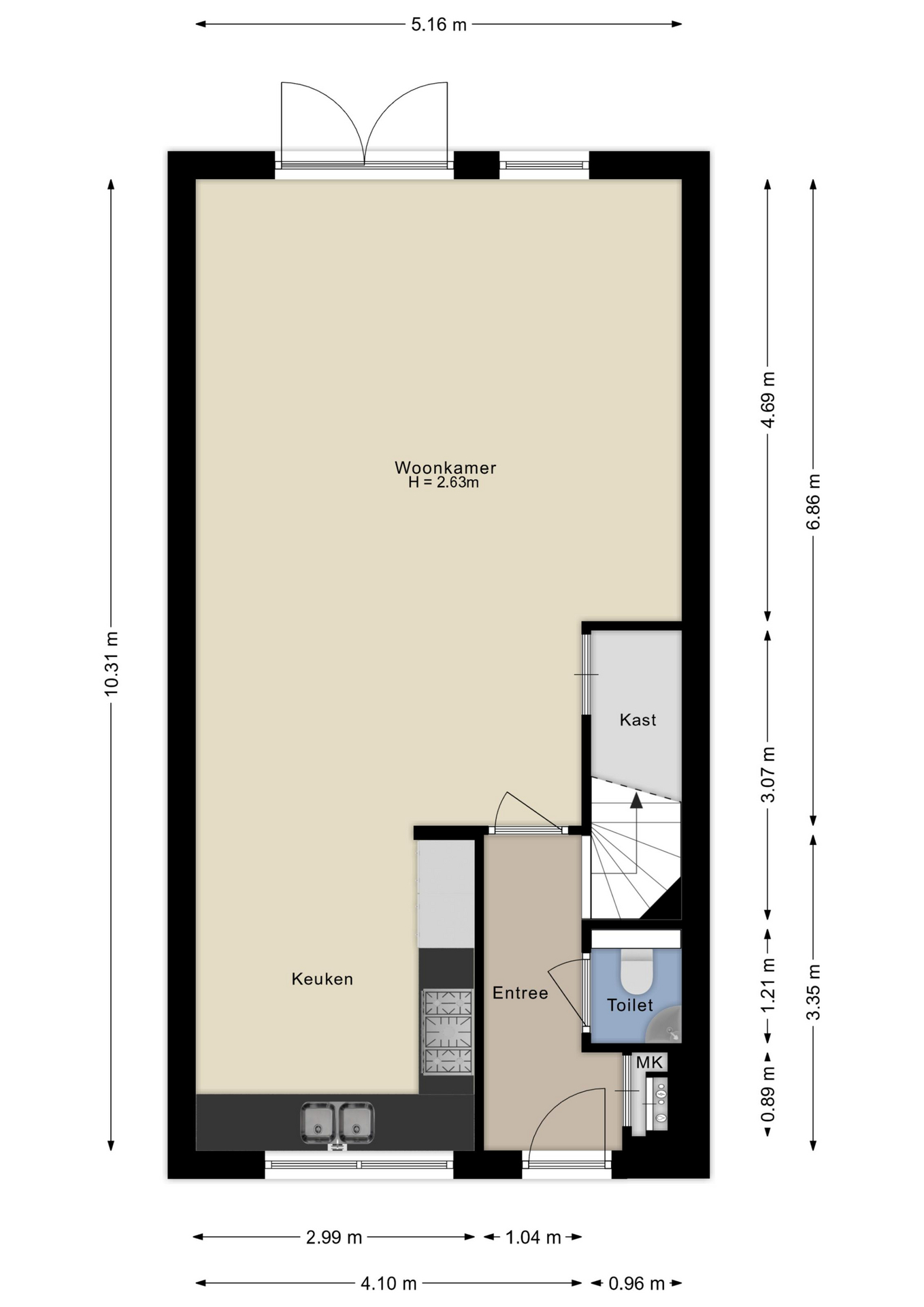
Begane grond:
Entree met hal, meterkast, modern toilet met fontein en trapopgang. De woonkamer is voorzien van een plavuizen vloer met comfortabele vloerverwarming en een handige trapkast voor extra bergruimte. De woonkamer is heerlijk licht en ruim, met openslaande deuren naar de zonnige achtertuin.

Aan de voorzijde bevindt zich de moderne open keuken, compleet uitgerust met diverse inbouwapparatuur zoals een 5-pits gaskookplaat, afzuigkap, oven, magnetron, quooker, koelkast en vaatwasser. Hier kook je met gemak voor familie en vrienden terwijl je in contact blijft met de woonkamer.

Eerste verdieping:
Op deze verdieping vind je drie slaapkamers: twee aan de achterzijde en één aan de voorzijde. Ideaal als kinderkamers, werkkamer of logeerkamer. Één van de slaapkamers is voorzien van een mooie inbouwkast. De moderne badkamer is compleet ingericht met een ligbad, douche, wastafelmeubel, zwevend toilet en designradiator – een fijne plek om de dag ontspannen te beginnen of juist af te sluiten.

Tweede verdieping:
Hier bevindt zich een ruime overloop met vlizotrap naar een royale vliering. Daarnaast is er een grote vierde slaapkamer welke erg licht is door de grote dakkapel aan de achterzijde en de grote raampartijen aan de voorzijde. Ook is er een aparte wasruimte met dakraam, cv-ketel en aansluitingen voor wasmachine en droger.

Tuin:
Op mooie dagen zet je de deuren open en loopt binnen moeiteloos over in buiten. De tuin ligt op het zuidoosten, ideaal voor een kop koffie in de ochtendzon of lange zomeravonden met het gezin. Achterin vind je een praktische schuur en een achterom.

Kenmerken
- Lichte gezinswoning met 4 slaapkamers en uniek vooraanzicht met vrij uitzicht;
- Volledig geïsoleerd, HR glas en energielabel A;
- Zonnige achtertuin gesitueerd op het zuidoosten;
- Basisschool om de hoek, middelbare school op loopafstand;
- Sport, scholen, cultuur en de binnenstad van Utrecht zijn in de buurt;
- Gelegen aan een autoluwe straat in het populaire, kindvriendelijke Vleuterweide, nabij verbindingswegen, het Maximapark, en de bushalte (o.a. rechtstreeks naar het UMC/Utrecht Science Park of Utrecht CS).

* Are you looking for a comfortable family home in a location where children can grow up safely? Then this modern house in the popular Vleuterweide area is definitely worth a visit. With four bedrooms, a sunny southeast-facing garden, and a primary school literally just behind the house, this is an ideal home for the whole family.

As one of the few properties on the street, this home features a unique PVC extension with French balconie, giving it a distinctive and characterful appearance. This stylish addition has enlarged the front of the second floor and includes an impressive floor-to-ceiling window, resulting in beautiful natural light and an open view over the neighborhood.

Vleuterweide is popular for good reason. It is a young, spaciously designed neighborhood with many amenities within easy reach. Within walking distance, you will find shops, supermarkets, sports facilities, restaurants, schools, and childcare. Vleuten train station and the shopping center are nearby, and the city center of Utrecht can be reached within 15 minutes by bike.

The property is located on a neat and quiet street with a pleasant atmosphere. Free parking is available right in front of the house, and thanks to its convenient location, major roads are easily accessible.

Layout
Ground floor:
Entrance hall with meter cupboard, modern toilet with washbasin, and staircase. The living room features tiled flooring with comfortable underfloor heating and a practical storage cupboard under the stairs. The space is bright and spacious, with French doors opening onto the sunny rear garden.

At the front of the house, you will find the modern open-plan kitchen, fully equipped with built-in appliances including a five-burner gas hob, extractor hood, oven, microwave, Quooker tap, refrigerator, and dishwasher. A perfect place to cook while staying connected with family and guests in the living area.

First floor:
This floor offers three bedrooms: two at the rear and one at the front, ideal as children's rooms, a home office, or guest room. One of the bedrooms includes a built-in wardrobe. The modern bathroom is fully equipped with a bathtub, shower, vanity unit, wall-mounted toilet, and designer radiator – a great place to start or end your day in comfort.

Second floor:
Here you will find a spacious landing with access to a large attic via a loft ladder. There is also a generous fourth bedroom, filled with natural light thanks to the large dormer at the rear and the expansive windows at the front. Additionally, there is a separate laundry room with a skylight, central heating system, and connections for a washing machine and dryer.

Garden:
On sunny days, simply open the doors and let indoor and outdoor living flow seamlessly together. The garden faces southeast, perfect for enjoying a morning coffee in the sun or long summer evenings with the family. At the back, you will find a practical storage shed and rear access.

Features
- Bright family home with four bedrooms and a unique front façade with open views;
- Fully insulated, double glazing (HR glass), energy label A;
- Sunny southeast-facing garden;
- Primary school around the corner, secondary school within walking distance;
- Sports, schools, culture, and Utrecht city center nearby;
- Located on a low-traffic street in the popular, child-friendly Vleuterweide, close to main roads, Maximapark, and public transport (including direct connections to UMC Utrecht, Utrecht Science Park, and Utrecht Central Station).

Lees verder

Bewoners aan het woord

  • Opmerking

    Toen wij hier in 2017 gingen wonen, was onze dochter 1 en hoorden we van de toenmalige bewoners dat dit huis een verzamelplek was voor buurtkinderen en dat het gezellig was. Wij kwamen vanuit Utrecht Centrum en hadden niet verwacht dat het zo leuk is om in een kindvriendelijke buurt, aan een autoluwe straat en met gelijkgestemde ouders met hun kinderen mee te groeien. Gezamenlijke etentjes, padelavondjes, de Loop van Leidsche Rijn zijn allemaal voorbeelden van hoe hecht de buurt is.

    We hebben gekozen voor een duurzame woonoplossing om samen met (schoon)ouders ene huis te zoeken nu onze dochter bijna van school afgaat. We kijken uit naar de tijd die komen gaat, maar we kijken terug op een fantastische tijd in een mooie, ruime woning in een toffe buurt.

  • Opmerking

    De wijk is rondom de school gecentreerd. Je leert via jouw kinderen snel andere mensen kennen. In de zomer spelen kinderen op straat en op het schoolplein. Het winkelcentrum is dichtbij en geschikt voor kinderen om te oefenen met zelfstandig te worden door bijvoorbeeld een boodschapje te gaan halen.

Kenmerken

  • Vraagprijs € 650.000,- k.k.
  • Aanvaarding In overleg
  • Type Tussenwoning
  • Bouwjaar 2011
  • Woonoppervlakte ca. 126 m2
  • Externe bergruimte ca. 5 m2
  • Slaapkamers 4
  • Inhoud ca. 459 m3
  • Perceeloppervlakte ca. 130 m2
  • Ligging tuin Zuidoost
  • Energielabel A
  • Isolatie Dakisolatie, muurisolatie, vloerisolatie, dubbel glas, volledig geisoleerd, hr glas
  • Verwarming Cv ketel
  • C.v.-ketel bouwjaar 2011
  • Voorzieningen Mechanische ventilatie, glasvezel kabel
  • Parkeerfaciliteiten Openbaar parkeren
  • Garage Geen garage
Meer kenmerken

Kenmerken toegevoegd door verkoper, vrienden en familie

  • Kenmerk(en)
    Gezellig winkelcentrum Vleuterweide
  • Kenmerk(en)
    Veilige en autoluwe straat / buurt
  • Kenmerk(en)
    Maximarpark om de hoek
  • Kenmerk(en)
    Genoeg ruimte
  • Kenmerk(en)
    Genoeg vriendjes en vriendinnetjes voor jouw kinderen
  • Kenmerk(en)
    School om de hoek
  • Kenmerk(en)
    Fijne lichtinval
  • Kenmerk(en)
    Dichtbij OV
  • Kenmerk(en)
    Vrij uitzicht
  • Kenmerk(en)
    Voldoende parkeergelegenheid
  • Kenmerk(en)
    Kindvriendelijke buurt
  • Kenmerk(en)
    Gezellige buren
  • Kenmerk(en)
    Zonnige tuin

In de buurt

Kruidentuinlaan 12 3452 SW Vleuten

      De buurt

      Burgerlijke staat in wijk
      Gehuwd
      Ongehuwd
      Gescheiden
      Verweduwd
      • Gehuwd (34.87%)
      • Ongehuwd (59.96%)
      • Gescheiden (4.61%)
      • Verweduwd (0.56%)
      Leeftijd in wijk
      0 - 15 jaar
      15 - 25 jaar
      25-45 jaar
      45 - 65 jaar
      65+ jaar
      • 0 - 15 jaar (32.92%)
      • 15 - 25 jaar (7.75%)
      • 25 - 45 jaar (40.22%)
      • 45 - 65 jaar (15.96%)
      • 65+ jaar (3.15%)
      Geslacht
      • Mannen (49.27%)
      • Vrouwen (50.73%)
      Gezinnen met kinderen
      0 - 15 jaar
      15 - 25 jaar
      25-45 jaar
      • Met kinderen (64.93%)
      • Zonder kinderen (19.79%)
      • Éénpersoons huishoudens (15.28%)
      Woningen koop / huur
      • Koop (68.69%)
      • Huur (31.31%)
      Aantal inwoners:

      4435

      Schaduwwijzer

      Media

      Plattegronden

      Ander aanbod