Waalsteen 60, Wijk bij duurstede | Beumer

Waalsteen 60

3961 XC, Wijk bij duurstede

Op zoek naar een instapklare, uitgebouwde gezinswoning met parkeergelegenheid op eigen terrein, gecombineerd met een kindvriendelijke ligging om de hoek van grote speeltuin, kinderboerderij De Vliert en basisschool? Wees welkom in deze sfeervolle tussenwoning met veel

  • 108 m2
  • 135 m2
  • Label C
  • 5 kamer(s)

€ 389.500,- k.k. Bereken maandlasten

Bereken maandlasten
Heb je een hypotheek nodig?

Omschrijving

Op zoek naar een instapklare, uitgebouwde gezinswoning met parkeergelegenheid op eigen terrein, gecombineerd met een kindvriendelijke ligging om de hoek van grote speeltuin, kinderboerderij De Vliert en basisschool?
Wees welkom in deze sfeervolle tussenwoning met veel voorzieningen binnen handbereik. De op het zuidoosten gelegen achtertuin met daarin een vrijstaande stenen berging en achterom is zonnig, ruim en geeft veel privacy.
Winkelcentrum De Horden is aan het einde van de straat gelegen.

Algemeen:
- Bouwjaar: 1980;
- Inhoud: 389 m³;
- Woonoppervlakte: 108 m²;
- Perceeloppervlakte: 135 m²;
- Muur-,dak- en vloerisolatie en dubbele…

Op zoek naar een instapklare, uitgebouwde gezinswoning met parkeergelegenheid op eigen terrein, gecombineerd met een kindvriendelijke ligging om de hoek van grote speeltuin, kinderboerderij De Vliert en basisschool?
Wees welkom in deze sfeervolle tussenwoning met veel voorzieningen binnen handbereik. De op het zuidoosten gelegen achtertuin met daarin een vrijstaande stenen berging en achterom is zonnig, ruim en geeft veel privacy.
Winkelcentrum De Horden is aan het einde van de straat gelegen.

Algemeen:
- Bouwjaar: 1980;
- Inhoud: 389 m³;
- Woonoppervlakte: 108 m²;
- Perceeloppervlakte: 135 m²;
- Muur-,dak- en vloerisolatie en dubbele beglazing;
- Centrale verwarming (Nefit Topline 2010);
- Energielabel: C.

Indeling:
Begane grond: Oprit voor 2 auto's, entree, meterkast, toilet en trapopgang, ruime woonkamer (ca. 33 m²) met fraaie houten vloer en deur naar de tuin, provisiekast, half open keuken met inbouwapparatuur;
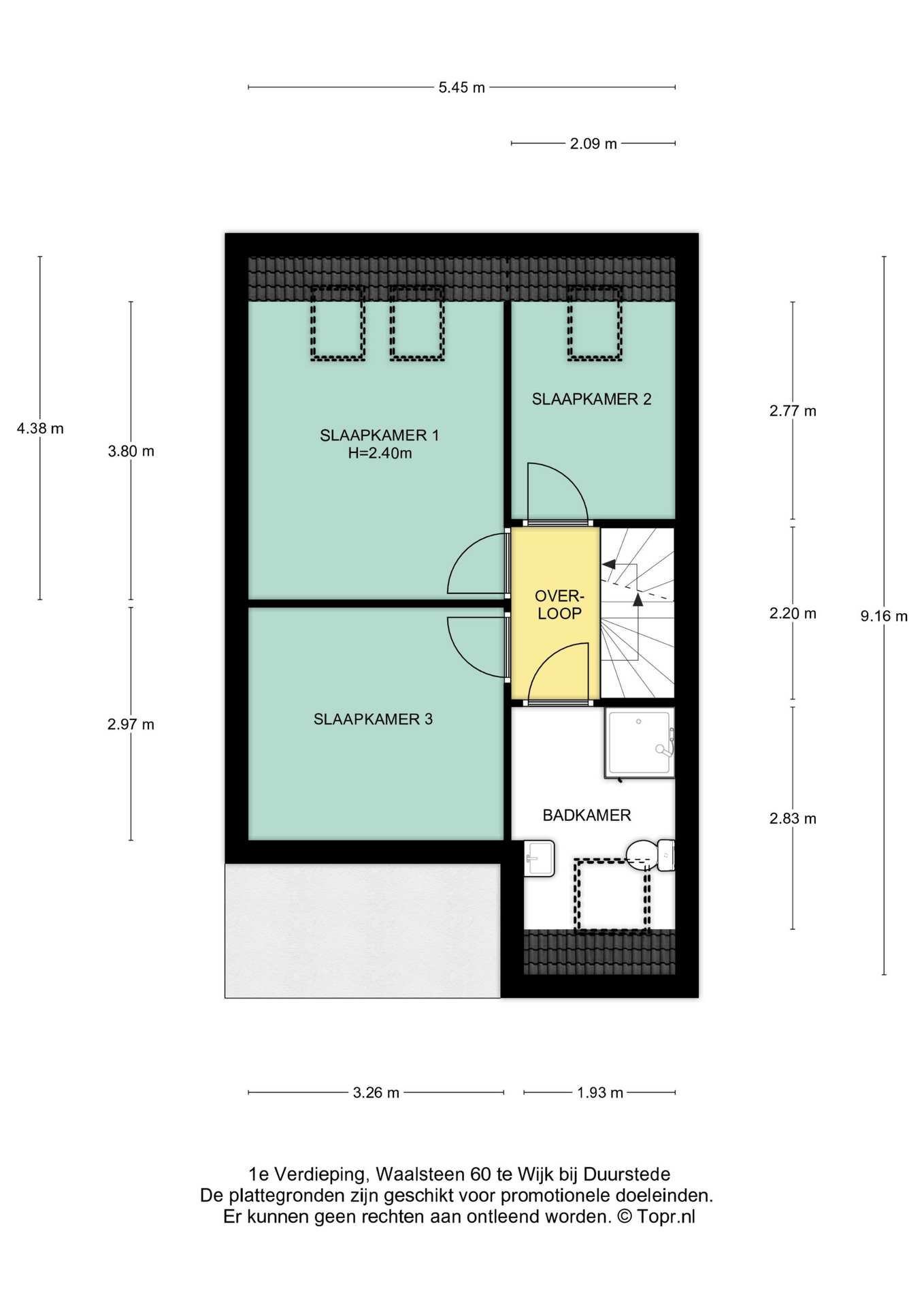
1e etage: overloop met toegang tot 3 slaapkamer, vernieuwde badkamer v.v. vloerverwarming en uitgerust met inloopdouche, wastafelmeubel, tweede toilet en opstelplaats voor de wasmachine;
2e etage: via vaste trap naar overloop met ruimte voor de c.v., slaapkamer voorzien van dakramen.

Bijzonderheden:
• Vrije ligging nabij grote speeltuin, Kinderboerderij De Vliert, winkelcentrum De Horden en basisschool;
• Woonkamer voorzien van lichte eikenhouten vloer, in keurige staat;
• Keuken vernieuwd (2017), inbouwapparatuur: 5 pits gasfornuis met oven, vaatwasmachine, koel- vriescombinatie, afzuigkap, close-in boiler;
• Badkamer vernieuwd (2018);
• Gestuukt en geschilderd in 2020;
• Opvallend ruim en licht wat resulteert in plezierige sfeer;
• Achtertuin gelegen op het zonnige zuidoosten, schuttingen vernieuwd (2018);
• Aan de voorzijde parkeerplaatsen op eigen terrein, in de straat is extra parkeergelegenheid;
• Aangesloten op het glasvezelnetwerk.

Bij deze woning is het een kwestie van de spullen verhuizen en klaar ben je!
Je bent van harte welkom om de woning te komen bezichtigen. 

Lees verder

Kenmerken

  • Vraagprijs € 389.500,- k.k.
  • Aanvaarding In overleg
  • Type Tussenwoning
  • Bouwjaar 1980
  • Woonoppervlakte ca. 108 m2
  • Externe bergruimte ca. 5 m2
  • Slaapkamers 4
  • Inhoud ca. 389 m3
  • Perceeloppervlakte ca. 135 m2
  • Ligging tuin Zuidoost
  • Energielabel C
  • Isolatie Dakisolatie, muurisolatie, vloerisolatie, dubbel glas
  • Verwarming Cv ketel, vloerverwarming gedeeltelijk
  • C.v.-ketel bouwjaar 2010
  • Voorzieningen Mechanische ventilatie, tv kabel, buitenzonwering, dakraam, glasvezel kabel
  • Parkeerfaciliteiten Openbaar parkeren, op eigen terrein
  • Garage Geen garage
Meer kenmerken

In de buurt

Waalsteen 60 • 3961 XC • Wijk bij duurstede

      De buurt

      Burgerlijke staat in wijk
      Gehuwd
      Ongehuwd
      Gescheiden
      Verweduwd
      • Gehuwd (44.88%)
      • Ongehuwd (42.59%)
      • Gescheiden (8.21%)
      • Verweduwd (4.32%)
      Leeftijd in wijk
      0 - 15 jaar
      15 - 25 jaar
      25-45 jaar
      45 - 65 jaar
      65+ jaar
      • 0 - 15 jaar (16.62%)
      • 15 - 25 jaar (11.53%)
      • 25 - 45 jaar (21.52%)
      • 45 - 65 jaar (33.91%)
      • 65+ jaar (16.42%)
      Geslacht
      • Mannen (48.84%)
      • Vrouwen (51.16%)
      Gezinnen met kinderen
      0 - 15 jaar
      15 - 25 jaar
      25-45 jaar
      • Met kinderen (38.63%)
      • Zonder kinderen (34.24%)
      • Éénpersoons huishoudens (27.13%)
      Woningen koop / huur
      • Koop (67.00%)
      • Huur (33.00%)
      Aantal inwoners:

      17465

      Schaduwwijzer

      Media

      Plattegronden

      Ander aanbod