Valkenkamp 683, Maarssen | Beumer

Valkenkamp 683

3607 MS, Maarssen

GROTE UITGEBOUWDE TUSSENWONING MET ROYALE WOONKAMER, WERKKAMER OP DE BEGANE GROND, MODERNE KEUKEN, LUXE BADKAMER EN DRIE RUIME SLAAPKAMERS Ben jij op zoek naar een lichte uitgebouwde tussenwoning met een werkkamer op de begane grond? Neem dan contact met ons op om een

  • 133 m2
  • 174 m2
  • Label B
  • 5 kamer(s)

€ 467.500,- k.k. Bereken maandlasten

Bereken maandlasten
Heb je een hypotheek nodig?

Omschrijving

GROTE UITGEBOUWDE TUSSENWONING MET ROYALE WOONKAMER, WERKKAMER OP DE BEGANE GROND, MODERNE KEUKEN, LUXE BADKAMER EN DRIE RUIME SLAAPKAMERS

Ben jij op zoek naar een lichte uitgebouwde tussenwoning met een werkkamer op de begane grond? Neem dan contact met ons op om een bezichtiging in te plannen voor de Valkenkamp 683.

De woning heeft een woonoppervlakte van maar liefst 133m² en ligt op een groot perceel van 174m². De woning heeft door de speelse indeling veel raampartijen en is heerlijk licht met een royale woonkamer, moderne keuken en werkkamer op de begane grond. Een moderne badkamer en twee…

GROTE UITGEBOUWDE TUSSENWONING MET ROYALE WOONKAMER, WERKKAMER OP DE BEGANE GROND, MODERNE KEUKEN, LUXE BADKAMER EN DRIE RUIME SLAAPKAMERS

Ben jij op zoek naar een lichte uitgebouwde tussenwoning met een werkkamer op de begane grond? Neem dan contact met ons op om een bezichtiging in te plannen voor de Valkenkamp 683.

De woning heeft een woonoppervlakte van maar liefst 133m² en ligt op een groot perceel van 174m². De woning heeft door de speelse indeling veel raampartijen en is heerlijk licht met een royale woonkamer, moderne keuken en werkkamer op de begane grond. Een moderne badkamer en twee slaapkamers op de eerste verdieping en een grote slaapkamer op de tweede verdieping. De woning is aan de achterzijde uitgebouwd en heeft openslaande deuren naar de ruime achtertuin met achterom. De woning is o.a. voorzien van houten kozijnen met dubbel glas, een sfeervolle gashaard, houten vloeren en mooie paneeldeuren.

De woning ligt op steenworp afstand van het grote wijkpark met kinderboerderij. Sportvelden, speeltuinen, scholen en winkels alsmede de fietsbrug naar Landgoed Haarzuilens liggen om de hoek. Het grote winkelcentrum Bisonspoor met het NS-station en de uitvalswegen A2 en A12 zijn op enkele minuten afstand. De wijk is ruim en groen van opzet. De centrale ligging van de woning staat garant voor een goede bereikbaarheid van diverse (sport)voorzieningen, zwembad en bibliotheek. Maarssen ligt op ca. 25 autominuten van Amsterdam en 10 minuten van Utrecht. Het NS-station in Maarssen heeft verbindingen met Amsterdam en Utrecht. Bushaltes zijn op enkele minuten loopafstand te vinden.

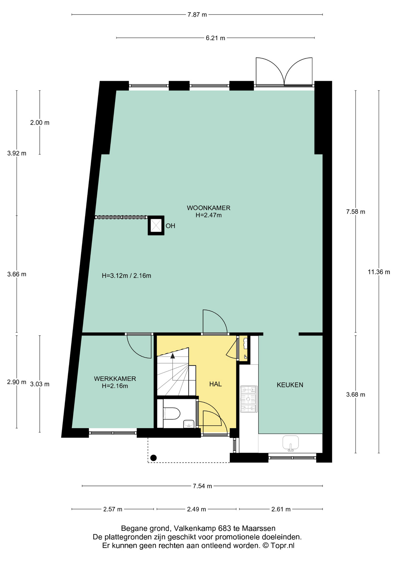
Indeling:

Begane grond:
Voortuin met toegang tot de woning. Via de voordeur bereik je ruime hal toegang tot de (vernieuwde) meterkast, toiletruimte, woonkamer en trapopgang naar de eerste verdieping. De hal is voorzien van een plavuizenvloer en designradiator. De toiletruimte is modern afgewerkt en voorzien van een hangend closet en fonteintje.

Via een fraaie paneeldeur bereik je de royale woonkamer met een oppervlakte van maar liefst 53m². Wat gelijk opvalt zijn de vele raampartijen en het schuine, hoge plafond. Verder zijn er een massief houten vloer, spuitwerk muren, een sfeervolle gestucte gashaard en openslaande deuren naar de achtertuin. Er is een convectorput aanwezig en de radiatoren zijn vernieuwd.

De moderne open keuken bevindt zich aan de voorzijde van de woning is geplaatst in een ruime L-opstelling en een separate kastenwand. De keuken is hoogglans wit met een graniet aanrechtblad en voorzien van diverse (inbouw)apparatuur; RVS 6-pitsgasfornuis met een extra brede elektrische oven, RVS afzuigkap, vaatwasser en Quooker. In de kastenwand bevinden zich de grote koelkast, vriezer en extra opbergruimte. De muren in de keuken zijn gestuukt.

Vanuit de woonkamer is de werkkamer te bereiken welke circa 7m² groot is en voorzien is van een houten vloer en spuitwerk wanden.

Alle oorspronkelijke leidingen in de hal, woonkamer en keuken zijn weggewerkt in de muren.

1e Verdieping:
Overloop met toegang tot de twee slaapkamers, badkamer en trapopgang naar de tweede verdieping. De slaapkamers aan de achterzijde is met circa 16m² zeer ruim, ligt over de volledige breedte van de woning, heeft veel raampartijen, een vaste kastenwand en spuitwerk muren. De slaapkamer aan de voorzijde is circa 10m² groot en voorzien van zowel vliesbehang als spuitwerk muren.

De overloop en slaapkamers zijn voorzien van een fraaie laminaatvloer.

De luxe badkamer is volledig betegeld. Deze is voorzien van een douchecabine, hangend closet, designradiator en een mooi wastafelmeubel met hardstenen spoelbak met geïntegreerde kraan. Prettig is het grote raam welke zorgt veel lichtinval en natuurlijke ventilatie.

2e Verdieping:
Overloop met toegang tot de derde slaapkamer. Op de overloop bevinden zich ook de witgoedaansluitingen, C.V. opstelling (Intergas, 2018) en bergruimte achter de knieschotten.
De derde slaapkamer ligt over de volledige lengte van de woning, is circa 15m² groot en heeft een dakkapel aan de achterzijde, een dakraam aan de voorzijde, een inbouwkast, laminaatvloer, behangwanden en bergruimte achter de knieschotten.

Tuin:
De achtertuin is gelegen op het noordoosten, is circa 68m² groot en biedt volop mogelijkheden om van de zon te genieten. Verder is de tuin voorzien van sierborders, bestrating, een vijver, een stenen berging en een achterom.

De voortuin is aangelegd met sierbestrating en sierborders.

Bijzonderheden:
- Bouwjaar 1988;
- Woonoppervlakte 133m², inhoud 470m³ en perceeloppervlakte 174m²;
- (Slaap-)/Werkkamer op de begane grond;
- Royale woonkamer met sfeervolle gashaard;
- Drie ruime slaapkamers;
- Moderne keuken;
- Luxe badkamer;
- Grote achtertuin met achterom;
- Houten kozijnen met dubbel glas;
- Intergas C.V. ketel (2018);
- Gelegen in een kinderrijke buurt, nabij het grote park.

Oplevering in overleg.

Lees verder

Kenmerken

  • Vraagprijs € 467.500,- k.k.
  • Aanvaarding In overleg
  • Type Tussenwoning
  • Bouwjaar 1988
  • Woonoppervlakte ca. 133 m2
  • Externe bergruimte ca. 7 m2
  • Slaapkamers 4
  • Inhoud ca. 470 m3
  • Perceeloppervlakte ca. 174 m2
  • Ligging tuin Noordoost
  • Energielabel B
  • Isolatie Dakisolatie, muurisolatie, dubbel glas
  • Verwarming Cv ketel, gashaard
  • C.v.-ketel bouwjaar 2018
  • Voorzieningen Mechanische ventilatie, dakraam, glasvezel kabel, natuurlijke ventilatie
  • Parkeerfaciliteiten Openbaar parkeren
  • Garage Geen garage
Meer kenmerken

In de buurt

Valkenkamp 683 • 3607 MS • Maarssen

      De buurt

      Burgerlijke staat in wijk
      Gehuwd
      Ongehuwd
      Gescheiden
      Verweduwd
      • Gehuwd (47.63%)
      • Ongehuwd (44.08%)
      • Gescheiden (6.16%)
      • Verweduwd (2.13%)
      Leeftijd in wijk
      0 - 15 jaar
      15 - 25 jaar
      25-45 jaar
      45 - 65 jaar
      65+ jaar
      • 0 - 15 jaar (16.47%)
      • 15 - 25 jaar (14.59%)
      • 25 - 45 jaar (21.88%)
      • 45 - 65 jaar (37.65%)
      • 65+ jaar (9.41%)
      Geslacht
      • Mannen (50.24%)
      • Vrouwen (49.76%)
      Gezinnen met kinderen
      0 - 15 jaar
      15 - 25 jaar
      25-45 jaar
      • Met kinderen (55.41%)
      • Zonder kinderen (31.08%)
      • Éénpersoons huishoudens (13.51%)
      Woningen koop / huur
      • Koop (86.00%)
      • Huur (14.00%)
      Aantal inwoners:

      2120

      Schaduwwijzer

      Media

      Plattegronden

      Ander aanbod