Traaij 88, Driebergen-rijsenburg | Beumer

Traaij 88

3971 GR, Driebergen-rijsenburg

Gelegen aan de geliefde Traaij in het centrum van Driebergen (Utrechtse Heuvelrug); WINKEL / BOVENWONING / MAGAZIJN nabij divers overig winkelaanbod en horeca. De bovenwoning is fraai verbouwd en heeft 2 woonlagen. De parkeervoorzieningen en uitvalswegen zijn

  • 110 m2
  • 204 m2
  • Label A
  • 6 kamer(s)

€ 650.000,- k.k. Bereken maandlasten

Bereken maandlasten
Heb je een hypotheek nodig?

Omschrijving

Gelegen aan de geliefde Traaij in het centrum van Driebergen (Utrechtse Heuvelrug); WINKEL / BOVENWONING / MAGAZIJN nabij divers overig winkelaanbod en horeca.
De bovenwoning is fraai verbouwd en heeft 2 woonlagen. De parkeervoorzieningen en uitvalswegen zijn dichtbij.
Dit object is een interessante belegging. Het betreft een volledig verhuurd object, een ijssalon met terras en de bovenwoning en studio met eigen opgang.

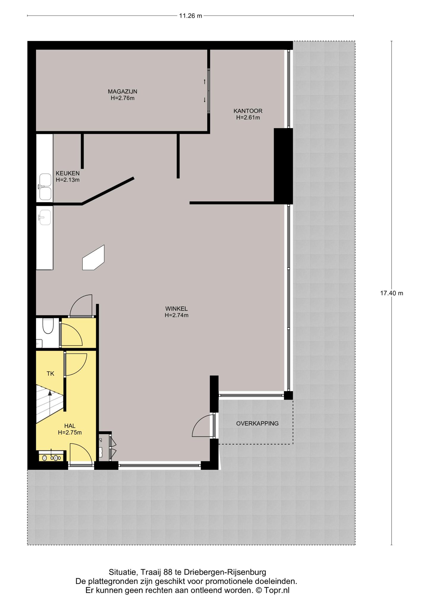
De winkel beneden (label A, circa 110 m2) heeft een bargedeelte, keuken, toiletgroep, kantoor en een magazijn. Aan de voorzijde is een terras mogelijkheid. Het restaurant is al diverse jaren verhuurd aan de ijssalon, er…

Gelegen aan de geliefde Traaij in het centrum van Driebergen (Utrechtse Heuvelrug); WINKEL / BOVENWONING / MAGAZIJN nabij divers overig winkelaanbod en horeca.
De bovenwoning is fraai verbouwd en heeft 2 woonlagen. De parkeervoorzieningen en uitvalswegen zijn dichtbij.
Dit object is een interessante belegging. Het betreft een volledig verhuurd object, een ijssalon met terras en de bovenwoning en studio met eigen opgang.

De winkel beneden (label A, circa 110 m2) heeft een bargedeelte, keuken, toiletgroep, kantoor en een magazijn. Aan de voorzijde is een terras mogelijkheid. Het restaurant is al diverse jaren verhuurd aan de ijssalon, er is een langlopend huurcontract aanwezig en de huurder wil hier graag blijven. Het appartement van totaal 110 m² op de 1e en 2e verdieping heeft een eigen opgang (entree, trapkast en meterkast op de begane grond).
Huurinkomsten op jaarbasis circa € 40.000,-.

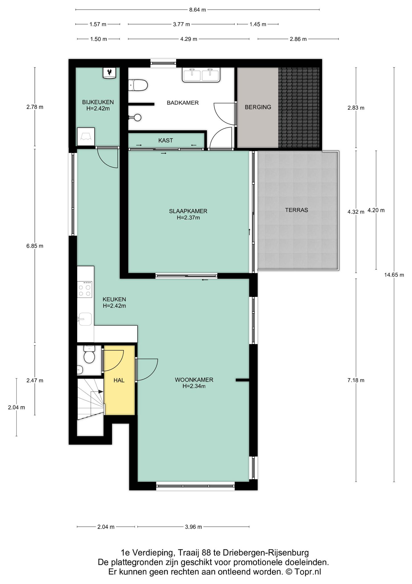
Indeling bovenwoning (label D):
1e verdieping: dubbele overloop, toiletruimte, L-vormige living met moderne inbouwkeuken, grote slaapkamer met zonnig dakterras en mooi uitzicht, vernieuwde badkamer (2020) met inloopdouche, dubbel wastafelmeubel, toilet, bergruimte en bijkeuken. De bovenwoning is ingedeeld met een woonkamer en open keuken van samen 82,5 m², een groot dakterras van 56 m², een slaapkamer met inbouwkast en een badkamer.
2e verdieping: een studio met douche en keukenblok.

Het pand is gunstig gelegen in het centrum van het dorp Driebergen aan de Traaij met ruime parkeergelegenheid. Driebergen is een gezellig dorp in de prachtige Utrechtse Heuvelrug met veel voorzieningen en recreatiemogelijkheden. Het is tevens een goede uitvalsbasis ten opzichte van scholen, horeca, de vele wandelpaden en MTB-routes die de Utrechtse Heuvelrug biedt.

Het object is gelegen binnen bestemmingsplan 'Driebergen-Woongebied', met als enkelbestemming Centrum.
Kadastraal bekend: gemeente Driebergen-Rijsenburg, Sectie B, nummer 4810, groot 204 m² volle eigendom.

De ijssalon wordt thans verhuurd aan vaste huurder middels een huurcontract voor 5 jaar, het huidige contract heeft ingangsdatum 1 februari 2020 (huidige huurder huurt het restaurant al vanaf februari 2014).

Energielabel winkel: Label A
Energielabel woning: Label D

Aanvaarding in overleg. Heeft u interesse? Bent u op zoek naar een goede belegging? Bel gerust met Beumer en Dirksen Makelaars voor nadere informatie en het plannen van een bezichtiging.

Lees verder

Kenmerken

  • Vraagprijs € 650.000,- k.k.
  • Aanvaarding In overleg
  • Type Geschakelde woning
  • Bouwjaar 1918
  • Woonoppervlakte ca. 110 m2
  • Oppervlakte gebouwgebonden ca. 12 m2
  • Overige inpandige ruimte ca. 110 m2
  • Slaapkamers 2
  • Inhoud ca. 777 m3
  • Perceeloppervlakte ca. 204 m2
  • Ligging tuin Zuidwest
  • Energielabel A
  • Isolatie Dakisolatie, gedeeltelijk dubbel glas
  • Verwarming Cv ketel
  • C.v.-ketel bouwjaar 2011
  • Voorzieningen Mechanische ventilatie, tv kabel, buitenzonwering, schuifpui, dakraam, natuurlijke ventilatie
  • Parkeerfaciliteiten Openbaar parkeren
  • Garage Geen garage
Meer kenmerken

In de buurt

Traaij 88 • 3971 GR • Driebergen-rijsenburg

      De buurt

      Burgerlijke staat in wijk
      Gehuwd
      Ongehuwd
      Gescheiden
      Verweduwd
      • Gehuwd (38.10%)
      • Ongehuwd (46.39%)
      • Gescheiden (7.98%)
      • Verweduwd (7.53%)
      Leeftijd in wijk
      0 - 15 jaar
      15 - 25 jaar
      25-45 jaar
      45 - 65 jaar
      65+ jaar
      • 0 - 15 jaar (14.80%)
      • 15 - 25 jaar (12.84%)
      • 25 - 45 jaar (18.73%)
      • 45 - 65 jaar (29.00%)
      • 65+ jaar (24.62%)
      Geslacht
      • Mannen (48.04%)
      • Vrouwen (51.96%)
      Gezinnen met kinderen
      0 - 15 jaar
      15 - 25 jaar
      25-45 jaar
      • Met kinderen (26.87%)
      • Zonder kinderen (27.46%)
      • Éénpersoons huishoudens (45.67%)
      Woningen koop / huur
      • Koop (58.16%)
      • Huur (41.84%)
      Aantal inwoners:

      3320

      Schaduwwijzer

      Media

      Plattegronden

      Ander aanbod