Warande 110, Wijk bij duurstede | Beumer

Warande 110

3961 LE, Wijk bij duurstede

Uitgebouwde en goed onderhouden ruime tussenwoning (1989) met 4 slaapkamers, 2 badkamers en parkeerplaats op eigen terrein. De woning heeft een zonnige vrije tuin op het zuiden met vrijstaande stenen schuur en achterom. Deze sfeervolle eengezinswoning is gelegen in de

  • 112 m2
  • 148 m2
  • Label C
  • 5 kamer(s)

€ 385.000,- k.k. Bereken maandlasten

Bereken maandlasten
Heb je een hypotheek nodig?

Omschrijving

Uitgebouwde en goed onderhouden ruime tussenwoning (1989) met 4 slaapkamers, 2 badkamers en parkeerplaats op eigen terrein. De woning heeft een zonnige vrije tuin op het zuiden met vrijstaande stenen schuur en achterom.
Deze sfeervolle eengezinswoning is gelegen in de rustige buurt “Parkwijck” op loopafstand van een winkelcentrum, bushaltes en op een aantal minuten van de gezellige binnenstad.

Algemeen:
- Bouwjaar: 1989;
- Woonoppervlakte ca. 112m2;
- Perceeloppervlakte: 148m2;
- Inhoud ca. 382m2;
- Energielabel: C.

Indeling:
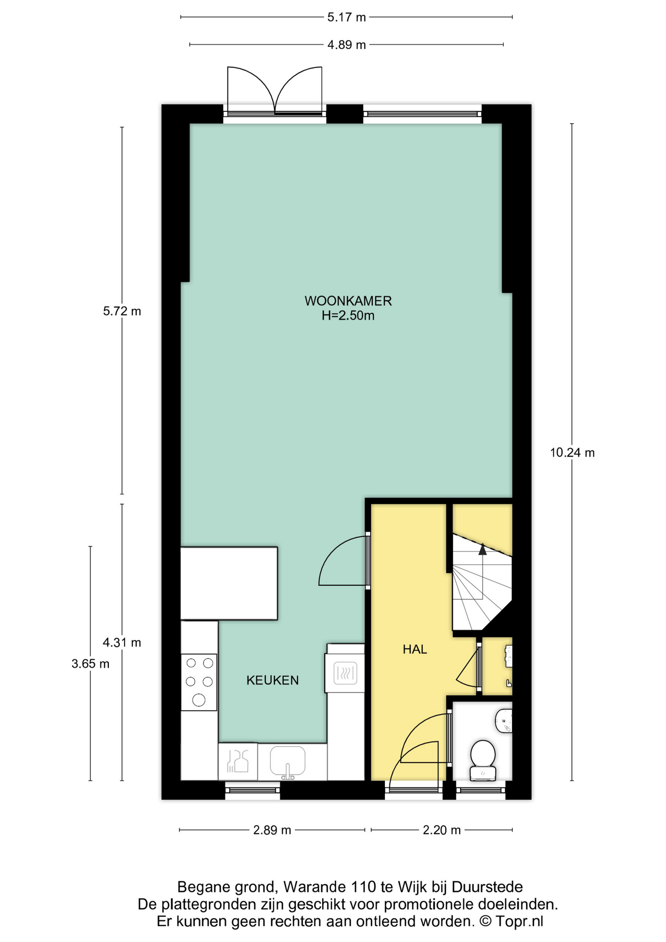
Begane grond:
Entree, hal voorzien van laminaatvloer, half betegelde toiletruimte met fonteintje, meterkast met…

Uitgebouwde en goed onderhouden ruime tussenwoning (1989) met 4 slaapkamers, 2 badkamers en parkeerplaats op eigen terrein. De woning heeft een zonnige vrije tuin op het zuiden met vrijstaande stenen schuur en achterom.
Deze sfeervolle eengezinswoning is gelegen in de rustige buurt “Parkwijck” op loopafstand van een winkelcentrum, bushaltes en op een aantal minuten van de gezellige binnenstad.

Algemeen:
- Bouwjaar: 1989;
- Woonoppervlakte ca. 112m2;
- Perceeloppervlakte: 148m2;
- Inhoud ca. 382m2;
- Energielabel: C.

Indeling:
Begane grond:
Entree, hal voorzien van laminaatvloer, half betegelde toiletruimte met fonteintje, meterkast met glasvezelaansluiting, trapopgang en bergkast.
Over de volle breedte uitgebouwde woonkamer met openslaande deuren naar de zonnige achtertuin en o.a. voorzien van gestucte wanden en plafond, veel licht en laminaatvloer.
Open keuken in hoekopstelling met eetbar, 5-pits gaskookplaat, RVS-afzuigkap, RVS-spoelbak, vaatwasser (2021 vernieuwd), apothekerskast, koelkast, vriezer en voldoende kastruimte.

Eerste verdieping:
Overloop voorzien van laminaatvloer en trapopgang naar de tweede verdieping.
Op de eerste verdieping zijn drie slaapkamers waarvan de twee slaapkamers aan de achterzijde zijn voorzien van een Velux-dakraam en de slaapkamer aan de voorzijde een Frans balkon heeft.
De badkamer is voorzien van een douchecabine, wastafelmeubel en tweede toilet.

Tweede verdieping:
Middels de vaste trap is de voorzolder bereikbaar met Velux-dakraam en de opstellingsplaats voor het witgoed.
Op de tweede verdieping is een tweede badkamer gerealiseerd met whirlpool-bad, wastafel en toegang tot de stookruimte met CV-ketel. In de badkamer is tevens een luik aanwezig naar de bergvliering.
Tot slot is hier tevens een vierde slaapkamer aanwezig welke voorzien is van een dakkapel met kunststof kozijnen, Velux-dakraam en veel kast-/ bergruimte.

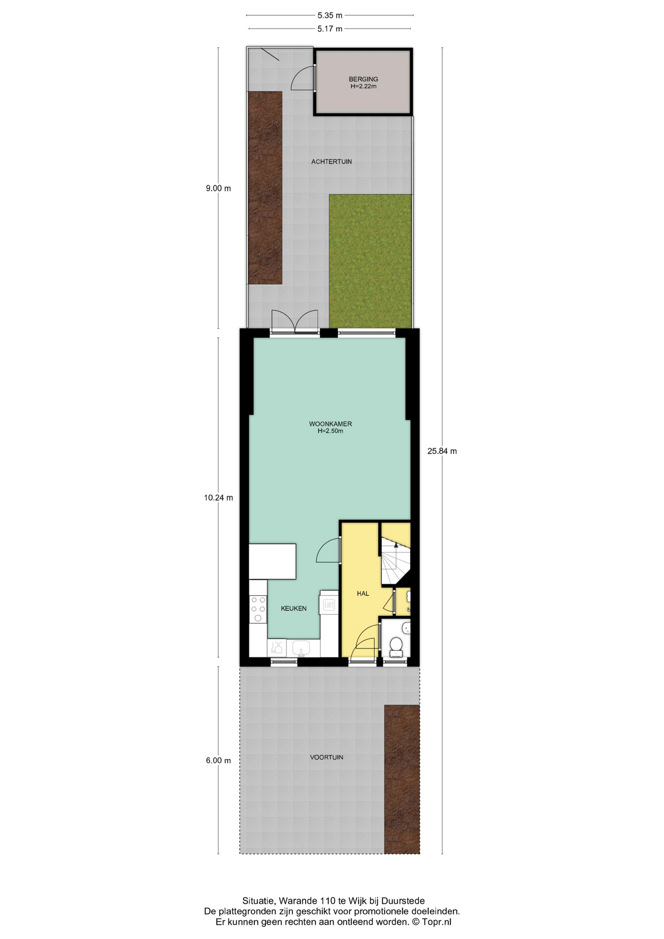
Tuin:
De voortuin is verzorgd aangelegd en is voorzien van een parkeerplaats.
De achtertuin is gunstig gelegen op de zon (zuiden) en heeft een diepte van ca. 9 meter. Naast de stenen berging met elektra is in de tuin een grasveld aanwezig, sierbestrating, borders met vaste beplanting, zonwering en een praktische achterom.

Bijzonderheden:
- De woning is voorzien van twee badkamers;
- Door de uitbouw aan de achterzijde is er een ruime & lichte woonkamer;
- Parkeren op eigen terrein;
- In 2020 is het schilderwerk aan de buitenzijde uitgevoerd;
- Warm water en verwarming middels Nefit Topline HR combiketel uit 2008/2019 (in 2019 is de gehele binnenkant van de ketel vernieuwd);
- Diepe en zonnige achtertuin met achterom;
- Moderne open keuken met gezellige bar;
- De woning is gunstig gelegen in een kindvriendelijke woonwijk nabij diverse voorzieningen.

Kortom: De woning is zeker een bezichtiging waard! Plan snel een bezichtiging in en kom het zelf ervaren.

Lees verder

Kenmerken

  • Vraagprijs € 385.000,- k.k.
  • Aanvaarding In overleg
  • Type Tussenwoning
  • Bouwjaar 1989
  • Woonoppervlakte ca. 112 m2
  • Externe bergruimte ca. 6 m2
  • Slaapkamers 4
  • Inhoud ca. 382 m3
  • Perceeloppervlakte ca. 148 m2
  • Ligging tuin Zuid
  • Energielabel C
  • Isolatie Muurisolatie, vloerisolatie, gedeeltelijk dubbel glas
  • Verwarming Cv ketel
  • C.v.-ketel bouwjaar 2008
  • Voorzieningen Tv kabel, frans balkon, dakraam, glasvezel kabel
  • Parkeerfaciliteiten Openbaar parkeren, op eigen terrein
  • Garage Geen garage
Meer kenmerken

In de buurt

Warande 110 3961 LE Wijk bij duurstede

      De buurt

      Burgerlijke staat in wijk
      Gehuwd
      Ongehuwd
      Gescheiden
      Verweduwd
      • Gehuwd (44.88%)
      • Ongehuwd (42.59%)
      • Gescheiden (8.21%)
      • Verweduwd (4.32%)
      Leeftijd in wijk
      0 - 15 jaar
      15 - 25 jaar
      25-45 jaar
      45 - 65 jaar
      65+ jaar
      • 0 - 15 jaar (16.62%)
      • 15 - 25 jaar (11.53%)
      • 25 - 45 jaar (21.52%)
      • 45 - 65 jaar (33.91%)
      • 65+ jaar (16.42%)
      Geslacht
      • Mannen (48.84%)
      • Vrouwen (51.16%)
      Gezinnen met kinderen
      0 - 15 jaar
      15 - 25 jaar
      25-45 jaar
      • Met kinderen (38.63%)
      • Zonder kinderen (34.24%)
      • Éénpersoons huishoudens (27.13%)
      Woningen koop / huur
      • Koop (67.00%)
      • Huur (33.00%)
      Aantal inwoners:

      17465

      Schaduwwijzer

      Media

      Plattegronden

      Ander aanbod