Rozemarijnsingel 32, Utrecht | Beumer

Rozemarijnsingel 32

3544 AG, Utrecht

Deze moderne tussenwoning aan het water biedt ruimte, comfort en sfeer. Met drie woonlagen en drie ruime slaapkamers is er ruimte voor het hele gezin. De woning beschikt over een sfeervolle woonkamer met prachtige vloer, volledig uitgeruste keuken en royale badkamer met

  • 134 m2
  • 140 m2
  • Label A
  • 4 kamer(s)

€ 550.000,- k.k. Bereken maandlasten

Bereken maandlasten
Heb je een hypotheek nodig?

Omschrijving

Deze moderne tussenwoning aan het water biedt ruimte, comfort en sfeer. Met drie woonlagen en drie ruime slaapkamers is er ruimte voor het hele gezin. De woning beschikt over een sfeervolle woonkamer met prachtige vloer, volledig uitgeruste keuken en royale badkamer met ligbad en douchecabine. Een heerlijke voor- en achtertuin zorgen bovendien voor een fijne balans tussen het binnencomfort en het aangename buitenleven. De woning is goed onderhouden en zorgeloos te betrekken. Een unieke kans voor gezinnen die klaar zijn voor de volgende stap!

De woning is prachtig gelegen aan het water in de kindvriendelijke buurt Parkwijk. Met zowel het…

Deze moderne tussenwoning aan het water biedt ruimte, comfort en sfeer. Met drie woonlagen en drie ruime slaapkamers is er ruimte voor het hele gezin. De woning beschikt over een sfeervolle woonkamer met prachtige vloer, volledig uitgeruste keuken en royale badkamer met ligbad en douchecabine. Een heerlijke voor- en achtertuin zorgen bovendien voor een fijne balans tussen het binnencomfort en het aangename buitenleven. De woning is goed onderhouden en zorgeloos te betrekken. Een unieke kans voor gezinnen die klaar zijn voor de volgende stap!

De woning is prachtig gelegen aan het water in de kindvriendelijke buurt Parkwijk. Met zowel het Amaliapark als Park De Hoge Weide op enkele minuten loopafstand, kun je heerlijke wandelingen maken met het gezin en zijn er veel speelmogelijkheden voor de kinderen. In de wijk heb je alle belangrijke voorzieningen binnen handbereik, zoals een supermarkt, winkels, scholen, kinderopvang, het openbaar vervoer en sportfaciliteiten. Binnen een kwartier bereik je het bruisende centrum van Utrecht met de fiets, voor een terrasje langs de grachten of middagje shoppen. Ook is er een gunstige ligging ten opzichte van de A2, die je binnen enkele autominuten bereikt. Kortom, een geweldige locatie.

Indeling:
Begane grond:
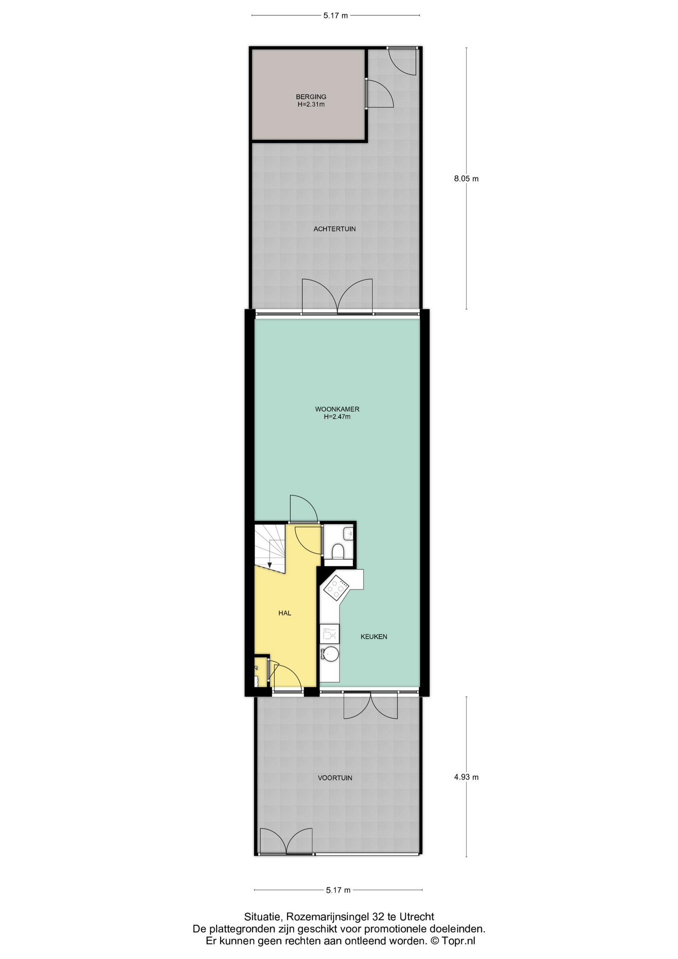
Via de sfeervolle voortuin bereik je de voordeur en betreed je de woning. In de hal maak je direct kennis met de prachtige houten vloer met vloerverwarming. Onderweg naar de woonkamer kom je de trapopgang en het toilet tegen. Bij binnenkomst in de woonkamer word je aangenaam verrast door de heerlijke hoeveelheid daglicht die je tegemoetkomt. De mooie vloer strekt zich verder uit over de grote ruimte. De woonkamer biedt ruimte aan een gezellige zithoek aan de achterzijde en comfortabele eethoek aan de voorzijde. Aan de achterzijde kijk je uit op de zonnige achtertuin, die via openslaande deuren te bereiken is. Aan de voorzijde grenst de halfopen keuken. De keuken is ruim opgezet en van alle gemakken voorzien. Stijlvolle fronten en een chic keukenblad geven de keuken een fraaie uitstraling. De keuken is uitgerust met diverse inbouwapparaten, zoals een inductiekookplaat, vaatwasser, oven en koelkast. Openslaande deuren vanuit de keuken geven toegang tot de fijne voortuin.

1e verdieping:
Via de trapopgang bereik je de overloop op de eerste verdieping. De overloop geeft toegang tot twee slaapkamers en een badkamer. Zowel aan de voor- als achterzijde bevindt zich een riante slaapkamer, die zich uitstrekt over de gehele breedte van de woning. Beide kamers profiteren van veel lichtinval en zijn voorzien van een vloerbedekking. De badkamer is heerlijk ruim en volledig betegeld. Hier vind je een comfortabel ligbad, ruime douchecabine, wastafelmeubel en toilet.

2e verdieping:
De zolder is een grote open ruimte die als derde slaapkamer ingericht kan worden. Hier ligt een nette laminaatvloer en het is aangenaam licht door grote ramen. De zolder is netjes afgewerkt en de hoge nok geeft een ruimtelijk effect. Op deze verdieping bevinden zich ook de witgoedaansluitingen.

Buiten:
Met zowel een heerlijke voor- als achtertuin kun je volop van de zon en het buitenleven genieten. De voortuin is op speelse wijze betegeld en biedt een fijne zithoek met uitzicht op het water. De voortuin is omheind door een elegant hekwerk. De achtertuin bereik je via openslaande deuren in de woonkamer. De tuin is volledig betegeld en daarmee onderhoudsvrij. Hier kun je verschillende eet- of zithoeken creëren en het buitenleven met volle glorie omarmen. Achterin vind je een ruime berging, die plek biedt aan je fietsen. Ook is er een achterom, zodat je je fiets direct in de berging kunt plaatsen. Een sfeervolle houten schutting zorgt voor veel privacy in de achtertuin.

Bijzonderheden:
- Bouwjaar: 2001
- Moderne tussenwoning aan het water
- Sfeervolle woonkamer met prachtige vloer
- Volledig uitgeruste keuken
- Royale badkamer met ligbad en douchecabine
- Heerlijke voor- en achtertuin
- Op loopafstand van Amaliapark en Park De Hoge Weide
- Centrum van Utrecht op 15 minuten fietsafstand

Interesse in deze woning? Kom gerust eens langs met jouw aankoopmakelaar!

Lees verder

Kenmerken

  • Vraagprijs € 550.000,- k.k.
  • Aanvaarding In overleg
  • Type Tussenwoning
  • Bouwjaar 2001
  • Woonoppervlakte ca. 134 m2
  • Externe bergruimte ca. 10 m2
  • Slaapkamers 2
  • Inhoud ca. 504 m3
  • Perceeloppervlakte ca. 140 m2
  • Ligging tuin Noord
  • Energielabel A
  • Isolatie Dakisolatie, muurisolatie, vloerisolatie, dubbel glas, volledig geisoleerd
  • Verwarming Stadsverwarming, vloerverwarming gedeeltelijk
  • Voorzieningen Mechanische ventilatie, tv kabel, natuurlijke ventilatie
  • Parkeerfaciliteiten Openbaar parkeren
  • Garage Geen garage
Meer kenmerken

In de buurt

Rozemarijnsingel 32 • 3544 AG • Utrecht

      De buurt

      Burgerlijke staat in wijk
      Gehuwd
      Ongehuwd
      Gescheiden
      Verweduwd
      • Gehuwd (34.11%)
      • Ongehuwd (56.51%)
      • Gescheiden (7.03%)
      • Verweduwd (2.34%)
      Leeftijd in wijk
      0 - 15 jaar
      15 - 25 jaar
      25-45 jaar
      45 - 65 jaar
      65+ jaar
      • 0 - 15 jaar (20.05%)
      • 15 - 25 jaar (12.50%)
      • 25 - 45 jaar (34.51%)
      • 45 - 65 jaar (25.52%)
      • 65+ jaar (7.42%)
      Geslacht
      • Mannen (49.35%)
      • Vrouwen (50.65%)
      Gezinnen met kinderen
      0 - 15 jaar
      15 - 25 jaar
      25-45 jaar
      • Met kinderen (41.19%)
      • Zonder kinderen (22.64%)
      • Éénpersoons huishoudens (36.16%)
      Woningen koop / huur
      • Koop (53.54%)
      • Huur (46.46%)
      Aantal inwoners:

      3830

      Schaduwwijzer

      Media

      Plattegronden

      Plattegrond Eerste verdieping

      Ander aanbod