Reigerskamp 310, Maarssen | Beumer

Reigerskamp 310

3607 HS, Maarssen

GOED ONDERHOUDEN - RUSTIGE en PRETTIGE WOONOMGEVING - RUIME en VRIJ GELEGEN TUIN Wanneer je nieuwe (t)huis aan deze woonwensen moet voldoen, dan nodigen wij je graag uit om REIGERSKAMP 310 in MAARSSEN te komen bezichtigen. Deze RUIME TOPGEVEL TUSSENWONING is

  • 112 m2
  • 123 m2
  • Label C
  • 5 kamer(s)

€ 400.000,- k.k. Bereken maandlasten

Bereken maandlasten
Heb je een hypotheek nodig?

Omschrijving

GOED ONDERHOUDEN - RUSTIGE en PRETTIGE WOONOMGEVING - RUIME en VRIJ GELEGEN TUIN

Wanneer je nieuwe (t)huis aan deze woonwensen moet voldoen, dan nodigen wij je graag uit om REIGERSKAMP 310 in MAARSSEN te komen bezichtigen.

Deze RUIME TOPGEVEL TUSSENWONING is gelegen aan een leuk grachtje, heeft een woonoppervlakte van circa 112m2 en beschikt onder meer over een lichte woonkamer met openslaande deuren, U-vormige keuken met inbouwapparatuur, 4 slaapkamers en vrij gelegen en modern aangelegde achtertuin met stenen berging en achterom.

De kindvriendelijke woonomgeving met scholen, speeltuin, groot park met diverse sportvoorzieningen en supermarkt Lidl op loopafstand en de directe…

GOED ONDERHOUDEN - RUSTIGE en PRETTIGE WOONOMGEVING - RUIME en VRIJ GELEGEN TUIN

Wanneer je nieuwe (t)huis aan deze woonwensen moet voldoen, dan nodigen wij je graag uit om REIGERSKAMP 310 in MAARSSEN te komen bezichtigen.

Deze RUIME TOPGEVEL TUSSENWONING is gelegen aan een leuk grachtje, heeft een woonoppervlakte van circa 112m2 en beschikt onder meer over een lichte woonkamer met openslaande deuren, U-vormige keuken met inbouwapparatuur, 4 slaapkamers en vrij gelegen en modern aangelegde achtertuin met stenen berging en achterom.

De kindvriendelijke woonomgeving met scholen, speeltuin, groot park met diverse sportvoorzieningen en supermarkt Lidl op loopafstand en de directe nabijheid van het recreatiegebied en de natuurlijke omgeving rondom de Haarrijnse Plassen en Kasteel De Haar maken het plaatje van dit fijne woonhuis compleet.

Indeling:

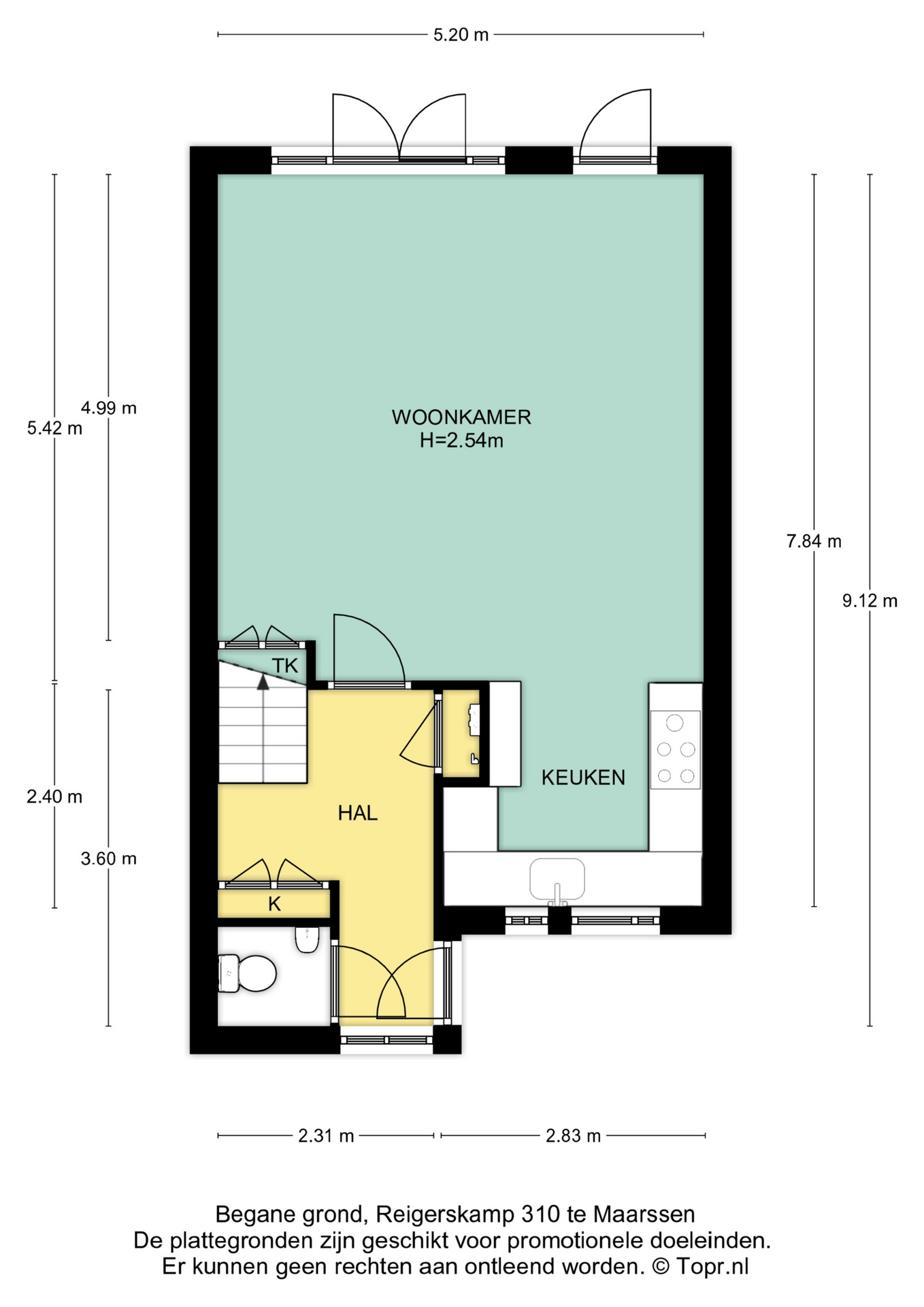
Begane grond:
Hal met PVC-vloer met vloerverwarming en spuitwerkwanden, toiletruimte met closet en fonteintje, meterkast, garderobekast en trapopgang.

De tuingerichte woonkamer is heerlijk licht door de openslaande deuren en tuindeur en is afgewerkt met stijlvolle PVC-vloer met vloerverwarming en glad gestucte wanden.

De keuken ligt aan de voorzijde van de woning en is voorzien van een U-vormig keukenblok met composiet blad, veel werk- en kastruimte en inbouwapparatuur: 5-pits gaskookplaat, RVS-afzuigkap, vaatwasser, koelkast, combimagnetron en plintboiler.

1e Verdieping:
Overloop met laminaatvloer, spuitwerkwanden en trapopgang.

De 1e verdieping beschikt over drie ruime slaapkamers, die alle zijn voorzien van gestucte wanden en rechte gevels (geen ruimteverlies) met houten kozijnen met dubbele beglazing.

De royale badkamer is inpandig vergroot, geheel betegeld en voorzien van een tweepersoons-ligbad met thermostaatkraan, inloopdouche met glazen deur met regen-/handdouche en thermostaatkraan, dubbele wastafel, hangend closet, designradiator en verlaagd plafond met spots.

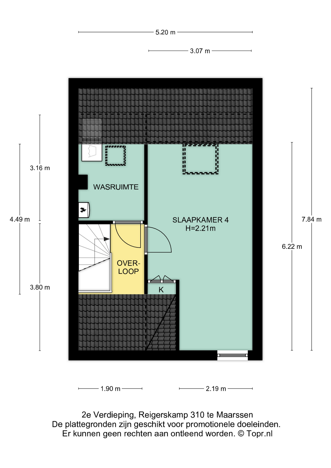
2e Verdieping:
Via een vaste trap is de voorzolder bereikbaar, die is voorzien van een laminaatvloer, mechanische ventilatie-unit en een kleine bergvliering. De wasmachine- en drogeraansluiting en Vaillant VHR combiketel bevinden zich in een aparte was-/cv-kamer die tevens is voorzien van een Velux-raam.

Op deze verdieping is tevens de vierde slaapkamer te vinden. Deze kamer is door de topgevel aan de voorzijde extra ruim en speels ingedeeld en is voorzien van een laminaatvloer, glad gestucte wanden, hoog plafond, Velux-raam en bergruimte achter de knieschotten met schuifdeuren.

Tuin:
De voortuin is verzorgd aangelegd en gelegen aan een autovrij wandelpad en leuk grachtje.

De vrij gelegen en ruim bemeten achtertuin is modern aangelegd met sierbestrating, border en nieuwe schuttingen. De tuin beschikt over een stenen berging en een houten fietsenberging, buitenverlichting, elektra, zonwering en achterom naar het achtergelegen parkeerhofje.

Bijzonderheden:
- Bouwjaar 1980;
- Woonoppervlakte circa 112m2, inhoud circa 377m3;
- De woning is nagenoeg geheel voorzien van dubbele beglazing;
- Vaillant VHR Solide combiketel uit 2008;
- Meterkast met 6 groepen, kookgroep, aardlekschakelaar en slimme meters;
- Er is een rookkanaal aanwezig;
- Schuttingen in de achtertuin en de dakgoot aan de achterzijde zijn recent vernieuwd;
- Op steenworp afstand gelegen van het grote park met kinderboerderij en sportvoorzieningen.

Lees verder

Kenmerken

  • Vraagprijs € 400.000,- k.k.
  • Aanvaarding In overleg
  • Type Tussenwoning
  • Bouwjaar 1980
  • Woonoppervlakte ca. 112 m2
  • Externe bergruimte ca. 5 m2
  • Slaapkamers 4
  • Inhoud ca. 377 m3
  • Perceeloppervlakte ca. 123 m2
  • Ligging tuin West
  • Energielabel C
  • Isolatie Dakisolatie, muurisolatie, vloerisolatie, gedeeltelijk dubbel glas
  • Verwarming Cv ketel
  • C.v.-ketel bouwjaar 2008
  • Voorzieningen Mechanische ventilatie, tv kabel, buitenzonwering, rookkanaal, dakraam, natuurlijke ventilatie
  • Parkeerfaciliteiten Openbaar parkeren
  • Garage Geen garage
Meer kenmerken

In de buurt

Reigerskamp 310 • 3607 HS • Maarssen

      De buurt

      Burgerlijke staat in wijk
      Gehuwd
      Ongehuwd
      Gescheiden
      Verweduwd
      • Gehuwd (44.18%)
      • Ongehuwd (46.79%)
      • Gescheiden (7.36%)
      • Verweduwd (1.66%)
      Leeftijd in wijk
      0 - 15 jaar
      15 - 25 jaar
      25-45 jaar
      45 - 65 jaar
      65+ jaar
      • 0 - 15 jaar (17.22%)
      • 15 - 25 jaar (11.08%)
      • 25 - 45 jaar (27.12%)
      • 45 - 65 jaar (34.43%)
      • 65+ jaar (10.14%)
      Geslacht
      • Mannen (50.47%)
      • Vrouwen (49.53%)
      Gezinnen met kinderen
      0 - 15 jaar
      15 - 25 jaar
      25-45 jaar
      • Met kinderen (44.44%)
      • Zonder kinderen (31.58%)
      • Éénpersoons huishoudens (23.98%)
      Woningen koop / huur
      • Koop (94.00%)
      • Huur (6.00%)
      Aantal inwoners:

      2120

      Schaduwwijzer

      Media

      Plattegronden

      Ander aanbod