Klifrakplantsoen 208, Utrecht | Beumer

Klifrakplantsoen 208

3544 RC, Utrecht

Deze gezinswoning kent een speelse indeling, die zorgt voor veel privacy en een optimaal ruimtegebruik. De living met open keuken is gelegen op de eerste verdieping, en biedt zodoende een fraai uitzicht, evenals veel privacy doordat voorbijgangers niet binnen kunnen kijken.

  • 109 m2
  • 82 m2
  • Label A
  • 4 kamer(s)

€ 439.000,- k.k. Bereken maandlasten

Bereken maandlasten
Heb je een hypotheek nodig?

Omschrijving

Deze gezinswoning kent een speelse indeling, die zorgt voor veel privacy en een optimaal ruimtegebruik. De living met open keuken is gelegen op de eerste verdieping, en biedt zodoende een fraai uitzicht, evenals veel privacy doordat voorbijgangers niet binnen kunnen kijken. Op de begane grond tref je een grote slaap- of werkkamer, badkamer en riante berging, en op de tweede verdieping bevinden zich twee slaapkamers, een berging en de tweede badkamer. Deze indeling maakt dat de vertrekken op de begane grond goed kunnen worden ingezet als praktijk- of werkruimte, waarbij cliënten en relaties niet door de privévertrekken hoeven. De voortuin…

Deze gezinswoning kent een speelse indeling, die zorgt voor veel privacy en een optimaal ruimtegebruik. De living met open keuken is gelegen op de eerste verdieping, en biedt zodoende een fraai uitzicht, evenals veel privacy doordat voorbijgangers niet binnen kunnen kijken. Op de begane grond tref je een grote slaap- of werkkamer, badkamer en riante berging, en op de tweede verdieping bevinden zich twee slaapkamers, een berging en de tweede badkamer. Deze indeling maakt dat de vertrekken op de begane grond goed kunnen worden ingezet als praktijk- of werkruimte, waarbij cliënten en relaties niet door de privévertrekken hoeven. De voortuin op het oosten is prettig ruim en grenst aan een doodlopend voetpad. Aan de achterzijde kijk je uit op een waterpartij met tegenoverliggend een groen speelveld.

Het Klifrakplantsoen is gesitueerd in een jonge, ruim opgezette en kindvriendelijke woonwijk, op korte afstand van de Dafne Schippersbrug en op wandelafstand van kinderopvang, scholen en Winkelcentrum Parkwijk. Het nabijgelegen Maximapark is de trots van Leidsche Rijn. Je vindt hier o.a. sportvoorzieningen, Castellum Hoge Woerd, Theater Castellum, speeltuinen, een vlindertuin en een Japanse theetuin. Het park wordt omzoomd door ‘Het Lint’, een verhard pad van maar liefst 8 kilometer lang dat perfect geschikt is voor skaten en andere buitenrecreatie. Uitvalswegen A2 en A12 liggen op enkele minuten rijden, zodat steden en natuurgebieden in de omgeving perfect bereikbaar zijn.

Indeling:

Begane grond:
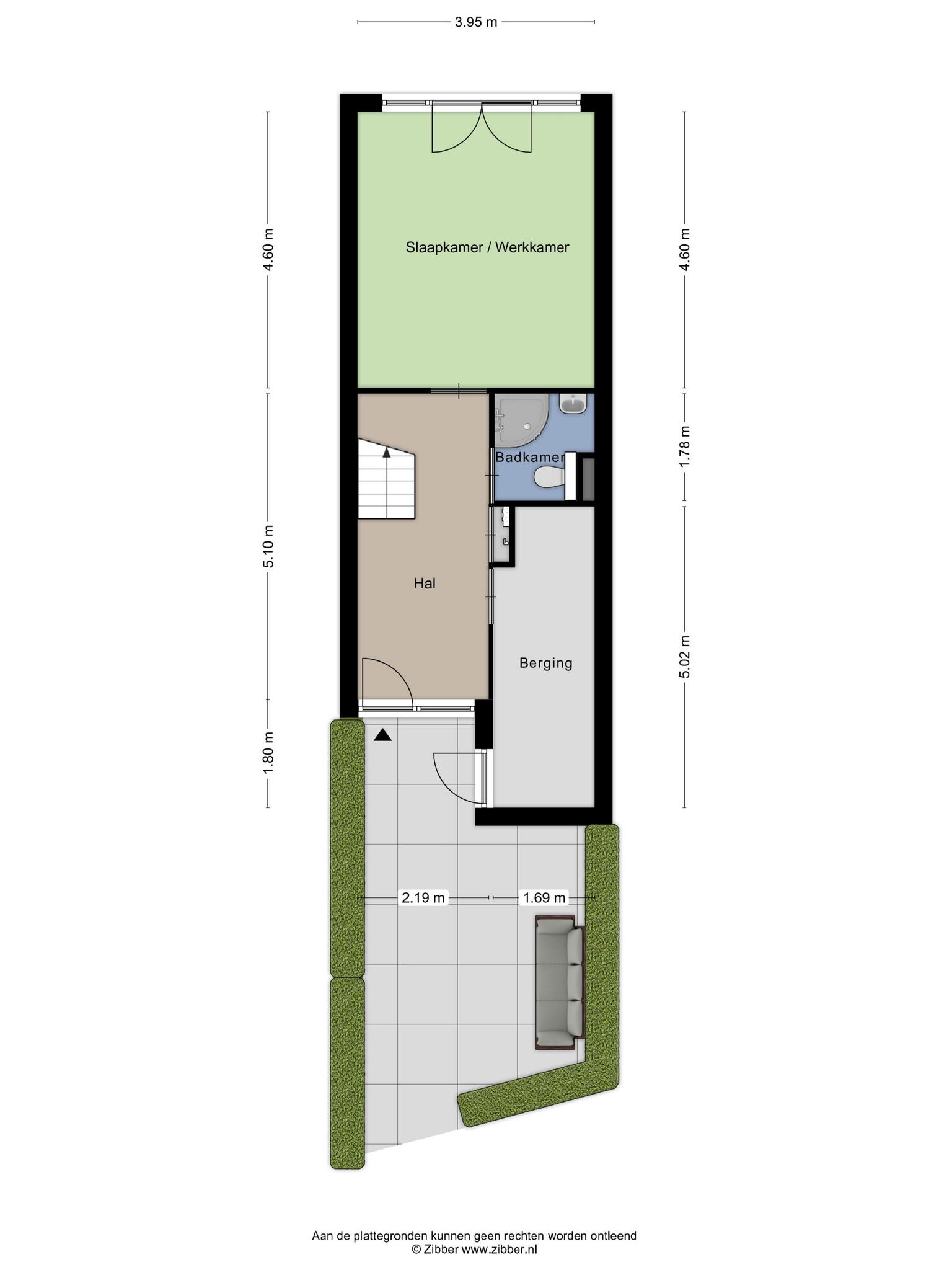
Je komt binnen via de ruime hal met garderobe, meterkast, trapopgang naar de eerste verdieping en toegang tot de grote berging, die tevens buitenom toegankelijk is. Aan de achterzijde bevindt zich een grote slaap- of werkkamer, voorzien van een lichte laminaatvloer, radiatoren en glas over de volledige breedte, waardoor zeer veel licht binnenvalt. Dubbele openslaande deuren maken dat het vertrek aanvoelt als een tuinkamer met zicht op het water. Tevens vind je op deze verdieping een betegelde badkamer met wandcloset, wastafel, spiegelkast en douchecabine.

1e verdieping:
Deze verdieping wordt volledig gevuld door de riante living en open woonkeuken. De living is gesitueerd aan de westzijde en is heerlijk licht, via een grote raampartij heb je zicht op het achtergelegen speelveld. De keuken aan de voorzijde is uitgerust met een recht keukenmeubel met lades en kasten in houtlook. Inbouwapparatuur betreft een inductiekookplaat, afzuigkap, combi-oven, vaatwasser en flexibele kraan, ingebouwde spots zorgen voor prettig werklicht en er is meer dan voldoende ruimte voor een vrijstaande koelkast, eettafel et cetera.

2e verdieping:
De overloop geeft toegang tot twee ruime slaapkamers, elk voorzien van een mooie houten vloer, strak afgewerkt wanden, grote raampartij, radiator en bovenlicht. Ook deze verdieping biedt plaats aan een badkamer, deze is volledig betegeld en ingericht middels een wandcloset, badkamermeubel met lades, wastafel en spiegelkast en een heerlijk ligbad met hand- en regendouche. Grenzend aan de badkamer bevindt zich een berging met witgoedaansluitingen.

Buiten:
De voortuin op het oosten is volledig bestraat en zodoende onderhoudsarm. De buitenruimte wordt omzoomd door een groene heg, die zorgt voor de nodige beschutting. Vanuit de voortuin heb je tevens toegang tot de berging. Tevens is er een privé parkeerplaats aanwezig op het naastgelegen parkeerhof.

Bijzonderheden:
• Woonoppervlakte: 109 m²
• Inhoud: 417 m³
• Bouwjaar: 1999-2000
• Ruime gezinswoning
• 3 slaapkamers
• Twee badkamers waarvan een met ligbad
• Speels ingedeeld
• Living en keuken op de 1e verdieping
• Voortuin op het oosten
• Achterzijde grenzend aan een waterpartij en groen
• Veel inpandige bergruimte
• Privé parkeerplaats
• Intrekken zonder klussen

Oplevering: voorkeur medio juli

Interesse in deze woning? Kom gerust eens langs met je aankoopmakelaar!

Lees verder

Kenmerken

  • Vraagprijs € 439.000,- k.k.
  • Aanvaarding In overleg
  • Type Tussenwoning
  • Bouwjaar 2000
  • Woonoppervlakte ca. 109 m2
  • Overige inpandige ruimte ca. 9 m2
  • Slaapkamers 3
  • Inhoud ca. 416 m3
  • Perceeloppervlakte ca. 82 m2
  • Ligging tuin Oost
  • Energielabel A
  • Isolatie Dakisolatie, muurisolatie, vloerisolatie, dubbel glas, volledig geisoleerd
  • Verwarming Stadsverwarming
  • Voorzieningen Mechanische ventilatie, tv kabel, buitenzonwering, natuurlijke ventilatie
  • Parkeerfaciliteiten Op eigen terrein
  • Garage Parkeerplaats, geen garage
Meer kenmerken

In de buurt

Klifrakplantsoen 208 • 3544 RC • Utrecht

      De buurt

      Burgerlijke staat in wijk
      Gehuwd
      Ongehuwd
      Gescheiden
      Verweduwd
      • Gehuwd (35.67%)
      • Ongehuwd (55.38%)
      • Gescheiden (6.46%)
      • Verweduwd (2.49%)
      Leeftijd in wijk
      0 - 15 jaar
      15 - 25 jaar
      25-45 jaar
      45 - 65 jaar
      65+ jaar
      • 0 - 15 jaar (22.08%)
      • 15 - 25 jaar (8.83%)
      • 25 - 45 jaar (30.12%)
      • 45 - 65 jaar (27.97%)
      • 65+ jaar (10.99%)
      Geslacht
      • Mannen (50.11%)
      • Vrouwen (49.89%)
      Gezinnen met kinderen
      0 - 15 jaar
      15 - 25 jaar
      25-45 jaar
      • Met kinderen (40.59%)
      • Zonder kinderen (27.69%)
      • Éénpersoons huishoudens (31.72%)
      Woningen koop / huur
      • Koop (63.27%)
      • Huur (36.73%)
      Aantal inwoners:

      4400

      Schaduwwijzer

      Media

      Plattegronden

      Plattegrond Eerste verdieping

      Ander aanbod