J. Homan van der Heideplein 8, Maarssen | Beumer

J. Homan van der Heideplein 8

3604 DK, Maarssen

Royaal bemeten en heerlijk licht 4-kamer appartement met ruim balkon en prachtig vrij uitzicht over de binnengracht van Op Buuren. Dat is wat dit modern afgewerkte appartement gelegen aan de J. Homan van der Heideplein 8 in Maarssen u te bieden heeft. Het

  • 108 m2
  • Label A
  • 4 kamer(s)

€ 525.000,- k.k. Bereken maandlasten

Bereken maandlasten
Heb je een hypotheek nodig?

Omschrijving

Royaal bemeten en heerlijk licht 4-kamer appartement met ruim balkon en prachtig vrij uitzicht over de binnengracht van Op Buuren.

Dat is wat dit modern afgewerkte appartement gelegen aan de J. Homan van der Heideplein 8 in Maarssen u te bieden heeft.

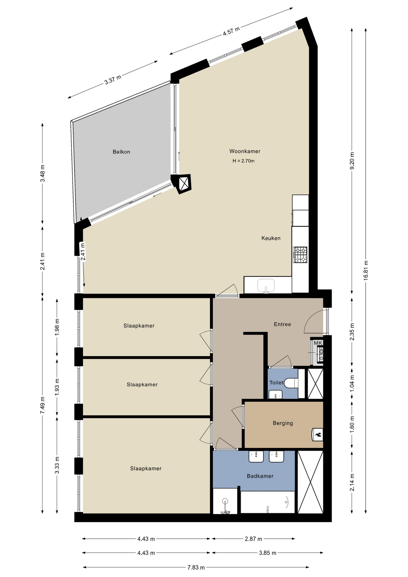
Het betreft een ruim appartement met een woonoppervlakte van 108m2 dat is gesitueerd op de eerste verdieping van het statige appartementengebouw Nieuw Vechtevoort in de fraaie wijk Op Buuren.

Naast een riante woonkamer met grote raampartijen en vrij zicht op de prachtige woonomgeving en de Proostwetering, de modern uitgevoerde keuken, -badkamer -en toiletruimte, de drie slaapkamers en het…

Royaal bemeten en heerlijk licht 4-kamer appartement met ruim balkon en prachtig vrij uitzicht over de binnengracht van Op Buuren.

Dat is wat dit modern afgewerkte appartement gelegen aan de J. Homan van der Heideplein 8 in Maarssen u te bieden heeft.

Het betreft een ruim appartement met een woonoppervlakte van 108m2 dat is gesitueerd op de eerste verdieping van het statige appartementengebouw Nieuw Vechtevoort in de fraaie wijk Op Buuren.

Naast een riante woonkamer met grote raampartijen en vrij zicht op de prachtige woonomgeving en de Proostwetering, de modern uitgevoerde keuken, -badkamer -en toiletruimte, de drie slaapkamers en het ruime balkon van circa 12m2 beschikt het appartement over een eigen parkeerplaats en een separate berging.

Kortom een stijlvol appartement in de wijk Op Buuren waar je een combinatie vindt van hedendaags wonen aan het water met sfeervolle, karakteristieke gevels. Zodra de zon schijnt voelt het hier als vakantie en wordt er volop gevaren op de binnengracht en de rivier De Vecht. In de wijk tref je onder meer een kapper, medische voorzieningen en diverse sportvoorzieningen aan terwijl het oude dorpshart van Maarssen via de fietsbrug en langs de rivier de Vecht in 5 fietsminuten bereikbaar is. Ook Utrecht stad ligt op steenworp (fiets)afstand, diverse uitvalswegen en openbaar vervoer zijn eenvoudig te bereiken.

Indeling:

Centrale entree:
De hoofdentree van het appartementengebouw is voorzien van een videofoon en brievenbussen. De ruime centrale hal biedt via de lift en het trappenhuis toegang tot de woonverdiepingen, alsmede de individuele bergingen.

Appartement op de eerste verdieping:
Hal met videofoon en toegang tot alle vertrekken; meterkast, modern afgewerkte toiletruimte met hangend closet en fonteintje. Tevens is hier de grote inpandige berging die is voorzien van de CV-opstelling, wasmachine- en drogeraansluiting en mechanische ventilatie-unit.

De royale living is heerlijk licht door de drie grote raampartijen welke voorzien zijn van openslaande deuren en Franse balkons en de twee grote schuifpuien met toegang tot het balkon van circa 12m2. Het uitzicht over de Proostwetering vanuit zowel de woonkamer als vanaf het balkon is onovertroffen.

De woonkamer is voorzien van een open keuken, die is voorzien van een groot en modern keukenblok met granieten aanrechtblad en Siemens inbouwapparatuur, te weten; koel-/vriescombinatie, gaskookplaat, combimagnetron, RVS-recirculatiekap en vaatwasser. Het gehele appartement is voorzien van een laminaat vloer.

Het appartement beschikt over drie slaapkamers, één van circa 15m2 en twee van circa 9m2.

De grote badkamer is modern uitgevoerd, volledig betegeld en voorzien van een ligbad met thermostaatkraan, een douchecabine met thermostaatkraan alsmede twee wastafels en designradiator.

Oplevering in overleg, kan snel!

Bijzonderheden:
- Bouwjaar 2008;
- Woonoppervlakte circa 108m2;
- Ruim balkon van circa 12m2 ;
- Inhoud circa 364m3;
- Het appartement wordt aangeboden inclusief één parkeerplaats op het naastgelegen parkeerhof én een eigen
berging;
- De servicekosten bedragen circa € 334,37 per maand voor het appartement, € 13,18 per maand voor de berging en
€ 58,16 voor de parkeerplaats.

Aanvullende bepalingen:
- Het object wordt geleverd in de staat waarin het zich op dit moment bevindt, wat onder andere inhoudt dat het
object wordt opgeleverd in de huidige gebruikte, bouwkundige, technische en milieukundige staat;
- Verkoper heeft zelf nooit gebruik gemaakt van de woning, om deze reden is er geen vragenlijst en lijst van zaken
aan de documentatie toegevoegd. Ook is er een niet bewoningsclausule van toepassing;
- CDD-onderzoek is van toepassing;
- Koperselectie onder voorbehoud van goedkeuring directie Vesteda Investment Management B.V.;
- De koopovereenkomst komt pas tot stand na uitdrukkelijke toestemming van de directie van Vesteda Investment
Management B.V. welke blijkt uit het ondertekenen van de koopovereenkomst.
- De notariële eigendomsoverdracht van dit object dient plaats te vinden bij de daartoe aangewezen projectnotaris:
Drost en Juten Notarissen te ‘s-Gravenhage;
- Indien er voordeel overdrachtsbelasting van toepassing is komt deze ten gunste van verkoper.

Lees verder

Kenmerken

  • Vraagprijs € 525.000,- k.k.
  • Aanvaarding In overleg
  • Bouwjaar 2008
  • Woonoppervlakte ca. 108 m2
  • Oppervlakte gebouwgebonden ca. 12 m2
  • Externe bergruimte ca. 5 m2
  • Slaapkamers 3
  • Inhoud ca. 364 m3
  • Energielabel A
  • Isolatie Volledig geisoleerd
  • Verwarming Cv ketel
  • C.v.-ketel bouwjaar 2008
  • Voorzieningen Mechanische ventilatie, tv kabel, lift
  • Parkeerfaciliteiten Op afgesloten terrein
  • Garage Parkeerkelder
Meer kenmerken

In de buurt

J. Homan van der Heideplein 8 • 3604 DK • Maarssen

      De buurt

      Leeftijd in wijk
      0 - 15 jaar
      15 - 25 jaar
      25-45 jaar
      45 - 65 jaar
      65+ jaar
      • 0 - 15 jaar (23.58%)
      • 15 - 25 jaar (6.35%)
      • 25 - 45 jaar (36.73%)
      • 45 - 65 jaar (22.22%)
      • 65+ jaar (11.11%)
      Geslacht
      • Mannen (51.14%)
      • Vrouwen (48.86%)
      Gezinnen met kinderen
      0 - 15 jaar
      15 - 25 jaar
      25-45 jaar
      • Met kinderen (40.66%)
      • Zonder kinderen (31.87%)
      • Éénpersoons huishoudens (27.47%)
      Aantal inwoners:

      2190

      Schaduwwijzer

      Media

      Plattegronden

      Ander aanbod