Hardenbroek 221, Vleuten | Beumer

Hardenbroek 221

3452 NH, Vleuten

Licht, ruimte, luxe en comfort: deze geweldige geschakelde woning biedt het allemaal! Het betreft een royale gezinswoning, die met vier slaapkamers en mogelijkheid voor een vijfde alle ruimte biedt voor een gezin met opgroeiende kinderen. De woning is perfect

  • 172 m2
  • 260 m2
  • Label A
  • 5 kamer(s)

€ 844.000,- k.k. Bereken maandlasten

Bereken maandlasten
Heb je een hypotheek nodig?

Omschrijving

Licht, ruimte, luxe en comfort: deze geweldige geschakelde woning biedt het allemaal! Het betreft een royale gezinswoning, die met vier slaapkamers en mogelijkheid voor een vijfde alle ruimte biedt voor een gezin met opgroeiende kinderen.

De woning is perfect afgewerkt en kan zonder klussen worden betrokken. O.a. natuurstenen vloeren met vloerverwarming op de begane grond, een uitbouw met lichtstraat aan de achterzijde (2020), een dakkapel (2019) en een luxe badkamer en keuken zorgen voor een groot wooncomfort. Bovendien is de woning voorzien van extra’s als een moderne schouw met gashaard én tv-meubel, elektrisch bedienbare zonneschermen/markiezen, waterontharder en vijftien zonnepanelen…

Licht, ruimte, luxe en comfort: deze geweldige geschakelde woning biedt het allemaal! Het betreft een royale gezinswoning, die met vier slaapkamers en mogelijkheid voor een vijfde alle ruimte biedt voor een gezin met opgroeiende kinderen.

De woning is perfect afgewerkt en kan zonder klussen worden betrokken. O.a. natuurstenen vloeren met vloerverwarming op de begane grond, een uitbouw met lichtstraat aan de achterzijde (2020), een dakkapel (2019) en een luxe badkamer en keuken zorgen voor een groot wooncomfort. Bovendien is de woning voorzien van extra’s als een moderne schouw met gashaard én tv-meubel, elektrisch bedienbare zonneschermen/markiezen, waterontharder en vijftien zonnepanelen (ca. 4900 KWh per jaar). In 2019 werd het buitenschilderwerk geheel vernieuwd, en in 2020 werden keuken en living gestuct en is de woning opnieuw geschilderd. Bovendien beschik je over een grote tuin op het noordoosten, die werd vernieuwd in 2020. De tuin is onderhoudsarm en biedt plaats aan een schuur, berging en ruime garage.

Je woont op een bijzondere locatie aan de oostzijde van Vleuten, aan het populaire Maximapark met o.a. speelvoorzieningen, sportfaciliteiten, horeca, een vlinderhof en een Japanse theetuin. Op wandelafstand vind je winkelcentrum Vleuterweide, sportvelden, kinderopvang en scholen. De binnenstad van Utrecht is gemakkelijk bereikbaar per fiets en via de nabijgelegen A12 en A2 zijn omliggende steden snel bereikbaar.

Indeling:

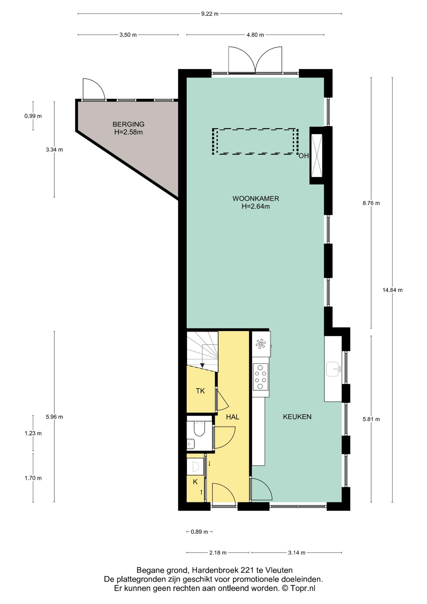
Begane grond:
Je komt binnen via de hal met garderobe, nette toiletruimte, trapkast, trapopgang naar de eerste verdieping en inbouwkast v.v. witgoedaansluitingen. Vervolgens bereik je de luxe woonkeuken. Deze is gesitueerd aan de voorzijde en is heerlijk licht door grote raampartijen aan twee zijden. De keuken biedt meer dan voldoende ruimte voor een grote eettafel en is uitgerust met een fraaie inbouw-servieskast in authentiek landelijke stijl. Je vindt hier twee keukenmeubels in parallelle opstelling, voorzien van dikke stenen werkbladen. Apparatuur betreft een zespits gasfornuis met meervoudige oven, Quooker, 7 L boiler, afzuigkap, vaatwasser en Amerikaanse koel-/vriescombinatie. De living is gesitueerd aan de achterzijde, en biedt zodoende veel privacy. Net als de keuken is dit vertrek afgewerkt met een hardstenen vloer v.v. vloerverwarming en grote raampartijen aan twee zijden. In de uitbouw is een lichtstraat van 1x3 meter geplaatst, die is voorzien van screens. Ook vind je hier een moderne schouw met gashaard en tv-meubel. Dubbele openslaande deuren geven toegang tot de tuin en spotverlichting zorgt voor veel sfeer.

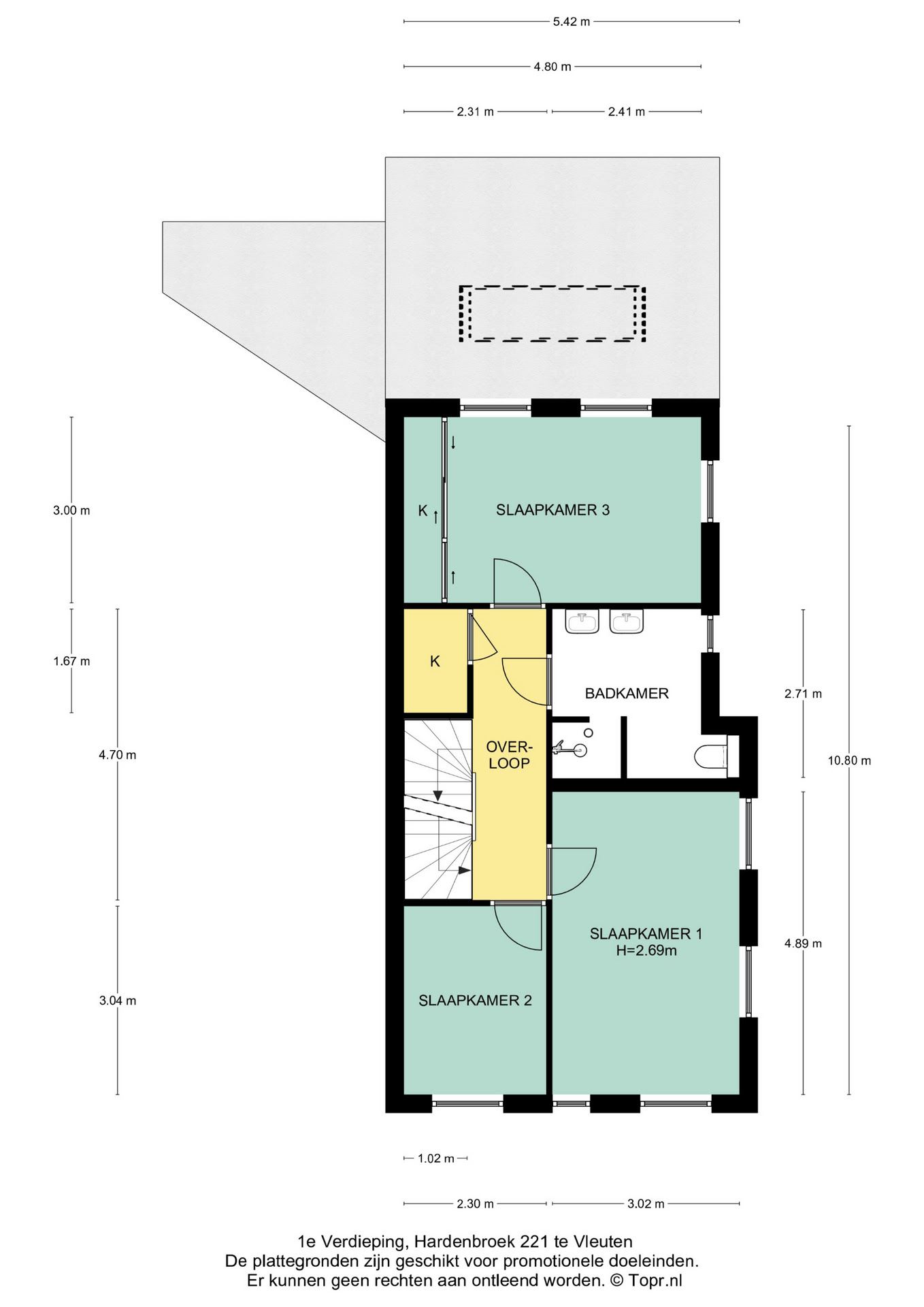
1e verdieping:
De overloop met grote inbouwkast geeft toegang tot drie riante slaapkamers. Allen zijn voorzien van een mooie vloer in houtlook, strak afgewerkte wanden, radiator en grote raampartijen met glasroeden. De grote slaapkamer aan de achterzijde is uitgerust met een kastenwand over de volledige breedte. De badkamer is geheel betegeld en voorzien van een raampartij en designradiator. Je vindt hier twee wastafels, spiegelkasten met verlichting, een wandcloset en een ruime inloopdouche.

2e verdieping:
De voorzolder met nette vloerbedekking is opvallend ruim, en biedt plaats aan inbouwkasten met witgoedaansluitingen, mv- en cv-installatie. Het vertrek is zodanig ruim en licht dat gemakkelijk een extra slaap-, werk- of logeerkamer kan worden gerealiseerd. Aangrenzend bevindt zich de vierde slaapkamer. Deze is eveneens voorzien van vloerbedekking en voorzien van fraaie wandafwerking, een radiator, raampartij en dakkapel.

Buiten:
De tuin is gelegen aan noordoostzijde, zodat je er al vroeg op de dag lekker in de zon kunt zitten. In 2020 werd de buitenruimte opnieuw aangelegd, waarbij deze met grote terrastegels onderhoudsvrij is gemaakt. Er is ruimte voor een groot terras en op de oprit, voorzien van een afsluitbaar hek, is parkeergelegenheid voor meerdere auto’s. In de tuin vind je twee bergingen en een riante garage. Via het pad naast de woning kun je doorlopen naar de voorzijde.

Bijzonderheden:
• Woonoppervlakte: 172.1 m² Overige inpandige ruimte: 7.6 m² Externe bergruimte: 29.8 m²
• Bouwjaar: 2008
• Vier slaapkamers, ruimte voor een vijfde
• Uitbouw met lichtstraat 1x3 m, voorzien van screens
• Living met moderne schouw en gashaard
• Elektrisch bedienbare markiezen (uitval 3,5m) rond de woning
• 15 PV panelen (ca 4900 KWh per jaar)
• Cv-ketel (Remeha Calenta CW6) vervangen in 2020
• Tuin volledig vernieuwd en opnieuw bestraat in 2020
• Schilderwerk buiten totale woning uitgevoerd 2019
• Schilderwerk binnen en stucwerk (woonkamer/keuken) uitgevoerd in 2020
• Unieke ligging t.o.v. Maximapark

Interesse in deze woning? Kom gerust eens langs met je aankoopmakelaar!

Lees verder

Kenmerken

  • Vraagprijs € 844.000,- k.k.
  • Aanvaarding In overleg
  • Type Geschakelde woning
  • Bouwjaar 2008
  • Woonoppervlakte ca. 172 m2
  • Overige inpandige ruimte ca. 8 m2
  • Externe bergruimte ca. 30 m2
  • Slaapkamers 4
  • Inhoud ca. 600 m3
  • Perceeloppervlakte ca. 260 m2
  • Ligging tuin Noordoost
  • Energielabel A
  • Isolatie Dakisolatie, muurisolatie, vloerisolatie, dubbel glas, volledig geisoleerd, hr glas
  • Verwarming Cv ketel, vloerverwarming gedeeltelijk, gashaard
  • C.v.-ketel bouwjaar 2020
  • Voorzieningen Mechanische ventilatie, tv kabel, buitenzonwering, jacuzzi, dakraam, glasvezel kabel, zonnepanelen, natuurlijke ventilatie
  • Parkeerfaciliteiten Openbaar parkeren
  • Garage Vrijstaand steen
Meer kenmerken

In de buurt

Hardenbroek 221 • 3452 NH • Vleuten

      De buurt

      Burgerlijke staat in wijk
      Gehuwd
      Ongehuwd
      Gescheiden
      Verweduwd
      • Gehuwd (33.90%)
      • Ongehuwd (58.01%)
      • Gescheiden (6.08%)
      • Verweduwd (2.00%)
      Leeftijd in wijk
      0 - 15 jaar
      15 - 25 jaar
      25-45 jaar
      45 - 65 jaar
      65+ jaar
      • 0 - 15 jaar (29.30%)
      • 15 - 25 jaar (6.23%)
      • 25 - 45 jaar (39.61%)
      • 45 - 65 jaar (16.84%)
      • 65+ jaar (8.01%)
      Geslacht
      • Mannen (48.92%)
      • Vrouwen (51.08%)
      Gezinnen met kinderen
      0 - 15 jaar
      15 - 25 jaar
      25-45 jaar
      • Met kinderen (51.39%)
      • Zonder kinderen (24.40%)
      • Éénpersoons huishoudens (24.21%)
      Woningen koop / huur
      • Koop (61.00%)
      • Huur (39.00%)
      Aantal inwoners:

      6735

      Schaduwwijzer

      Media

      Plattegronden

      Ander aanbod