Duivenkamp 322, Maarssen | Beumer

Duivenkamp 322

3607 BA, Maarssen

Op zoek naar een ZEER RUIME en SPEELS INGEDEELDE TUSSENWONING met ROYALE en DIRECT AAN DE SINGEL GELEGEN ACHTERTUIN? Kom dan kijken bij deze woning aan DUIVENKAMP 322 in MAARSSEN! De ideale gezinswoning heeft maar liefst 7 slaapkamers op een woonoppervlakte

  • 131 m2
  • 212 m2
  • Label C
  • 8 kamer(s)

€ 369.500,- k.k. Bereken maandlasten

Bereken maandlasten
Heb je een hypotheek nodig?

Omschrijving

Op zoek naar een ZEER RUIME en SPEELS INGEDEELDE TUSSENWONING met ROYALE en DIRECT AAN DE SINGEL GELEGEN ACHTERTUIN?

Kom dan kijken bij deze woning aan DUIVENKAMP 322 in MAARSSEN!

De ideale gezinswoning heeft maar liefst 7 slaapkamers op een woonoppervlakte van 131m2 en verdeeld over drie woonlagen. Het huis beschikt daarnaast onder meer over een perceeloppervlakte van 212m2, 13 nieuwe zonnepanelen, moderne badkamer, ruime woonkamer en separate woonkeuken en een heerlijk ruime en vrij gelegen achtertuin met veranda aan het water.

De fijne ligging aan een rustig en kindvriendelijk woonerf in de populaire woonwijk met scholen, winkelcentrum,…

Op zoek naar een ZEER RUIME en SPEELS INGEDEELDE TUSSENWONING met ROYALE en DIRECT AAN DE SINGEL GELEGEN ACHTERTUIN?

Kom dan kijken bij deze woning aan DUIVENKAMP 322 in MAARSSEN!

De ideale gezinswoning heeft maar liefst 7 slaapkamers op een woonoppervlakte van 131m2 en verdeeld over drie woonlagen. Het huis beschikt daarnaast onder meer over een perceeloppervlakte van 212m2, 13 nieuwe zonnepanelen, moderne badkamer, ruime woonkamer en separate woonkeuken en een heerlijk ruime en vrij gelegen achtertuin met veranda aan het water.

De fijne ligging aan een rustig en kindvriendelijk woonerf in de populaire woonwijk met scholen, winkelcentrum, park, openbaar vervoer en uitvalswegen in de nabijheid maken het plaatje van deze woning compleet.

Indeling:

Begane grond:
Entree, hal met laminaatvloer en spuitwerkwanden, meterkast (2022 vernieuwd en uitgebreid), standaard afgewerkte toiletruimte, trapopgang en toegang tot de berging en de slaap- annex werkkamer.

De woonkamer is ruim van afmeting en heerlijk licht door de grote raampartijen. De kamer is voorzien van een laminaatvloer, gestucte wanden en een deur naar de tuin.

De living staat in halfopen verbinding met de ruime woonkeuken, die is voorzien van een standaard keukenblok met enige apparatuur en een deur naar de tuin.

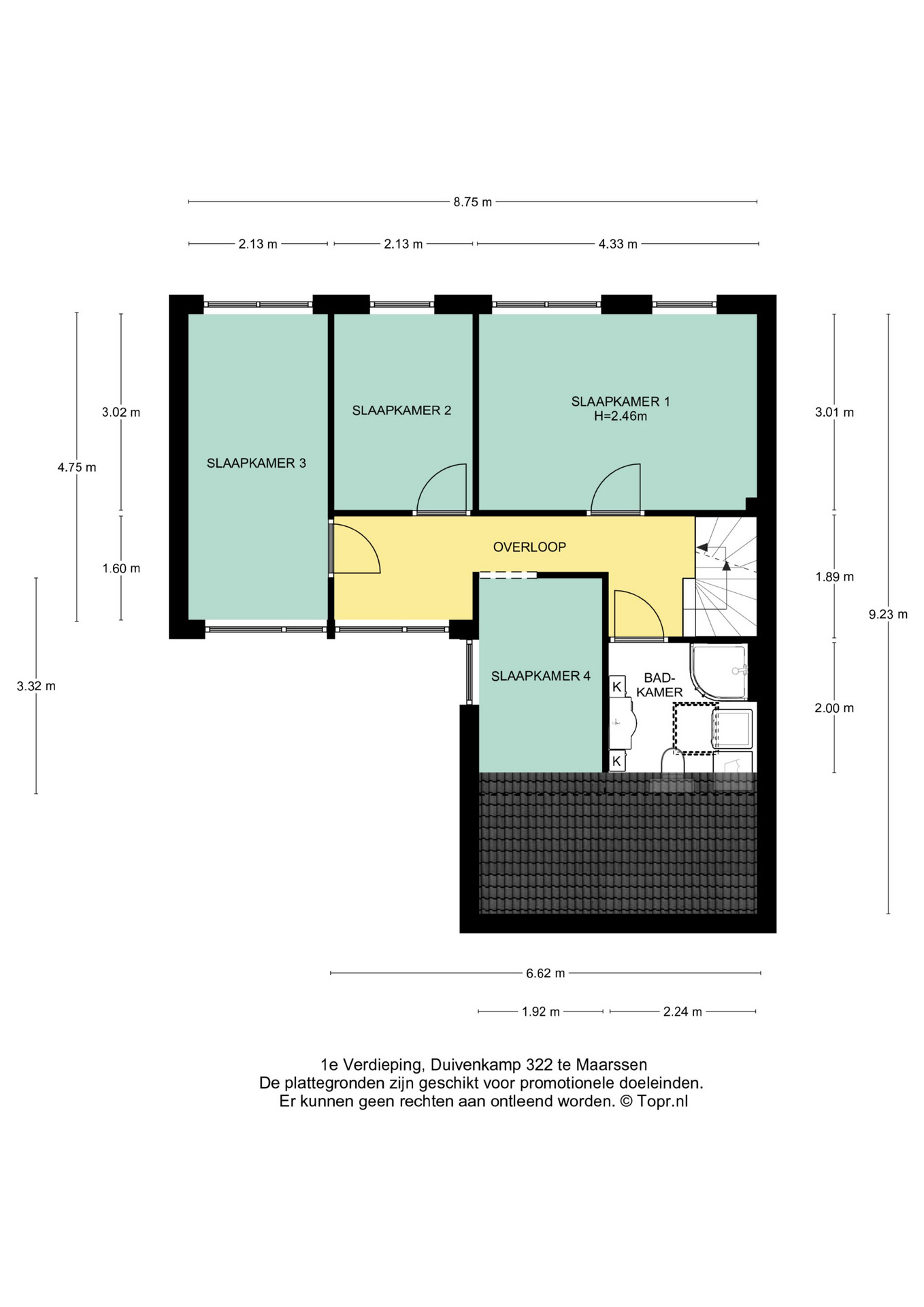
1e Verdieping:
Grote overloop met vloerbedekking en spuitwerkwanden en trapopgang.

De 1e verdieping beschikt over vier slaapkamers met afmetingen van respectievelijk 13m2, 10m2, 6,5m2 en 6m2.

De modern afgewerkte en geheel betegelde badkamer dateert uit 2018 en is voorzien van een douchecabine met thermostaatkraan, regendouche en handdouche, badmeubel met wastafel, hangend closet, designradiator, wasmachine -en drogeraansluiting en Velux-dakraam.

2e Verdieping:
Via een vaste trap is 2e verdieping toegankelijk, die thans in twee grote slaapkamers is verdeeld en elk beschikken over een Velux-dakraam en bergruimte achter de knieschotten.

Tuin:
De voortuin is verzorgd aangelegd en ligt aan een kindvriendelijk straatje met voldoende parkeerplaatsen op het parkeerplein.

De royale achtertuin heeft een afmeting van circa 11m x 9m, is direct gelegen aan de brede singel en heeft een vrij uitzicht. De tuin beschikt over diverse terrassen waarvan één aan het water en een leuke veranda. Door de gunstige ligging vind je hier altijd een lekker plekje in de zon of de schaduw.

Bijzonderheden:
- Bouwjaar 1977;
- Woonoppervlakte ca. 131m², inhoud ca. 483m³, perceeloppervlakte 212m²;
- Verrassende indeling en 7 slaapkamers;
- 13 zonnepanelen uit 2022;
- Remeha Avanta HR-combiketel van 2009;
- Aan de singel gelegen achtertuin met vrij uitzicht;
- Kindvriendelijke woonomgeving met vernieuwde speeltuinen in de wijk;
- Goede ligging nabij alle voorzieningen op loopafstand.

Lees verder

Kenmerken

  • Vraagprijs € 369.500,- k.k.
  • Aanvaarding In overleg
  • Type Tussenwoning
  • Bouwjaar 1977
  • Woonoppervlakte ca. 131 m2
  • Overige inpandige ruimte ca. 6 m2
  • Externe bergruimte ca. 7 m2
  • Slaapkamers 7
  • Inhoud ca. 483 m3
  • Perceeloppervlakte ca. 212 m2
  • Ligging tuin Noordoost
  • Energielabel C
  • Isolatie Dakisolatie, muurisolatie, gedeeltelijk dubbel glas
  • Verwarming Cv ketel
  • C.v.-ketel bouwjaar 2009
  • Voorzieningen Tv kabel, dakraam, zonnepanelen, natuurlijke ventilatie
  • Parkeerfaciliteiten Openbaar parkeren
  • Garage Geen garage
Meer kenmerken

In de buurt

Duivenkamp 322 • 3607 BA • Maarssen

      De buurt

      Burgerlijke staat in wijk
      Gehuwd
      Ongehuwd
      Gescheiden
      Verweduwd
      • Gehuwd (41.32%)
      • Ongehuwd (45.49%)
      • Gescheiden (8.79%)
      • Verweduwd (4.40%)
      Leeftijd in wijk
      0 - 15 jaar
      15 - 25 jaar
      25-45 jaar
      45 - 65 jaar
      65+ jaar
      • 0 - 15 jaar (18.78%)
      • 15 - 25 jaar (10.70%)
      • 25 - 45 jaar (26.86%)
      • 45 - 65 jaar (25.33%)
      • 65+ jaar (18.34%)
      Geslacht
      • Mannen (48.36%)
      • Vrouwen (51.64%)
      Gezinnen met kinderen
      0 - 15 jaar
      15 - 25 jaar
      25-45 jaar
      • Met kinderen (42.93%)
      • Zonder kinderen (29.32%)
      • Éénpersoons huishoudens (27.75%)
      Woningen koop / huur
      • Koop (44.00%)
      • Huur (56.00%)
      Aantal inwoners:

      2285

      Schaduwwijzer

      Media

      Plattegronden

      Ander aanbod