Ds Pasmastraat 17, Bunnik | Beumer

Ds Pasmastraat 17

3981 CW, Bunnik

Op zoek naar een UITGEBOUWDE HOEKWONING met oprit, aanbouw, overkapping, royale tuin (300 m2 perceeloppervlakte) en grote dakkapel op goede locatie in Bunnik? Wees welkom bij deze fijne woning voorzien van 3 grote slaapkamers met mogelijkheid tot het realiseren van een

  • 160 m2
  • 300 m2
  • Label B
  • 5 kamer(s)

€ 750.000,- k.k. Bereken maandlasten

Bereken maandlasten
Heb je een hypotheek nodig?

Omschrijving

Op zoek naar een UITGEBOUWDE HOEKWONING met oprit, aanbouw, overkapping, royale tuin (300 m2 perceeloppervlakte) en grote dakkapel op goede locatie in Bunnik?

Wees welkom bij deze fijne woning voorzien van 3 grote slaapkamers met mogelijkheid tot het realiseren van een 4e slaapkamer. 14 zonnepanelen en uitgebouwde leefkeuken.
De huidige eigenaren hebben de woning erg goed onderhouden en op diverse punten gemoderniseerd.
Kortom, echt een bezichtiging waard!

Begane grond:
Voortuin/ oprit voor twee auto's. Entree, hal, trapkast met vernieuwde meterkast, toilet voorzien van fontein, toegang tot woonkamer met plavuizen en erg fijne uitbouw. Aan de voorzijde…

Op zoek naar een UITGEBOUWDE HOEKWONING met oprit, aanbouw, overkapping, royale tuin (300 m2 perceeloppervlakte) en grote dakkapel op goede locatie in Bunnik?

Wees welkom bij deze fijne woning voorzien van 3 grote slaapkamers met mogelijkheid tot het realiseren van een 4e slaapkamer. 14 zonnepanelen en uitgebouwde leefkeuken.
De huidige eigenaren hebben de woning erg goed onderhouden en op diverse punten gemoderniseerd.
Kortom, echt een bezichtiging waard!

Begane grond:
Voortuin/ oprit voor twee auto's. Entree, hal, trapkast met vernieuwde meterkast, toilet voorzien van fontein, toegang tot woonkamer met plavuizen en erg fijne uitbouw. Aan de voorzijde is er een erker aanwezig. Er is een aansluiting voor een houtkachel aanwezig. Er is veel daglichttoetreding aanwezig. Vanuit de woonkamer is de keuken te bereiken. De keuken is voorzien van een keukenblok in lengte richting voorzien van alle denkbare inbouwapparaten en een heerlijke grote diner ruimte, waar een grote eettafel staat. Vanuit de keuken is de achtertuin te bereiken. Ook is de tuin vanuit de woonkamer middels openslaande deuren bereikbaar. De tuin is gelegen op het Oosten.

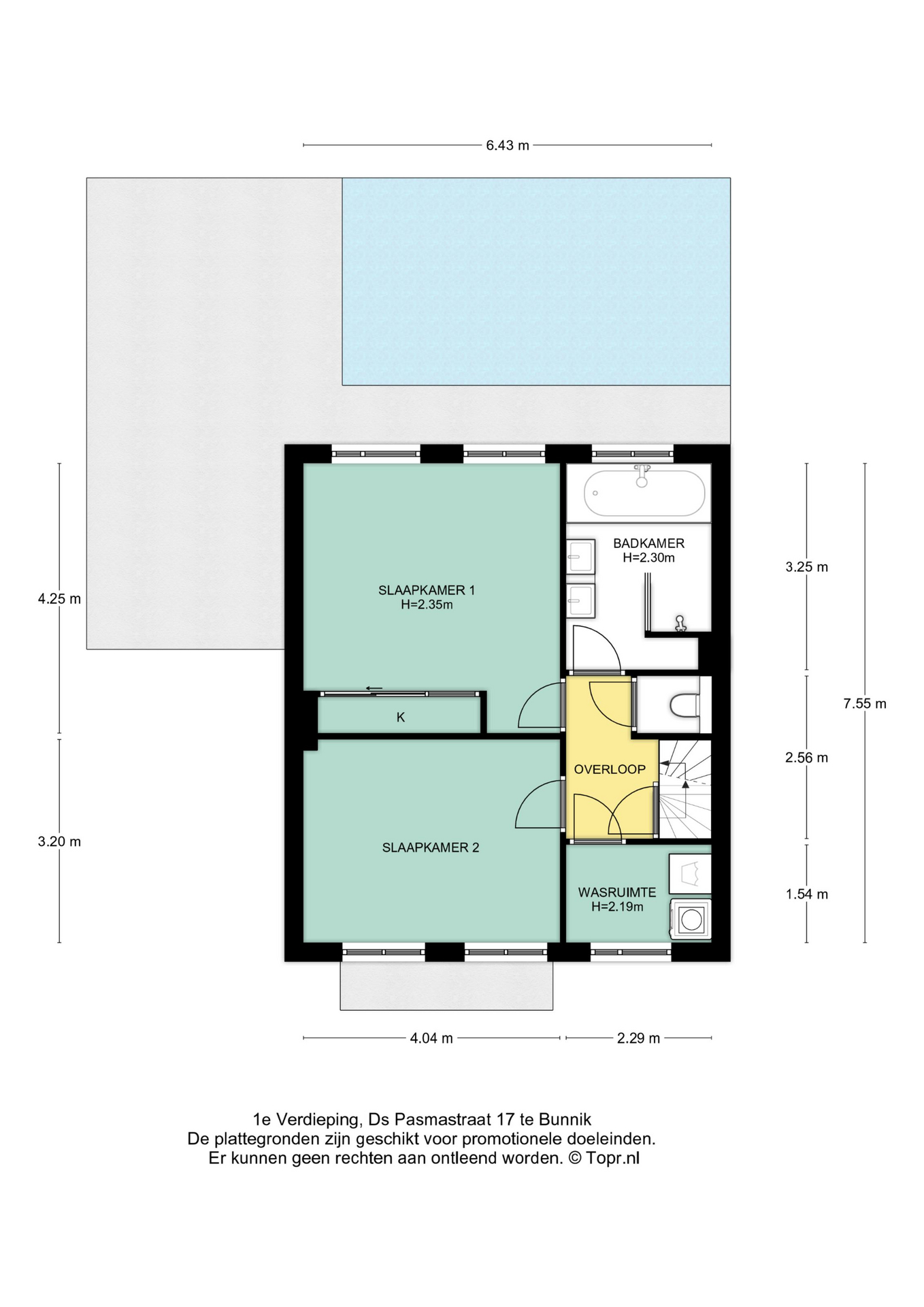
Eerste verdieping:
Overloop, separaat toilet, eerste slaapkamer aan de voorzijde, tweede slaapkamer aan de achterzijde met drie inbouwkasten, derde (was)kamer aan de voorzijde van het woonhuis met twee inbouwkasten. De badkamer bevindt zich aan de achterzijde van het woonhuis en deze is voorzien van een flinke douchegelegenheid met twee wastafels en een groot bad.

Tweede verdieping:
Forse zolderverdieping vergroot middels een dakkapel (geplaatst in 2021 en voorzien van HR+++ glas en elektrische screens) aan de achterzijde.
Overloop met toegang tot berging waarin een aansluiting voor een wastafel aanwezig is. Eerste slaapkamer aan de achterzijde, tweede kamer over de gehele diepte van de zolder met twee leuke zijramen en dakkapel. De vliering is bereikbaar via een vlizotrap.

Bijzonderheden:
- Plat dak circa 3 jaar geleden vernieuwd;
- Buitenschilderwerk uitgevoerd in 2020;
- Dak- Muur- vloerisolatie en dubbel glas;
- CV ketel Atag Combi 2013;
- Vloerverwarming woonkamer en keuken
- 14 Zonnepanelen van november 2019;
- Huis is grotendeels voorzien van kunststof kozijnen;
- Energielabel B.

Locatie:
Zeer centraal gelegen op korte loopafstand van scholen, winkels, het treinstation van Bunnik (7 minuten naar Utrecht CS) en bushalte. Het Sciencepark met UMC Ziekenhuis en Universiteit Utrecht bevinden zich op korte fietsafstand (12 min fietsen), 10 minuten extra en je bent in Utrecht hartje centrum. Op loopafstand is de Kromme Rijn met zijn wandelgebied bereikbaar met aansluiting naar Fort Rhijnauwen en Amelisweerd.

Lees verder

Kenmerken

  • Vraagprijs € 750.000,- k.k.
  • Aanvaarding In overleg
  • Type Hoekwoning
  • Bouwjaar 1963
  • Woonoppervlakte ca. 160 m2
  • Oppervlakte gebouwgebonden ca. 18 m2
  • Slaapkamers 3
  • Inhoud ca. 539 m3
  • Perceeloppervlakte ca. 300 m2
  • Ligging tuin Noordoost
  • Energielabel B
  • Isolatie Dakisolatie, muurisolatie, vloerisolatie, dubbel glas
  • Verwarming Cv ketel, vloerverwarming gedeeltelijk
  • C.v.-ketel bouwjaar 2013
  • Voorzieningen Mechanische ventilatie, tv kabel, rookkanaal, dakraam, zonnepanelen
  • Parkeerfaciliteiten Op eigen terrein
  • Garage Geen garage
Meer kenmerken

In de buurt

Ds Pasmastraat 17 • 3981 CW • Bunnik

      De buurt

      Burgerlijke staat in wijk
      Gehuwd
      Ongehuwd
      Gescheiden
      Verweduwd
      • Gehuwd (44.30%)
      • Ongehuwd (44.07%)
      • Gescheiden (5.14%)
      • Verweduwd (6.49%)
      Leeftijd in wijk
      0 - 15 jaar
      15 - 25 jaar
      25-45 jaar
      45 - 65 jaar
      65+ jaar
      • 0 - 15 jaar (18.09%)
      • 15 - 25 jaar (9.40%)
      • 25 - 45 jaar (19.59%)
      • 45 - 65 jaar (26.78%)
      • 65+ jaar (26.15%)
      Geslacht
      • Mannen (48.89%)
      • Vrouwen (51.11%)
      Gezinnen met kinderen
      0 - 15 jaar
      15 - 25 jaar
      25-45 jaar
      • Met kinderen (32.97%)
      • Zonder kinderen (34.23%)
      • Éénpersoons huishoudens (32.80%)
      Woningen koop / huur
      • Koop (73.74%)
      • Huur (26.26%)
      Aantal inwoners:

      6310

      Schaduwwijzer

      Media

      Plattegronden

      Ander aanbod