Victoriameer 109, Amersfoort | Beumer

Victoriameer 109

3825VR, Amersfoort

Via de website IK-ZOEK.de-Alliantie.nl kun je reageren op deze woning tot en met donderdag 15 februari. Hiervoor maak je een Qii huurpaspoort aan. Een absolute droomwoning waar luxe, rust en sfeer samenkomen! Dit 4-kamer appartement is gelegen op een toplocatie en heeft

  • 105 m2
  • Label A

€ 1.425,- p/m Bereken maandlasten

Bereken maandlasten
Heb je een verzekering nodig?

Omschrijving

Via de website IK-ZOEK.de-Alliantie.nl kun je reageren op deze woning tot en met donderdag 15 februari. Hiervoor maak je een Qii huurpaspoort aan. Een absolute droomwoning waar luxe, rust en sfeer samenkomen! Dit 4-kamer appartement is gelegen op een toplocatie en heeft een hoogwaardige afwerking. Het fijne balkon heeft een fantastisch uitzicht op het Bronpark en is de ideale plek om heerlijk te relaxen. Dit is toch de ultieme woondroom?! Zesde verdieping Entree, ruime gang met meterkast en toilet met fontein. Lichte woonkamer van ca. 36 m² met veel lichtinval en openslaande deuren naar het balkon (noordoosten). Open keuken met…

Via de website IK-ZOEK.de-Alliantie.nl kun je reageren op deze woning tot en met donderdag 15 februari. Hiervoor maak je een Qii huurpaspoort aan.

Een absolute droomwoning waar luxe, rust en sfeer samenkomen!

Dit 4-kamer appartement is gelegen op een toplocatie en heeft een hoogwaardige afwerking. Het fijne balkon heeft een fantastisch uitzicht op het Bronpark en is de ideale plek om heerlijk te relaxen. Dit is toch de ultieme woondroom?!

Zesde verdieping
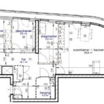
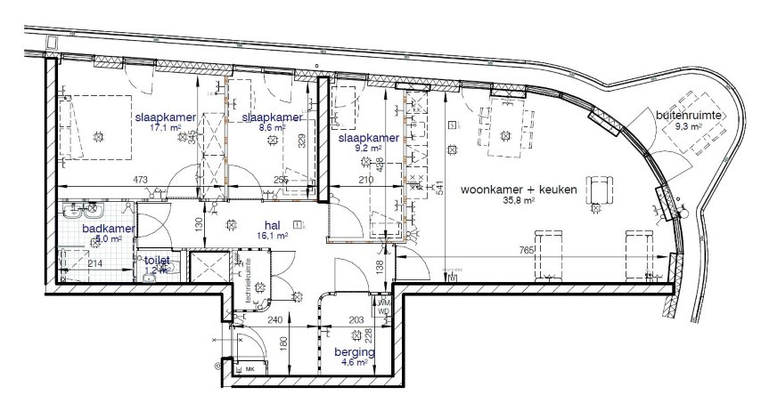
Entree, ruime gang met meterkast en toilet met fontein. Lichte woonkamer van ca. 36 m² met veel lichtinval en openslaande deuren naar het balkon (noordoosten). Open keuken met inbouwapparatuur, waaronder elektrische kookplaat, afzuigkap, koelkast, combi oven en vaatwasmachine. Drie mooie slaapkamers, van ca. 9, 9 en 17 m². De badkamer is ingedeeld met een douche en een dubbele wastafel. In de gang bevindt zich nog een inpandige berging met de wasmachineaansluiting.

Bijzonderheden
• Bergingbox op de begane grond.
• Het appartement is voorzien van vloerverwarming.
• Verwarming door middel van warmtepomp.
• Prachtig uitzicht over het Bronpark!
• 3 prima slaapkamers.
• Energielabel A.
• Minimale huurperiode 1 jaar.
• Voorbehoud gunning verhuurder.
• Geen woningdelers.
• Garantstelling door derden is niet mogelijk.
• Direct beschikbaar.
• Ter overname: vloer, enkele lampen. Geen kosten.

Huurprijs: € 1.425,00 per maand
Servicekosten € 77,20 per maand

Gezamenlijk SV loon is minimaal 45 keer de kale huurprijs (€ 64.125,-).

Waar mogelijk geeft de Alliantie huurders van de Alliantie voorrang. De Alliantie behoudt altijd het recht om de woning te gunnen aan de meest geschikte kandidaat.

• Een huurovereenkomst wordt aangegaan voor ten minste één jaar en wordt vanaf dan verlengd voor onbepaalde tijd. Na de minimale termijn van één jaar bedraagt de opzegtermijn voor de huurder één maand.
• De huurperiode kan op elke dag van de maand ingaan, dit hoeft niet perse de 1e van de maand te zijn. De Alliantie bepaalt de ingangsdatum van de huur: deze zal over het algemeen niet later ingaan dan een week na de toewijzing/bezichtiging.

In aanmerking komen voor deze woning?

Via de website IK-ZOEK.de-alliantie.nl kun je reageren op de betreffende woning. Je kunt reageren door een Qii huurpaspoort aan te maken. De verhuurder kijkt na einde inschrijfdatum wie er in aanmerking komen voor een bezichtiging. Je hoeft bij het makelaarskantoor geen papieren in te vullen, alles gaat via de website IK-ZOEK.de-alliantie.nl via het Qii huurpaspoort. Inschrijven is mogelijk tot en met donderdag 15 februari!

Wij moeten vaak een selectie maken uit alle reacties. Alleen indien je binnen de selectie valt, nemen wij contact met je op.

Lees verder

Kenmerken

  • Vraagprijs € 1.425,- p/m
  • Type Appartement
  • Woonoppervlakte ca. 105.00 m2
  • Externe bergruimte ca. 5.00 m2
  • Slaapkamers 3
  • Inhoud ca. 335.00 m3
  • Energielabel A
Meer kenmerken

In de buurt

Victoriameer 109 • 3825VR • Amersfoort

      Schaduwwijzer

      Media

      Plattegronden