Fazantenkamp 443, Maarssen | Beumer

Fazantenkamp 443

3607 XG, Maarssen

Uitstekend onderhouden - Eigen parkeerplaats én Garage - Kunststof -en aluminium kozijnen - Royale woonkamer met schuifpui - 4 Ruime slaapkamers - Moderne badkamer -en toilet - Grote en zonnige tuin met prachtige veranda annex tuinkamer Staan deze kenmerken hoog op je

  • 113 m2
  • 178 m2
  • Label C
  • 5 kamer(s)

€ 525.000,- k.k. Bereken maandlasten

Bereken maandlasten
Heb je een hypotheek nodig?

Omschrijving

Uitstekend onderhouden - Eigen parkeerplaats én Garage - Kunststof -en aluminium kozijnen - Royale woonkamer met schuifpui - 4 Ruime slaapkamers - Moderne badkamer -en toilet - Grote en zonnige tuin met prachtige veranda annex tuinkamer

Staan deze kenmerken hoog op je lijst met woonwensen voor je nieuwe (t)huis? Maak dan kennis met Fazantenkamp 443 in Maarssen!!

Deze ruime en comfortabele eengezinswoning heeft een woonoppervlakte van circa 113m2, staat op een perceel eigen grond van 178m2 en beschikt over diverse extra's zoals een royale living van circa 37m2 met grote schuifpui en open haard, keuken met inbouwapparatuur, modern afgewerkte…

Uitstekend onderhouden - Eigen parkeerplaats én Garage - Kunststof -en aluminium kozijnen - Royale woonkamer met schuifpui - 4 Ruime slaapkamers - Moderne badkamer -en toilet - Grote en zonnige tuin met prachtige veranda annex tuinkamer

Staan deze kenmerken hoog op je lijst met woonwensen voor je nieuwe (t)huis? Maak dan kennis met Fazantenkamp 443 in Maarssen!!

Deze ruime en comfortabele eengezinswoning heeft een woonoppervlakte van circa 113m2, staat op een perceel eigen grond van 178m2 en beschikt over diverse extra's zoals een royale living van circa 37m2 met grote schuifpui en open haard, keuken met inbouwapparatuur, modern afgewerkte badkamer -en toiletruimte (2019), 4 grote slaapkamers waarvan 1 met toegang tot het brede balkon, bijkeuken met doorgang naar de garage, voortuin met eigen parkeerplaats en grote, geheel vrij gelegen en zonnige achtertuin met heerlijk stoere en grote veranda annex tuinkamer.

De gunstige ligging aan een autoluw en kindvriendelijk woonerf in de populaire wijk Fazantenkamp, met scholen, groot park, recreatiegebied Haarrijnse Plassen, sportvoorzieningen, winkels, NS- en busstation en uitvalswegen A2 en A12 in de nabije omgeving, maakt het geheel van deze fijne woning compleet.

Indeling:

Begane grond:
Entree, hal met eikenhouten vloerdelen, glad gestucte wanden -en plafond en paneeldeuren, meterkast met vernieuwde en uitgebreide groepenkast, moderne toiletruimte met hangend closet en fonteintje, trapkast, fraaie trapopgang en deur naar de bijkeuken, die is voorzien van een tegelvloer, wasmachine- en drogeraansluiting en deur naar de garage.

De garage is eveneens voorzien van een tegelvloer alsmede openslaande toegangsdeuren, uitgevoerd in kunststof.

De ruime living heeft een afmeting van circa 37m2 en is heerlijk licht door de brede, aluminium raampartij met schuifdeur. De living is stijlvol afgewerkt met eikenhouten vloerdelen, glad gestucte wanden -en plafond en voorzien van een convectorput en open haard.

De keuken is aan de voorzijde van de woning gelegen en is voorzien van een vrij modern, recht keukenblok met eetbarretje en veel werk- en kastruimte. De inbouwapparatuur bestaat uit een koelkast, gaskookplaat, combi-oven, RVS-afzuigkap, vaatwasser en close-in boiler.

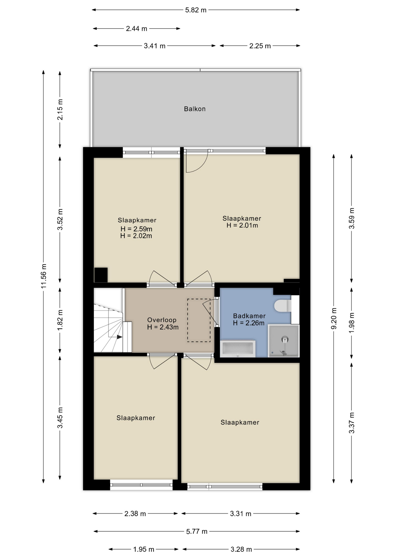
1e Verdieping:
De ruime overloop is voorzien van een laminaatvloer, glad gestucte wanden en paneeldeuren alsmede een luik met vlizotrap naar de bergvliering.

De 1e verdieping beschikt over vier ruime slaapkamers (circa 12m2, 11m2, 9m2 en 8m2), die alle zijn voorzien van een laminaatvloer, glad gestucte wanden -en plafond en grote raampartijen met kunststof kozijnen en HR beglazing. De hoofdslaapkamer ligt aan de achterzijde van de woning en biedt tevens toegang tot het woningbrede balkon.

De modern uitgevoerde badkamer is geheel betegeld en voorzien van een douchecabine met thermostaatkaan en regen- en handdouche, badmeubel met wastafel, designradiator, hangend closet en verlaagd plafond met inbouwverlichting.

Bergvliering:
Via het luik met vlizotrap is de grote bergvliering toegankelijk. Naast veel bergruimte tref je hier ook de CV-opstelling (Atag HR-combiketel uit 2020).

Tuin:
De voortuin is keurig bestraat en biedt parkeerplaats aan één auto en toegang tot de garage.

De achtertuin is ruim van afmeting (circa 12m x 6m) en grenst aan een rustig wandelpad en brede singel, waardoor er volledige privacy en rust is. De tuin is fraai aangelegd met sierbestrating, hardhouten vlonderdelen, robuuste schuttingen en borders met vaste beplanting.

Door de gunstige ligging op het noordwesten en de goede afmeting van de tuin geniet je hier van het einde van de ochtend tot laat in de avond van de zon.

Mocht je toch liever de luwte en/of schaduw opzoeken, dan biedt de prachtige en grote veranda annex tuinkamer (circa 6mx3m) een heerlijke plek om te vertoeven!

Lees verder

Kenmerken

  • Vraagprijs € 525.000,- k.k.
  • Aanvaarding In overleg
  • Type Tussenwoning
  • Bouwjaar 1976
  • Woonoppervlakte ca. 113 m2
  • Oppervlakte gebouwgebonden ca. 13 m2
  • Overige inpandige ruimte ca. 29 m2
  • Slaapkamers 4
  • Inhoud ca. 501 m3
  • Perceeloppervlakte ca. 178 m2
  • Ligging tuin Noordwest
  • Energielabel C
  • Isolatie Dakisolatie, muurisolatie, vloerisolatie, hr glas
  • Verwarming Cv ketel, open haard
  • C.v.-ketel bouwjaar 2020
  • Voorzieningen Mechanische ventilatie, tv kabel, schuifpui, natuurlijke ventilatie
  • Parkeerfaciliteiten Openbaar parkeren, op eigen terrein
  • Garage Aangebouwd steen, parkeerplaats
Meer kenmerken

In de buurt

Fazantenkamp 443 3607 XG Maarssen

      De buurt

      Burgerlijke staat in wijk
      Gehuwd
      Ongehuwd
      Gescheiden
      Verweduwd
      • Gehuwd (46.40%)
      • Ongehuwd (42.80%)
      • Gescheiden (7.42%)
      • Verweduwd (3.39%)
      Leeftijd in wijk
      0 - 15 jaar
      15 - 25 jaar
      25-45 jaar
      45 - 65 jaar
      65+ jaar
      • 0 - 15 jaar (18.99%)
      • 15 - 25 jaar (10.34%)
      • 25 - 45 jaar (25.32%)
      • 45 - 65 jaar (28.48%)
      • 65+ jaar (16.88%)
      Geslacht
      • Mannen (48.73%)
      • Vrouwen (51.27%)
      Gezinnen met kinderen
      0 - 15 jaar
      15 - 25 jaar
      25-45 jaar
      • Met kinderen (43.30%)
      • Zonder kinderen (30.93%)
      • Éénpersoons huishoudens (25.77%)
      Woningen koop / huur
      • Koop (92.00%)
      • Huur (8.00%)
      Aantal inwoners:

      2370

      Schaduwwijzer

      Media

      Plattegronden

      Bergvliering

      Ander aanbod