Minahassastraat 27A, Utrecht | Beumer

Minahassastraat 27 A

3531 KW, Utrecht

Perfect voor starters! In de populaire wijk Lombok vind je dit keurig onderhouden en in 2025 gerenoveerde 2-kamer appartement. De woning is gunstig gelegen, op korte afstand van alle dagelijkse voorzieningen, waaronder winkelcentrum Groeneweg. Ook Park Oog in Al en groene

  • 43 m2
  • Label C
  • 2 kamer(s)

€ 285.000,- k.k. Bereken maandlasten

Bereken maandlasten
Heb je een hypotheek nodig?

Omschrijving

Perfect voor starters! In de populaire wijk Lombok vind je dit keurig onderhouden en in 2025 gerenoveerde 2-kamer appartement. De woning is gunstig gelegen, op korte afstand van alle dagelijkse voorzieningen, waaronder winkelcentrum Groeneweg. Ook Park Oog in Al en groene Majellapark liggen praktisch om de hoek. Het appartement beschikt over een ruime, lichte woonkamer met een open keuken, een aparte slaapkamer én een badkamer en suite. Kortom: comfortabel wonen op een centrale locatie!

Het appartement is tevens zeer gunstig gelegen in de gezellige wijk Lombok. Voor je dagelijkse boodschappen wandel je richting Winkelcentrum Groeneweg, een rondje joggen kan in…

Perfect voor starters! In de populaire wijk Lombok vind je dit keurig onderhouden en in 2025 gerenoveerde 2-kamer appartement. De woning is gunstig gelegen, op korte afstand van alle dagelijkse voorzieningen, waaronder winkelcentrum Groeneweg. Ook Park Oog in Al en groene Majellapark liggen praktisch om de hoek. Het appartement beschikt over een ruime, lichte woonkamer met een open keuken, een aparte slaapkamer én een badkamer en suite. Kortom: comfortabel wonen op een centrale locatie!

Het appartement is tevens zeer gunstig gelegen in de gezellige wijk Lombok. Voor je dagelijkse boodschappen wandel je richting Winkelcentrum Groeneweg, een rondje joggen kan in het Majellapark en lekker uitwaaien doe je langs de kanaal. Maar ook de bruisende binnenstad van Utrecht ligt op korte afstand, waar je goed terecht kunt voor een dagje shoppen. Je vindt er ook sportfaciliteiten, restaurants, openbaar vervoermogelijkheden en goed gangbare wegen richting de A2 & A12.

Indeling:

Begane grond
Gemeenschappelijke trapopgang voor twee appartementen op eerste en tweede verdieping.

Tweede verdieping
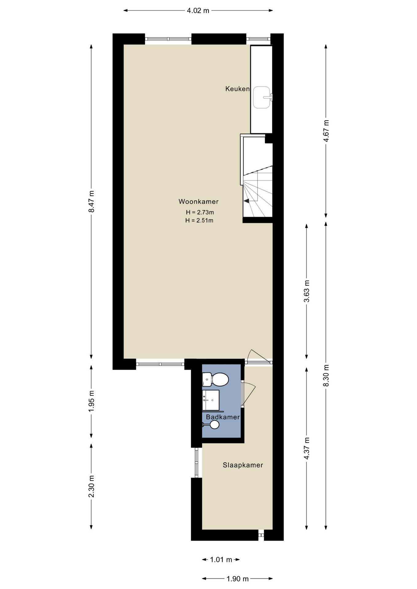
Trapopgang met toegang tot de woonkamer. Vanuit de ruime woonkamer van 34 m² heb je toegang tot de slaapkamer met badkamer en suite. De in 2025 vernieuwde badkamer is voorzien van wastafelmeubel en een inloopdouche met regendouche. De keuken die ook in 2025 is vernieuwd beschikt over een 4-pitskookplaat en afzuigkap.

Bijzonderheden:
- Energielabel C;
- Woonoppervlakte ca. 43m²;
- Bouwjaar 1931;
- HR++ glas;
- Badkamer en keuken vernieuwd in 2025;
- Betaald parkeren of middels parkeervergunning;
- Verwarming en warmwater middels C.V. ketel (Remeha Avanta, 2008);
- Actieve VvE, maandelijkse bijdrage bedraagt € 30,- per maand;
- Asbest- en ouderdomsclausule zullen in de koopakte worden opgenomen;
- Oplevering in overleg.

Interesse in deze woning? Neem uw eigen NVM-aankoopmakelaar mee.

Lees verder

Kenmerken

  • Vraagprijs € 285.000,- k.k.
  • Aanvaarding In overleg
  • Bouwjaar 1931
  • Woonoppervlakte ca. 43 m2
  • Slaapkamers 1
  • Inhoud ca. 151 m3
  • Energielabel C
  • Isolatie Dakisolatie, muurisolatie, vloerisolatie, dubbel glas, volledig geisoleerd
  • Verwarming Cv ketel
  • C.v.-ketel bouwjaar 2008
  • Voorzieningen Tv kabel, glasvezel kabel, natuurlijke ventilatie
  • Parkeerfaciliteiten Openbaar parkeren
  • Garage Geen garage
Meer kenmerken

In de buurt

Minahassastraat 27A • 3531 KW • Utrecht

      De buurt

      Leeftijd in wijk
      0 - 15 jaar
      15 - 25 jaar
      25-45 jaar
      45 - 65 jaar
      65+ jaar
      • 0 - 15 jaar (11.47%)
      • 15 - 25 jaar (20.22%)
      • 25 - 45 jaar (44.40%)
      • 45 - 65 jaar (15.87%)
      • 65+ jaar (8.04%)
      Geslacht
      • Mannen (47.23%)
      • Vrouwen (52.77%)
      Gezinnen met kinderen
      0 - 15 jaar
      15 - 25 jaar
      25-45 jaar
      • Met kinderen (16.67%)
      • Zonder kinderen (21.15%)
      • Éénpersoons huishoudens (62.19%)
      Aantal inwoners:

      11390

      Schaduwwijzer

      Media

      Plattegronden

      Ander aanbod