Graaf Johanlaan 11, Nieuwegein | Beumer

Graaf Johanlaan 11

3434 SG, Nieuwegein

Bent u op zoek naar een gasvrije, duurzame, woning met lage energiekosten en ontzettend veel ruimte? Dan is dit de geschikte woning voor u. Neem gerust contact met ons op om een bezichtigingsafspraak in te plannen. Dit royale herenhuis van maar liefst 210 m2 is gelegen

  • 210 m2
  • 278 m2
  • Label A
  • 8 kamer(s)

€ 569.000,- k.k. Bereken maandlasten

Bereken maandlasten
Heb je een hypotheek nodig?

Omschrijving

Bent u op zoek naar een gasvrije, duurzame, woning met lage energiekosten en ontzettend veel ruimte? Dan is dit de geschikte woning voor u. Neem gerust contact met ons op om een bezichtigingsafspraak in te plannen.

Dit royale herenhuis van maar liefst 210 m2 is gelegen op een rustige en kindvriendelijke locatie in Fokkesteeg-Zuid. De woning is uitermate goed geïsoleerd, perfect onderhouden en grenst aan de achterzijde aan het water. De woning is onder andere voorzien van zes slaapkamers, een ruime woonkamer, inpandige garage, twee badkamers, achtertuin op het zuiden, riante voor- en achtertuin, 17 zonnepanelen, pelletkachel, airconditioning en vloerverwarming.…

Bent u op zoek naar een gasvrije, duurzame, woning met lage energiekosten en ontzettend veel ruimte? Dan is dit de geschikte woning voor u. Neem gerust contact met ons op om een bezichtigingsafspraak in te plannen.

Dit royale herenhuis van maar liefst 210 m2 is gelegen op een rustige en kindvriendelijke locatie in Fokkesteeg-Zuid. De woning is uitermate goed geïsoleerd, perfect onderhouden en grenst aan de achterzijde aan het water. De woning is onder andere voorzien van zes slaapkamers, een ruime woonkamer, inpandige garage, twee badkamers, achtertuin op het zuiden, riante voor- en achtertuin, 17 zonnepanelen, pelletkachel, airconditioning en vloerverwarming. Daarnaast beschikt de woning over veel privacy en rust. De woning is gebouwd in 1980, wordt verwarmd middels inverter en pelletkachel. Stadsverwarming aanwezig.
In de directe omgeving bevinden zich vele voorzieningen, waaronder het oude dorp Vreeswijk, basisschool, winkelcentrum CityPlaza, winkelcentrum Hoogzandveld, openbaar vervoer (tram en bus), park Oudegein en de uitvalswegen A2/A12/A27. Utrecht stad is eveneens per sneltram snel te bereiken.

Indeling:
Begane grond:
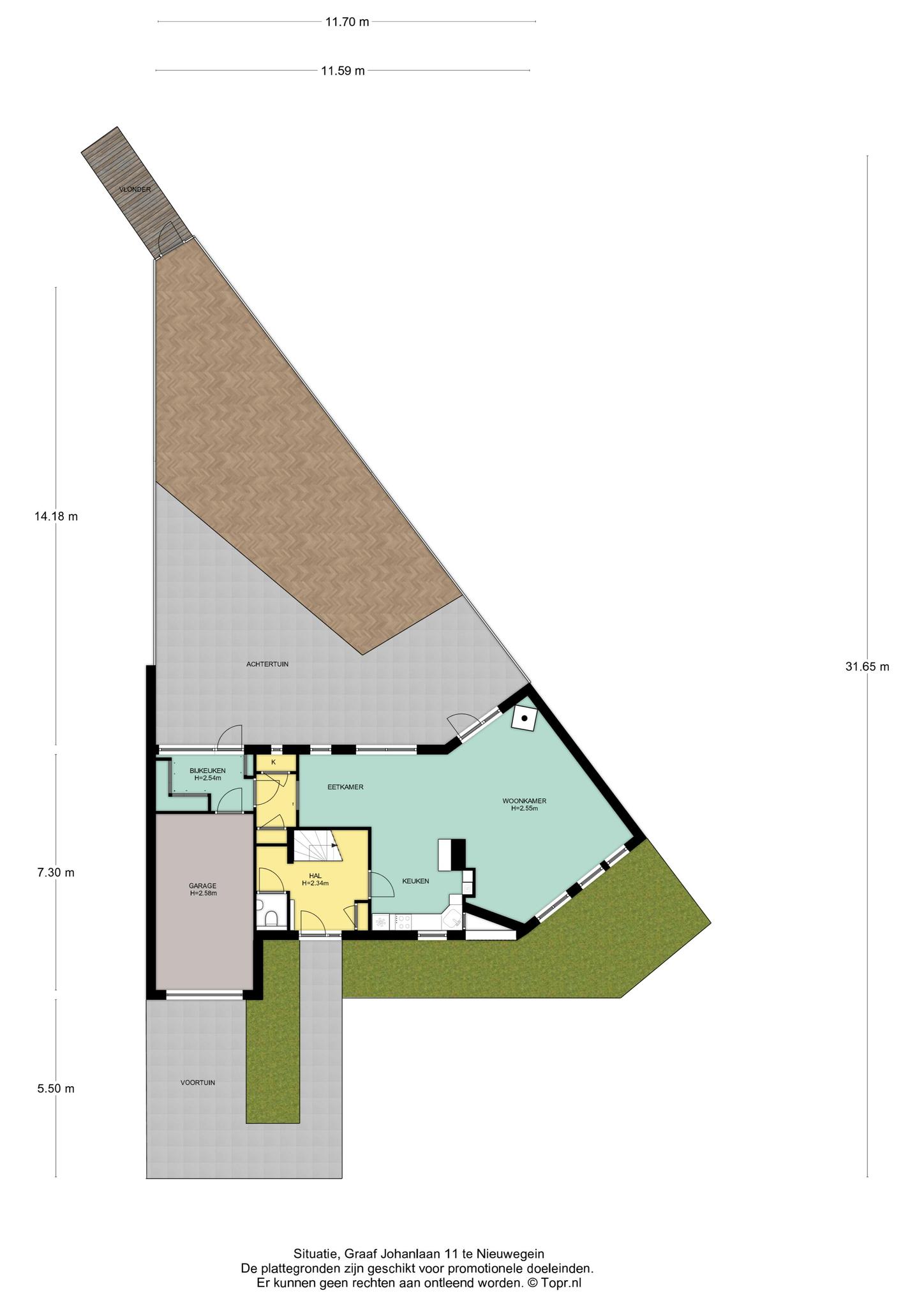
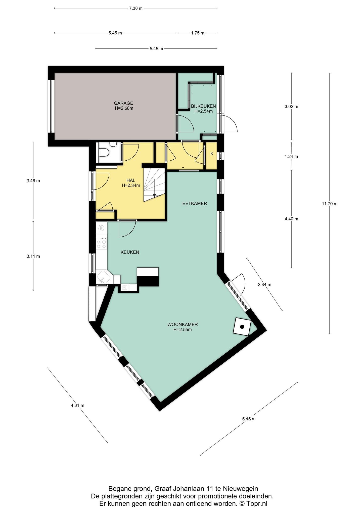
De hal/entree biedt toegang tot de royale woonkamer, meterkast en het toilet met fontein. De woonkamer beschikt over een nette open inbouwkeuken, tegelvloer met vloerverwarming, pelletkachel en airconditioning. Aansluitend bevindt zich de bijkeuken en inpandige garage met elektrische deur, wateraansluiting, 240V en krachtstroom. Via de woonkamer en de bijkeuken is de verzorgde achtertuin op het zuiden te bereiken. De tuin is voorzien van veel groen, tegels, zonwering en een steiger aan de achtergelegen waterpartij. Hier kunt u optimaal genieten van vrijheid, privacy en de zon.
Aan de voorzijde van de woning bevindt zich de royale voortuin met veel beplanting en de eigen oprit.

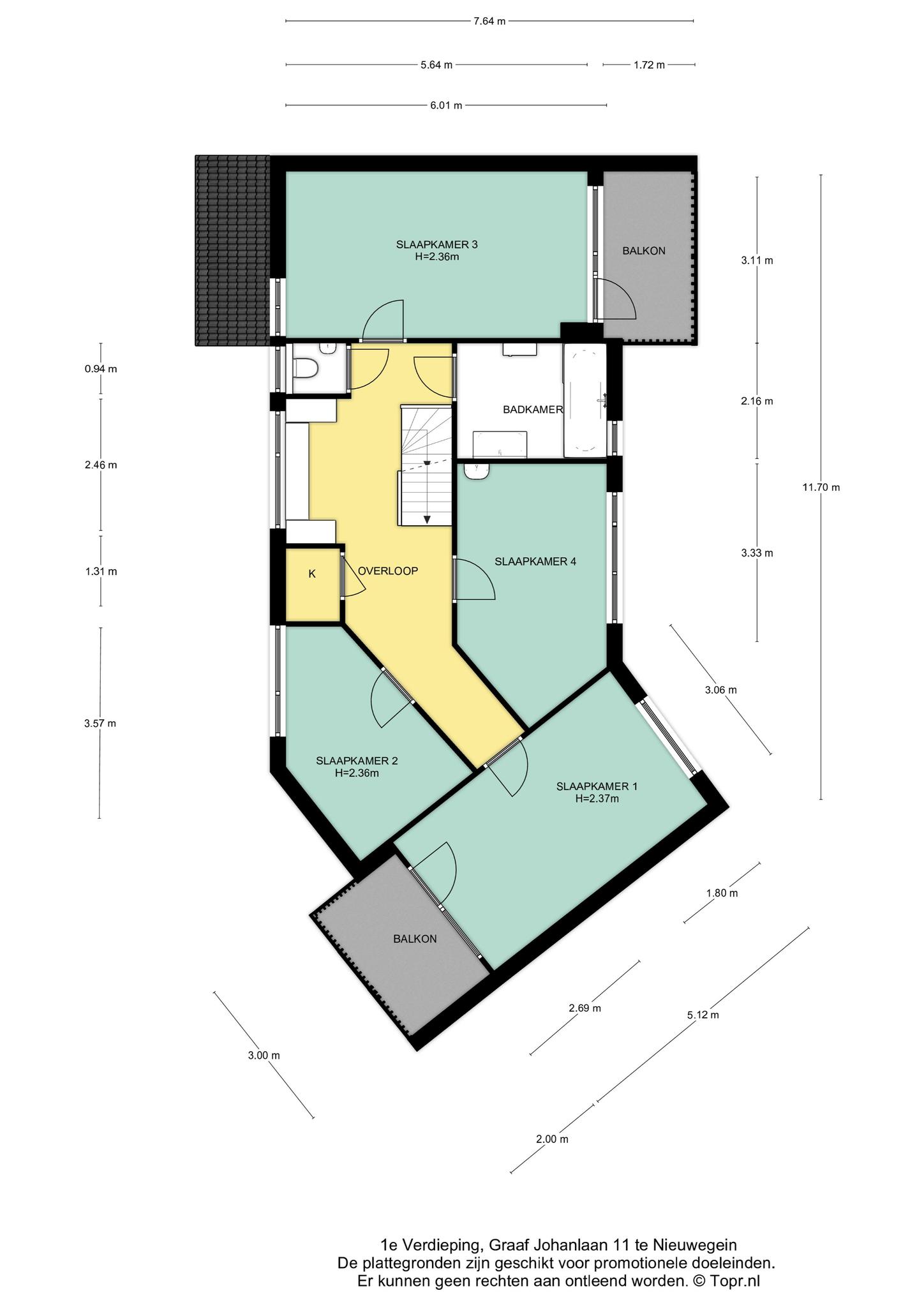
Eerste verdieping:
De overloop biedt toegang tot een viertal goed bemeten slaapkamers van ca. 17,5 m2, 16 m2, 11 m2 en 8 m2, alsmede de moderne badkamer met ligbad en wastafel. De twee grootste slaapkamers beschikken daarnaast over een eigen balkon (gesitueerd op het zuiden en noordwesten).

Tweede verdieping.
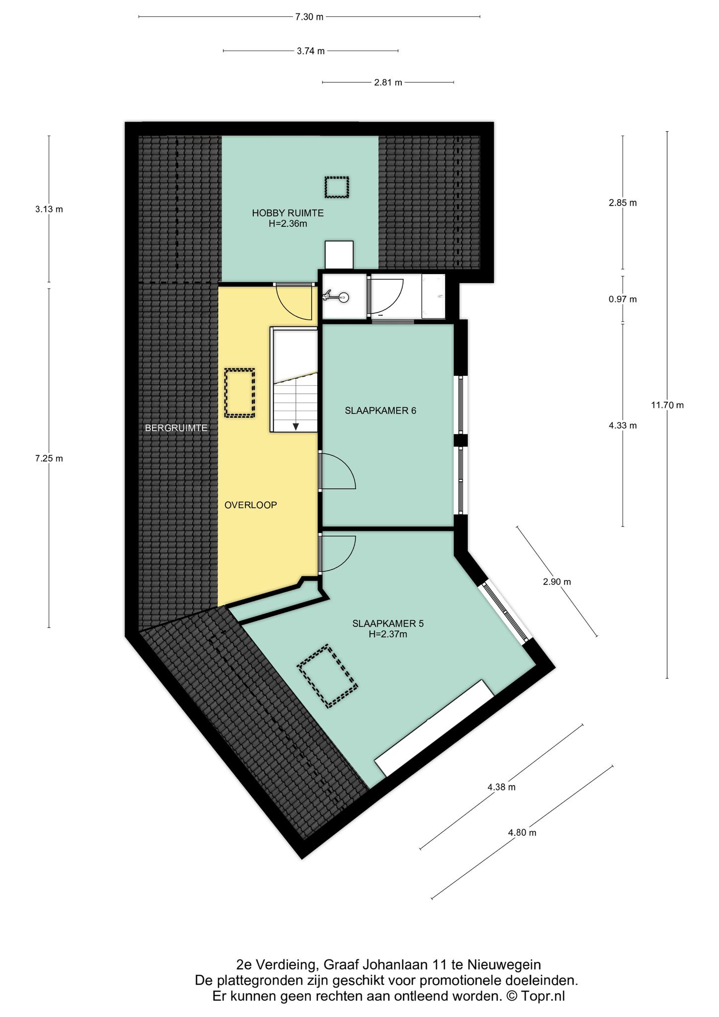
Via de overloop zijn nog een tweetal slaapkamers van ca. 15 m2 en 12 m2 te bereiken, alsmede de aparte wasruimte/hobby ruimte, veel bergruimte en de tweede badkamer met infraroodverwarming, douche en wastafel.

Bijzonderheden:
- Royale woning van maar liefst 210 m2
- Inpandige garage;
- Eigen oprit (mogelijkheid tot plaatsen laadpaal);
- Uitermate goed geïsoleerd;
- Gehele woning is voorzien van HR++ glas;
- Achtertuin op het zuiden, gelegen aan het water;
- Balkon aan de voor- en achterzijde;
- 6 goed bemeten slaapkamers;
- Vloerverwarming, pelletkachel en airconditioning op de begane grond;
- Warmteboiler en close-in boiler aanwezig (eigendom);
- Dakpannen in 2020 vernieuwd;
- Schilderwerk van de kozijnen in 2021 uitgevoerd;
- 17 Zonnepanelen geplaatst in 2020;
- Drie dakramen zijn recentelijk vernieuwd;
- Bouwjaar 1980;
- Energielabel A;
- Oplevering in overleg.

Interesse in deze woning? Kom gerust eens langs met je aankoopmakelaar!

Lees verder

Kenmerken

  • Vraagprijs € 569.000,- k.k.
  • Aanvaarding In overleg
  • Type Geschakelde woning
  • Bouwjaar 1980
  • Woonoppervlakte ca. 210 m2
  • Oppervlakte gebouwgebonden ca. 11 m2
  • Overige inpandige ruimte ca. 16 m2
  • Slaapkamers 6
  • Inhoud ca. 782 m3
  • Perceeloppervlakte ca. 278 m2
  • Ligging tuin Zuid
  • Energielabel A
  • Isolatie Dakisolatie, muurisolatie, vloerisolatie, hr glas
  • Verwarming Stadsverwarming, pelletkachel
  • Voorzieningen Tv kabel, buitenzonwering, airconditioning, dakraam, zonnepanelen
  • Parkeerfaciliteiten Openbaar parkeren, op eigen terrein
  • Garage Inpandig
Meer kenmerken

In de buurt

Graaf Johanlaan 11 • 3434 SG • Nieuwegein

      De buurt

      Burgerlijke staat in wijk
      Gehuwd
      Ongehuwd
      Gescheiden
      Verweduwd
      • Gehuwd (38.73%)
      • Ongehuwd (49.55%)
      • Gescheiden (8.70%)
      • Verweduwd (3.03%)
      Leeftijd in wijk
      0 - 15 jaar
      15 - 25 jaar
      25-45 jaar
      45 - 65 jaar
      65+ jaar
      • 0 - 15 jaar (17.94%)
      • 15 - 25 jaar (12.11%)
      • 25 - 45 jaar (28.69%)
      • 45 - 65 jaar (29.60%)
      • 65+ jaar (11.66%)
      Geslacht
      • Mannen (50.95%)
      • Vrouwen (49.05%)
      Gezinnen met kinderen
      0 - 15 jaar
      15 - 25 jaar
      25-45 jaar
      • Met kinderen (39.57%)
      • Zonder kinderen (26.92%)
      • Éénpersoons huishoudens (33.51%)
      Woningen koop / huur
      • Koop (58.16%)
      • Huur (41.84%)
      Aantal inwoners:

      6595

      Schaduwwijzer

      Media

      Plattegronden

      Ander aanbod