Zoete viburnumstraat 10, Utrecht | Beumer

Zoete viburnumstraat 10

3545 DD, Utrecht

Luxe en instapklare gezinswoning met tweede badkamer en zonnige tuin. Soms verschijnt er een woning die je hart sneller doet kloppen, dit is er zo één. Wij presenteren deze luxe en volledig instapklare tussenwoning (ca. 146 m², bouwjaar 2020) met een zonnige tuin op

  • 146 m2
  • 145 m2
  • Label A
  • 5 kamer(s)

€ 750.000,- k.k. Bereken maandlasten

Bereken maandlasten
Heb je een hypotheek nodig?

Omschrijving

Luxe en instapklare gezinswoning met tweede badkamer en zonnige tuin.

Soms verschijnt er een woning die je hart sneller doet kloppen, dit is er zo één. Wij presenteren deze luxe en volledig instapklare tussenwoning (ca. 146 m², bouwjaar 2020) met een zonnige tuin op het zuidoosten, een ruime living én een prachtige tweede badkamer en-suite die in 2023 op zolder is gerealiseerd.

De woning ligt in de populaire, groene en kindvriendelijke wijk Rijnvliet. Hier woon je centraal én rustig: met alle dagelijkse voorzieningen binnen handbereik en Utrecht-stad en Leidscherijn centrum op fietsafstand. In de directe omgeving vind je scholen, opvang,…

Luxe en instapklare gezinswoning met tweede badkamer en zonnige tuin.

Soms verschijnt er een woning die je hart sneller doet kloppen, dit is er zo één. Wij presenteren deze luxe en volledig instapklare tussenwoning (ca. 146 m², bouwjaar 2020) met een zonnige tuin op het zuidoosten, een ruime living én een prachtige tweede badkamer en-suite die in 2023 op zolder is gerealiseerd.

De woning ligt in de populaire, groene en kindvriendelijke wijk Rijnvliet. Hier woon je centraal én rustig: met alle dagelijkse voorzieningen binnen handbereik en Utrecht-stad en Leidscherijn centrum op fietsafstand. In de directe omgeving vind je scholen, opvang, sportfaciliteiten en zelfs het grootste voedselbos van Europa – een oase van rust en biodiversiteit. Voor een hapje of drankje wandel je naar de bijzondere Metaal Kathedraal en de ambachtelijke bakker Amadeus. Binnen 1 minuut pak je de bus die je in 10 minuten naar Utrecht Centraal brengt, of je fietst er in nog geen 20 minuten heen. Liever met de auto? Binnen enkele minuten bereik je de uitvalswegen A2 en A12. Ook recreatieplas Strijkviertel ligt op loopafstand: perfect om te zwemmen, zonnen of ontspannen.

Kenmerkend aan deze woning zijn het hoge afwerkingsniveau, de mooie parketvloer met vloerverwarming, twee mooie badkamers. Daarnaast biedt de woning maar liefst vier slaapkamers, een heerlijk lichte uitgebouwde woonkamer en een fraai aangelegde achtertuin op het zuidoosten.

Indeling

Begane grond
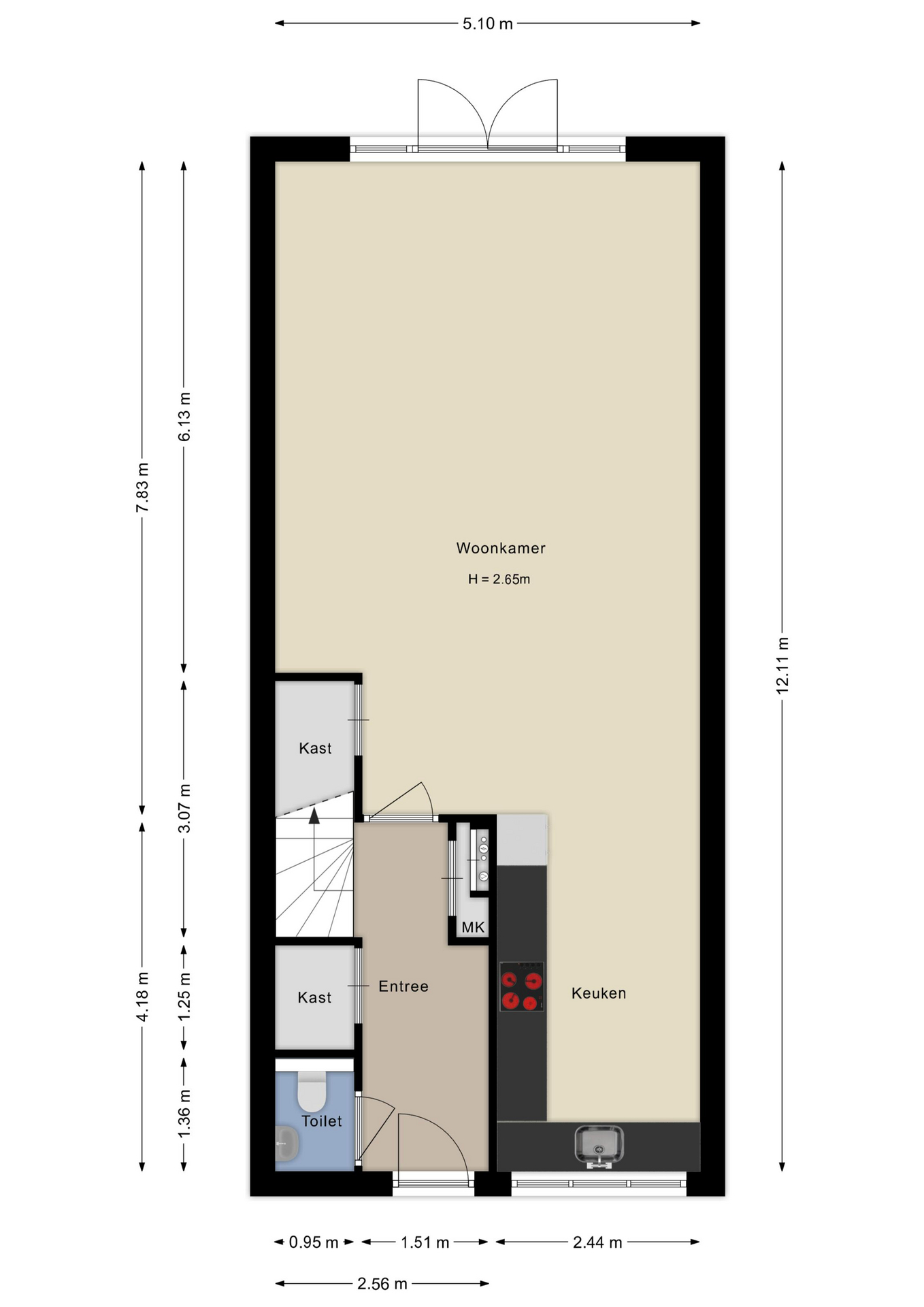
Via de voortuin kom je binnen in de hal, waar je meteen de warme uitstraling van de parketvloer en de strakke afwerking proeft. Vanuit de hal bereik je het toilet, de trapopgang en de ruime, lichte woonkamer. Dankzij de uitbouw en de dubbele openslaande deuren naar de tuin geniet je hier van een fijne leefruimte met veel lichtinval.
Aan de voorzijde bevindt zich de royale leefkeuken in L-opstelling, voorzien van een luxe design, ruim werkblad en hoogwaardige AEG inbouwapparatuur. Er is volop plek voor een grote eettafel, ideaal voor lange avonden tafelen. Verder vind je op deze verdieping een praktische voorraad- en garderobekast.

De achtertuin is onderhoudsvriendelijk en fraai aangelegd met speelse tegels en groen. Dankzij de ligging op het zuidoosten geniet je hier de hele dag van de zon. Achterin de tuin staat een vrijstaande houten berging (ca. 8 m²) en is er een handige achterom.

Eerste verdieping
Hier bevinden zich drie goed bemeten slaapkamers. De moderne badkamer is uitgerust met een inloopdouche, ruim wasmeubel, zwevend toilet en handdoekenradiator. Aan de achterzijde is een ruime slaapkamer gesitueerd met een kastenwand. Aan de voorzijde zijn twee (slaap)kamers aanwezig. Allemaal stijlvol en fraai afgewerkt.

Tweede verdieping
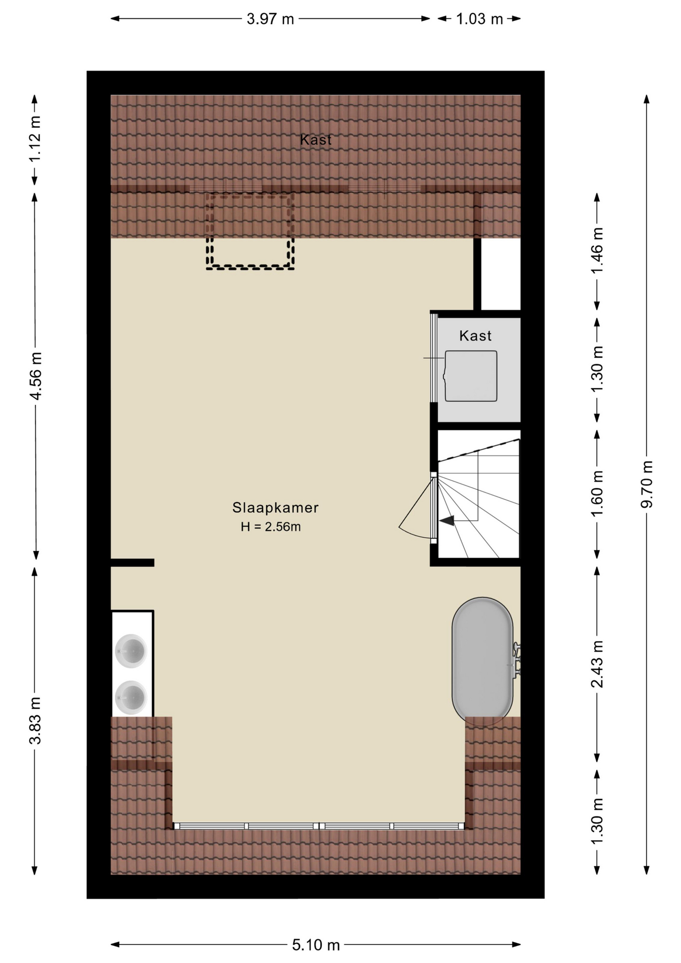
Deze verdieping is in 2023 prachtig verbouwd tot een ruime master bedroom met royale dakkapel (2021) en een luxe tweede badkamer en suite met ligbad en dubbele wasbak. Dankzij de slimme indeling is de wasmachine netjes weggewerkt in een kast boven de trap en is er veel extra bergruimte achter de knieschotten en in het bankje in de dakkapel. Tevens zorgen de ruime dakkapel en dakraam voor een fijne lichte kamer.

Bijzonderheden
• Bouwjaar: 2020
• Woonoppervlak: ca. 146 m²
• Perceeloppervlak: ca. 145 m²
• Uitgebouwde ruime tussenwoning
• Alle ramen zijn voorzien van horren
• Vier ruime slaapkamers (deels) met inbouwkasten
• Tweede badkamer (2023) met ligbad op de zolderverdieping
• Grote dakkapel (2021) waardoor de zolder extra licht en ruim is
• Luxe keuken en stijlvolle badkamers
• Onderhoudsvriendelijke tuin op het zuidoosten met berging en achterom
• Aangesloten op stadswarmte, volledig geïsoleerd, energielabel A
• Vrij parkeren in de straat
• Centraal gelegen in een groene, kindvriendelijke en levendige wijk met veel voorzieningen

Dit huis combineert ruimte, luxe en comfort met een ideale ligging: rustig wonen in het groen, maar met stad, natuur en voorzieningen allemaal dichtbij. Kom je kijken?

Lees verder

Kenmerken

  • Vraagprijs € 750.000,- k.k.
  • Aanvaarding In overleg
  • Type Tussenwoning
  • Bouwjaar 2020
  • Woonoppervlakte ca. 146 m2
  • Externe bergruimte ca. 8 m2
  • Slaapkamers 4
  • Inhoud ca. 505 m3
  • Perceeloppervlakte ca. 145 m2
  • Ligging tuin Oost
  • Energielabel A
  • Isolatie Volledig geisoleerd
  • Verwarming Stadsverwarming, vloerverwarming gedeeltelijk
  • Voorzieningen Mechanische ventilatie, glasvezel kabel, natuurlijke ventilatie
  • Parkeerfaciliteiten Openbaar parkeren
  • Garage Geen garage
Meer kenmerken

In de buurt

Zoete viburnumstraat 10 3545 DD Utrecht

      Schaduwwijzer

      Media

      Plattegronden

      Ander aanbod