Willemstraat 26B, Utrecht | Beumer

Willemstraat 26 B

3511 RK, Utrecht

Charmante bovenwoning in hartje Utrecht – rustig wonen midden in de stad Wonen in het centrum van Utrecht met alles binnen handbereik, maar zonder de drukte van de stad? Deze sfeervolle bovenwoning aan de Willemsstraat 26B combineert het beste van twee werelden.

  • 35 m2
  • Label C
  • 2 kamer(s)

€ 295.000,- k.k. Bereken maandlasten

Bereken maandlasten
Heb je een hypotheek nodig?

Omschrijving

Charmante bovenwoning in hartje Utrecht – rustig wonen midden in de stad

Wonen in het centrum van Utrecht met alles binnen handbereik, maar zonder de drukte van de stad? Deze sfeervolle bovenwoning aan de Willemsstraat 26B combineert het beste van twee werelden. Gelegen in een rustige straat midden in de historische binnenstad, woon je hier op een unieke plek waar karakter, comfort en locatie samenkomen.

De woning maakt deel uit van een goed onderhouden pand uit 1910 en voorzien is van moderne isolatie. Dankzij dak- en vloerisolatie én dubbel glas heeft het appartement energielabel C.

Indeling:

Via de gezamenlijke…

Charmante bovenwoning in hartje Utrecht – rustig wonen midden in de stad

Wonen in het centrum van Utrecht met alles binnen handbereik, maar zonder de drukte van de stad? Deze sfeervolle bovenwoning aan de Willemsstraat 26B combineert het beste van twee werelden. Gelegen in een rustige straat midden in de historische binnenstad, woon je hier op een unieke plek waar karakter, comfort en locatie samenkomen.

De woning maakt deel uit van een goed onderhouden pand uit 1910 en voorzien is van moderne isolatie. Dankzij dak- en vloerisolatie én dubbel glas heeft het appartement energielabel C.

Indeling:

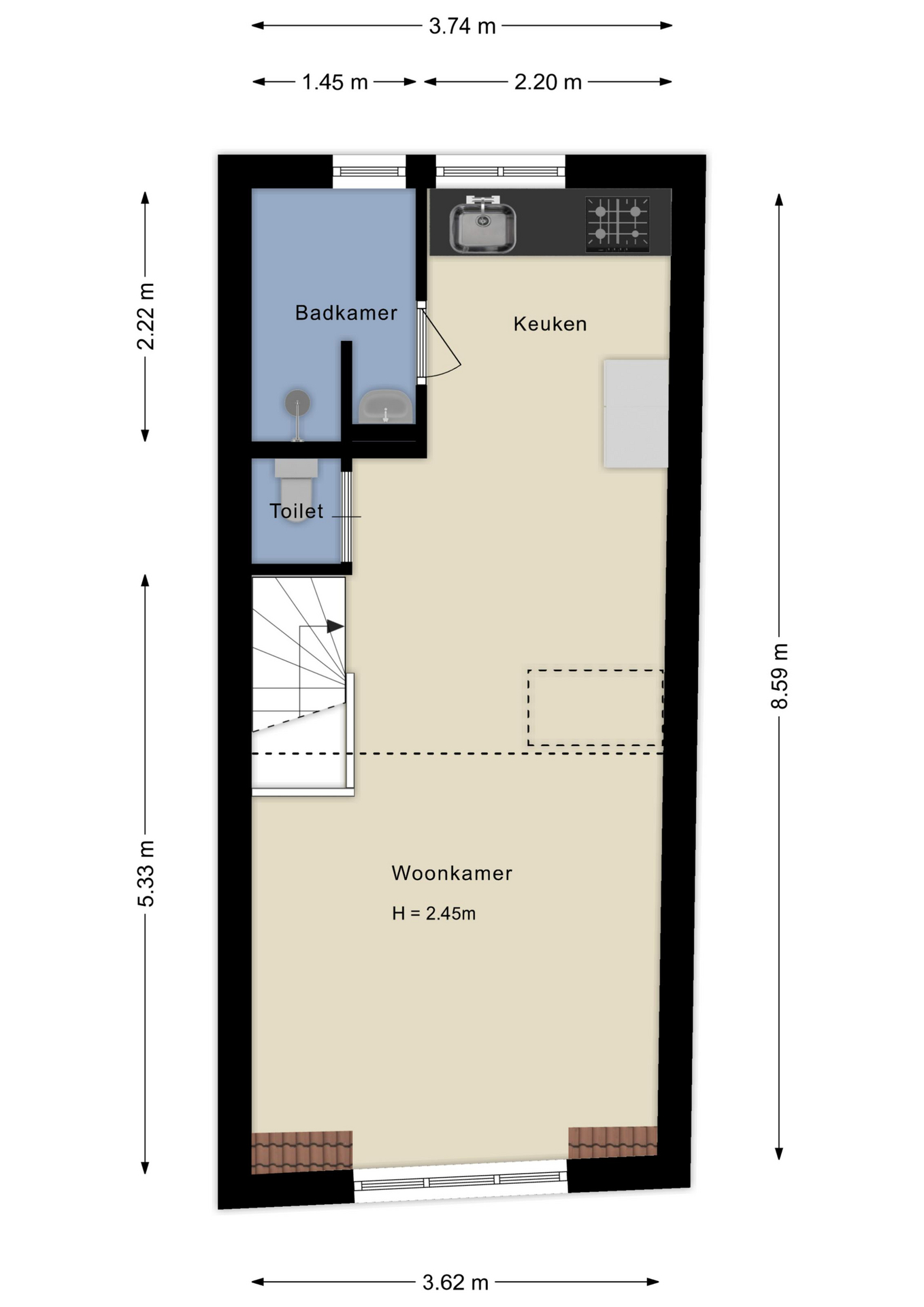
Via de gezamenlijke entree bereik je de eigen voordeur van de bovenwoning. Op de eerste verdieping kom je binnen in de lichte woonkamer met open keuken. De ruimte heeft een prettige sfeer door de combinatie van het authentieke karakter en het lichte kleurgebruik. De open keuken is compact maar praktisch ingericht, met een kookplaat, afzuigkap, spoelbak en voldoende kastruimte.
Aan de achterzijde bevindt zich de nette badkamer met douche, wastafel en toilet. Daarnaast is er nog een handige bergkast aanwezig voor extra opslagruimte.
De trap leidt naar de gezellige slaapkamer op de bovenverdieping. Onder de karakteristieke schuine kap met dakramen ontstaat een intieme, knusse sfeer. Ondanks de compacte afmetingen is de ruimte slim ingedeeld en voelt verrassend ruim aan.

Bijzonderheden:
- Woonoppervlakte ca. 35 m²
- Bouwjaar 1910
- Energielabel C (dakisolatie, vloerisolatie en dubbel glas)
- Rustige ligging in doodlopende straat, midden in de binnenstad
- Goed onderhouden pand
- Betaald parkeren of parkeervergunning in de omgeving
- Actieve, kleinschalige VvE met ruim € 3.500,- in de reservefonds
- Maandelijkse bijdrage van € 120,00 inclusief stookkosten
- Oplevering in overleg

Locatie:
De Willemsstraat ligt op een toplocatie in het hart van Utrecht. Op loopafstand vind je gezellige cafés, restaurants, winkels, supermarkten en culturele hotspots zoals de Oudegracht en het Ledig Erf. Ook het Centraal Station en diverse busverbindingen zijn binnen enkele minuten bereikbaar. En toch woon je hier in een verrassend rustige straat, waar bewoners vooral bestemmingsverkeer hebben.
Kortom: een sfeervol en goed onderhouden appartement op een unieke plek in Utrecht – perfect voor starters, young professionals of iedereen die op zoek is naar een charmant stadsappartement met karakter.

Lees verder

Bewoners aan het woord

  • Opmerking

    Willemstraat 26-B ligt in het hartje van Wijk C in Utrecht. Dit is een buurt met een rijke historie: aan het eind van de 19e eeuw is hier Koningsdag begonnen! Inmiddels is Wijk C een leuke mix van een gezellige volksbuurt met studenten en young professionals. De woning zelf is in 2011/12 gesplitst in 3 appartementen. 26-B is de bovenste etage; een ideale plek waar je aan de ene kant rustig woont, maar tegelijk midden in de stad zit. Met 5 minuten lopen sta je op het perron voor de trein naar Amsterdam!

Kenmerken

  • Vraagprijs € 295.000,- k.k.
  • Aanvaarding In overleg
  • Bouwjaar 1910
  • Woonoppervlakte ca. 35 m2
  • Overige inpandige ruimte ca. 9 m2
  • Slaapkamers 1
  • Inhoud ca. 140 m3
  • Energielabel C
  • Isolatie Dakisolatie, vloerisolatie, dubbel glas
  • Verwarming Cv ketel
  • C.v.-ketel bouwjaar 2011
  • Voorzieningen Mechanische ventilatie, dakraam
  • Parkeerfaciliteiten Betaald parkeren, parkeervergunningen
  • Garage Geen garage
Meer kenmerken

Kenmerken toegevoegd door verkoper, vrienden en familie

  • Kenmerk(en)
    Perfecte locatie
  • Kenmerk(en)
    Hoog plafond
  • Kenmerk(en)
    Veel licht

In de buurt

Willemstraat 26B 3511 RK Utrecht

      De buurt

      Burgerlijke staat in wijk
      Gehuwd
      Ongehuwd
      Gescheiden
      Verweduwd
      • Gehuwd (16.36%)
      • Ongehuwd (73.61%)
      • Gescheiden (6.69%)
      • Verweduwd (3.35%)
      Leeftijd in wijk
      0 - 15 jaar
      15 - 25 jaar
      25-45 jaar
      45 - 65 jaar
      65+ jaar
      • 0 - 15 jaar (5.19%)
      • 15 - 25 jaar (17.78%)
      • 25 - 45 jaar (41.85%)
      • 45 - 65 jaar (20.74%)
      • 65+ jaar (14.44%)
      Geslacht
      • Mannen (47.94%)
      • Vrouwen (52.06%)
      Gezinnen met kinderen
      0 - 15 jaar
      15 - 25 jaar
      25-45 jaar
      • Met kinderen (8.06%)
      • Zonder kinderen (20.43%)
      • Éénpersoons huishoudens (71.51%)
      Woningen koop / huur
      • Koop (22.68%)
      • Huur (77.32%)
      Aantal inwoners:

      1335

      Schaduwwijzer

      Media

      Plattegronden

      Ander aanbod