Westravenstraat 20, Utrecht | Beumer

Westravenstraat 20

3522 TC, Utrecht

Deze sfeervolle jaren ’30 woning bevindt zich aan een leuke, gezellige en rustige straat te midden van de populaire Rivierenwijk. Deze lichte en en ruime eengezinswoning van ca. 93², gebouwd rond 1926 beschikt over 3 goede slaapkamers en een ruime zolderkamer, een diepe

  • 90 m2
  • 105 m2
  • Label C
  • 5 kamer(s)

€ 575.000,- k.k. Bereken maandlasten

Bereken maandlasten
Heb je een hypotheek nodig?

Omschrijving

Deze sfeervolle jaren ’30 woning bevindt zich aan een leuke, gezellige en rustige straat te midden van de populaire Rivierenwijk. Deze lichte en en ruime eengezinswoning van ca. 93², gebouwd rond 1926 beschikt over 3 goede slaapkamers en een ruime zolderkamer, een diepe achtertuin op het zuiden met een vrijstaande berging en een achterom via de poort van de buren (recht van overpad). Kenmerkend voor deze fijne gezinswoning is de zeer royale woonkamer, de speelse open keuken met grote hoeveelheid kast- en bergruimte en de lichte eethoek grenzend aan de tuin.

De locatie is perfect! De Rivierenwijk is een…

Deze sfeervolle jaren ’30 woning bevindt zich aan een leuke, gezellige en rustige straat te midden van de populaire Rivierenwijk. Deze lichte en en ruime eengezinswoning van ca. 93², gebouwd rond 1926 beschikt over 3 goede slaapkamers en een ruime zolderkamer, een diepe achtertuin op het zuiden met een vrijstaande berging en een achterom via de poort van de buren (recht van overpad). Kenmerkend voor deze fijne gezinswoning is de zeer royale woonkamer, de speelse open keuken met grote hoeveelheid kast- en bergruimte en de lichte eethoek grenzend aan de tuin.

De locatie is perfect! De Rivierenwijk is een gezellige, gemoedelijke en sfeervolle woonwijk aan de zuidwestzijde van de Utrechtse binnenstad met het Ledig Erf als gezellige invalshoek. Op korte afstand vind je alle wenselijke voorzieningen zoals supermarkten, leuke winkels, gezellige horecagelegenheden, sportfaciliteiten, openbaar vervoeraansluitingen (CS en Vaartsche Rijn op loop-/fietsafstand) en natuurlijk ook goede scholen, kinderopvang en leuke speeltuinen op korte afstand.

Ben je nieuwsgierig geworden? Maak dan snel een afspraak

Indeling
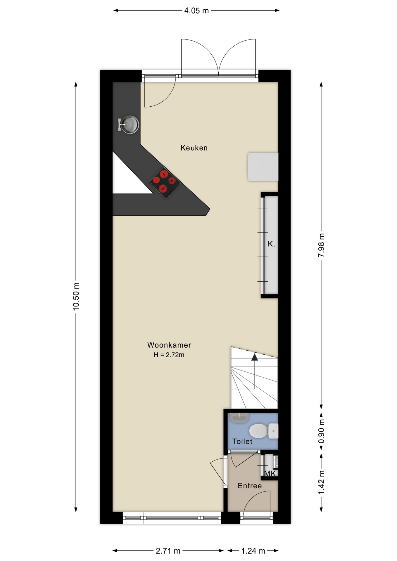
Begane grond:

Entree, hal met toilet, meterkast en doorgang naar de woonkamer. De doorzonwoonkamer is prettig in te delen en zeer aangenaam qua lichtinval door de grote raampartijen en de hoge plafonds. Aan de voorzijde van de woning is een ruime speelhoek gecreeerd voor de kinderen en de zithoek bevindt zich tussen de woonkamer aan straatzijde en de open keuken aan de tuinzijde.

Door de opstelling van de keuken is er kastruimte ontstaan die zowel vanuit de woonkamer als vanuit de open keuken te benutten is. De keuken is verrassend vormgegeven en voorzien van inbouwapparatuur. Verder is hij zo geplaatst dat er een prettige eetkamer is ontstaan welke grenst aan de tuin.

De gehele begane grond (m.u.v. de keukenruimte) is voorzien van een eikenhouten vloer.

Tuin:
Het huis is voorzien van een heerlijke achtertuin welke is gelegen op het zonnige zuiden. Dit betekent volop zonneschijn gedurende de hele dag. Achterin de tuin is een ruime, vrijstaande stenen berging en de achterom zorgt ervoor dat je eenvoudig je fiets kunt stallen.

De tuin is diep en heerlijk groen, beschikt over een vrijstaande berging en een achterom via een poort naast de woning welke breed genoeg is om met een bakfiets de tuin in - en uit te draaien.

Eerste verdieping:
Overloop, toegang tot twee multifunctionele (slaap)kamers aan de tuinzijde, een badkamer met ligbad, wastafel en douche en een slaapkamer over de breedte van de woning aan de straatzijde.

Tweede Verdieping:
Middels een vaste trap bereik je de tweede verdieping. Hier bevindt zich de vierde multifunctionele slaapkamer welke is voorzien van een grote dakkapel en een wastafel.

Bijzonderheden:
- Woonoppervlakte: ca. 93m2;
- Bouwjaar: medio 1926;
- Perceeloppervlakte: 105 m2 volle eigendom;
- Energielabel: C ;
- Verwarming- en warmwatervoorziening middels de CV-installatie;
- Meterkast verzwaard tbv fornuis
- Plat dak en hoofddak geisoleerd en dakbedekking vernieuwd 2024
- Spouwmuur isolatie voor en achter
- Vloerisolatie tussen de balkon
- Schoorsteen geinpregneerd 2025
- Schuurdak vernieuwd 2018
- PVC riolering vernieuwd
- Oplevering in overleg, indicatie wensoplevering december 2025.

Interesse in dit leuke woonhuis? Neem je NVM-Aankoopmakelaar mee!

Lees verder

Bewoners aan het woord

  • Opmerking

    We wonen bijna 9 jaar in dit huis. Twee van ons kinderen zijn geboren terwijl we er wonen. Wat we heel fijn aan vinden is de zonnige en heel erg ruim boven slaapkamer, de verrassend ruime woonkamer, de dakterras, de brede en niet al te steile trap, de zonnige maar ook bewust heel erg groene tuin (ook om schaduw te hebben) en hoe dicht bij alles van centrum Utrecht je zit. Vooral de slaapkamer en de woonkamer hebben het lastig gemaakt om een volgende woning te vinden omdat we vaak het gevoel hadden bij bezichtigingen dat we juist daarop achteruit gingen. Het is dus een moeilijk besluit geweest om te verhuizen! We hebben een pruimenboom in de tuin die sommige jaren tegen de 400 pruimen gaat produceren! Die gaan we heel erg missen. Zo hebben we ook druiven die goed werken in allerlei recepten werken. En de klimplant voor is prachtig in de herfst met alle kleuren van de regenboog in de bladen te zien.

Kenmerken

  • Vraagprijs € 575.000,- k.k.
  • Aanvaarding In overleg
  • Type Tussenwoning
  • Woonoppervlakte ca. 90 m2
  • Oppervlakte gebouwgebonden ca. 10 m2
  • Externe bergruimte ca. 11 m2
  • Slaapkamers 4
  • Inhoud ca. 305 m3
  • Perceeloppervlakte ca. 105 m2
  • Ligging tuin Zuid
  • Energielabel C
  • Isolatie Muurisolatie, vloerisolatie, dubbel glas
  • Verwarming Cv ketel
  • Voorzieningen Tv kabel
  • Parkeerfaciliteiten Openbaar parkeren
  • Garage Geen garage
Meer kenmerken

Kenmerken toegevoegd door verkoper, vrienden en familie

  • Kenmerk(en)
    Hele fijne lichte slaapkamer
  • Kenmerk(en)
    grote dakterras
  • Kenmerk(en)
    dichtbij bij Vaartsche Rijn (waar veel mensen zwemmen)
  • Kenmerk(en)
    hele groene tuin
  • Kenmerk(en)
    dicht bij centrum
  • Kenmerk(en)
    rustig

In de buurt

Westravenstraat 20 3522 TC Utrecht

      De buurt

      Leeftijd in wijk
      0 - 15 jaar
      15 - 25 jaar
      25-45 jaar
      45 - 65 jaar
      65+ jaar
      • 0 - 15 jaar (15.57%)
      • 15 - 25 jaar (13.58%)
      • 25 - 45 jaar (38.58%)
      • 45 - 65 jaar (21.08%)
      • 65+ jaar (11.19%)
      Geslacht
      • Mannen (47.25%)
      • Vrouwen (52.75%)
      Gezinnen met kinderen
      0 - 15 jaar
      15 - 25 jaar
      25-45 jaar
      • Met kinderen (24.65%)
      • Zonder kinderen (24.54%)
      • Éénpersoons huishoudens (50.81%)
      Aantal inwoners:

      8815

      Schaduwwijzer

      Media

      Plattegronden

      Situatie plattegrond

      Ander aanbod