Van Egmondkade 44, Utrecht | Beumer

Van Egmondkade 44

3553 JJ, Utrecht

Van Egmondkade 44, Utrecht Aan de gezellige wijk Zuilen, gelegen aan de noordwestzijde van Utrecht, is deze fijne benedenwoning in de verkoop gekomen. Het betreft een fraai afgewerkte jaren-’30 woning met een ruime en lichte living, keuken, wasruimte en slaapkamer aan

  • 60 m2
  • Label G
  • 3 kamer(s)

€ 325.000,- k.k. Bereken maandlasten

Bereken maandlasten
Heb je een hypotheek nodig?

Omschrijving

Van Egmondkade 44, Utrecht

Aan de gezellige wijk Zuilen, gelegen aan de noordwestzijde van Utrecht, is deze fijne benedenwoning in de verkoop gekomen. Het betreft een fraai afgewerkte jaren-’30 woning met een ruime en lichte living, keuken, wasruimte en slaapkamer aan de achterzijde. De woning is uitstekend onderhouden voorzien van dubbele beglazing, maar ademt authenticiteit door o.a. houten vloeren, een gemoderniseerde open haard en houten paneeldeuren in dito kozijnen. Kortom: een plek die veel sfeer ademt, perfect geschikt voor starters, singels of een stel. Je beschikt verder over een prettig diepe en zonnige achtertuin op het zuidwesten, zodat al vroeg…

Van Egmondkade 44, Utrecht

Aan de gezellige wijk Zuilen, gelegen aan de noordwestzijde van Utrecht, is deze fijne benedenwoning in de verkoop gekomen. Het betreft een fraai afgewerkte jaren-’30 woning met een ruime en lichte living, keuken, wasruimte en slaapkamer aan de achterzijde. De woning is uitstekend onderhouden voorzien van dubbele beglazing, maar ademt authenticiteit door o.a. houten vloeren, een gemoderniseerde open haard en houten paneeldeuren in dito kozijnen. Kortom: een plek die veel sfeer ademt, perfect geschikt voor starters, singels of een stel. Je beschikt verder over een prettig diepe en zonnige achtertuin op het zuidwesten, zodat al vroeg in het voorjaar tot laat in de nazomer heerlijk van de zon kunt genieten.

De Van Egmondkade is gelegen in de populaire wijk Zuilen, op enkele minuten wandelafstand van het Julianapark en de Amsterdamsestraatweg, waar je terecht kunt voor boodschappen uit alle hoeken van de wereld. Ook woon je op steenworp afstand van NS-station Zuilen, sportvelden en de Vecht. De gezellige binnenstad is snel bereikbaar per fiets, net als Utrecht Centraal. Via de uitvalswegen A2, A12, A27 en A28 rijd je snel naar omliggende steden.

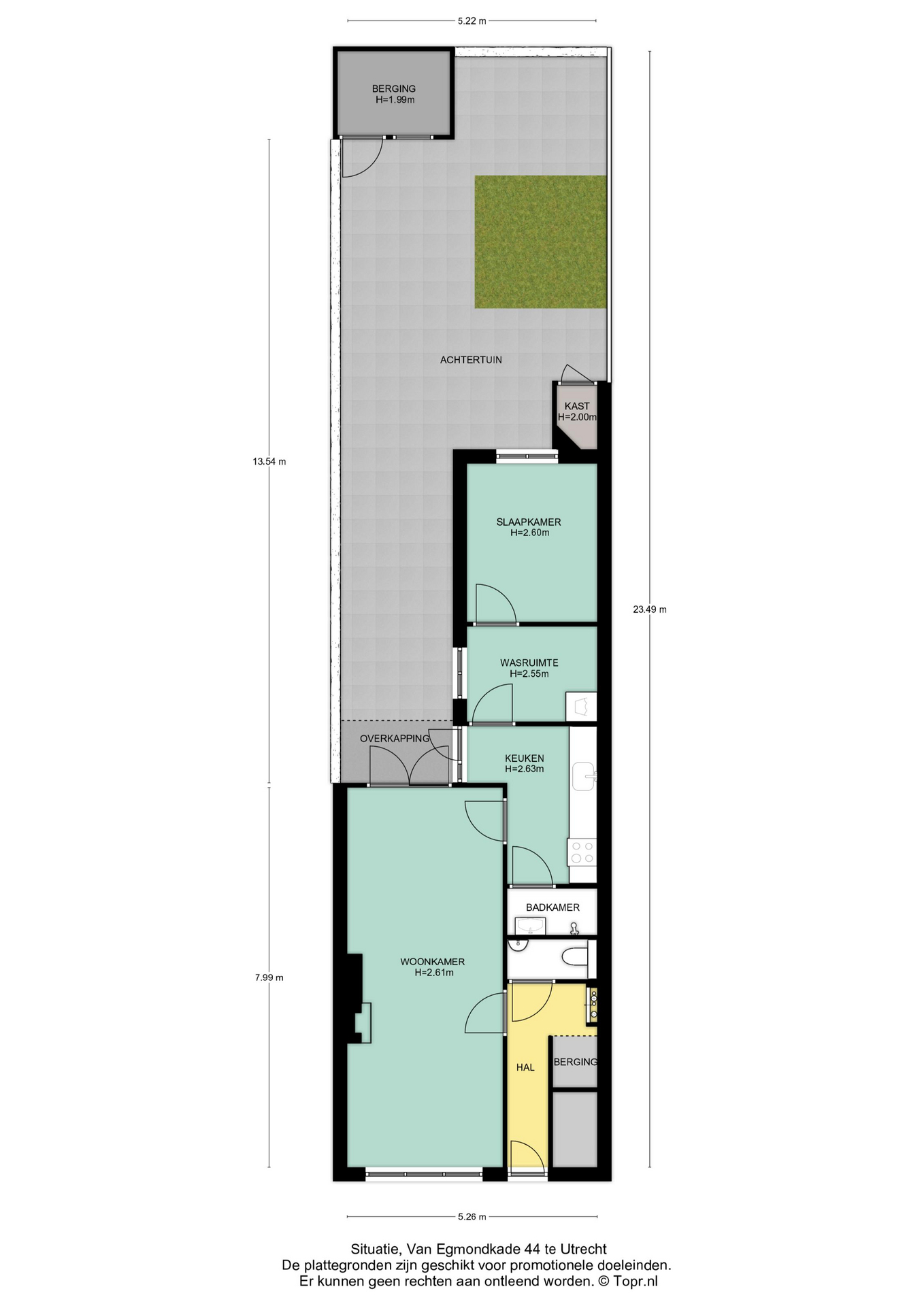
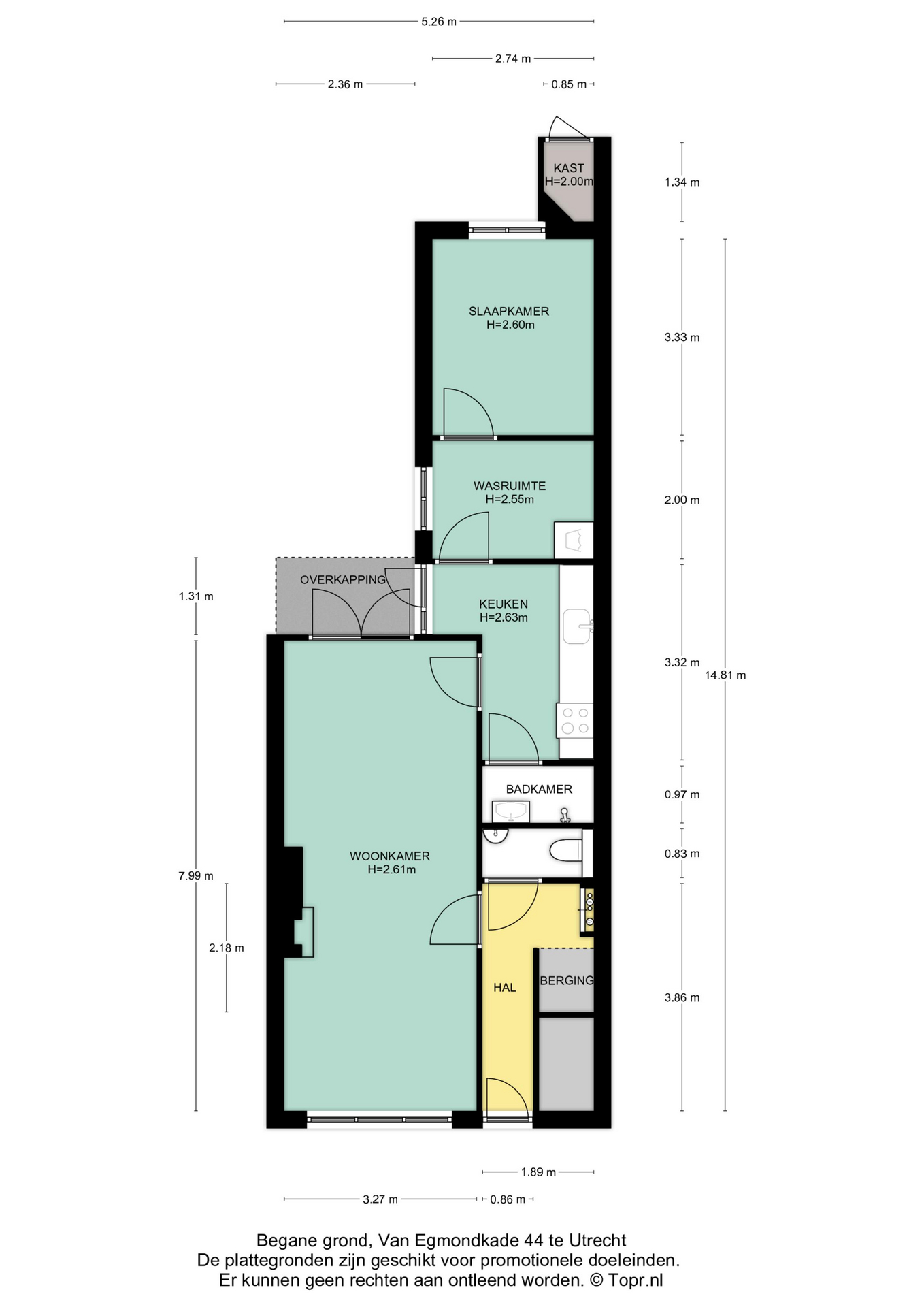
Indeling:

Begane grond:

Je komt binnen via de hal met bergruimte, garderobe, meterkast en nette toiletruimte. Vervolgens bereik je de ruime living. Deze is prettig licht door grote raampartijen aan voor- en achterzijde, en bijzonder sfeervol door o.a. een houten vloer met hoge plinten, paneeldeuren en een gemoderniseerde schouw met open haard en nisjes om mooie spullen in uit te stallen.

De schouw vormt op natuurlijke wijze de scheiding tussen de zit- en eethoek. Aan de achterzijde geven dubbele openslaande deuren toegang tot de tuin. De keuken is separaat en geeft via een openslaande deur toegang tot overkapping en tuin. Je vindt hier een recht keukenmeubel met houten werkblad en fraaie wandtegeltjes. Inbouwapparatuur betreft een vierpits gaskookplaat, afzuigkap, oven en vaatwasser. Blikvanger is de authentieke wandkast met glazen deurtjes.

Vanuit de keuken heb je toegang tot de badkamer met designradiator, douche en badkamermeubel met bergruimte, wastafel en spiegelkast met wandcontactdoos. Aan de overzijde van de keuken bevindt zich de wasruimte/bijkeuken met witgoedaansluitingen en bergruimte. Vanaf hier heb je toegang tot de slaapkamer, afgewerkt met een mooie laminaatvloer, hoge plinten, licht geschilderde wanden, radiator en raampartij met openslaande ramen, uitkijkend op de tuin.

Buiten:
De tuin aan zuidwestzijde is opvallend ruim. Door de gunstige ligging kun je hier ’s zomers tot laat op de avond van de zon genieten, onder de overkapping zit je lekker beschut. Er is ruimte voor meerdere zitjes, veel groen en een tuinhuisje achterin. Grenzend aan de uitbouw vind je een stenen kast.

Bijzonderheden:
• Woonoppervlakte: 57.9 m²
• Externe bergruimte: 5.3 m²
• Gebouwgebonden buitenruimte: 3.1 m²
• Inhoud: 224 m³
• Bouwjaar: 1930
• Benedenwoning
• Authentieke sfeer
• Living met moderne schouw
• V.v. dubbele beglazing muv achterdeur vanuit keuken naar tuin
• Cv-installatie uit 2006
• elektra in 2014 vernieuwd
• Separate wasruimte
• Ruime tuin aan zuidwestzijde
• Gunstige ligging t.o.v. voorzieningen en uitvalswegen
Interesse in deze woning? Kom gerust eens langs met je aankoopmakelaar!

Lees verder

Kenmerken

  • Vraagprijs € 325.000,- k.k.
  • Aanvaarding In overleg
  • Woonoppervlakte ca. 60 m2
  • Oppervlakte gebouwgebonden ca. 3 m2
  • Externe bergruimte ca. 5 m2
  • Slaapkamers 1
  • Inhoud ca. 225 m3
  • Ligging tuin Zuidwest
  • Energielabel G
  • Isolatie Grotendeels dubbelglas
  • Verwarming Cv ketel
  • C.v.-ketel bouwjaar 2006
  • Parkeerfaciliteiten Openbaar parkeren
  • Garage Geen garage
Meer kenmerken

In de buurt

Van Egmondkade 44 3553 JJ Utrecht

      De buurt

      Burgerlijke staat in wijk
      Gehuwd
      Ongehuwd
      Gescheiden
      Verweduwd
      • Gehuwd (19.71%)
      • Ongehuwd (75.12%)
      • Gescheiden (3.55%)
      • Verweduwd (1.62%)
      Leeftijd in wijk
      0 - 15 jaar
      15 - 25 jaar
      25-45 jaar
      45 - 65 jaar
      65+ jaar
      • 0 - 15 jaar (11.65%)
      • 15 - 25 jaar (23.30%)
      • 25 - 45 jaar (45.15%)
      • 45 - 65 jaar (14.08%)
      • 65+ jaar (5.83%)
      Geslacht
      • Mannen (48.38%)
      • Vrouwen (51.62%)
      Gezinnen met kinderen
      0 - 15 jaar
      15 - 25 jaar
      25-45 jaar
      • Met kinderen (15.46%)
      • Zonder kinderen (19.33%)
      • Éénpersoons huishoudens (65.21%)
      Woningen koop / huur
      • Koop (50.00%)
      • Huur (50.00%)
      Aantal inwoners:

      3080

      Schaduwwijzer

      Media

      Plattegronden

      360°

      3

      Ander aanbod