Sartreweg 97, Utrecht | Beumer

Sartreweg 97

3573 PW, Utrecht

Unieke kans! Vanaf heden kunt u eigenaar worden van een luxe en licht appartement in appartementencomplex ‘Superlofts Blok Y’, gelegen in de moderne en groene wijk Veemarkt in Utrecht. Het in 2017 gebouwde complex viel in 2018 in de prijzen bij de Branchevereniging

  • 181 m2
  • 113 m2
  • Label A++
  • 6 kamer(s)

€ 1.150.000,- k.k. Bereken maandlasten

Bereken maandlasten
Heb je een hypotheek nodig?

Omschrijving

Unieke kans! Vanaf heden kunt u eigenaar worden van een luxe en licht appartement in appartementencomplex ‘Superlofts Blok Y’, gelegen in de moderne en groene wijk Veemarkt in Utrecht.
Het in 2017 gebouwde complex viel in 2018 in de prijzen bij de Branchevereniging Nederlandse Architectenbureaus, bekroond als beste gebouw van het jaar in de categorie Particuliere Woonbeleving. De architect, Marc Koehler, werkte bij de realisatie nauw samen met de toekomstige bewoners, met als resultaat slim uitgedachte, prettig ingedeelde appartementen met de focus op duurzaamheid en kwaliteit.

Het appartement is uitstekend afgewerkt en biedt alle comfort, licht en ruimte, verdeeld…

Unieke kans! Vanaf heden kunt u eigenaar worden van een luxe en licht appartement in appartementencomplex ‘Superlofts Blok Y’, gelegen in de moderne en groene wijk Veemarkt in Utrecht.
Het in 2017 gebouwde complex viel in 2018 in de prijzen bij de Branchevereniging Nederlandse Architectenbureaus, bekroond als beste gebouw van het jaar in de categorie Particuliere Woonbeleving. De architect, Marc Koehler, werkte bij de realisatie nauw samen met de toekomstige bewoners, met als resultaat slim uitgedachte, prettig ingedeelde appartementen met de focus op duurzaamheid en kwaliteit.

Het appartement is uitstekend afgewerkt en biedt alle comfort, licht en ruimte, verdeeld over twee woonlagen, met een ruim balkon op het westen, waardoor u van ’s middags tot laat in de avond van de zon kunt genieten. Door de ligging aan de achterzijde van het complex heeft u heerlijk uitzicht op water en veel groen. Door de grote glaspartijen kan men op zowel de woon- als de slaapverdieping fraai wegkijken.

Voor de auto is er een eigen parkeerplek in de overdekte en beveiligde parkeergarage op de begane grond, waar zich ook de gemeenschappelijke fietsenstalling en een eigen berging (circa 4 m²) bevinden. Deze berging en de parkeerplaats zijn te bereiken via toegangsdeuren aan de zijkant van het gebouw.

Qua voorzieningen is het appartement ook perfect gelegen. Veemarkt is een ruim opgezette wijk; u woont naast een groot tuinencomplex en op wandelafstand van winkelcentrum De Gaard, sportvelden, openbaar vervoer en wandelgebieden als de Voorveldse Polder en Fort Blauwkapel. Zowel bij De Gaard als aan de rand van de Voorveldse Polder zijn terras- en eetgelegenheden te vinden. De Uithof en het UMC Utrecht zijn per fiets gemakkelijk bereikbaar. Ook de bruisende binnenstad ligt op 10 minuten fietsen. Via de A27 en A28 rijdt u snel naar steden als Amsterdam, Rotterdam, Hilversum en Arnhem.
Het park Voorveldse Polder heeft verschillende sportgelegenheden, met o.a. sportvelden, een trim-/hardloopbaan, tennisclub, maneges, een zwemvijver voor kinderen met strand en ligweide, en diverse restaurants en terrasjes aan de rand van het park.

Kortom, de perfecte loft op de perfecte plek! Komt u kijken?

De indeling

Gemeenschappelijke ruimtes

Begane grond: Gemeenschappelijke entree met bellentableau, brievenbussen, trap en lift. Via deze entree kan men tevens de berging bereiken.

1e verdieping: Gemeenschappelijk terras, van waaruit u ook toegang heeft tot een gemeenschappelijke vlonder aan het water op de begane grond, bereikbaar via de gemeenschappelijke tuin.

Het appartement

3e verdieping: Entree, hal met meterkast, toiletruimte, ruime stookruimte, toegang tot de royale woonkamer met nis en grote raampartij; eveneens ruime open keuken met fijne eethoek en modern keukenblok voorzien van inbouwapparatuur (combi-oven, inductiekookplaat, afzuigkap, koel-/vriescombinatie, Quooker en vaatwasser). Vanuit de eethoek is het royale balkon op het westen bereikbaar, met een groen uitzicht over moestuinen. In de keuken bevindt zich tevens de deur naar de trap naar:

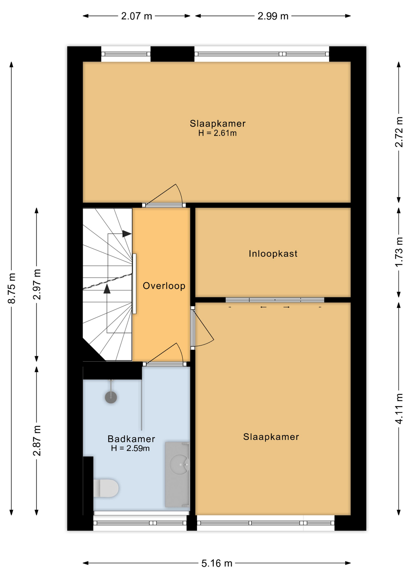
4e verdieping: Overloop met kast met opstelplaats voor witgoed; drie slaapkamers, alle gelegen aan de achterzijde met prachtig uitzicht op het groen; ruime moderne badkamer voorzien van douche, dubbele wastafel en tweede toilet.

Bijzonderheden

- De woning is ruim (circa 98 m²) en heeft diverse ruimtes, waaronder 3 volwaardige slaapkamers, een moderne living en een moderne
leefkeuken.
- Vloerverwarming en -koeling door het hele huis voor het hele jaar door comfort.
- Over het gehele vloeroppervlak ligt een fraaie gietvloer.
- Geautomatiseerde zonwering (screens) op beide verdiepingen.
- Duurzaam gebouw met warmteterugwinsysteem (WTW), (bodem)warmtepomp en zonder gasaansluiting.
- Snelle internetconnectiviteit via glasvezelaansluiting en meerdere datapunten.
- Een goed beheerde en financieel stabiele VvE (Vereniging van Eigenaren).
- De servicekosten voor woning, berging en parkeerplaats bedragen samen € 126,43 per maand voor 2025 (gelijk aan 2024).

Is uw interesse in deze eigentijdse, lichte en duurzame woning met luxe voorzieningen en onderscheidende architectuur gewekt? Neem contact op voor een persoonlijke bezichtiging.

Lees verder

Bewoners aan het woord

  • Opmerking

    De afgelopen 5 jaar hebben we met heel veel aan de Sartreweg gewoond. Nu de kinderen uit huis zijn wordt dit thuis voor ons tweeën te groot. Het huis en de prachtige binnentuin is zeer geschikt voor een gezin met (jonge) kinderen en voor mensen die graag op fietsafstand van het centrum willen wonen. Je zit binnen een paar minuten op de a27 en a28.
    Er is een actieve bewonerscommissie die activiteiten organiseert voor jong en oud.

Kenmerken

  • Vraagprijs € 1.150.000,- k.k.
  • Aanvaarding In overleg
  • Type Tussenwoning
  • Bouwjaar 2019
  • Woonoppervlakte ca. 181 m2
  • Oppervlakte gebouwgebonden ca. 11 m2
  • Externe bergruimte ca. 6 m2
  • Slaapkamers 5
  • Inhoud ca. 619 m3
  • Perceeloppervlakte ca. 113 m2
  • Energielabel A++
  • Isolatie Volledig geisoleerd
  • Verwarming Cv ketel, vloerverwarming gedeeltelijk
  • C.v.-ketel bouwjaar 2019
  • Voorzieningen Frans balkon, glasvezel kabel, zonnepanelen, balansventilatie
  • Parkeerfaciliteiten Betaald parkeren, parkeergarage
  • Garage Parkeerkelder, parkeerplaats
Meer kenmerken

Kenmerken toegevoegd door verkoper, vrienden en familie

  • Kenmerk(en)
    Binnen 15 minuten op de fiets in het centrum
  • Kenmerk(en)
    Dichtbij winkelcentrum
  • Kenmerk(en)
    Goede uitvalswegen
  • Kenmerk(en)
    Veel opbergruimte
  • Kenmerk(en)
    Vrij uitzicht
  • Kenmerk(en)
    Fijne lichtinval
  • Kenmerk(en)
    Dichtbij OV
  • Kenmerk(en)
    Voldoende parkeergelegenheid
  • Kenmerk(en)
    Energiezuinig
  • Kenmerk(en)
    Kindvriendelijke buurt
  • Kenmerk(en)
    Groene omgeving
  • Kenmerk(en)
    Gezellige buren
  • Kenmerk(en)
    Zonnige tuin

In de buurt

Sartreweg 97 3573 PW Utrecht

      De buurt

      Leeftijd in wijk
      0 - 15 jaar
      15 - 25 jaar
      25-45 jaar
      45 - 65 jaar
      65+ jaar
      • 0 - 15 jaar (15.69%)
      • 15 - 25 jaar (12.52%)
      • 25 - 45 jaar (22.82%)
      • 45 - 65 jaar (38.51%)
      • 65+ jaar (10.46%)
      Geslacht
      • Mannen (48.10%)
      • Vrouwen (51.90%)
      Gezinnen met kinderen
      0 - 15 jaar
      15 - 25 jaar
      25-45 jaar
      • Met kinderen (32.13%)
      • Zonder kinderen (23.61%)
      • Éénpersoons huishoudens (44.26%)
      Aantal inwoners:

      3160

      Schaduwwijzer

      Media

      Plattegronden

      Plattegrond tweede verdieping

      Ander aanbod