Prof. Zonnebloemlaan 17, Utrecht | Beumer

Prof. Zonnebloemlaan 17

3571 KP, Utrecht

Royale en energiezuinige hoekwoning in het geliefde Tuindorp In het gewilde Tuindorp-Oost staat deze ruime en uitstekend onderhouden hoekwoning met een fijne zonnige tuin op het zuiden, drie slaapkamers, een royale woonkeuken en een opvallend lichte woonkamer. De

  • 123 m2
  • 116 m2
  • Label A
  • 5 kamer(s)

€ 700.000,- k.k. Bereken maandlasten

Bereken maandlasten
Heb je een hypotheek nodig?

Omschrijving

Royale en energiezuinige hoekwoning in het geliefde Tuindorp

In het gewilde Tuindorp-Oost staat deze ruime en uitstekend onderhouden hoekwoning met een fijne zonnige tuin op het zuiden, drie slaapkamers, een royale woonkeuken en een opvallend lichte woonkamer. De woning ligt op een rustige locatie met vrij uitzicht op het water en de gezamenlijke Prof. Zonnebloemtuin. Dankzij de hoekligging, grote raampartijen, moderne isolatievoorzieningen en zonnepanelen is dit een comfortabel en energiezuinig huis.

Met winkelcentrum De Gaard direct aan de overkant, inclusief supermarkt, speciaalzaken en horeca, is dit een plek waar rust en gemak samenkomen. Scholen, speeltuinen en sportvoorzieningen liggen op loopafstand.…

Royale en energiezuinige hoekwoning in het geliefde Tuindorp

In het gewilde Tuindorp-Oost staat deze ruime en uitstekend onderhouden hoekwoning met een fijne zonnige tuin op het zuiden, drie slaapkamers, een royale woonkeuken en een opvallend lichte woonkamer. De woning ligt op een rustige locatie met vrij uitzicht op het water en de gezamenlijke Prof. Zonnebloemtuin. Dankzij de hoekligging, grote raampartijen, moderne isolatievoorzieningen en zonnepanelen is dit een comfortabel en energiezuinig huis.

Met winkelcentrum De Gaard direct aan de overkant, inclusief supermarkt, speciaalzaken en horeca, is dit een plek waar rust en gemak samenkomen. Scholen, speeltuinen en sportvoorzieningen liggen op loopafstand. Voor de kinderen is de grote speeltuin De Pan een absolute plus. Binnen 7 minuten fiets je naar het centrum van Utrecht en binnen 4 minuten sta je op station Utrecht Overvecht. Met de auto ben je binnen 5 minuten op de ring en de belangrijkste uitvalswegen.

Indeling

Begane grond:
Je komt binnen in de hal met toilet en trapopgang. De royale woonkeuken grenzend aan de tuin is een lichte en fijne leefruimte door de grote glazen pui naar de fijne tuin op het zuiden.
De keuken is uitgerust met moderne inbouwapparatuur zoals combi-oven, vaatwasser, koelkast, afzuigkap en een 5-pits gaskookplaat (inclusief wokbrander). Daarnaast zijn er twee praktische inpandige bergingen; één grenzend aan de keuken met voorraad en opstelplaats voor witgoed en verder een grote berging direct naast de voordeur, ideaal voor een extra koelvrieskast, fietsen of hobbyspullen.

Eerste verdieping:
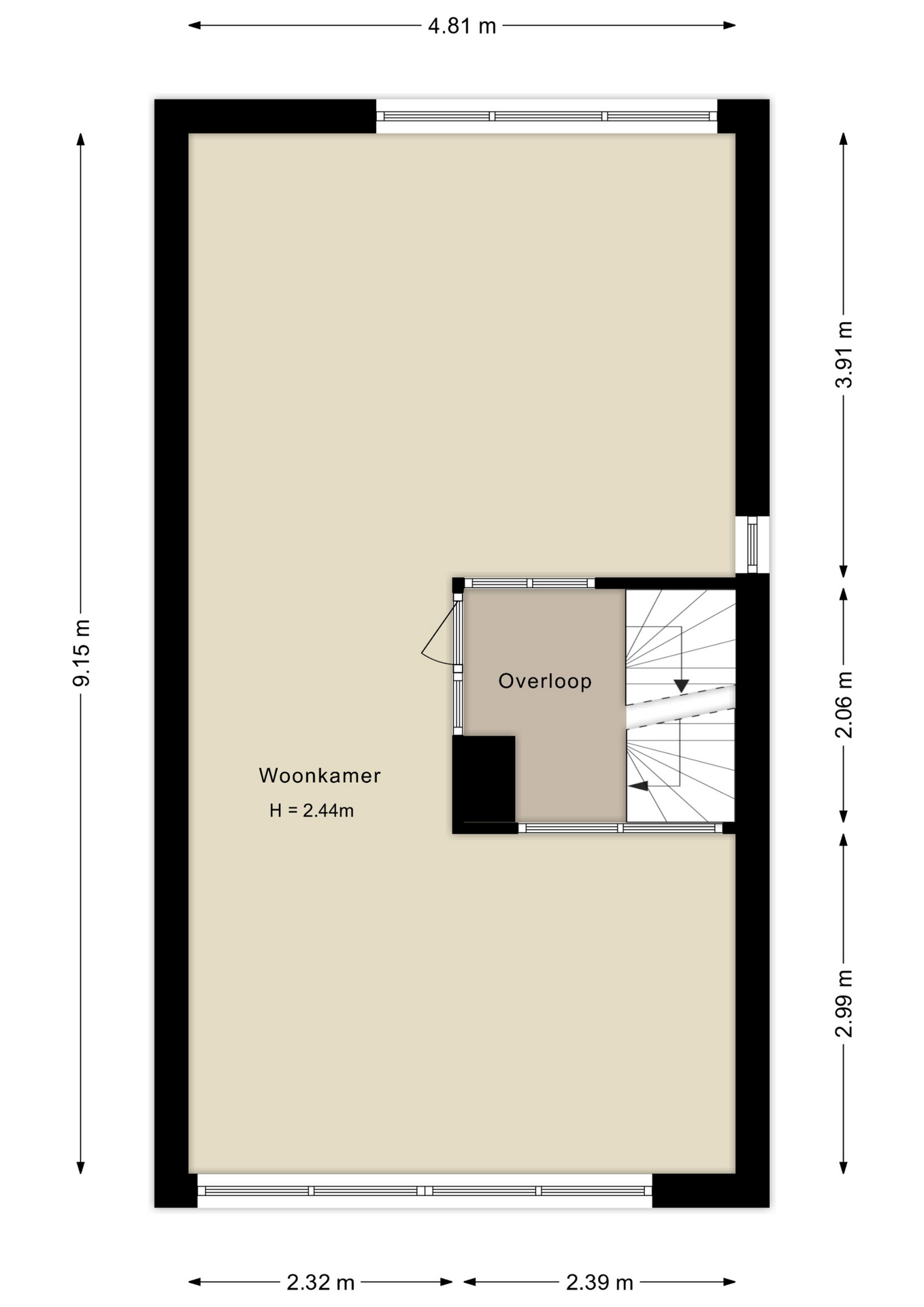
Hier bevindt zich de ruime en lichte woonkamer. Omdat de woonkamer op de eerste verdieping ligt, heb je extra privacy en een bijzonder vrij uitzicht op het water en groen.

Tweede verdieping:
Op deze verdieping liggen drie slaapkamers, de grote ouderslaapkamer aan de straatzijden en twee kleinere kamers aan tuinzijde waarvan één met uitzicht op de Dom. De moderne badkamer is voorzien van een douche, toilet en dubbele wastafel. Op de overloop is een handige vaste kast aanwezig met cv-ketel.

Tuin:
De diepe, op het zuiden gelegen, achtertuin biedt de hele dag zon en is ingericht met een groot terras en groen. De woning is uitgerust met zipscreens (Roma) en een zonnescherm (Luxaflex), ideaal voor warme dagen.

Bijzonderheden:
- 123 m² woonoppervlakte
- Energielabel A
- 8 zonnepanelen en volledig geïsoleerd
- Gebouwd in 1998
- Diepe zonnige maar ook beschutte tuin op het zuiden
- Erfpacht eeuwigdurend afgekocht (AV 1989)
- Voldoende parkeerruimte in de straat
- Oplevering in overleg

Lees verder

Bewoners aan het woord

  • Opmerking

    Het huis ligt er rustig en licht mooi groen aan het water. Wij zijn de tweede bewoners van het huis. De eerste bewoner was projectontwikkelaar van deze wijk en heeft destijds voor dit huis gekozen. Wij snappen wel waarom! Met een tuin op het zuiden zit je heerlijk uit de wind al vroeg in de lente buiten en ook lang in de herfst. Wij hebben hier 8 jaar met heel veel plezier gewoond, maar het is voor ons tijd voor de volgende stap naar een kleinere gemeente.

Kenmerken

  • Vraagprijs € 700.000,- k.k.
  • Aanvaarding In overleg
  • Type Hoekwoning
  • Bouwjaar 1998
  • Woonoppervlakte ca. 123 m2
  • Oppervlakte gebouwgebonden ca. 3 m2
  • Overige inpandige ruimte ca. 6 m2
  • Slaapkamers 3
  • Inhoud ca. 437 m3
  • Perceeloppervlakte ca. 116 m2
  • Ligging tuin Zuid
  • Energielabel A
  • Isolatie Volledig geisoleerd
  • Verwarming Cv ketel
  • C.v.-ketel bouwjaar 2009
  • Voorzieningen Mechanische ventilatie, tv kabel, zonnepanelen
  • Parkeerfaciliteiten Betaald parkeren, parkeervergunningen
  • Garage Geen garage
Meer kenmerken

Kenmerken toegevoegd door verkoper, vrienden en familie

  • Kenmerk(en)
    Huis is rustig gelegen
  • Kenmerk(en)
    Grote lichte en rustige woonkamer
  • Kenmerk(en)
    Alle voorzieningen dichtbij

In de buurt

Prof. Zonnebloemlaan 17 • 3571 KP • Utrecht

      De buurt

      Burgerlijke staat in wijk
      Gehuwd
      Ongehuwd
      Gescheiden
      Verweduwd
      • Gehuwd (27.16%)
      • Ongehuwd (57.37%)
      • Gescheiden (7.55%)
      • Verweduwd (7.91%)
      Leeftijd in wijk
      0 - 15 jaar
      15 - 25 jaar
      25-45 jaar
      45 - 65 jaar
      65+ jaar
      • 0 - 15 jaar (12.41%)
      • 15 - 25 jaar (12.41%)
      • 25 - 45 jaar (27.70%)
      • 45 - 65 jaar (24.10%)
      • 65+ jaar (23.38%)
      Geslacht
      • Mannen (45.75%)
      • Vrouwen (54.25%)
      Gezinnen met kinderen
      0 - 15 jaar
      15 - 25 jaar
      25-45 jaar
      • Met kinderen (20.93%)
      • Zonder kinderen (24.25%)
      • Éénpersoons huishoudens (54.82%)
      Woningen koop / huur
      • Koop (61.80%)
      • Huur (38.20%)
      Aantal inwoners:

      2765

      Schaduwwijzer

      Media

      Plattegronden

      Plattegrond tweede verdieping

      Ander aanbod