Paukenlaan 16, Nieuwegein | Beumer

Paukenlaan 16

3438 GN, Nieuwegein

Ontdek jouw nieuwe thuis: veelzijdig en ruim woonhuis wacht op jouw gezin. Voor jonge gezinnen en degene die meer plaats nodig hebben met opgroeiende kinderen, deze stek biedt het allemaal. Stel je een royale zonnige achtertuin voor, perfect voor die lange zomeravonden.

  • 103 m2
  • 112 m2
  • Label B
  • 5 kamer(s)

€ 450.000,- k.k. Bereken maandlasten

Bereken maandlasten
Heb je een hypotheek nodig?

Omschrijving

Ontdek jouw nieuwe thuis: veelzijdig en ruim woonhuis wacht op jouw gezin. Voor jonge gezinnen en degene die meer plaats nodig hebben met opgroeiende kinderen, deze stek biedt het allemaal. Stel je een royale zonnige achtertuin voor, perfect voor die lange zomeravonden. Binnen tref je een praktische leefruimte aan, compleet met een parketvloer en genoeg kamers voor iedereen.

Hoogtepunten van de woning:
- Royale zonnige achtertuin met ideale ligging op het westen;
- Energielabel B;
- Een woonoppervlakte van 103 m², verdeeld over meerdere lichte en luchtige kamers;
- Ruim perceel van 367 m²;

Ontdek jouw nieuwe thuis: veelzijdig en ruim woonhuis wacht op jouw gezin. Voor jonge gezinnen en degene die meer plaats nodig hebben met opgroeiende kinderen, deze stek biedt het allemaal. Stel je een royale zonnige achtertuin voor, perfect voor die lange zomeravonden. Binnen tref je een praktische leefruimte aan, compleet met een parketvloer en genoeg kamers voor iedereen.

Hoogtepunten van de woning:
- Royale zonnige achtertuin met ideale ligging op het westen;
- Energielabel B;
- Een woonoppervlakte van 103 m², verdeeld over meerdere lichte en luchtige kamers;
- Ruim perceel van 367 m²;
- De woning heeft vier ruime slaapkamers, ideaal voor gezinnen die op zoek zijn naar extra ruimte;

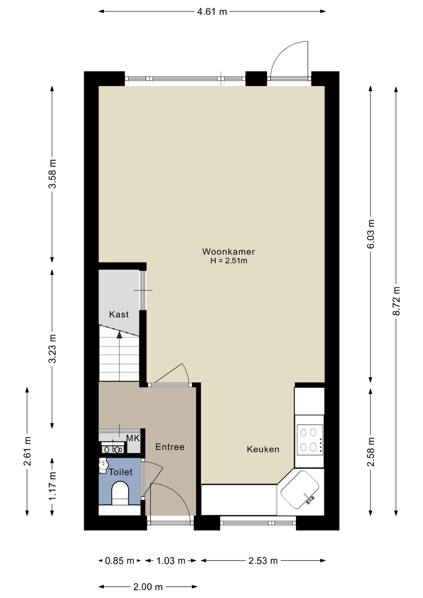
Indeling:
Begane grond:
De hal/entree biedt toegang tot de riante woonkamer, het toilet, de meterkast en trapopgang naar de eerste verdieping. De woonkamer is erg ruim van opzet en voorzien van een trapkast, parketvloer, grote raampartijen en een open inbouwkeuken. De nette keuken beschikt over alle benodigde apparatuur. Via de woonkamer is tevens de royale achtertuin op het westen te bereiken. Deze is verzorgd aangelegd, beschikt over een goede zonligging op het westen, alsmede een stenen berging en achterom. Hier kan optimaal genoten worden van de zon.

Eerste verdieping:
Hier bevinden zich een drietal goed bemeten slaapkamers en de ruime badkamer met ligbad, toilet en wastafel.

Tweede verdieping:
De overloop met wasmachine-aansluiting biedt toegang tot de vierde royale slaapkamer met dakkapel. Hier kunnen eenvoudig twee slaapkamers gecreëerd worden. Ook geeft deze toegang tot de bergvliering.

Zuilenstein is een rustige en groene wijk, ideaal voor gezinnen. De buurt heeft diverse voorzieningen zoals scholen, winkels en openbaar vervoer op loopafstand. Ook zijn er meerdere parken en speeltuinen in de omgeving, perfect voor kinderen om buiten te spelen. De ligging is gunstig ten opzichte van uitvalswegen, waardoor je snel in het centrum van de stad of op de snelweg bent.

Bijzonderheden van de woning:
- Parketvloer in de woonkamer;
- Energielabel B;
- Woonoppervlakte van 103 m²;
- Perceeloppervlakte van 367 m²;
- Tuin gelegen op het westen;
- Vier ruim opgezette slaapkamers;
- Ruime en lichte woonkamer van 26 m²;
- Grotendeels voorzien van dubbel glas;
- Oplevering in overleg.

Neem je NVM makelaar mee naar de bezichtiging. Zeker weten dat je deze woning kunt betalen? Beumer Hypotheken kijkt graag met je mee!

Lees verder

Kenmerken

  • Vraagprijs € 450.000,- k.k.
  • Aanvaarding In overleg
  • Type Tussenwoning
  • Bouwjaar 1981
  • Woonoppervlakte ca. 103 m2
  • Overige inpandige ruimte ca. 3 m2
  • Externe bergruimte ca. 7 m2
  • Slaapkamers 4
  • Inhoud ca. 367 m3
  • Perceeloppervlakte ca. 112 m2
  • Ligging tuin West
  • Energielabel B
  • Isolatie Grotendeels dubbelglas
  • Verwarming Stadsverwarming
  • Voorzieningen Mechanische ventilatie, tv kabel, buitenzonwering, dakraam, glasvezel kabel
  • Parkeerfaciliteiten Openbaar parkeren
  • Garage Geen garage
Meer kenmerken

In de buurt

Paukenlaan 16 • 3438 GN • Nieuwegein

      De buurt

      Leeftijd in wijk
      0 - 15 jaar
      15 - 25 jaar
      25-45 jaar
      45 - 65 jaar
      65+ jaar
      • 0 - 15 jaar (16.18%)
      • 15 - 25 jaar (10.88%)
      • 25 - 45 jaar (25.04%)
      • 45 - 65 jaar (31.99%)
      • 65+ jaar (15.92%)
      Geslacht
      • Mannen (49.23%)
      • Vrouwen (50.77%)
      Gezinnen met kinderen
      0 - 15 jaar
      15 - 25 jaar
      25-45 jaar
      • Met kinderen (36.45%)
      • Zonder kinderen (32.13%)
      • Éénpersoons huishoudens (31.41%)
      Aantal inwoners:

      9415

      Schaduwwijzer

      Media

      Plattegronden

      Ander aanbod