Merwedekade 233, Utrecht | Beumer

Merwedekade 233

3522 JN, Utrecht

Karaktervolle jaren ’30 woning met tuin en vrij uitzicht – Merwedekade 233, Utrecht Aan de geliefde Merwedekade, met het Merwedeplantsoen waar je uitzicht heb op de boten voor de deur, staat deze sfeervolle en goed onderhouden jaren ’30 gezinswoning van ruim 157 m²

  • 146 m2
  • 131 m2
  • Label C
  • 6 kamer(s)

€ 900.000,- k.k. Bereken maandlasten

Bereken maandlasten
Heb je een hypotheek nodig?

Omschrijving

Karaktervolle jaren ’30 woning met tuin en vrij uitzicht – Merwedekade 233, Utrecht

Aan de geliefde Merwedekade, met het Merwedeplantsoen waar je uitzicht heb op de boten voor de deur, staat deze sfeervolle en goed onderhouden jaren ’30 gezinswoning van ruim 157 m² waarvan 11 op de zolderverdieping. De woning combineert authentieke details met modern wooncomfort, biedt drie volwaardige verdiepingen én een ruime tuin met berging. Een heerlijke plek om rustig te wonen, op korte afstand van het centrum van Utrecht.

Indeling
Begane grond;
Via de entree kom je in de hal met trapopgang, kelderkast en een modern…

Karaktervolle jaren ’30 woning met tuin en vrij uitzicht – Merwedekade 233, Utrecht

Aan de geliefde Merwedekade, met het Merwedeplantsoen waar je uitzicht heb op de boten voor de deur, staat deze sfeervolle en goed onderhouden jaren ’30 gezinswoning van ruim 157 m² waarvan 11 op de zolderverdieping. De woning combineert authentieke details met modern wooncomfort, biedt drie volwaardige verdiepingen én een ruime tuin met berging. Een heerlijke plek om rustig te wonen, op korte afstand van het centrum van Utrecht.

Indeling
Begane grond;
Via de entree kom je in de hal met trapopgang, kelderkast en een modern toilet.
De ruime woonkamer is licht en sfeervol, met een karakteristieke erker aan de voorzijde en prettig uitzicht over de kade. Aan de achterzijde bevindt zich de moderne open keuken, voorzien van inbouwapparatuur en boiler, een kookeiland en veel werk- en opbergruimte. Vanuit de keuken stap je via een moderne schuifpui direct de tuin in.

De achtertuin is verzorgd en diep, met ruimte voor een loungehoek, eettafel en veel groen. Achterin staat een stenen berging, ideaal voor fietsen en tuinspullen, met achterom.

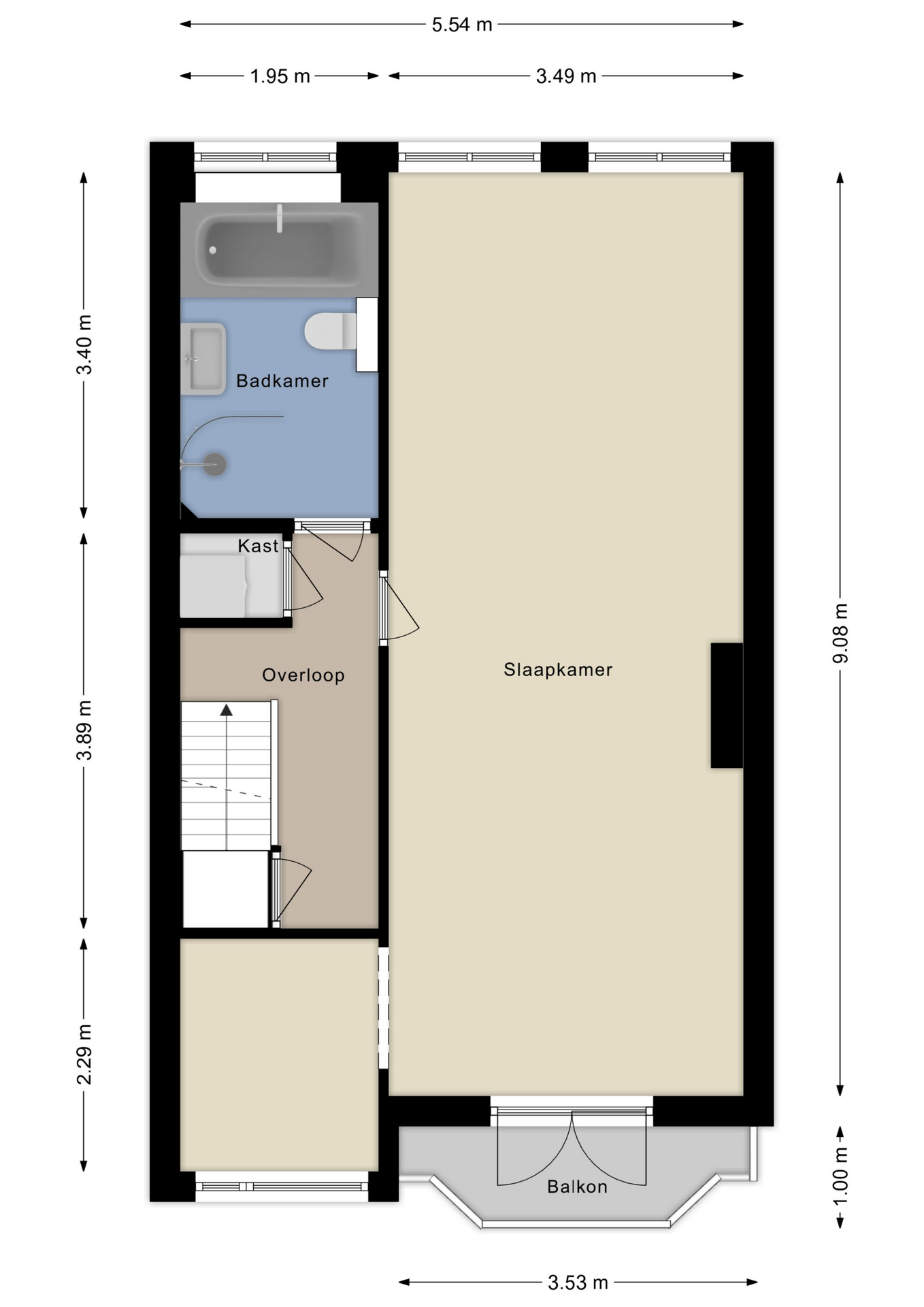
Eerste verdieping;
De L-vormige slaapkamer beslaat de volledige lengte van de woning en heeft direct toegang tot een balkon. Deze is eenvoudig in twee aparte kamers te splitsen.
De badkamer heeft vloerverwarming, een designradiator, een aparte douche en een bubbelbad.
Op deze verdieping bevindt zich ook de aansluiting voor de wasmachine, met voldoende ruimte voor een droger.

Tweede verdieping;
De tweede verdieping is momenteel ingericht als open ruimte met veel lichtinval dankzij de dakramen. Hier bevindt zich tevens een tweede badkamer, voorzien van douche, wastafel en toilet. Deze verdieping biedt de mogelijkheid om eenvoudig één of twee extra slaapkamers te realiseren. De vaste kasten zorgen voor extra bergruimte.
Hier bevindt zich ook de CV-ketel en de apparatuur van de zonnepanelen.

Vide;
De bovenste verdieping is verrassend ruim en voorzien van dakramen en vaste kastruimte. Deze lichte zolder kan worden ingericht als extra slaapkamer, hobbyruimte of thuiskantoor.

Bijzonderheden;
- Woonoppervlakte: ca. 157m² waarvan 11m² overig inpandig op de 3e verdieping;
- Bouwjaar: 1930;
- Energielabel C;
- Verwarming en warm water via cv-ketel;
- Zonnepanelen
- Twee badkamers;
- Authentieke jaren ’30 details behouden;
- Ruime achtertuin met berging en achterom;
- Rustige ligging aan het water met vrij uitzicht;
- Op fietsafstand van het centrum van Utrecht;
- Betaald parkeren of met vergunning op de openbare weg;
- Oplevering in overleg.

Omgeving
De Merwedekade is een rustige, kindvriendelijke straat in Utrecht-Zuid, met uitzicht op het water en volop groen in de omgeving. Winkels, scholen, parken en gezellige horecagelegenheden liggen op loop- of fietsafstand. Ook het centrum en het Centraal Station zijn binnen enkele minuten bereikbaar.
Een ideale woning voor wie houdt van ruimte, karakter en een rustige ligging dicht bij de stad.
De ligging is ideaal voor het verkeer: Je bent binnen 10 minuten fietsen op het Centraal station, heeft daarnaast ook uitstekende verbindingen met het openbaar vervoer en de uitvalswegen A2 en A27.

Nieuwsgierig geworden?
Neem dan gerust contact met ons op voor het plannen van een bezichtiging!

Lees verder

Kenmerken

  • Vraagprijs € 900.000,- k.k.
  • Aanvaarding In overleg
  • Type Tussenwoning
  • Bouwjaar 1930
  • Woonoppervlakte ca. 146 m2
  • Oppervlakte gebouwgebonden ca. 3 m2
  • Overige inpandige ruimte ca. 11 m2
  • Externe bergruimte ca. 12 m2
  • Slaapkamers 3
  • Inhoud ca. 559 m3
  • Perceeloppervlakte ca. 131 m2
  • Ligging tuin Oost
  • Energielabel C
  • Isolatie Dubbel glas
  • Verwarming Cv ketel
  • C.v.-ketel bouwjaar 2012
  • Voorzieningen Tv kabel, rookkanaal, schuifpui, zonnepanelen
  • Parkeerfaciliteiten Openbaar parkeren, betaald parkeren, parkeervergunningen
  • Garage Geen garage
Meer kenmerken

In de buurt

Merwedekade 233 3522 JN Utrecht

      De buurt

      Burgerlijke staat in wijk
      Gehuwd
      Ongehuwd
      Gescheiden
      Verweduwd
      • Gehuwd (25.59%)
      • Ongehuwd (65.01%)
      • Gescheiden (6.05%)
      • Verweduwd (3.35%)
      Leeftijd in wijk
      0 - 15 jaar
      15 - 25 jaar
      25-45 jaar
      45 - 65 jaar
      65+ jaar
      • 0 - 15 jaar (15.77%)
      • 15 - 25 jaar (13.71%)
      • 25 - 45 jaar (37.26%)
      • 45 - 65 jaar (22.14%)
      • 65+ jaar (11.12%)
      Geslacht
      • Mannen (47.81%)
      • Vrouwen (52.19%)
      Gezinnen met kinderen
      0 - 15 jaar
      15 - 25 jaar
      25-45 jaar
      • Met kinderen (25.84%)
      • Zonder kinderen (24.05%)
      • Éénpersoons huishoudens (50.11%)
      Woningen koop / huur
      • Koop (45.92%)
      • Huur (54.08%)
      Aantal inwoners:

      9245

      Schaduwwijzer

      Media

      Plattegronden

      Plattegrond tweede verdieping

      Ander aanbod