H. Wijnmalenstraat 20, Utrecht | Beumer

H. Wijnmalenstraat 20

3555 VS, Utrecht

Ben je op zoek naar een huis dat de charme van vroeger uitstraalt, maar toch het comfort van nu biedt? Deze prachtige, karakteristieke gezinswoning van bijna 100 m² met 4 slaapkamers, voor- en achtertuin, heeft het allemaal. De woning ademt de sfeer van de jaren '30,

  • 96 m2
  • 113 m2
  • Label C
  • 5 kamer(s)

€ 595.000,- k.k. Bereken maandlasten

Bereken maandlasten
Heb je een hypotheek nodig?

Omschrijving

Ben je op zoek naar een huis dat de charme van vroeger uitstraalt, maar toch het comfort van nu biedt?
Deze prachtige, karakteristieke gezinswoning van bijna 100 m² met 4 slaapkamers, voor- en achtertuin, heeft het allemaal. De woning ademt de sfeer van de jaren '30, maar is de afgelopen jaren op diverse punten gemoderniseerd en gerenoveerd, waaronder dak- en vloerisolatie en de plaatsing van zonnepanelen. Het huis is sfeervol afgewerkt en goed onderhouden.

Ligging
De ligging is ideaal: op korte afstand vind je diverse voorzieningen. Zo zijn er om de hoek een tandarts, huisarts, kapper, sportschool en…

Ben je op zoek naar een huis dat de charme van vroeger uitstraalt, maar toch het comfort van nu biedt?
Deze prachtige, karakteristieke gezinswoning van bijna 100 m² met 4 slaapkamers, voor- en achtertuin, heeft het allemaal. De woning ademt de sfeer van de jaren '30, maar is de afgelopen jaren op diverse punten gemoderniseerd en gerenoveerd, waaronder dak- en vloerisolatie en de plaatsing van zonnepanelen. Het huis is sfeervol afgewerkt en goed onderhouden.

Ligging
De ligging is ideaal: op korte afstand vind je diverse voorzieningen. Zo zijn er om de hoek een tandarts, huisarts, kapper, sportschool en het winkelcentrum Rokade voor al je boodschappen. In de buurt liggen het Julianapark, station Zuilen en het Vorstelijk Complex met terras, restaurant en een breed cultureel aanbod zoals theater en muziek. Ook de culturele hotspots De Nijverheid en Warmoes zijn snel bereikbaar per fiets, en basisschool De Kleine Vliegenier bevindt zich om de hoek. Vanuit huis kun je heerlijk wandelen langs de Vecht richting natuurgebied Oud Zuilen. De woning ligt op minder dan 15 minuten fietsen van Utrecht centrum en er is voldoende gratis parkeergelegenheid in de directe omgeving.

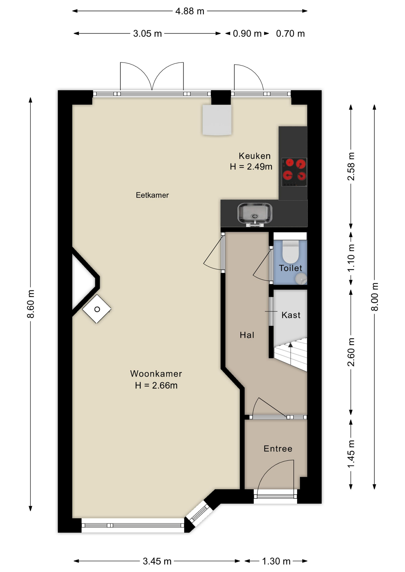
Entree
In de hal kom je eerst binnen in de vestibule, waar je wordt verrast door de prachtige glas-in-looddeur. Achter deze deur bevindt zich de trap naar de eerste verdieping. De hal is voorzien van een fraaie granito vloer die doorloopt tot in het toilet met fonteintje. Daarnaast bevindt zich hier een handige trapkast, die extra opbergruimte biedt en waar de meterkast is geplaatst.

Woonkamer en keuken
De woonkamer heeft een speelse indeling en is afgewerkt met een houten vloer. De keuken, voorzien van een authentieke tegels op de vloer die meer dan 100 jaar oud zijn, is zelf ontworpen om een perfecte combinatie van modern en stoer te creëren. De plek voor de houtkachel is afgewerkt met prachtige zelliges (wandtegels), die met zorg zijn uitgekozen voor een uniek accent.

Tuin
Via de openslaande deuren kom je in de sfeervolle, zonnige tuin met een mediterraan karakter, mede dankzij de prachtige klimhortensia. Geniet van de rozen in het voorjaar en van de zon vanaf de vroege middag tot in de avond. Het grote tuinhuisje biedt voldoende opbergruimte voor fietsen, motor, gereedschap, buitenkussens en meer. Er is ook een achterom.

Eerste verdieping
De overloop geeft toegang tot alle vertrekken. De grootste slaapkamer bevindt zich aan de voorzijde en biedt voldoende ruimte voor kasten en een royaal tweepersoonsbed. De tweede slaapkamer ligt aan de achterzijde, is voorzien van vaste inbouwkasten en openslaande deuren naar het balkon. De badkamer is uitgerust met een granito vloer en beschikt over een wasmachine-aansluiting, inloopdouche, wastafel en een tweede toilet. De zijkamer wordt momenteel gebruikt als werkkamer, maar is ook zeer geschikt als babykamer of inloopkast.

Tweede verdieping
Via een deur met een vaste trap bereik je de ruime zolder, die bewust open is gehouden om de ruimte zo flexibel mogelijk te maken. De afgelopen jaren is de zolder aangepakt om de nok weer zichtbaar te maken. De zolder is geïsoleerd en het plafond is voorzien van houten wandbekleding, waardoor de balken zichtbaar blijven. De ruimte is geschikt voor diverse doeleinden, zoals een slaapkamer, extra kantoor, speelkamer, hobbyruimte of wat je maar wilt. De vloer bestaat uit mooie houten planken.
De woning biedt een royale woonoppervlakte van bijna 100 m², waarvan 4 m² met beperkte stahoogte door de dakkapellen aan de voor- en achterzijde. Dit zorgt voor verrassend veel leefruimte en flexibiliteit in de inrichting.

Wijk en omgeving
De H. Wijnmalenstraat is een fijne straat om in te wonen. Doordat het eenrichtingsverkeer is, heerst er een rustige sfeer. De voortuinen zorgen voor een groene en uitnodigende uitstraling. Wanneer je de straat uitloopt, kom je terecht bij een grasveld met een klein perkje, waar kinderen in de zomeravonden met elkaar spelen.

De locatie is uitstekend: de wijk Zuilen is goed verbonden met de rest van Utrecht. De A2, A12 en A27 zijn gemakkelijk bereikbaar, waardoor je snel in steden als Amsterdam, Rotterdam en ’s-Hertogenbosch bent. Ook het openbaar vervoer is goed geregeld; station Utrecht Zuilen ligt op korte afstand en biedt directe treinverbindingen naar Utrecht Centraal.
Deze woning biedt de perfecte combinatie van rustig wonen in een groene buurt, terwijl alle gemakken binnen handbereik zijn.

Kortom, ben je op zoek naar een sfeervolle woning in Zuilen en is je interesse gewekt? Maak snel een afspraak voor een bezichtiging!

Bijzonderheden
• Woonoppervlakte: ca. 100m²
• Bouwjaar: medio 1936
• Europese zonnepanelen (plaatsing in 2023)
• Energielabel: C
• De woning is op enkele fronten verduurzaamd, onder andere met vloerisolatie, dakisolatie en 7 zonnepanelen
• Kruipruimte is droog en volledig toegankelijk
• Bouwkundige staat is goed en het huis is altijd met zorg onderhouden door de huidige bewoners
• Oplevering in overleg
• Extra vanwege verbouwing keuken in meterkast aanwezige 2-polige automaat mét nul-onderbrekingaansluiting

Lees verder

Kenmerken

  • Vraagprijs € 595.000,- k.k.
  • Aanvaarding In overleg
  • Type Tussenwoning
  • Bouwjaar 1936
  • Woonoppervlakte ca. 96 m2
  • Oppervlakte gebouwgebonden ca. 5 m2
  • Overige inpandige ruimte ca. 4 m2
  • Externe bergruimte ca. 6 m2
  • Slaapkamers 4
  • Inhoud ca. 332 m3
  • Perceeloppervlakte ca. 113 m2
  • Ligging tuin Noordwest
  • Energielabel C
  • Isolatie Dakisolatie, vloerisolatie, hr glas
  • Verwarming Cv ketel
  • C.v.-ketel bouwjaar 2012
  • Voorzieningen Mechanische ventilatie, buitenzonwering, rookkanaal, zonnepanelen
  • Parkeerfaciliteiten Openbaar parkeren
  • Garage Geen garage
Meer kenmerken

In de buurt

H. Wijnmalenstraat 20 3555 VS Utrecht

      De buurt

      Leeftijd in wijk
      0 - 15 jaar
      15 - 25 jaar
      25-45 jaar
      45 - 65 jaar
      65+ jaar
      • 0 - 15 jaar (17.54%)
      • 15 - 25 jaar (14.15%)
      • 25 - 45 jaar (35.51%)
      • 45 - 65 jaar (20.86%)
      • 65+ jaar (11.94%)
      Geslacht
      • Mannen (49.91%)
      • Vrouwen (50.09%)
      Gezinnen met kinderen
      0 - 15 jaar
      15 - 25 jaar
      25-45 jaar
      • Met kinderen (28.00%)
      • Zonder kinderen (24.21%)
      • Éénpersoons huishoudens (47.80%)
      Aantal inwoners:

      8145

      Schaduwwijzer

      Media

      Plattegronden

      situatie plattegrond begane grond

      Ander aanbod