Europaplein 790, Utrecht | Beumer

Europaplein 790

3526 WR, Utrecht

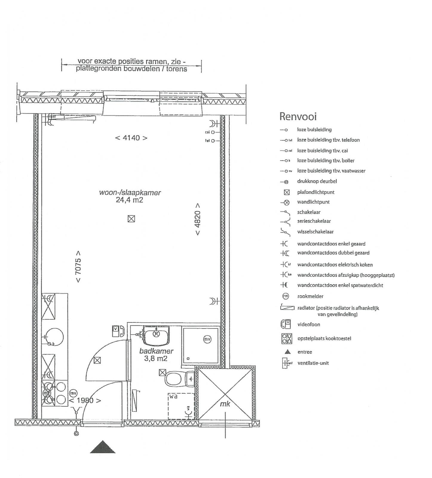
Het éénkamerappartement is ca. 28 m² groot en is gelegen op de 4e verdieping met een uitzicht op het zuiden. De woningen zijn voorzien van een keuken met aanrecht, wasbak, onder- en bovenkastjes en badkamer voorzien van douche, toilet, wastafel en een aansluiting voor een

  • 28 m2
  • Label A
  • 1 kamer(s)

€ 250.000,- k.k. Bereken maandlasten

Bereken maandlasten
Heb je een hypotheek nodig?

Omschrijving

Het éénkamerappartement is ca. 28 m² groot en is gelegen op de 4e verdieping met een uitzicht op het zuiden. De woningen zijn voorzien van een keuken met aanrecht, wasbak, onder- en bovenkastjes en badkamer voorzien van douche, toilet, wastafel en een aansluiting voor een wasmachine. Het woongedeelte heeft twee grote, naar binnen openslaande deuren met een balkonhekje ervoor. Zo heb je je eigen 'Frans balkon'

Het éénkamerappartement is ca. 28 m² groot en is gelegen op de 4e verdieping met een uitzicht op het zuiden. De woningen zijn voorzien van een keuken met aanrecht, wasbak, onder- en bovenkastjes en badkamer voorzien van douche, toilet, wastafel en een aansluiting voor een wasmachine. Het woongedeelte heeft twee grote, naar binnen openslaande deuren met een balkonhekje ervoor. Zo heb je je eigen 'Frans balkon'

Lees verder

Kenmerken

  • Vraagprijs € 250.000,- k.k.
  • Aanvaarding In overleg
  • Bouwjaar 2008
  • Woonoppervlakte ca. 28 m2
  • Inhoud ca. 80 m3
  • Energielabel A
  • Verwarming Stadsverwarming
  • Voorzieningen Mechanische ventilatie, lift, frans balkon
  • Parkeerfaciliteiten Betaald parkeren, parkeergarage
  • Garage Parkeerplaats
Meer kenmerken

In de buurt

Europaplein 790 3526 WR Utrecht

      De buurt

      Burgerlijke staat in wijk
      Gehuwd
      Ongehuwd
      Gescheiden
      Verweduwd
      • Gehuwd (18.34%)
      • Ongehuwd (68.34%)
      • Gescheiden (5.02%)
      • Verweduwd (8.30%)
      Leeftijd in wijk
      0 - 15 jaar
      15 - 25 jaar
      25-45 jaar
      45 - 65 jaar
      65+ jaar
      • 0 - 15 jaar (5.80%)
      • 15 - 25 jaar (18.96%)
      • 25 - 45 jaar (45.45%)
      • 45 - 65 jaar (10.64%)
      • 65+ jaar (19.15%)
      Geslacht
      • Mannen (48.35%)
      • Vrouwen (51.65%)
      Gezinnen met kinderen
      0 - 15 jaar
      15 - 25 jaar
      25-45 jaar
      • Met kinderen (6.47%)
      • Zonder kinderen (15.36%)
      • Éénpersoons huishoudens (78.17%)
      Woningen koop / huur
      • Koop (18.18%)
      • Huur (81.82%)
      Aantal inwoners:

      2575

      Schaduwwijzer

      Plattegronden

      Ander aanbod