Europaplein 762, Utrecht | Beumer

Europaplein 762

3526 WP, Utrecht

Ben je student of starter op de woningmarkt? En wil je centraal en compact wonen met alle voorzieningen binnen handbereik? Dan is deze lichte, mooie studio van ca. 30m² met eigen parkeerplaats en Frans balkon in het City Campus Max complex misschien wel precies wat je zoekt.

  • 30 m2
  • Label A
  • 1 kamer(s)

€ 220.000,- k.k. Bereken maandlasten

Bereken maandlasten
Heb je een hypotheek nodig?

Omschrijving

Ben je student of starter op de woningmarkt? En wil je centraal en compact wonen met alle voorzieningen binnen handbereik? Dan is deze lichte, mooie studio van ca. 30m² met eigen parkeerplaats en Frans balkon in het City Campus Max complex misschien wel precies wat je zoekt. Gelegen op de derde etage en voorzien van een eigen keuken en badkamer, woon je hier helemaal compleet. Omdat het appartement niet in één van de woontorens ligt, maar in een verbindingsgedeelte, zit je hier op de bovenste etage van jouw woondeel. Kortom, geen last van bovenburen!

Deze leuke en instapklare studio maakt…

Ben je student of starter op de woningmarkt? En wil je centraal en compact wonen met alle voorzieningen binnen handbereik? Dan is deze lichte, mooie studio van ca. 30m² met eigen parkeerplaats en Frans balkon in het City Campus Max complex misschien wel precies wat je zoekt. Gelegen op de derde etage en voorzien van een eigen keuken en badkamer, woon je hier helemaal compleet. Omdat het appartement niet in één van de woontorens ligt, maar in een verbindingsgedeelte, zit je hier op de bovenste etage van jouw woondeel. Kortom, geen last van bovenburen!

Deze leuke en instapklare studio maakt deel uit van het populaire City Campus Max complex in Transwijk-zuid. Je woont hier letterlijk midden in ‘het gebeuren’. Het stadscentrum van Utrecht ligt namelijk op slechts tien minuten fietsen en met de bus of sneltram die vlak voor de deur stoppen, ben je in een paar minuten op het centraal station. Uiteraard zijn ook de universiteit en hogescholen vanaf hier goed te bereiken. Supermarkten, winkels, diverse horecazaken, sportfaciliteiten en uitvalswegen naar de A2, A12 en A27 bevinden zich vlak in de buurt. Park Transwijk ligt om de hoek als je even een frisse neus wilt halen.

Indeling:

Begane grond & 1e etage:
Het complex heeft een grote, centrale entree op de begane grond met video-intercom, brievenbussen, dubbele lift en een trappenhuis. Op de eerste verdieping bevindt zich een afgesloten parkeergarage waarin een privé-parkeerplaats gereserveerd is voor dit appartement. Ook vind je hier de gemeenschappelijke, afsluitbare fietsenstalling.
3e verdieping:
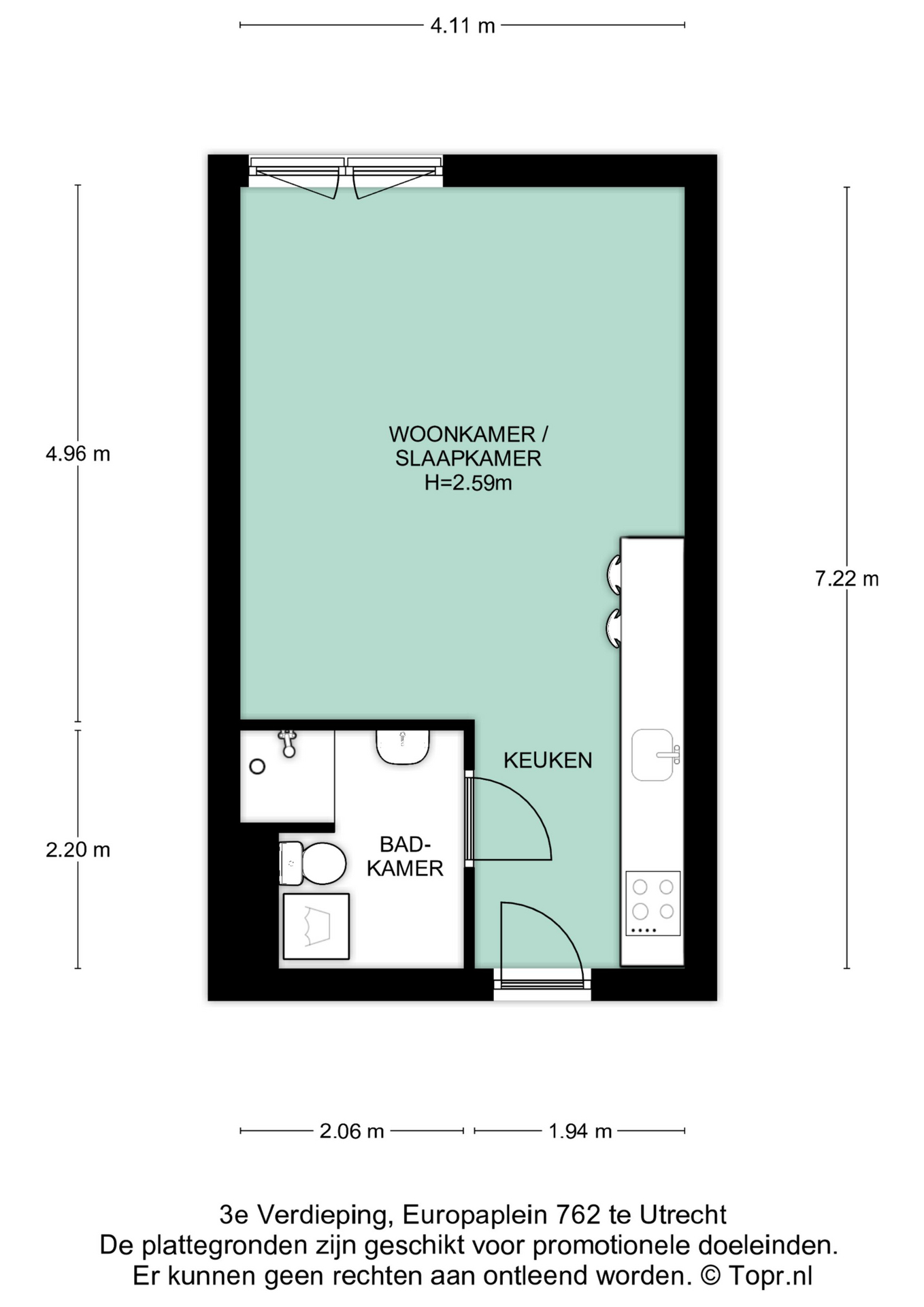
Je komt het appartement binnen in een brede hal waarin gelijk de keuken is aangelegd. Dankzij de doorgetrokken antracietkleurige laminaatvloer, wordt er een optimaal ruimtelijk effect gecreëerd in deze studio. De keuken heeft een riant formaat voor dit appartement. Aan kast- en werkruimte heb je hier geen gebrek! Je beschikt over een afzuigkap en verder is er ruimte voor diverse op- en onderbouwapparaten. Indien gewenst is de koelkast over te nemen van de huidige eigenaar.
Vervolgens loop je langs het eetbarretje door naar de woon/slaapkamer. Een heerlijk lichte ruimte die dankzij de praktische indeling voldoende creatieve mogelijkheden biedt voor een zithoek, werkplek en slaapgedeelte, zonder dat deze elkaar in de weg staan. Het grote venster met Frans balkon zorgt voor een aangename lichtinval en bovendien voor een lekker uitzicht over de stad. Tot slot is er nog een separate badkamer, voorzien van douchecabine, toilet, wastafel en aansluiting voor de wasmachine en droger. De woning is in nette staat en recent volledig geschilderd.

Buiten:
Met het Franse balkon op het zuiden, haal je moeiteloos de zon en warmte naar binnen in deze studio. Maar wil je écht naar buiten, dan kun je gebruikmaken van de riante binnentuin in dit wooncomplex. Hier kun je heerlijk relaxen, studeren en genieten. Er zijn zelfs meerdere barbecues waar je gebruik van mag maken. Kortom, je woont hier centraal én gezellig! Ook beschik je over een eigen parkeerplaats in de parkeergarage op de eerste verdieping.

Bijzonderheden:
• Ruim studio-appartement op toplocatie in Utrecht!
• Woonoppervlakte: ca. 30m²
• Inhoud: 100m³
• Bouwjaar: 2007
• Nette staat van onderhoud
• Ruime woon/slaapkamer
• Zonnig Frans balkon op het zuiden
• Eigen parkeerplaats
• Gunstige ligging ten opzichte van stad, uitvalswegen en faciliteiten

Interesse in deze woning? Kom gerust eens langs met je aankoopmakelaar!

Lees verder

Kenmerken

  • Vraagprijs € 220.000,- k.k.
  • Aanvaarding In overleg
  • Bouwjaar 2007
  • Woonoppervlakte ca. 30 m2
  • Slaapkamers 1
  • Inhoud ca. 100 m3
  • Energielabel A
  • Isolatie Volledig geisoleerd
  • Verwarming Stadsverwarming
  • Voorzieningen Mechanische ventilatie, tv kabel, frans balkon
  • Garage Parkeerplaats
Meer kenmerken

In de buurt

Europaplein 762 3526 WP Utrecht

      De buurt

      Burgerlijke staat in wijk
      Gehuwd
      Ongehuwd
      Gescheiden
      Verweduwd
      • Gehuwd (18.34%)
      • Ongehuwd (68.34%)
      • Gescheiden (5.02%)
      • Verweduwd (8.30%)
      Leeftijd in wijk
      0 - 15 jaar
      15 - 25 jaar
      25-45 jaar
      45 - 65 jaar
      65+ jaar
      • 0 - 15 jaar (5.80%)
      • 15 - 25 jaar (18.96%)
      • 25 - 45 jaar (45.45%)
      • 45 - 65 jaar (10.64%)
      • 65+ jaar (19.15%)
      Geslacht
      • Mannen (48.35%)
      • Vrouwen (51.65%)
      Gezinnen met kinderen
      0 - 15 jaar
      15 - 25 jaar
      25-45 jaar
      • Met kinderen (6.47%)
      • Zonder kinderen (15.36%)
      • Éénpersoons huishoudens (78.17%)
      Woningen koop / huur
      • Koop (18.18%)
      • Huur (81.82%)
      Aantal inwoners:

      2575

      Schaduwwijzer

      Media

      Plattegronden

      360°

      Ander aanbod