Dennenstraat 21, Utrecht | Beumer

Dennenstraat 21

3552 RA, Utrecht

Fantastisch sfeervolle en verrassend ruime 4-kamerwoning met zonnige stadstuin, op een steenworp afstand van de stad. De Dennenstraat ligt in het gezellige en karakteristieke “Het Witte Wijkje” in Ondiep: een rustige, kindvriendelijke buurt die populair is bij

  • 75 m2
  • 70 m2
  • Label C
  • 4 kamer(s)

€ 495.000,- k.k. Bereken maandlasten

Bereken maandlasten
Heb je een hypotheek nodig?

Omschrijving

Fantastisch sfeervolle en verrassend ruime 4-kamerwoning met zonnige stadstuin, op een steenworp afstand van de stad.

De Dennenstraat ligt in het gezellige en karakteristieke “Het Witte Wijkje” in Ondiep: een rustige, kindvriendelijke buurt die populair is bij starters. In de wijk vind je diverse voorzieningen, zoals een gezamenlijke fruittuin, een bloemist, een ambachtelijke slager en een warme bakker. Ook winkelcentrum De Plantage ligt op loopafstand. Voor een hapje of drankje kun je terecht bij onder andere Pizzabar Satriales, De Straatweg, Bagels & Beans en The Food Club. Daarnaast bevinden het Julianapark en de Vecht zich om de hoek.

De wijk…

Fantastisch sfeervolle en verrassend ruime 4-kamerwoning met zonnige stadstuin, op een steenworp afstand van de stad.

De Dennenstraat ligt in het gezellige en karakteristieke “Het Witte Wijkje” in Ondiep: een rustige, kindvriendelijke buurt die populair is bij starters. In de wijk vind je diverse voorzieningen, zoals een gezamenlijke fruittuin, een bloemist, een ambachtelijke slager en een warme bakker. Ook winkelcentrum De Plantage ligt op loopafstand. Voor een hapje of drankje kun je terecht bij onder andere Pizzabar Satriales, De Straatweg, Bagels & Beans en The Food Club. Daarnaast bevinden het Julianapark en de Vecht zich om de hoek.

De wijk biedt bovendien diverse scholen, kinderdagverblijven en sportfaciliteiten. Met de fiets bereik je binnen enkele minuten de binnenstad of Utrecht Centraal Station, en ook de uitvalswegen zijn snel en eenvoudig bereikbaar.

Deze woning uit 1915 beschikt over een ruime woonkamer met grote ramen aan zowel de voor- als achterzijde, wat zorgt voor veel lichtinval. Vanuit de woonkamer is vrij uitzicht op de fruittuin. De zonnige achtertuin maakt het geheel compleet. De woning is door de jaren heen gerenoveerd en voorzien van een moderne keuken met inbouwapparatuur, drie comfortabele slaapkamers, een badkamer met extra wastafelmeubel op de overloop en een ruime bergvliering. In 2023 zijn bovendien vijf zonnepanelen geplaatst. Kortom: een instapklare woning die klaar is voor de toekomst.

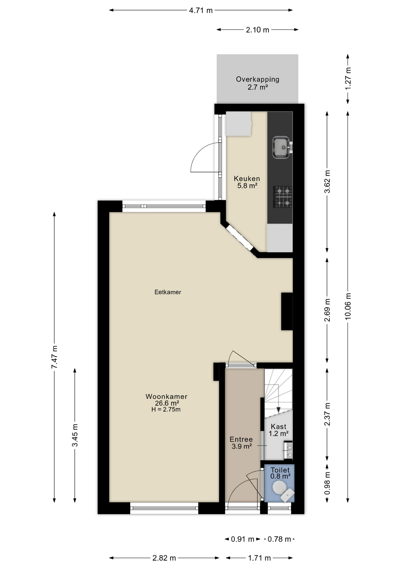
Indeling

Begane grond:
Entree, hal met trapopgang en toilet met raampje. Vanuit de hal kom je in de lichte woonkamer met aan beide zijden grote ramen en een prettig uitzicht. De keuken bevindt zich aan de achterzijde en geeft toegang tot de tuin.

Eerste verdieping:
Vanaf de ruime en centrale overloop zijn alle vertrekken bereikbaar: een werk-/slaapkamer, een ruime slaapkamer aan de achterzijde met vaste kast en een slaapkamer aan de voorzijde, eveneens met vaste kast. Tussen de slaapkamers bevindt zich de doucheruimte met regendouche. Het is mogelijk om van de kleinere slaapkamer een volwaardige badkamer te maken. De huidige eigenaren hebben ervoor gekozen om een extra wastafelmeubel op de overloop te plaatsen en zo de badkamerfunctie uit te breiden.

Tweede verdieping:
Bergzolder, bereikbaar via een vlizotrap.

Bijzonderheden:
- Knusse, maar verrassend ruime woning uit 1915
- Zonnige achtertuin met berging en schuur
- Erfpacht eeuwigdurend afgekocht (AV1989)
- Externe kleurstelling dient in lijn met de wijk te blijven
- 5 zonnepanelen (2023), dakisolatie, energielabel C
- Begane grond voorzien van dubbel glas; eerste verdieping en voordeur van HR++ glas
- Oplevering in overleg

Aankoopmakelaar inschakelen
Een NVM-aankoopmakelaar behartigt jouw belangen en bespaart je tijd, geld en zorgen.

Lees verder

Kenmerken

  • Vraagprijs € 495.000,- k.k.
  • Aanvaarding In overleg
  • Type Tussenwoning
  • Bouwjaar 1915
  • Woonoppervlakte ca. 75 m2
  • Oppervlakte gebouwgebonden ca. 3 m2
  • Externe bergruimte ca. 4 m2
  • Slaapkamers 3
  • Inhoud ca. 282 m3
  • Perceeloppervlakte ca. 70 m2
  • Ligging tuin Zuidoost
  • Energielabel C
  • Isolatie Dubbel glas, hr glas
  • Verwarming Cv ketel
  • C.v.-ketel bouwjaar 2012
  • Voorzieningen Zonnepanelen
  • Parkeerfaciliteiten Betaald parkeren, parkeervergunningen
  • Garage Geen garage
Meer kenmerken

In de buurt

Dennenstraat 21 3552 RA Utrecht

      De buurt

      Burgerlijke staat in wijk
      Gehuwd
      Ongehuwd
      Gescheiden
      Verweduwd
      • Gehuwd (26.16%)
      • Ongehuwd (62.05%)
      • Gescheiden (7.96%)
      • Verweduwd (3.83%)
      Leeftijd in wijk
      0 - 15 jaar
      15 - 25 jaar
      25-45 jaar
      45 - 65 jaar
      65+ jaar
      • 0 - 15 jaar (14.14%)
      • 15 - 25 jaar (17.75%)
      • 25 - 45 jaar (34.98%)
      • 45 - 65 jaar (20.64%)
      • 65+ jaar (12.49%)
      Geslacht
      • Mannen (49.43%)
      • Vrouwen (50.57%)
      Gezinnen met kinderen
      0 - 15 jaar
      15 - 25 jaar
      25-45 jaar
      • Met kinderen (24.60%)
      • Zonder kinderen (26.19%)
      • Éénpersoons huishoudens (49.21%)
      Woningen koop / huur
      • Koop (27.27%)
      • Huur (72.73%)
      Aantal inwoners:

      4825

      Schaduwwijzer

      Media

      Plattegronden

      Ander aanbod