Dassenburcht 28, Vleuten | Beumer

Dassenburcht 28

3452 MN, Vleuten

Royale, moderne gezinswoning met 5 slaapkamers, vrij uitzicht en zonnige tuin met veranda! Welkom bij deze royale en uitgebouwde woning in het hart van Vleuterweide! Deze moderne en energiezuinige gezinswoning combineert ruimte, licht en comfort met een toplocatie. Met

  • 157 m2
  • 165 m2
  • Label A
  • 6 kamer(s)

€ 750.000,- k.k. Bereken maandlasten

Bereken maandlasten
Heb je een hypotheek nodig?

Omschrijving

Royale, moderne gezinswoning met 5 slaapkamers, vrij uitzicht en zonnige tuin met veranda!

Welkom bij deze royale en uitgebouwde woning in het hart van Vleuterweide! Deze moderne en energiezuinige gezinswoning combineert ruimte, licht en comfort met een toplocatie. Met maar liefst vijf volwaardige slaapkamers, een lichte woonkamer met open keuken, zonnepanelen, een eigen parkeerplaats, én een diepe zonnige achtertuin (zuidoost) met stijlvolle veranda en veel groen, is dit een woning waar je zó in kunt trekken. Bovendien geniet je aan de voorzijde van een vrij uitzicht over het water – een uniek rustpunt midden in de wijk.

Begane grond

Royale, moderne gezinswoning met 5 slaapkamers, vrij uitzicht en zonnige tuin met veranda!

Welkom bij deze royale en uitgebouwde woning in het hart van Vleuterweide! Deze moderne en energiezuinige gezinswoning combineert ruimte, licht en comfort met een toplocatie. Met maar liefst vijf volwaardige slaapkamers, een lichte woonkamer met open keuken, zonnepanelen, een eigen parkeerplaats, én een diepe zonnige achtertuin (zuidoost) met stijlvolle veranda en veel groen, is dit een woning waar je zó in kunt trekken. Bovendien geniet je aan de voorzijde van een vrij uitzicht over het water – een uniek rustpunt midden in de wijk.

Begane grond
Via de verzorgde entree stap je binnen in een ruime hal met modern toilet, meterkast en trapopgang. De royale woonkamer is een heerlijke leefruimte, met grote ramen en deur naar de tuin, waardoor er veel daglicht binnen komt. Het plafond is voorzien van glad stucwerk en heeft het een mooi strak geheel. De open keuken aan de voorzijde heeft een moderne uitstraling en is uitgerust met hoogwaardige inbouwapparatuur, waaronder een inductiekookplaat, combi-oven/magnetron, vaatwasser en koel-vriescombinatie. De gehele begane grond is voorzien van een strakke tegelvloer in een houtlook variant met lange planken en met daaronder vloerverwarming, wat zorgt voor een aangenaam binnenklimaat het hele jaar door.

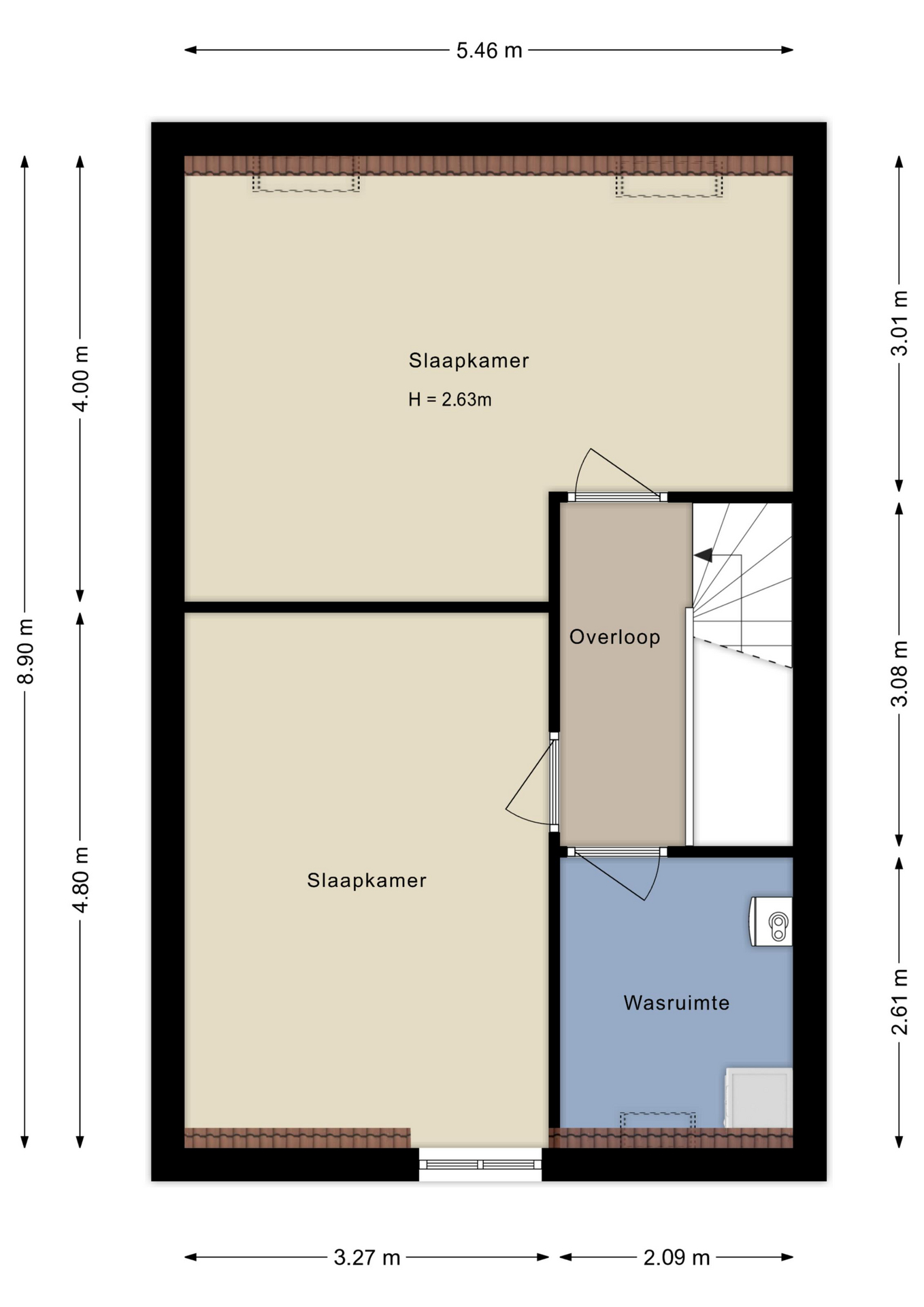
Eerste verdieping
De eerste verdieping beschikt over drie slaapkamers, waarvan 2 ruime en 1 compacte kamer ideaal als kantoor/werk/babykamer, alle slaapkamers zijn netjes afgewerkt en voorzien van grote raampartijen die zorgen voor veel lichtinval. De moderne badkamer is fris en functioneel met een ligbad, aparte douche, spiegelkast, designradiator en een tweede toilet.

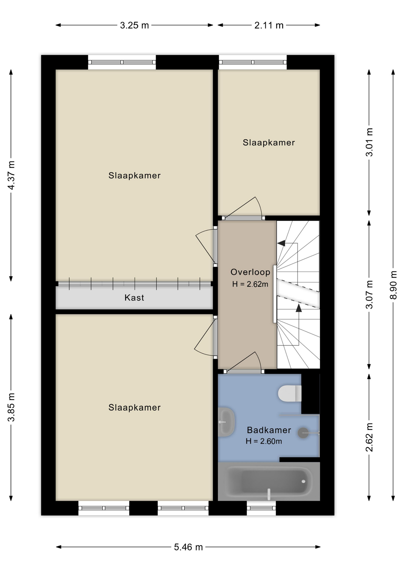
Tweede verdieping
De bovenste etage biedt nog eens twee ruime slaapkamers, waarvan één met eigen wastafel en wastafelmeubel, beide volwaardige kamers die ook uitstekend kunnen dienen als logeer-, werk- of hobbyruimte. Daarnaast bevindt zich hier een aparte wasruimte met aansluitingen voor wasmachine en droger en een Velux dakraam voor extra ventilatie. Deze verdieping is netjes afgewerkt en praktisch ingedeeld. Dankzij de royale indeling is het tevens mogelijk om hier, indien gewenst, een tweede badkamer te realiseren.

Buitenleven
De achtertuin is een ware verrassing! Met een diepte van ruim 12 meter en een ligging op het zuidoosten geniet je de hele dag van de zon. De tuin is verzorgd aangelegd met bamboe, groen en sierbestrating, en achterin bevindt zich een fraaie overkapping/veranda met verlichting – perfect voor lange zomeravonden. Achterom bereikbaar via een poort en voorzien van een praktische berging. Bovendien is er direct achter de woning een privéparkeerplaats.

Locatie
De woning ligt ideaal in het centrum van Vleuterweide, met winkels (Albert Heijn, Lidl, Jumbo), restaurants, scholen, kinderopvang en bushaltes allemaal op loopafstand. Het treinstation Vleuten bevindt zich vlakbij en binnen enkele minuten bereik je de A2 en A12 richting Utrecht, Amsterdam of Den Haag. Ook het Máximapark en de Haarrijnse Plas liggen op korte afstand – perfect voor ontspanning en recreatie.
________________________________________
Kenmerken:
• Bouwjaar: 2017
• Woonoppervlakte: ca. 157 m²
• Energielabel: A
• 5 volwaardige en ruime slaapkamers
• Vrij uitzicht over het water aan de voorzijde
• Zonnige, diepe achtertuin (zuidoost) met fraaie veranda en verlichting
• Eigen parkeerplaats direct achter de woning
• Moderne open keuken met inbouwapparatuur
• Vloerverwarming op de begane grond
• Volledige woning voorzien van gestucte wanden
• 10 zonnepanelen – energiezuinig en toekomstbestendig
• Centrale ligging in hartje Vleuterweide centrum
• Optioneel tweede badkamer mogelijk
________________________________________
Deze woning biedt alles: ruimte, comfort en een fantastische ligging.
Wil jij modern en duurzaam wonen in een levendige, groene omgeving?
Neem dan snel contact op voor een bezichtiging – je bent van harte welkom!

Lees verder

Kenmerken

  • Vraagprijs € 750.000,- k.k.
  • Aanvaarding In overleg
  • Type Tussenwoning
  • Bouwjaar 2017
  • Woonoppervlakte ca. 157 m2
  • Externe bergruimte ca. 7 m2
  • Slaapkamers 5
  • Inhoud ca. 537 m3
  • Perceeloppervlakte ca. 165 m2
  • Ligging tuin Zuidoost
  • Energielabel A
  • Isolatie Volledig geisoleerd
  • Verwarming Cv ketel, vloerverwarming gedeeltelijk
  • C.v.-ketel bouwjaar 2017
  • Voorzieningen Mechanische ventilatie, tv kabel
  • Parkeerfaciliteiten Op eigen terrein
  • Garage Geen garage
Meer kenmerken

In de buurt

Dassenburcht 28 3452 MN Vleuten

      De buurt

      Burgerlijke staat in wijk
      Gehuwd
      Ongehuwd
      Gescheiden
      Verweduwd
      • Gehuwd (33.90%)
      • Ongehuwd (58.01%)
      • Gescheiden (6.08%)
      • Verweduwd (2.00%)
      Leeftijd in wijk
      0 - 15 jaar
      15 - 25 jaar
      25-45 jaar
      45 - 65 jaar
      65+ jaar
      • 0 - 15 jaar (29.30%)
      • 15 - 25 jaar (6.23%)
      • 25 - 45 jaar (39.61%)
      • 45 - 65 jaar (16.84%)
      • 65+ jaar (8.01%)
      Geslacht
      • Mannen (48.92%)
      • Vrouwen (51.08%)
      Gezinnen met kinderen
      0 - 15 jaar
      15 - 25 jaar
      25-45 jaar
      • Met kinderen (51.39%)
      • Zonder kinderen (24.40%)
      • Éénpersoons huishoudens (24.21%)
      Woningen koop / huur
      • Koop (61.00%)
      • Huur (39.00%)
      Aantal inwoners:

      6735

      Schaduwwijzer

      Media

      Plattegronden

      Ander aanbod