Burgemeester Cambier van Nootenstraat 46, Maarssen | Beumer

Burgemeester Cambier van Nootenstraat 46

3604 AK, Maarssen

Ben je op zoek naar een Karakteristieke hoekwoning uit de jaren '30 die je geheel naar eigen smaak kunt maken? Kom dan kijken op de Burgemeester Cambier van Nootenstraat 46/46a in Maarssen. Het voormalige woon-/winkelhuis ligt op een perceel eigen grond

  • 105 m2
  • 134 m2
  • Label E
  • 5 kamer(s)

€ 450.000,- k.k. Bereken maandlasten

Bereken maandlasten
Heb je een hypotheek nodig?

Omschrijving

Ben je op zoek naar een

Karakteristieke hoekwoning uit de jaren '30 die je geheel naar eigen smaak kunt maken?

Kom dan kijken op de Burgemeester Cambier van Nootenstraat 46/46a in Maarssen.

Het voormalige woon-/winkelhuis ligt op een perceel eigen grond van 134m2 en is thans gesplitst in een ruime bovenwoning met groot dakterras en een royale en multifunctionele benedenverdieping met grote garage. Het pand biedt mogelijkheden om gebruikt te worden voor dubbele bewoning, bewoning met bedrijf aan huis of volledige bewoning.

Het totale woonoppervlakte bedraagt in totaal circa 105m2, de garage heeft een oppervlakte van circa 40m2 en…

Ben je op zoek naar een

Karakteristieke hoekwoning uit de jaren '30 die je geheel naar eigen smaak kunt maken?

Kom dan kijken op de Burgemeester Cambier van Nootenstraat 46/46a in Maarssen.

Het voormalige woon-/winkelhuis ligt op een perceel eigen grond van 134m2 en is thans gesplitst in een ruime bovenwoning met groot dakterras en een royale en multifunctionele benedenverdieping met grote garage. Het pand biedt mogelijkheden om gebruikt te worden voor dubbele bewoning, bewoning met bedrijf aan huis of volledige bewoning.

Het totale woonoppervlakte bedraagt in totaal circa 105m2, de garage heeft een oppervlakte van circa 40m2 en het dakterras heeft een afmeting van circa 28m2. De begane grond is sinds jaar en dag in gebruik als opslagruimte en kantoor van een zoetwarenhandel en op de 1e verdieping wordt gewoond.

De woning ligt in de populaire jaren ’30 wijk “De Friezenbuurt” met in de nabije omgeving de oude en sfeervolle dorpskern van Maarssen met winkels en scholen. Ook het NS-station, diverse sportvoorzieningen en Utrecht stad ligt op korte (fiets)afstand en de belangrijkste uitvalswegen zijn eenvoudig te bereiken.

Indeling:

Begane grond:
Via de deur in de voorgevel is er toegang tot de voorkamer/kantoor met vaste schuifkastenwand en deur naar de riante achterkamer/opslagruimte met open keuken voorzien van standaard keukenblokje en luik met vaste trap naar de ondergelegen kelder (afmeting circa 10m2 en hoogte circa 1,80m).
Tevens tref je op de begane grond een separate tweede werkkamer aan en een moderne toiletruimte.
De totale woonoppervlakte van de begane grond is circa 66m2 en deze ruimte kan geheel naar eigen wens ingedeeld worden.

De grote, achtergelegen garage is via de zij-ingang met brede overheaddeur eenvoudig toegankelijk en heeft een oppervlakte van ruim 40m2.

Via de entree aan de zijgevel is de ruime hal van de bovenwoning toegankelijk. De hal is voorzien van de wasmachineaansluiting en de trapopgang naar de 1e verdieping.

Tevens bevindt zich hier de badkamer, die is voorzien van een douchecabine, closet en fonteintje.

1e Verdieping:
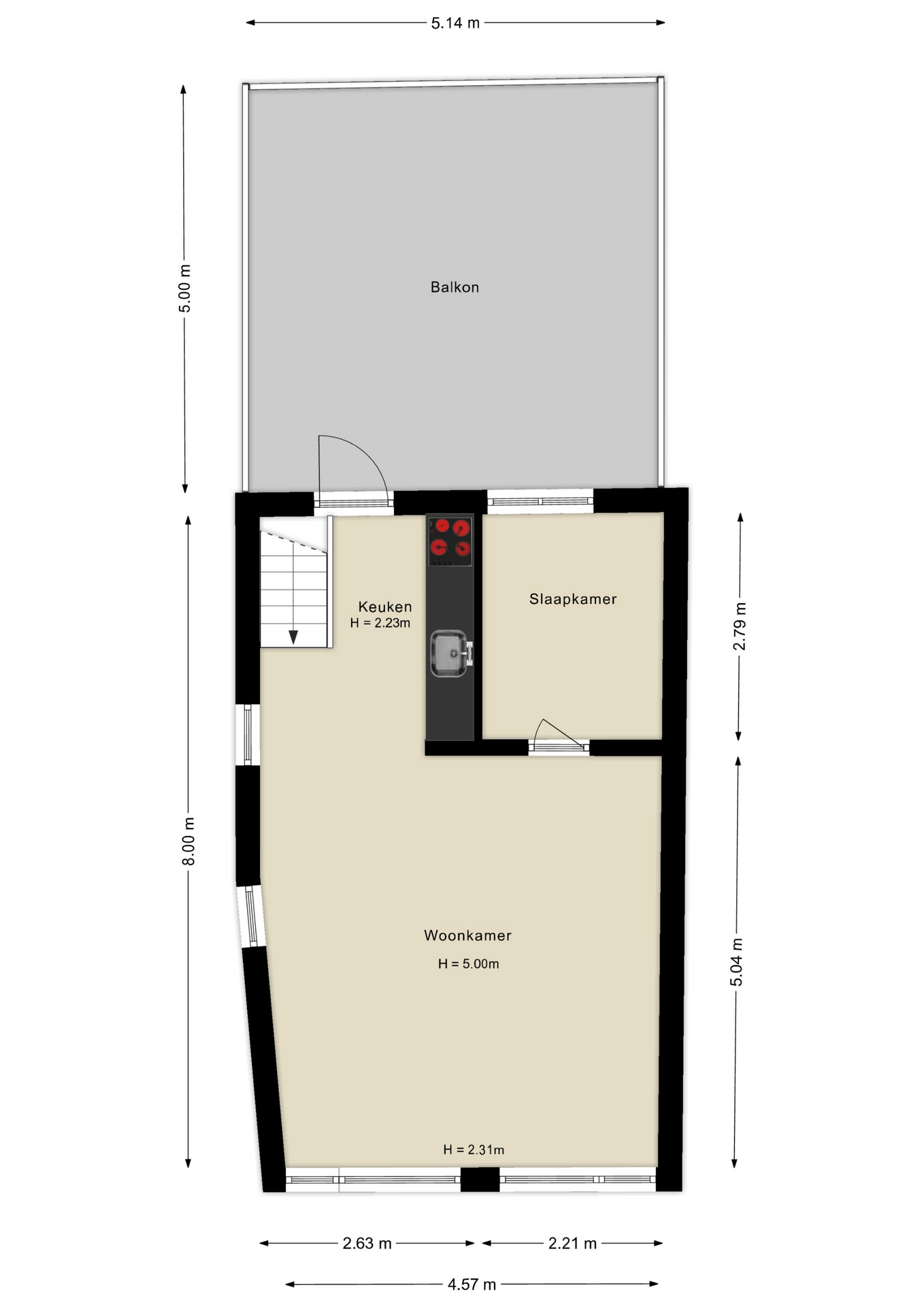
Deze riante woonverdieping heeft een totale oppervlakte van circa 40m2 en heeft een zeer hoog plafond van maximaal 5 meter, wat het ruimtelijke gevoel extra benadrukt.

De verdieping is thans verdeeld in een zeer ruime en heerlijk lichte woonkamer met grote raampartijen, een open keuken met standaard keukenblok en fijne slaapkamer.

Via een buitendeur in de keuken is het royale en vrij gelegen dakterras toegankelijk. Het terras heeft een afmeting van ruim 5,00 x 5,00 meter, is voorzien van hardhouten vlonderdelen en door de gunstige ligging op het noordwesten geniet je hier van de ochtend tot het einde van de avond volop van de zon.

Bijzonderheden:
- Bouwjaar 1932;
- Het woonoppervlakte bedraagt circa 105m2 en de garage heeft een afmeting van ruim 40m2;
- De kelder is vanuit de keuken op de begane grond toegankelijk via een vloerluik met vaste trap en heeft een
afmeting van circa 3,81 x 2,50 meter en een hoogte van circa 1,78 meter;
- De woning biedt volop indelings- en gebruiksmogelijkheden en dient inpandig gemoderniseerd te worden;
- Het perceel eigen grond is 134m2 groot;
- Het buitenschilderwerk is in 2024 uitgevoerd;
- Energielabel E (geldig tot 07-11-2035);
- Intergas HR combiketel, bouwjaar 2007 en jaarlijks onderhouden.

Lees verder

Kenmerken

  • Vraagprijs € 450.000,- k.k.
  • Aanvaarding In overleg
  • Type Hoekwoning
  • Bouwjaar 1932
  • Woonoppervlakte ca. 105 m2
  • Oppervlakte gebouwgebonden ca. 26 m2
  • Overige inpandige ruimte ca. 50 m2
  • Slaapkamers 3
  • Inhoud ca. 563 m3
  • Perceeloppervlakte ca. 134 m2
  • Ligging tuin Noordwest
  • Energielabel E
  • Isolatie Dubbel glas
  • Verwarming Cv ketel
  • C.v.-ketel bouwjaar 2007
  • Voorzieningen Tv kabel, glasvezel kabel
  • Parkeerfaciliteiten Openbaar parkeren
  • Garage Aangebouwd steen
Meer kenmerken

In de buurt

Burgemeester Cambier van Nootenstraat 46 3604 AK Maarssen

      De buurt

      Burgerlijke staat in wijk
      Gehuwd
      Ongehuwd
      Gescheiden
      Verweduwd
      • Gehuwd (37.62%)
      • Ongehuwd (50.50%)
      • Gescheiden (7.92%)
      • Verweduwd (3.96%)
      Leeftijd in wijk
      0 - 15 jaar
      15 - 25 jaar
      25-45 jaar
      45 - 65 jaar
      65+ jaar
      • 0 - 15 jaar (21.90%)
      • 15 - 25 jaar (9.52%)
      • 25 - 45 jaar (27.62%)
      • 45 - 65 jaar (26.67%)
      • 65+ jaar (14.29%)
      Geslacht
      • Mannen (52.88%)
      • Vrouwen (47.12%)
      Gezinnen met kinderen
      0 - 15 jaar
      15 - 25 jaar
      25-45 jaar
      • Met kinderen (40.00%)
      • Zonder kinderen (26.67%)
      • Éénpersoons huishoudens (33.33%)
      Woningen koop / huur
      • Koop (80.81%)
      • Huur (19.19%)
      Aantal inwoners:

      520

      Schaduwwijzer

      Media

      Plattegronden

      1e Verdieping

      Ander aanbod