Binnentuinlaan 3, Vleuten | Beumer

Binnentuinlaan 3

3452 RN, Vleuten

Modern en instapklaar hoekhuis op een toplocatie in Vleuterweide – ruimte, stijl en comfort in één! + 4 slaapkamers • energielabel A • moderne open keuken (AEG, ATAG & Bosch) • stijlvolle badkamer • eikenhouten vloer • verzorgde achtertuin met achterom en

  • 128 m2
  • 132 m2
  • Label A
  • 5 kamer(s)

€ 685.000,- k.k. Bereken maandlasten

Bereken maandlasten
Heb je een hypotheek nodig?

Omschrijving

Modern en instapklaar hoekhuis op een toplocatie in Vleuterweide – ruimte, stijl en comfort in één!

+ 4 slaapkamers • energielabel A • moderne open keuken (AEG, ATAG & Bosch) • stijlvolle badkamer • eikenhouten vloer • verzorgde achtertuin met achterom en berging

Welkom in deze moderne hoekwoning van 128 m² woonoppervlakte gelegen in de geliefde wijk De Tuinlanden in Vleuterweide. Deze woning combineert eigentijdse architectuur met een warme, huiselijke sfeer en is tot in de puntjes afgewerkt. Met vier ruime slaapkamers, een uitgebouwde woonkamer met openslaande deuren naar de tuin, en een moderne open keuken met hoogwaardige inbouwapparatuur is…

Modern en instapklaar hoekhuis op een toplocatie in Vleuterweide – ruimte, stijl en comfort in één!

+ 4 slaapkamers • energielabel A • moderne open keuken (AEG, ATAG & Bosch) • stijlvolle badkamer • eikenhouten vloer • verzorgde achtertuin met achterom en berging

Welkom in deze moderne hoekwoning van 128 m² woonoppervlakte gelegen in de geliefde wijk De Tuinlanden in Vleuterweide. Deze woning combineert eigentijdse architectuur met een warme, huiselijke sfeer en is tot in de puntjes afgewerkt. Met vier ruime slaapkamers, een uitgebouwde woonkamer met openslaande deuren naar de tuin, en een moderne open keuken met hoogwaardige inbouwapparatuur is dit het perfecte gezinshuis!

De woning is uitstekend onderhouden, voorzien van energielabel A, volledig geïsoleerd en instapklaar. Dankzij de hoekligging geniet je van extra privacy.

Indeling
Begane grond
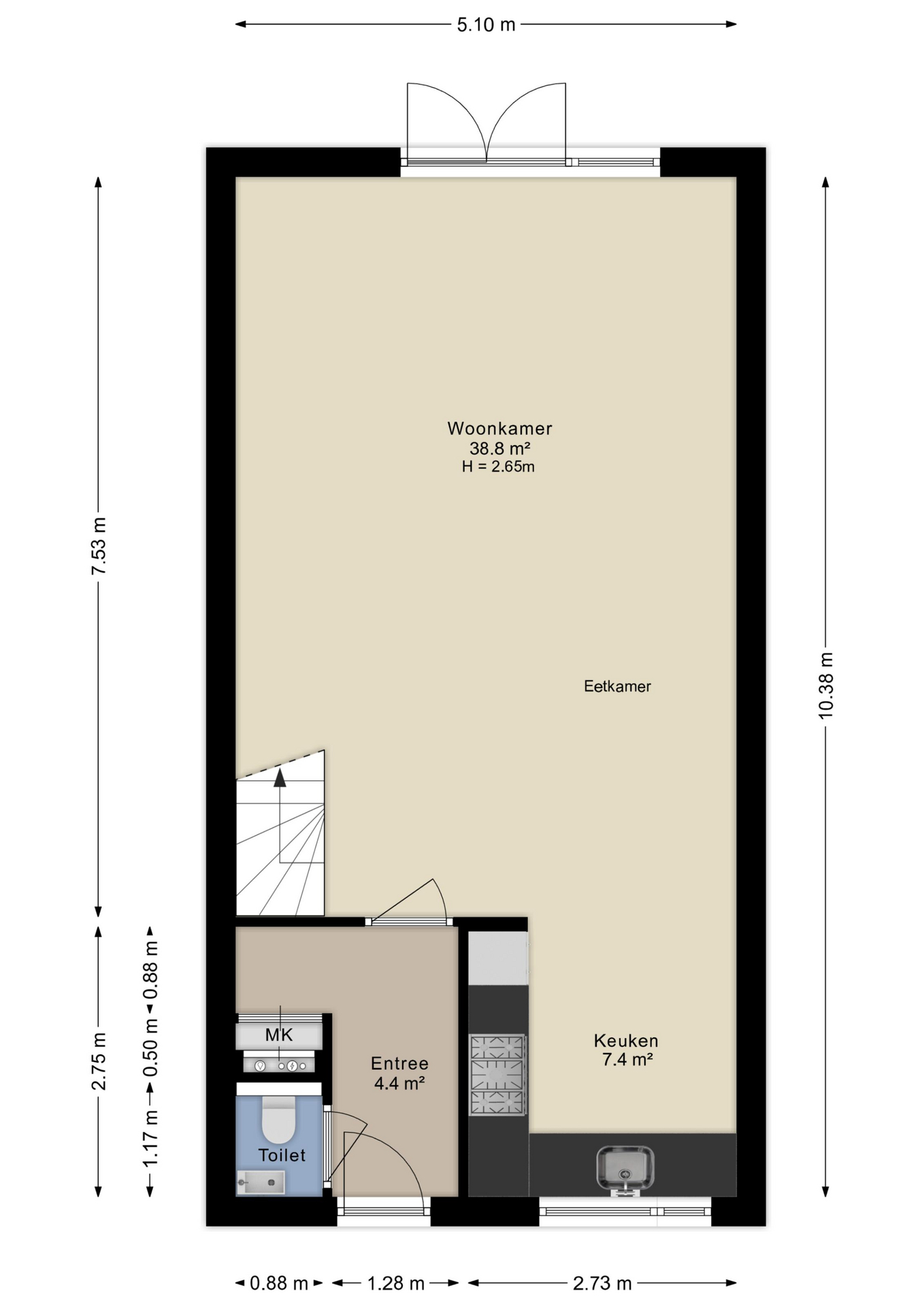
Via de verzorgde entree met toilet en meterkast kom je binnen in de sfeervolle living. De woonkamer is uitgebouwd en voorzien van een prachtige eikenhouten lamelparketvloer en gestuukte wanden en plafond, wat zorgt voor een moderne en rustige uitstraling. Een echte eyecatcher op de begane grond is de industriële binnendeur van Gewoon Gers, die de hal stijlvol scheidt van de woonkamer. De dubbele openslaande deuren geven toegang tot de verzorgde achtertuin op het noorden, met een achterom en een houten berging – ideaal voor fietsen en opslag.
De open keuken aan de voorzijde is modern uitgevoerd met witte hoogglans fronten en een donker composieten werkblad. Voorzien van diverse AEG-, ATAG- en Bosch-inbouwapparatuur, waaronder een nieuwe Bosch koelkast (2025), oven, vaatwasser, gaskookplaat en afzuigkap.

Eerste verdieping
Op de eerste verdieping bevinden zich drie ruime slaapkamers met neutrale laminaatvloeren en glad gestuukte wanden. De moderne badkamer is uitgevoerd in een strakke kleurstelling met grote grijze en witte tegels, voorzien van een inloopdouche, tweede toilet, dubbele wastafel met meubel en designradiator – een heerlijke plek om de dag fris te beginnen.
________________________________________
Tweede verdieping
Een verrassend ruime vierde slaapkamer met een indrukwekkende nokhoogte van maar liefst 3,75 meter! Hier is ook plaats voor de wasmachine en droger, en er is bergruimte achter de knieschotten. De ruimte is groot genoeg om als slaapkamer, werkkamer of hobbyruimte te gebruiken. Opsplitsen tot twee kamers én een separate wasruimte behoort ook tot de mogelijkheden.

Tuin
De verzorgde achtertuin op het noorden biedt veel privacy, is onderhoudsvriendelijk aangelegd met tegels en groen, en beschikt over een achterom en een houten tuinschuur. Perfect om in de zomer lekker buiten te eten of te ontspannen met een boek.

Kenmerken op een rij:
• Woonoppervlakte: ca. 128 m²
• Perceeloppervlakte: 132 m²
• Bouwjaar: 2011
• Buitenschilderwerk 2024 uitgevoerd voor- en achterzijde
• Energielabel A
• 4 ruime slaapkamers
• Uitgebouwde woonkamer met dubbele tuindeuren
• Eikenhouten lamelparketvloer op de begane grond
• Laminaatvloeren op de verdiepingen
• Moderne open keuken met AEG, ATAG en Bosch apparatuur (koelkast vernieuwd in 2025)
• Strakke badkamer met inloopdouche en tweede toilet
• Industrieel stalen binnendeur van Gewoon Gers
• Achtertuin op het noorden met achterom en houten berging

Omgeving
De Tuinlanden is een kindvriendelijke en groene wijk in Vleuterweide, met speeltuintjes, scholen en winkels op loopafstand. Ook het Maximapark en het winkelcentrum Vleuterweide liggen vlakbij. Daarnaast is de woning gunstig gelegen ten opzichte van uitvalswegen (A2 en A12) en openbaar vervoer.

Kortom: deze moderne en instapklare hoekwoning in De Tuinlanden te Vleuterweide biedt alles wat je zoekt – comfort, stijl, energiezuinigheid en een fijne ligging. Een huis waar je zó in kunt!

Lees verder

Kenmerken

  • Vraagprijs € 685.000,- k.k.
  • Aanvaarding In overleg
  • Type Hoekwoning
  • Bouwjaar 2011
  • Woonoppervlakte ca. 128 m2
  • Externe bergruimte ca. 5 m2
  • Slaapkamers 4
  • Inhoud ca. 472 m3
  • Perceeloppervlakte ca. 132 m2
  • Ligging tuin Noordoost
  • Energielabel A
  • Isolatie Dakisolatie, muurisolatie, vloerisolatie, dubbel glas, volledig geisoleerd
  • Verwarming Cv ketel
  • C.v.-ketel bouwjaar 2011
  • Voorzieningen Tv kabel, glasvezel kabel
  • Parkeerfaciliteiten Openbaar parkeren
  • Garage Geen garage
Meer kenmerken

In de buurt

Binnentuinlaan 3 3452 RN Vleuten

      De buurt

      Burgerlijke staat in wijk
      Gehuwd
      Ongehuwd
      Gescheiden
      Verweduwd
      • Gehuwd (34.87%)
      • Ongehuwd (59.96%)
      • Gescheiden (4.61%)
      • Verweduwd (0.56%)
      Leeftijd in wijk
      0 - 15 jaar
      15 - 25 jaar
      25-45 jaar
      45 - 65 jaar
      65+ jaar
      • 0 - 15 jaar (32.92%)
      • 15 - 25 jaar (7.75%)
      • 25 - 45 jaar (40.22%)
      • 45 - 65 jaar (15.96%)
      • 65+ jaar (3.15%)
      Geslacht
      • Mannen (49.27%)
      • Vrouwen (50.73%)
      Gezinnen met kinderen
      0 - 15 jaar
      15 - 25 jaar
      25-45 jaar
      • Met kinderen (64.93%)
      • Zonder kinderen (19.79%)
      • Éénpersoons huishoudens (15.28%)
      Woningen koop / huur
      • Koop (68.69%)
      • Huur (31.31%)
      Aantal inwoners:

      4435

      Schaduwwijzer

      Media

      Plattegronden

      Ander aanbod