Arabellapad 144, Amersfoort | Beumer

Arabellapad 144

3816SV, Amersfoort

Via de website IK-ZOEK.de-Alliantie.nl kun je reageren op deze woning tot en met woensdag 12 februari. Hiervoor maak je een Qii huurpaspoort aan. Luxe 2-kamerappartement met terras en parkeerplaats in het bruisende Hogekwartier! Wanneer je dit 2-kamerappartement in

  • 53 m2
  • Label A

€ 1.045,- p/m Bereken maandlasten

Bereken maandlasten
Heb je een verzekering nodig?

Omschrijving

Via de website IK-ZOEK.de-Alliantie.nl kun je reageren op deze woning tot en met woensdag 12 februari. Hiervoor maak je een Qii huurpaspoort aan. Luxe 2-kamerappartement met terras en parkeerplaats in het bruisende Hogekwartier! Wanneer je dit 2-kamerappartement in Castalia binnenstapt, valt direct de lichte en moderne sfeer op. Het appartement ligt op de begane grond van het statige complex, gelegen in het gewilde Hogekwartier van Amersfoort. Het biedt een ruime woonkamer met openslaande deuren naar een ruim terras dat perfect ligt op het zuidwesten, ideaal voor een zonnige middag of een gezellige avond buiten. De open indeling van de woonkamer…

Via de website IK-ZOEK.de-Alliantie.nl kun je reageren op deze woning tot en met woensdag 12 februari. Hiervoor maak je een Qii huurpaspoort aan.

Luxe 2-kamerappartement met terras en parkeerplaats in het bruisende Hogekwartier!

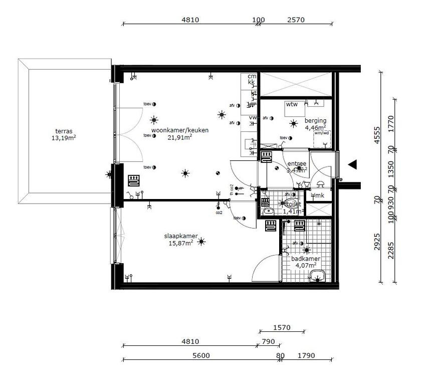
Wanneer je dit 2-kamerappartement in Castalia binnenstapt, valt direct de lichte en moderne sfeer op. Het appartement ligt op de begane grond van het statige complex, gelegen in het gewilde Hogekwartier van Amersfoort. Het biedt een ruime woonkamer met openslaande deuren naar een ruim terras dat perfect ligt op het zuidwesten, ideaal voor een zonnige middag of een gezellige avond buiten. De open indeling van de woonkamer zorgt voor een luchtige ruimte die naadloos overgaat in de luxe keuken. Deze is van alle gemakken voorzien, met een inductiekookplaat, afzuigkap, combi-oven, vaatwasser en een koelkast met vriesvak. Het composiet werkblad geeft de keuken een strakke, moderne uitstraling en je hebt meer dan genoeg ruimte om de lekkerste maaltijden te bereiden.

Het appartement is volledig gasloos en voor extra comfort beschikt het over vloerverwarming én -koeling, wat zorgt voor een aangename temperatuur het hele jaar door. Het energielabel A maakt dit appartement niet alleen comfortabel, maar ook energiezuinig. In de hal heb je toegang tot een handige berging, die ruimte biedt voor opslag en tevens de aansluiting voor de wasmachine heeft. Ook is er een apart zwevend toilet aanwezig, wat de woning extra praktisch maakt.

De ruime slaapkamer is een heerlijk rustige ruimte, ideaal voor rust en ontspanning. Het grote raam zorgt voor een prettige lichtinval, waardoor je in alle rust van je nachtrust kunt genieten. Wat dit appartement extra bijzonder maakt, is de moderne badkamer, die rechtstreeks vanuit de slaapkamer bereikbaar is. De badkamer is geheel betegeld en voorzien van een inloopdouche, wastafel en een handdoekradiator, wat zorgt voor zowel luxe als gemak.

Het complex zelf heeft een moderne entree met videofoon, brievenbussen, twee liften en een trapopgang. Je hebt bovendien de beschikking over een eigen parkeerplaats in de kelder, zodat je je nooit zorgen hoeft te maken over parkeren. Daarnaast is er een gemeenschappelijke fietsenberging waar je een vaste plek hebt voor twee fietsen. Het appartement is in het bruisende Hogekwartier gelegen, op slechts 10 minuten lopen van de historische binnenstad van Amersfoort, met een keur aan gezellige terrassen, restaurants en winkels. Ook voor je dagelijkse boodschappen kun je terecht op het nabijgelegen Euterpeplein of Neptunusplein. De bereikbaarheid is uitstekend: met de auto ben je binnen enkele minuten op de A28 en A1.

Dit appartement in Castalia is de ideale plek voor wie wil genieten van het comfort van een moderne woning, gecombineerd met de dynamiek van het stadsleven.

Bijzonderheden:
• Geheel gasloos.
• Luxe keuken met inbouwapparatuur.
• Comfortabele vloerverwarming en -koeling in het gehele appartement (WKO).
• Slaapkamer met badkamer (en-suite).
• Ruim terras op het zuidwesten.
• Algemene fietsenstalling.
• Eigen parkeerplaats in de ondergelegen parkeergarage.
• Laminaat vloer ter overname (geen kosten).
• Minimale huurperiode 1 jaar.
• Voorbehoud gunning verhuurder.
• Geen woningdelers.
• Garantstelling door derden behoort niet tot de mogelijkheid.
• Voorrang sociale huurders gemeente Amersfoort van woningcorporaties De Alliantie, Portaal en Omnia Wonen.
• Direct beschikbaar!

Huurprijs: € 1.045,- per maand incl. parkeerplaats
Servicekosten ca.: € 69,58 per maand

Gezamenlijk SV loon is minimaal 45 keer de huurprijs (€ 50.156,-).

Waar mogelijk geeft de Alliantie sociale huurders voorrang bij toewijzing. De Alliantie behoudt altijd het recht om de woning te gunnen aan de meest geschikte kandidaat.

- Een huurovereenkomst wordt aangegaan voor ten minste één jaar en wordt vanaf dan verlengd voor onbepaalde tijd. Na de minimale termijn van één jaar bedraagt de opzegtermijn voor de huurder één maand.
- De huurperiode kan op elke dag van de maand ingaan, dit hoeft niet perse de 1e van de maand te zijn. De Alliantie bepaalt de ingangsdatum van de huur: deze zal over het algemeen niet later ingaan dan een week na de toewijzing/bezichtiging.

In aanmerking komen voor deze woning?

Via de website IK-ZOEK.de-alliantie.nl kun je reageren op de betreffende woning. Je kunt reageren door een Qii huurpaspoort aan te maken. De verhuurder kijkt na einde inschrijfdatum wie er in aanmerking komen voor een bezichtiging. Je hoeft bij het makelaarskantoor geen papieren in te vullen, alles gaat via de website IK-ZOEK.de-alliantie.nl via het Qii huurpaspoort. Inschrijven is mogelijk tot en met woensdag 12 februari.

Wij moeten vaak een selectie maken uit alle reacties. Alleen indien je binnen de selectie valt, nemen wij contact met je op.

Lees verder

Kenmerken

  • Vraagprijs € 1.045,- p/m
  • Type Appartement
  • Woonoppervlakte ca. 53.00 m2
  • Externe bergruimte ca. 0.00 m2
  • Slaapkamers 1
  • Inhoud ca. 170.00 m3
  • Energielabel A
Meer kenmerken

In de buurt

Arabellapad 144 • 3816SV • Amersfoort

      Schaduwwijzer

      Media

      Plattegronden