Ahornstraat 24-2, Utrecht | Beumer

Ahornstraat 24 2

3552 CH, Utrecht

De uitgelezen kans voor elke starter (of doorstromer) en op zoek is naar een nieuw en instapklaar appartement op centrale plek in de stad; Ahornstraat 24 II – Utrecht De WONING Heerlijk licht en royaal 3-kamerappartement (voorheen 4 kamers) met twee balkons, een

  • 66 m2
  • Label C
  • 3 kamer(s)

€ 420.000,- k.k. Bereken maandlasten

Bereken maandlasten
Heb je een hypotheek nodig?

Omschrijving

De uitgelezen kans voor elke starter (of doorstromer) en op zoek is naar een nieuw en instapklaar appartement op centrale plek in de stad; Ahornstraat 24 II – Utrecht

De WONING

Heerlijk licht en royaal 3-kamerappartement (voorheen 4 kamers) met twee balkons, een ruime bergvliering en een eigen berging achter het complex voor fietsen. Dit alles gelegen op een steenworp afstand van het centrum van Utrecht.
De woning is recent volledig gerenoveerd en is daarmee instapklaar. Tijdens de renovatie zijn onder andere de keuken, badkamer, elektra, wand- en plafondafwerking aangepakt en is de woning in neutrale, eigentijdse kleuren afgewerkt.…

De uitgelezen kans voor elke starter (of doorstromer) en op zoek is naar een nieuw en instapklaar appartement op centrale plek in de stad; Ahornstraat 24 II – Utrecht

De WONING

Heerlijk licht en royaal 3-kamerappartement (voorheen 4 kamers) met twee balkons, een ruime bergvliering en een eigen berging achter het complex voor fietsen. Dit alles gelegen op een steenworp afstand van het centrum van Utrecht.
De woning is recent volledig gerenoveerd en is daarmee instapklaar. Tijdens de renovatie zijn onder andere de keuken, badkamer, elektra, wand- en plafondafwerking aangepakt en is de woning in neutrale, eigentijdse kleuren afgewerkt. Dankzij de combinatie van moderne afwerking en jaren ’50-architectuur is hier een sfeervol en comfortabel thuis ontstaan.
Het balkon aan de voorzijde biedt ochtend- en vroege middagzon, terwijl het balkon aan de achterzijde perfect ligt voor de middag- en avondzon.

DE OMGEVING
De Ahornstraat ligt op de grens van de populaire en kindvriendelijke wijken Nijenoord en Ondiep. Deze buurt is geliefd vanwege haar rustige, dorpse karakter op korte afstand van het bruisende stadsleven.
In de directe omgeving vind je gezellige eetgelegenheden zoals restaurant Blij aan de Vecht, diverse winkels, speciaalzaken en supermarkten aan de Amsterdamsestraatweg, en voor de sportievelingen ligt de Vecht om de hoek voor een rondje hardlopen, roeien of wandelen.
Met vijf minuten fietsen sta je in de binnenstad en met de auto ben je binnen een kwartier op de A2, A12 of A27. Ook het openbaar vervoer is uitstekend geregeld: de bushalte ligt op nog geen twee minuten lopen.

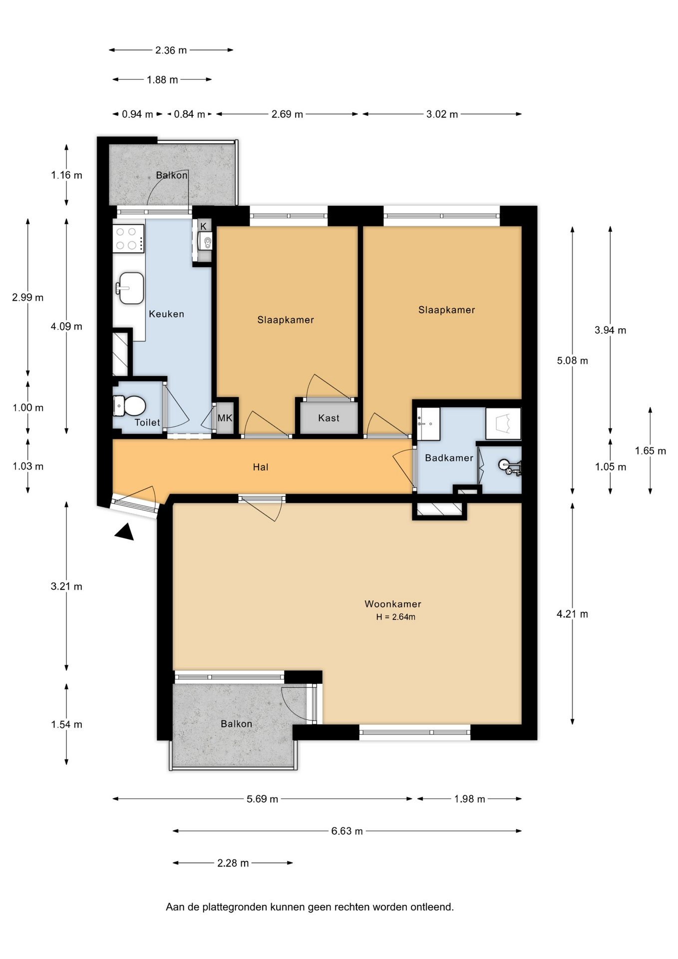
DE INDELING
Begane grond:
Afgesloten entree, nette hal met trapopgang naar de bovengelegen verdiepingen. Achter het complex bevindt zich een eigen berging (ca. 7 m²), bereikbaar via een afgesloten achterom.

Tweede verdieping:
Entree, hal met modern toilet en toegang tot alle vertrekken.
Aan de voorzijde bevindt zich de lichte woonkamer met openslaande deur naar het balkon en ruimte voor zowel een zit- als eethoek.
De nieuwe keuken (2025) is voorzien van moderne inbouwapparatuur zoals een inductiekookplaat, RVS afzuigkap, combi- oven en een vaatwasser. Vanuit de keuken is er toegang tot het tweede balkon aan de achterzijde.
Aan de achterzijde bevinden zich twee ruime slaapkamers, waarvan één met vaste kast.
De nieuwe badkamer is strak afgewerkt en voorzien van een inloopdouche, wastafelmeubel en aansluiting voor de wasmachine.
Via de gezamenlijke hal is met een losse trap toegang tot de royale bergvliering (ca. 19 m² vloeroppervlak), ideaal als werkruimte of extra opslag.

ENERGIELABEL:
De woning is grotendeels voorzien van dubbel glas, geïsoleerde voorzetwanden en een hoogrendementsketel, wat zorgt voor een comfortabel en energiezuinig woonklimaat.
Er is momenteel een energielabel C. Echter, in november wordt een nieuw label opgesteld, dat naar verwachting zal uitkomen op een B-label, wat de gunstige energieprestatie van het appartement nogmaals onderstreept.
Bovendien heeft de VvE goedkeuring gegeven voor de plaatsing van zonnepanelen op het dak, wat het energielabel nog verder zou verbeteren

BIJZONDERHEDEN
- Woonoppervlak: ca. 66 m²;
- Vliering: ca. 8,5 m²;
- Berging: ca. 7 m²;
- Volledig gerenoveerd in 2025;
- Twee balkons met ochtend- én avondzon;
- Volledig voorzien van dubbel glas;
- Nieuwe keuken, badkamer, elektra, wand- en plafondafwerking;
- De woning wordt zonder afwerkvloer aangeboden, hoge plinten aanwezig;
- Verwarming en warm water via CV-combiketel;
- Actieve VvE, servicekosten ca. € 165,- per maand;
- Goedkeuring van de VvE om zonnepanelen te instaleren;
- Er zal een niet-zelfbewoningsclausule worden opgenomen in de akte;
- Notariskeuze van verkoper;
- Oplevering; overdracht kan spoedig (zelfs nog in 2025).

Naast dit appartement wordt ook Ahornstraat 16 I aangeboden, ook geheel gerenoveerd eveneens spoedig op te leveren.

Kortom
Een licht, modern en comfortabel appartement op een fantastische locatie dicht bij het centrum van Utrecht.
Wil jij de eerste bewoner zijn na de renovatie? Maak dan snel een afspraak met je (NVM-)makelaar of vraag een bezichtiging aan via Funda.

Lees verder

Kenmerken

  • Vraagprijs € 420.000,- k.k.
  • Aanvaarding In overleg
  • Bouwjaar 1955
  • Woonoppervlakte ca. 66 m2
  • Oppervlakte gebouwgebonden ca. 7 m2
  • Overige inpandige ruimte ca. 9 m2
  • Externe bergruimte ca. 7 m2
  • Slaapkamers 2
  • Inhoud ca. 263 m3
  • Energielabel C
  • Isolatie Dubbel glas
  • Verwarming Cv ketel
  • C.v.-ketel bouwjaar 2012
  • Voorzieningen Mechanische ventilatie
  • Parkeerfaciliteiten Betaald parkeren, parkeervergunningen
  • Garage Geen garage
Meer kenmerken

In de buurt

Ahornstraat 242 3552 CH Utrecht

      De buurt

      Leeftijd in wijk
      0 - 15 jaar
      15 - 25 jaar
      25-45 jaar
      45 - 65 jaar
      65+ jaar
      • 0 - 15 jaar (12.99%)
      • 15 - 25 jaar (17.90%)
      • 25 - 45 jaar (36.17%)
      • 45 - 65 jaar (21.13%)
      • 65+ jaar (11.81%)
      Geslacht
      • Mannen (49.30%)
      • Vrouwen (50.70%)
      Gezinnen met kinderen
      0 - 15 jaar
      15 - 25 jaar
      25-45 jaar
      • Met kinderen (23.77%)
      • Zonder kinderen (25.96%)
      • Éénpersoons huishoudens (50.27%)
      Aantal inwoners:

      6805

      Schaduwwijzer

      Media

      Plattegronden

      Ander aanbod