Van der Duijnstraat 17, Utrecht | Beumer

Van der Duijnstraat 17

3581 JW, Utrecht

Welkom aan de Van der Duijnstraat 17, een royaal en zeer breed vooroorlogs herenhuis met voortuin en flinke achtertuin op het zonnige zuidwesten! De woning ligt "om de hoek van" het Wilhelminapark, in een gemoedelijke straat, in één van de meest geliefde wijken van

  • 207 m2
  • 179 m2
  • Label C
  • 6 kamer(s)

€ 1.475.000,- k.k. Bereken maandlasten

Bereken maandlasten
Heb je een hypotheek nodig?

Omschrijving

Welkom aan de Van der Duijnstraat 17, een royaal en zeer breed vooroorlogs herenhuis met voortuin en flinke achtertuin op het zonnige zuidwesten!

De woning ligt "om de hoek van" het Wilhelminapark, in een gemoedelijke straat, in één van de meest geliefde wijken van Utrecht.
Een fantastische locatie, voor iedereen die het bruisende stadsleven met alle gemakken binnen handbereik, wil combineren met een rustige en sfeervolle woonomgeving. Zo woont u hier op loopafstand van een uitgebreid assortiment aan winkels, restaurants, koffietentjes, traiteurs aan de Burg. Reigerstraat/Nachtegaalstraat en uiteraard de historische binnenstad. Daarnaast bent u snel bij Utrecht Science…

Welkom aan de Van der Duijnstraat 17, een royaal en zeer breed vooroorlogs herenhuis met voortuin en flinke achtertuin op het zonnige zuidwesten!

De woning ligt "om de hoek van" het Wilhelminapark, in een gemoedelijke straat, in één van de meest geliefde wijken van Utrecht.
Een fantastische locatie, voor iedereen die het bruisende stadsleven met alle gemakken binnen handbereik, wil combineren met een rustige en sfeervolle woonomgeving. Zo woont u hier op loopafstand van een uitgebreid assortiment aan winkels, restaurants, koffietentjes, traiteurs aan de Burg. Reigerstraat/Nachtegaalstraat en uiteraard de historische binnenstad. Daarnaast bent u snel bij Utrecht Science park, diverse sportverenigingen en kun je recreëren in landgoed Amelisweerd en Rhijnauwen.

De breedte van dit charmante huis is bijna 7 meter, wat u direct terugziet in de ruime en lichte vertrekken. Naast de royale kamer-en-suite beschikt de woning over 5 ruime slaapkamers. Het woonoppervlakte bedraagt maar liefst 207 m2.

Indeling:
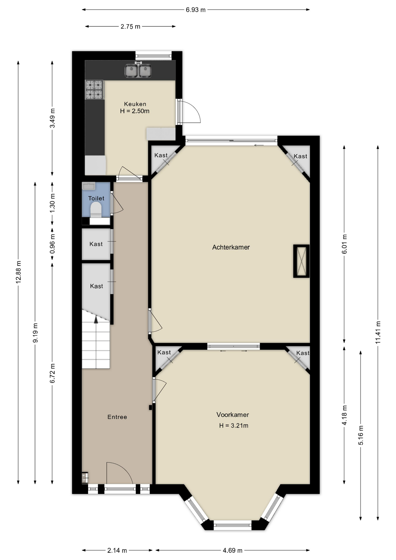
Via de voortuin komt u in de ruime hal/entree met voldoende ruimte voor een garderobe, trapkast, toilet en toegang tot de woonkamer en keuken. De royale kamer-en-suite, met een breedte van 4,70m, beschikt over een erker aan de voorzijde, meerdere vaste kasten, open haard, fraaie visgraatgelegde parketvloer en schuifpui naar de achtertuin. De dichte keuken ligt aan de achterzijde en is voorzien van diverse inbouwapparatuur en biedt eveneens toegang tot de achtertuin. Deze heerlijke achtertuin van circa 7m x 10,40m met houten berging ligt op het zuidwesten en staat garant voor mooie zomeravonden.

1e Verdieping:
Ruime overloop met vaste kast, separaat toilet en toegang tot het dakterras. Drie royale slaapkamers, waarvan twee slaapkamers beschikken over vaste kasten en toegang bieden tot de badkamer. De slaapkamer aan de voorzijde heeft openslaande deuren naar een balkon, welke uitzicht biedt op de rustige straat. De badkamer is voorzien van een douche en dubbele wastafel.

2e Verdieping:
Overloop met toegang tot de C.V.-ruimte met wastafel. Wasruimte met opstelmogelijkheden voor wasmachine en droger. Twee ruime slaapkamers met vaste kasten. Zeer ruime berging.

Bijzonderheden:
- Bouwjaar: 1913
- Woonoppervlakte: 207 m2
- Energielabel C
- Verwarming en warm water via een C.V.-combiketel uit 2018 (Vaillant)
- Voorzien van 11 zonnepanelen
- Vrijwel volledig voorzien van dubbele beglazing en dakisolatie

Lees verder

Kenmerken

  • Vraagprijs € 1.475.000,- k.k.
  • Aanvaarding In overleg
  • Type Tussenwoning
  • Bouwjaar 1913
  • Woonoppervlakte ca. 207 m2
  • Oppervlakte gebouwgebonden ca. 12 m2
  • Externe bergruimte ca. 5 m2
  • Slaapkamers 5
  • Inhoud ca. 771 m3
  • Perceeloppervlakte ca. 179 m2
  • Ligging tuin Zuidwest
  • Energielabel C
  • Isolatie Dakisolatie, grotendeels dubbelglas
  • Verwarming Cv ketel
  • C.v.-ketel bouwjaar 2018
  • Voorzieningen Tv kabel
  • Parkeerfaciliteiten Openbaar parkeren, betaald parkeren, parkeervergunningen
  • Garage Geen garage
Meer kenmerken

In de buurt

Van der Duijnstraat 17 3581 JW Utrecht

      De buurt

      Burgerlijke staat in wijk
      Gehuwd
      Ongehuwd
      Gescheiden
      Verweduwd
      • Gehuwd (20.76%)
      • Ongehuwd (72.13%)
      • Gescheiden (5.59%)
      • Verweduwd (1.52%)
      Leeftijd in wijk
      0 - 15 jaar
      15 - 25 jaar
      25-45 jaar
      45 - 65 jaar
      65+ jaar
      • 0 - 15 jaar (14.41%)
      • 15 - 25 jaar (16.02%)
      • 25 - 45 jaar (39.62%)
      • 45 - 65 jaar (20.95%)
      • 65+ jaar (9.00%)
      Geslacht
      • Mannen (46.20%)
      • Vrouwen (53.80%)
      Gezinnen met kinderen
      0 - 15 jaar
      15 - 25 jaar
      25-45 jaar
      • Met kinderen (19.06%)
      • Zonder kinderen (20.84%)
      • Éénpersoons huishoudens (60.10%)
      Woningen koop / huur
      • Koop (59.18%)
      • Huur (40.82%)
      Aantal inwoners:

      5260

      Schaduwwijzer

      Media

      Plattegronden

      Ander aanbod