Prinses Christinalaan 18, De meern | Beumer

Prinses Christinalaan 18

3454 AM, De meern

Ontdek deze fijne gezinswoning in het bruisende centrum van De Meern, op loopafstand van het winkelcentrum Mereveldplein en het Meentpark. In 2007 is de woning aan de voor-, achter- en zijkant uitgebouwd, voorzien van vloerverwarming op de begane grond, is er op de begane

  • 110 m2
  • 207 m2
  • Label C
  • 5 kamer(s)

€ 525.000,- k.k. Bereken maandlasten

Bereken maandlasten
Heb je een hypotheek nodig?

Omschrijving

Ontdek deze fijne gezinswoning in het bruisende centrum van De Meern, op loopafstand van het winkelcentrum Mereveldplein en het Meentpark. In 2007 is de woning aan de voor-, achter- en zijkant uitgebouwd, voorzien van vloerverwarming op de begane grond, is er op de begane grond een ruime badkamer gerealiseerd en is de keuken vervangen. Ook is er over volle breedte van het huis een natuurlijk lichtstraat geplaatst in de badkamer en woonkeuken waardoor er veel natuurlijk licht de woning binnen komt. Deze hoekwoning biedt moderne woonbehoeften gecombineerd met de charme van een gevestigde buurt.

Sporten en ontspannen kan in…

Ontdek deze fijne gezinswoning in het bruisende centrum van De Meern, op loopafstand van het winkelcentrum Mereveldplein en het Meentpark. In 2007 is de woning aan de voor-, achter- en zijkant uitgebouwd, voorzien van vloerverwarming op de begane grond, is er op de begane grond een ruime badkamer gerealiseerd en is de keuken vervangen. Ook is er over volle breedte van het huis een natuurlijk lichtstraat geplaatst in de badkamer en woonkeuken waardoor er veel natuurlijk licht de woning binnen komt. Deze hoekwoning biedt moderne woonbehoeften gecombineerd met de charme van een gevestigde buurt.

Sporten en ontspannen kan in het naastgelegen Meentpark. Naast het Meentpark is ook winkelcentrum Mereveldplein in de nabije omgeving te vinden. Hier bevinden zich diverse supermarkten en verswinkels voor de dagelijkse boodschappen. Ook verschillende verbindingswegen, scholen, kinderdagverblijven, sportfaciliteiten en het openbaar vervoer bevinden zich in de directe omgeving.

Begane grond:
Kom binnen in de lichte en ruime entree met toegang tot de woonkamer, toilet met fonteintje, de meterkast en trapopgang. De royale woonkamer met open keuken vormt het hart van deze woning. De keuken is uitgerust met een stijlvolle Smeg-oven, 6 pits gasfornuis metafzuigkap welke in dezelfde stijl is afgewerkt, combi-oven en een grote wasbak, waardoor koken een plezierige bezigheid wordt. De aangrenzende bijkeuken/washok zorgt niet alleen voor extra bergruimte, maar biedt ook aansluiting voor witgoed. De lichtstraat aan de achterzijde, erker aan de voorzijde en het extra raam aan de zijkant zorgen ervoor dat er veel natuurlijk daglicht de woonkamer binnen komt. De begane grond wordt compleet gemaakt door een fraai afgewerkte badkamer met bad, inloopdouche, wastafel en toilet, waarbij vloerverwarming extra comfort biedt.

Eerste verdieping:
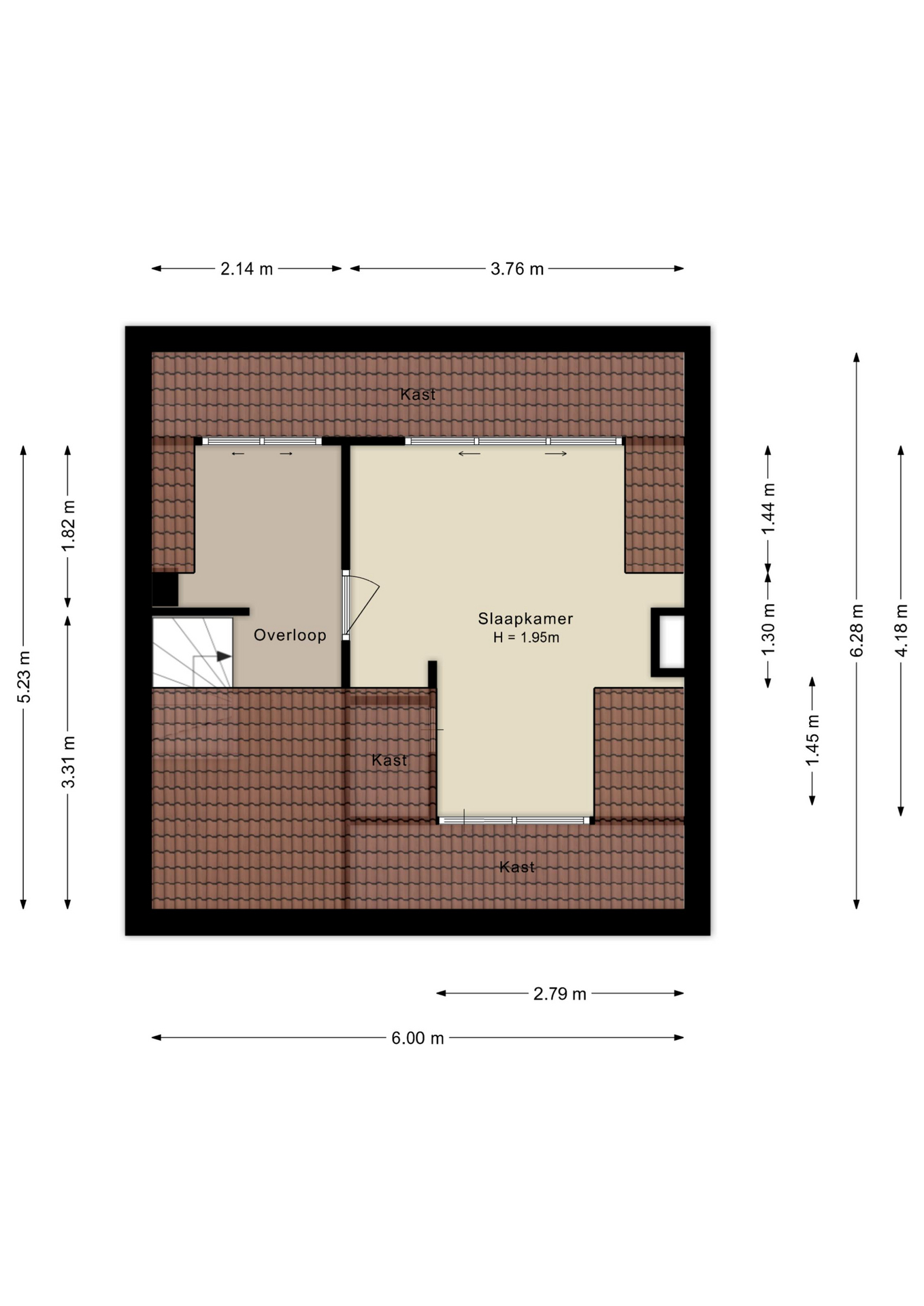
Op de eerste verdieping vind je drie ruime slaapkamers die zorgen voor een comfortabele gezinsbeleving. Ook zijn er op de eerste verdieping 4 ruime inbouwkasten en een ruim toilet met wastafel te vinden.

Tweede verdieping:
De tweede verdieping bestaat uit een aanvullende slaapkamer, ideaal voor extra verblijf of als hobbyruimte. Door de dakkapellen aan de voor- en achterzijde van de woning komt er veel natuurlijk daglicht de ruimte binnen. Hoewel deze woonlaag door de lagere hoogte niet wordt meegerekend in het officiële woonoppervlak, biedt het een overvloed aan bergruimte en gebruiksmogelijkheden. Geniet van het vrije uitzicht vanuit de dakkapel aan de achterzijde.

Bijzonderheden:
- In 2007 aan de voor-, achter- en zijkant uitgebouwde hoekwoning;
- Moderne woonbehoeften gecombineerd met de charme van een gevestigde buurt;
- Beschikt over 2 dakkapellen geplaatst in 1997;
- De woning is voorzien van gevel-, vloer- en dakisolatie;
- De ketel is geplaatst in februari 2026 (eigendom);
- Op loopafstand van het Meentpark voor sport of ontspanning;
- Op loopafstand van winkelcentrum Mereveldplein met supermarkten, verswinkels, drogist etc.
- Diverse uitvalswegen zijn te vinden in de nabije omgeving;
- Kindvriendelijke buurt met scholen, kinderdagverblijven en speelvoorzieningen in de nabije omgeving.

Lees verder

Kenmerken

  • Vraagprijs € 525.000,- k.k.
  • Aanvaarding In overleg
  • Type Hoekwoning
  • Bouwjaar 1960
  • Woonoppervlakte ca. 110 m2
  • Overige inpandige ruimte ca. 28 m2
  • Externe bergruimte ca. 4 m2
  • Slaapkamers 4
  • Inhoud ca. 479 m3
  • Perceeloppervlakte ca. 207 m2
  • Ligging tuin Noordoost
  • Energielabel C
  • Isolatie Dakisolatie, muurisolatie, vloerisolatie, dubbel glas, volledig geisoleerd, hr glas
  • Verwarming Cv ketel
  • C.v.-ketel bouwjaar 2026
  • Voorzieningen Glasvezel kabel, natuurlijke ventilatie
  • Parkeerfaciliteiten Openbaar parkeren, op eigen terrein
  • Garage Geen garage
Meer kenmerken

In de buurt

Prinses Christinalaan 18 • 3454 AM • De meern

      De buurt

      Burgerlijke staat in wijk
      Gehuwd
      Ongehuwd
      Gescheiden
      Verweduwd
      • Gehuwd (43.93%)
      • Ongehuwd (43.20%)
      • Gescheiden (7.04%)
      • Verweduwd (5.83%)
      Leeftijd in wijk
      0 - 15 jaar
      15 - 25 jaar
      25-45 jaar
      45 - 65 jaar
      65+ jaar
      • 0 - 15 jaar (16.83%)
      • 15 - 25 jaar (11.41%)
      • 25 - 45 jaar (21.28%)
      • 45 - 65 jaar (29.45%)
      • 65+ jaar (21.04%)
      Geslacht
      • Mannen (49.15%)
      • Vrouwen (50.85%)
      Gezinnen met kinderen
      0 - 15 jaar
      15 - 25 jaar
      25-45 jaar
      • Met kinderen (38.20%)
      • Zonder kinderen (31.46%)
      • Éénpersoons huishoudens (30.34%)
      Woningen koop / huur
      • Koop (70.00%)
      • Huur (30.00%)
      Aantal inwoners:

      6165

      Schaduwwijzer

      Media

      Plattegronden

      Ander aanbod