Leilat 23, Hooglanderveen | Beumer

Leilat 23

3829 ET, Hooglanderveen

Stijlvol, energiezuinig en helemaal instapklaar: deze woning in Hooglanderveen verrast je bij elke stap. Deze fraai afgewerkte tussenwoning uit 2013 combineert comfort, energiezuinigheid en een fijne ligging in een kindvriendelijke wijk. Met vier slaapkamers, een

  • 145 m2
  • 169 m2
  • Label A++
  • 7 kamer(s)

€ 619.000,- k.k. Bereken maandlasten

Bereken maandlasten
Heb je een hypotheek nodig?

Omschrijving

Stijlvol, energiezuinig en helemaal instapklaar: deze woning in Hooglanderveen verrast je bij elke stap.

Deze fraai afgewerkte tussenwoning uit 2013 combineert comfort, energiezuinigheid en een fijne ligging in een kindvriendelijke wijk. Met vier slaapkamers, een uitgebouwde woonkamer, moderne keuken en een zonnige tuin op het zuiden, is dit de ideale woning voor wie op zoek is naar ruimte, gemak én sfeer. Je hoeft alleen nog maar je meubels neer te zetten! Daarnaast is de woning uitgerust met 10 zonnepanelen en een energielabel A++!

Indeling

Begane grond
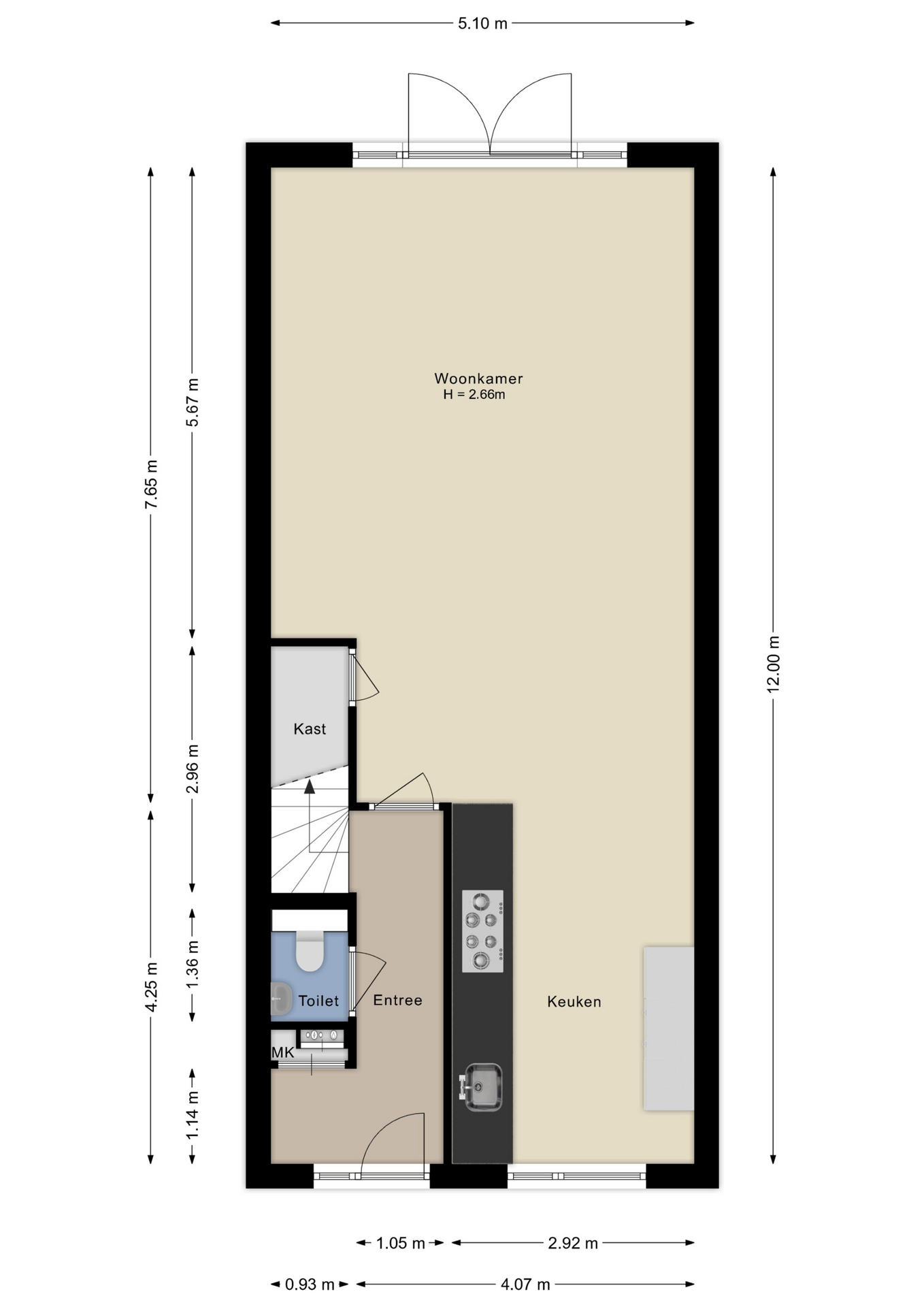
De hal biedt toegang tot de ruime woonkamer en het toilet met fontein.…

Stijlvol, energiezuinig en helemaal instapklaar: deze woning in Hooglanderveen verrast je bij elke stap.

Deze fraai afgewerkte tussenwoning uit 2013 combineert comfort, energiezuinigheid en een fijne ligging in een kindvriendelijke wijk. Met vier slaapkamers, een uitgebouwde woonkamer, moderne keuken en een zonnige tuin op het zuiden, is dit de ideale woning voor wie op zoek is naar ruimte, gemak én sfeer. Je hoeft alleen nog maar je meubels neer te zetten! Daarnaast is de woning uitgerust met 10 zonnepanelen en een energielabel A++!

Indeling

Begane grond
De hal biedt toegang tot de ruime woonkamer en het toilet met fontein. De tuingerichte woonkamer is direct bij binnenkomst een fijne verrassing: extra ruim dankzij de uitbouw en voorzien van een moderne pvc-vloer met vloerverwarming, strak stucwerk en openslaande deuren naar de zonnige achtertuin. Aan de voorzijde van de woning bevindt zich de open keuken, die compleet is uitgerust met een 5-pits gaskookplaat, combi-oven, koel-vriescombinatie, vaatwasser en afzuigkap. Hier bereid je de lekkerste maaltijden!

Eerste verdieping
De overloop biedt toegang tot twee goed gemeten slaapkamers, beide afgewerkt met een laminaatvloer. De ruime hoofdslaapkamer aan de achterzijde is verbonden met een royale inloopkastenkamer. De badkamer is verzorgd en compleet: voorzien van dubbele wastafel, inloopdouche en toilet.

Tweede verdieping
Op deze verdieping vind je nog twee slaapkamers, beide met een dakraam voor extra lichtinval. Daarnaast is er een aparte kamer met opstelplaats voor de cv-ketel, de wasmachine en de wasdroger. Via een vlizotrap bereik je een royale bergvliering.

Tuin
De achtertuin is gelegen op het zuiden en daarmee een heerlijke plek om volop van de zon te genieten. De tuin beschikt over een gezellige overkapping voor schaduwrijke momenten, terwijl de vrijstaande houten berging met elektra extra opbergruimte biedt voor tuingereedschap, fietsen en meer.

Omgeving
De woning is gelegen in het populaire Hooglanderveen, een vriendelijke en gezinsgerichte wijk die geliefd is bij (jonge) gezinnen. Hier woon je rustig, maar toch met alle voorzieningen binnen handbereik, zoals supermarkten, scholen, kinderdagverblijven, speelvoorzieningen en sportclubs. Het NS-station Vathorst en de uitvalswegen A1 en A28 zijn snel bereikbaar. In de buurt zijn bovendien volop mogelijkheden om te wandelen of te fietsen langs het water en door het groen.

Bijzonderheden
- Energielabel A++
- 10 zonnepanelen uit 2023
- Uitgebouwde woonkamer
- Pvc-vloer (2022) met vloerverwarming
- Buitenschilderwerk achterzijde 2022, voorzijde 2023
- Tuin op het zonnige zuiden met overkapping en vrijstaande houten berging
- Gewilde en kindvriendelijke buurt, met scholen, winkels en openbaar vervoer op korte afstand

Ben jij klaar voor deze fijne tussenwoning op een toplocatie in Hooglanderveen? Maak snel een afspraak voor een bezichtiging en laat je verrassen door de ruimte, het comfort en de goede afwerking van de woning!

Vraagprijs: € 619.000,- k.k.
Oplevering: in overleg.

Lees verder

Bewoners aan het woord

  • Opmerking

    Bijna twaalf jaar geleden betrokken wij als samengesteld gezin, met vier opgroeiende pubers, dit heerlijke huis aan de Leilat 23. Dankzij de royale indeling hadden de kinderen allemaal hun eigen plekje, terwijl sportverenigingen, scholen en vriendengroepen allemaal op fietsafstand lagen. Dat maakte het dagelijks leven niet alleen praktisch, maar vooral heel fijn.
    Wat dit huis en deze straat voor ons extra bijzonder maakt, is de gezellige buurt. De contacten met de buren zijn altijd goed geweest en hebben geleid tot talloze gezellige momenten: samen oliebollen bakken op oudjaarsdag, buurtbarbecues, spontaan bij elkaar binnenlopen voor een borrel, het soort saamhorigheid dat je niet overal meer vindt.
    Hooglanderveen biedt dat echte dorpsgevoel: rustig, vriendelijk en vertrouwd. En toch zit je verrassend dicht bij de stad, waardoor je het beste van twee werelden hebt. De ruimte in en om het huis, gecombineerd met de fijne sfeer van de buurt, heeft ons hier altijd met veel plezier laten wonen.

Kenmerken

  • Vraagprijs € 619.000,- k.k.
  • Aanvaarding In overleg
  • Type Tussenwoning
  • Bouwjaar 2013
  • Woonoppervlakte ca. 145 m2
  • Overige inpandige ruimte ca. 4 m2
  • Externe bergruimte ca. 5 m2
  • Slaapkamers 4
  • Inhoud ca. 535 m3
  • Perceeloppervlakte ca. 169 m2
  • Ligging tuin Zuid
  • Energielabel A++
  • Isolatie Dubbel glas, volledig geisoleerd
  • Verwarming Cv ketel, vloerverwarming gedeeltelijk
  • C.v.-ketel bouwjaar 2013
  • Voorzieningen Mechanische ventilatie, tv kabel, dakraam, glasvezel kabel, zonnepanelen
  • Parkeerfaciliteiten Openbaar parkeren
  • Garage Geen garage
Meer kenmerken

Kenmerken toegevoegd door verkoper, vrienden en familie

  • Kenmerk(en)
    Gezellige binnenstad Amersfoort op fietsafstand
  • Kenmerk(en)
    Energiezuinig
  • Kenmerk(en)
    Gezellige buren
  • Kenmerk(en)
    Kindvriendelijke buurt
  • Kenmerk(en)
    Zonnige tuin

In de buurt

Leilat 23 • 3829 ET • Hooglanderveen

      De buurt

      Burgerlijke staat in wijk
      Gehuwd
      Ongehuwd
      Gescheiden
      Verweduwd
      • Gehuwd (37.40%)
      • Ongehuwd (58.36%)
      • Gescheiden (3.71%)
      • Verweduwd (0.53%)
      Leeftijd in wijk
      0 - 15 jaar
      15 - 25 jaar
      25-45 jaar
      45 - 65 jaar
      65+ jaar
      • 0 - 15 jaar (33.86%)
      • 15 - 25 jaar (7.14%)
      • 25 - 45 jaar (42.06%)
      • 45 - 65 jaar (15.61%)
      • 65+ jaar (1.32%)
      Geslacht
      • Mannen (51.20%)
      • Vrouwen (48.80%)
      Gezinnen met kinderen
      0 - 15 jaar
      15 - 25 jaar
      25-45 jaar
      • Met kinderen (66.12%)
      • Zonder kinderen (20.66%)
      • Éénpersoons huishoudens (13.22%)
      Woningen koop / huur
      • Koop (89.00%)
      • Huur (11.00%)
      Aantal inwoners:

      1875

      Schaduwwijzer

      Media

      Plattegronden

      360°

      Ander aanbod