Keerkring 22, Amersfoort | Beumer

Keerkring 22

3813 BC, Amersfoort

Aan de rand van de sfeervolle, historische binnenstad van Amersfoort ligt een kleinschalig nieuwbouwproject; Meridiaan - 9 Stadswoningen. De maisonnette aan de Keerkring 22 maakt onderdeel uit van dit moderne project met een robuuste uitstraling. De maisonnette is nog in

  • 109 m2
  • 4 kamer(s)

€ 500.000,- k.k. Bereken maandlasten

Bereken maandlasten
Heb je een hypotheek nodig?

Omschrijving

Aan de rand van de sfeervolle, historische binnenstad van Amersfoort ligt een kleinschalig nieuwbouwproject; Meridiaan - 9 Stadswoningen. De maisonnette aan de Keerkring 22 maakt onderdeel uit van dit moderne project met een robuuste uitstraling. De maisonnette is nog in aanbouw, oplevering wordt verwacht eind 2025. Deze 3-kamerwoning beschikt over een eigen parkeerplaats en berging op de begane grond.

Indeling:
Bescheiden terras/ tuin met eigen entree op de begane grond. Je komt direct binnen in de woonkeuken. Deze ruimte heeft grote ramen en voldoende plaats voor een royale keuken en eettafel. Hier ontvang je je gasten terwijl je ondertussen…

Aan de rand van de sfeervolle, historische binnenstad van Amersfoort ligt een kleinschalig nieuwbouwproject; Meridiaan - 9 Stadswoningen. De maisonnette aan de Keerkring 22 maakt onderdeel uit van dit moderne project met een robuuste uitstraling. De maisonnette is nog in aanbouw, oplevering wordt verwacht eind 2025. Deze 3-kamerwoning beschikt over een eigen parkeerplaats en berging op de begane grond.

Indeling:
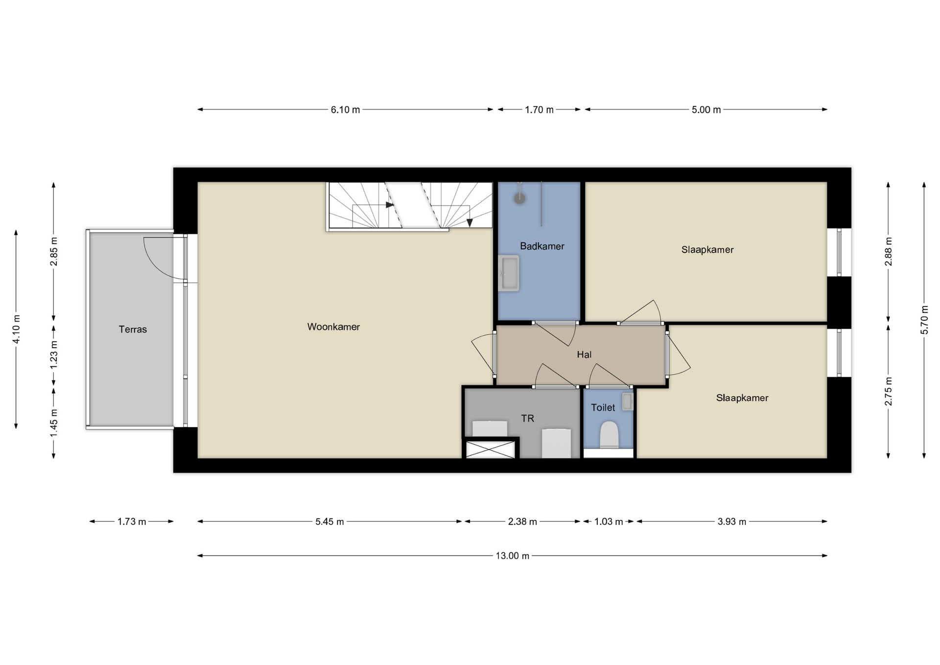
Bescheiden terras/ tuin met eigen entree op de begane grond. Je komt direct binnen in de woonkeuken. Deze ruimte heeft grote ramen en voldoende plaats voor een royale keuken en eettafel. Hier ontvang je je gasten terwijl je ondertussen een lekker gerecht voor hen bereidt. Achter de voordeur bevindt zich de technische ruimte voor de warmtepomp en de meterkast. Via de trapopgang is de eerste verdieping te bereiken.

Verdieping: lichte en royale woonkamer met ruimte voor een gezellige zithoek om te ontspannen. Via een loopdeur is het ruime balkon van bijna 7,5 m² op het zuidzuidoosten bereikbaar. Tussenhal met toegang tot de 2 slaapkamers aan de achterzijde van het gebouw. Badkamer (casco) met aansluitpunten voor de douche, wastafel en radiator. Separaat toilet met fontein. Technische ruimte met de opstelplaats voor de WTW en de wasmachine.

Algemeen:
De appartementen zijn voorzien van een warmtepomp, comfortabele vloerverwarming en zijn volledig geïsoleerd. De maisonnette kan door de nieuwe eigenaar naar smaak verder worden afgewerkt. Koper dient rekening te houden met de nog aan te brengen wand- en vloerafwerking, de aankoop van een keuken en het plaatsen van het sanitair en tegelwerk in de badkamer.

De gezellige binnenstad van Amersfoort ligt op loopafstand, de bushalte ligt in de buurt en het NS-treinstation op 5 minuten fietsen. Met de auto ben je snel via de Hogeweg op de A28 of via de Bunschoterstraat naar de A1.

Bijzonderheden:
- Woonoppervlak circa 109 m².
- Parkeerplaats op het binnenterrein.
- Eigen berging in de onderbouw.
- Casco badkamer.
- Casco keuken.
- Woningborg garantieregeling.
- Verwachte oplevering november 2025.
- De V.v.E. is nog in oprichting, servicekosten zijn nog niet bekend.

Het appartement is nog niet te bezichtigen. De verkoopgesprekken vinden plaats bij Beumer Woonvast op kantoor.

Vraagprijs: € 500.000,- k.k.
Aanvaarding: in overleg.

Lees verder

Kenmerken

  • Vraagprijs € 500.000,- k.k.
  • Aanvaarding In overleg
  • Bouwjaar 2025
  • Woonoppervlakte ca. 109 m2
  • Oppervlakte gebouwgebonden ca. 16 m2
  • Externe bergruimte ca. 6 m2
  • Slaapkamers 2
  • Inhoud ca. 407 m3
  • Ligging tuin Zuidoost
  • Isolatie Volledig geisoleerd
  • Verwarming Vloerverwarming geheel, warmtepomp
  • Voorzieningen Tv kabel, glasvezel kabel, zonnepanelen, balansventilatie
  • Parkeerfaciliteiten Openbaar parkeren
  • Garage Parkeerplaats
Meer kenmerken

In de buurt

Keerkring 22 • 3813 BC • Amersfoort

      De buurt

      Burgerlijke staat in wijk
      Gehuwd
      Ongehuwd
      Gescheiden
      Verweduwd
      • Gehuwd (32.29%)
      • Ongehuwd (56.60%)
      • Gescheiden (9.03%)
      • Verweduwd (2.08%)
      Leeftijd in wijk
      0 - 15 jaar
      15 - 25 jaar
      25-45 jaar
      45 - 65 jaar
      65+ jaar
      • 0 - 15 jaar (23.10%)
      • 15 - 25 jaar (12.07%)
      • 25 - 45 jaar (37.24%)
      • 45 - 65 jaar (19.31%)
      • 65+ jaar (8.28%)
      Geslacht
      • Mannen (49.83%)
      • Vrouwen (50.17%)
      Gezinnen met kinderen
      0 - 15 jaar
      15 - 25 jaar
      25-45 jaar
      • Met kinderen (40.80%)
      • Zonder kinderen (20.80%)
      • Éénpersoons huishoudens (38.40%)
      Woningen koop / huur
      • Koop (29.00%)
      • Huur (71.00%)
      Aantal inwoners:

      1435

      Schaduwwijzer

      Media

      Plattegronden

      Ander aanbod