Huzarenstraat 57, Amersfoort | Beumer

Huzarenstraat 57

3816 DX, Amersfoort

OPEN HUIS DONDERDAG 26 JUNI A.S. VAN 9.00 - 10.00 UUR! 2-kamer benedenwoning met tuin op toplocatie in Amersfoort! Ben je op zoek naar een lichte, comfortabele woning met een fijne buitenruimte én een centrale ligging? Dan is deze charmante benedenwoning precies

  • 52 m2
  • Label C
  • 2 kamer(s)

€ 310.000,- k.k. Bereken maandlasten

Bereken maandlasten
Heb je een hypotheek nodig?

Omschrijving

OPEN HUIS DONDERDAG 26 JUNI A.S. VAN 9.00 - 10.00 UUR!

2-kamer benedenwoning met tuin op toplocatie in Amersfoort!

Ben je op zoek naar een lichte, comfortabele woning met een fijne buitenruimte én een centrale ligging? Dan is deze charmante benedenwoning precies wat je zoekt! Gelegen aan een rustig hofje, op loopafstand van het historische centrum van Amersfoort en het groene Park Randenbroek, woon je hier heerlijk rustig met alle gemakken van de stad binnen handbereik.

Deze 2-kamerwoning beschikt over een royale woonkamer met open keuken, een zonnige achtertuin op het zuiden, een voortuin (bereikbaar via de buitenzijde), een ruime…

OPEN HUIS DONDERDAG 26 JUNI A.S. VAN 9.00 - 10.00 UUR!

2-kamer benedenwoning met tuin op toplocatie in Amersfoort!

Ben je op zoek naar een lichte, comfortabele woning met een fijne buitenruimte én een centrale ligging? Dan is deze charmante benedenwoning precies wat je zoekt! Gelegen aan een rustig hofje, op loopafstand van het historische centrum van Amersfoort en het groene Park Randenbroek, woon je hier heerlijk rustig met alle gemakken van de stad binnen handbereik.

Deze 2-kamerwoning beschikt over een royale woonkamer met open keuken, een zonnige achtertuin op het zuiden, een voortuin (bereikbaar via de buitenzijde), een ruime slaapkamer met badkamer en suite én een eigen berging. Ideaal voor starters, singles of stellen die comfortabel en centraal willen wonen.

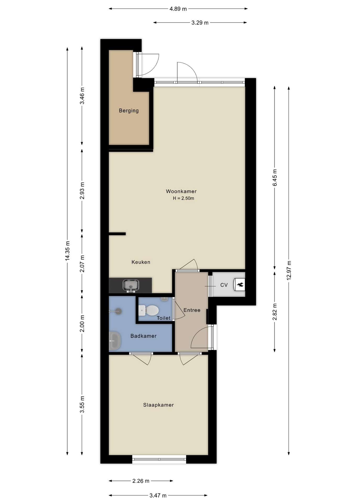
Indeling
Begane grond:
Via de gemeenschappelijke portiek bereik je de entree van de woning. De hal biedt toegang tot alle vertrekken. De lichte woonkamer is gelegen aan de achterzijde en grenst direct aan het zonnige terras. Dankzij de ligging op het zuiden geniet je hier de hele dag van zonlicht. De open keuken is eenvoudig uitgevoerd en opgesteld in drie delen, met voldoende kastruimte en werkblad. Via de woonkamer stap je zo het betegelde terras op, dat deels is voorzien van groen en beschikt over een achterom. Hier is ook de separate berging te vinden, met elektra en verlichting: handig voor fietsen of opslag.

De slaapkamer ligt aan de voorzijde en biedt voldoende ruimte voor een tweepersoonsbed en een grote kledingkast. Vanuit het raam kijk je uit op een rustige binnenplaats. Aangrenzend vind je de grotendeels betegelde badkamer met ruime douche, wastafel en aansluiting voor de wasmachine. Verder is er een separaat toilet met fonteintje en een aparte technische ruimte met de cv-installatie en mechanische ventilatie. De meterkast bevindt zich buiten de woning, in de gemeenschappelijke hal. Aan de voorzijde bevindt zich een aparte voortuin, bereikbaar via de buitenzijde van het gebouw. Een ideale plek voor bijvoorbeeld een zitje in de ochtendzon of extra beplanting.

De woning ligt ideaal: op steenworp afstand van het levendige centrum van Amersfoort, waar je terecht kunt voor gezellige terrassen, winkels en culturele hotspots. Voor dagelijkse boodschappen is winkelcentrum Euterpeplein vlakbij. Daarnaast ben je binnen enkele minuten fietsen bij station Amersfoort Centraal. Ook uitvalswegen richting Utrecht, Amsterdam en Zwolle (A1/A28) zijn snel bereikbaar. Voor ontspanning wandel je zo het prachtige Park Randenbroek in.

Benieuwd naar deze fijne benedenwoning met zonnige tuin op een toplocatie in Amersfoort? Neem contact met ons op voor een bezichtiging!

Bijzonderheden:
- Benedenwoning met zonnige tuin op het zuiden.
- Royale woonkamer met open keuken.
- Slaapkamer met badkamer en suite.
- Rustig gelegen in een hofje.
- Parkeren met vergunning in de directe omgeving.
- Verwarming en warm water door middel van CV-combiketel (2019).
- Vaste projectnotaris; De Vries Vellenga Leenknegt notarissen.
- Voorrang sociale huurders gemeente Amersfoort van woningcorporaties Alliantie, Portaal en Omnia Wonen.

Vraagprijs: € 310.000,- k.k.

Wat u verder moet weten:
- Verkoper verkoopt de woning voor eigen gebruik (of gebruik door eerstegraads familielid), welke persoon daar zijn/haar hoofdverblijf gaat hebben;
- Verkoper verkoopt met anti-speculatiebeding (niet verhuren noch verkopen gedurende een periode van 2 jaar);
- Het betreft een voormalige huurwoning van de Alliantie;
- Niet bewoning, asbest en ouderdomsclausule van toepassing;
- Verkoper behoudt zich het recht van gunning voor;
- Oplevering per direct.

VOORRANGSREGELING DE ALLIANTIE
Als sociale huurder (bij de Alliantie of een andere corporatie) krijg je vaak voorrang op de koopwoningen en/of middensegment huurwoningen die wij aanbieden. Dit doen wij, omdat wij streven naar een passende woning voor zoveel mogelijk mensen. De woning die wordt achtergelaten kan dan weer aangeboden worden aan mensen die op de wachtlijst staan voor een betaalbare huurwoning. Zo krijgen meer mensen de kans om te wonen in een huis die past bij hun situatie.

Zijn er meerdere huurders die hebben geboden? Dan krijgt de huurder met het hoogste bod (in een bepaalde voorrangscategorie) voorrang. De voorrang is tot de uiterste inschrijfdatum bij inschrijving geldig. Wil je aanspraak maken op de voorrang? Meld je dan aan voor de e-mail updates op benopzoek.nl, geef je huidige woonsituatie op bij de bezichtigingsaanvraag en meld het bij het uitbrengen van je bod bij de makelaar. De voorrangsregeling vervalt bij een bod onder de vraagprijs.

Benieuwd naar de complete voorrangsregeling? Kijk op benopzoek.nl en zie direct wat de voorrangsregeling voor jou betekent.

Wil je als sociale huurder aanspraak maken op de voorrang? Vergeet niet bij de makelaar te melden dat je een huurder bent van een sociale huurwoning van Alliantie, Portaal en Omnia Wonen in Amersfoort.

Deze informatie is door ons met de nodige zorgvuldigheid samengesteld. Onzerzijds wordt echter geen enkele aansprakelijkheid aanvaard voor enige onvolledigheid, onjuistheid of anderszins, dan wel de gevolgen daarvan. Alle opgegeven maten en oppervlakten zijn indicatief.

Lees verder

Kenmerken

  • Vraagprijs € 310.000,- k.k.
  • Aanvaarding Direct
  • Bouwjaar 1985
  • Woonoppervlakte ca. 52 m2
  • Overige inpandige ruimte ca. 4 m2
  • Slaapkamers 1
  • Inhoud ca. 206 m3
  • Ligging tuin Zuid
  • Energielabel C
  • Isolatie Gedeeltelijk dubbel glas
  • Verwarming Cv ketel
  • C.v.-ketel bouwjaar 2019
  • Voorzieningen Mechanische ventilatie, glasvezel kabel, natuurlijke ventilatie
  • Parkeerfaciliteiten Parkeervergunningen
  • Garage Geen garage
Meer kenmerken

In de buurt

Huzarenstraat 57 3816 DX Amersfoort

      De buurt

      Leeftijd in wijk
      0 - 15 jaar
      15 - 25 jaar
      25-45 jaar
      45 - 65 jaar
      65+ jaar
      • 0 - 15 jaar (16.74%)
      • 15 - 25 jaar (12.38%)
      • 25 - 45 jaar (27.60%)
      • 45 - 65 jaar (23.79%)
      • 65+ jaar (19.48%)
      Geslacht
      • Mannen (47.43%)
      • Vrouwen (52.57%)
      Gezinnen met kinderen
      0 - 15 jaar
      15 - 25 jaar
      25-45 jaar
      • Met kinderen (27.38%)
      • Zonder kinderen (25.02%)
      • Éénpersoons huishoudens (47.59%)
      Aantal inwoners:

      10785

      Schaduwwijzer

      Media

      Plattegronden

      Ander aanbod