Fazantenkamp 148, Maarssen | Beumer

Fazantenkamp 148

3607 CG, Maarssen

145m2 Woonoppervlakte - Uitgebouwde woonkamer - 5 Slaapkamers - 19m2 Dakterras - Energielabel B - Vrij gelegen en zonnige tuin op het zuidwesten Dit zijn dé basiskenmerken van dit Royale, Uitgebouwde Woonhuis aan Fazantenkamp 148 in Maarssen!! Deze comfortabele

  • 145 m2
  • 196 m2
  • Label B
  • 7 kamer(s)

€ 525.000,- k.k. Bereken maandlasten

Bereken maandlasten
Heb je een hypotheek nodig?

Omschrijving

145m2 Woonoppervlakte - Uitgebouwde woonkamer - 5 Slaapkamers - 19m2 Dakterras - Energielabel B - Vrij gelegen en zonnige tuin op het zuidwesten

Dit zijn dé basiskenmerken van dit Royale, Uitgebouwde Woonhuis aan Fazantenkamp 148 in Maarssen!!

Deze comfortabele eengezinswoning staat op een perceel eigen grond van 196m2 en beschikt onder meer over een royale, uitgebouwde living van circa 45m2 met grote glazen achterpui met schuifdeuren en open haard, keuken met inbouwapparatuur, 5 slaapkamers, gemoderniseerde badkamer -en toiletruimte, deels kunststof kozijnen, brede dakkapel, groot dakterras en geheel vrij gelegen tuin op het zuidwesten.

De gunstige ligging aan een autoluw en…

145m2 Woonoppervlakte - Uitgebouwde woonkamer - 5 Slaapkamers - 19m2 Dakterras - Energielabel B - Vrij gelegen en zonnige tuin op het zuidwesten

Dit zijn dé basiskenmerken van dit Royale, Uitgebouwde Woonhuis aan Fazantenkamp 148 in Maarssen!!

Deze comfortabele eengezinswoning staat op een perceel eigen grond van 196m2 en beschikt onder meer over een royale, uitgebouwde living van circa 45m2 met grote glazen achterpui met schuifdeuren en open haard, keuken met inbouwapparatuur, 5 slaapkamers, gemoderniseerde badkamer -en toiletruimte, deels kunststof kozijnen, brede dakkapel, groot dakterras en geheel vrij gelegen tuin op het zuidwesten.

De gunstige ligging aan een autoluw en kindvriendelijk woonerf met scholen, groot park, recreatiegebied Haarrijnse Plassen, sportvoorzieningen en winkels in de nabije omgeving maken het geheel van deze fijne woning compleet.

Indeling:

Begane grond:
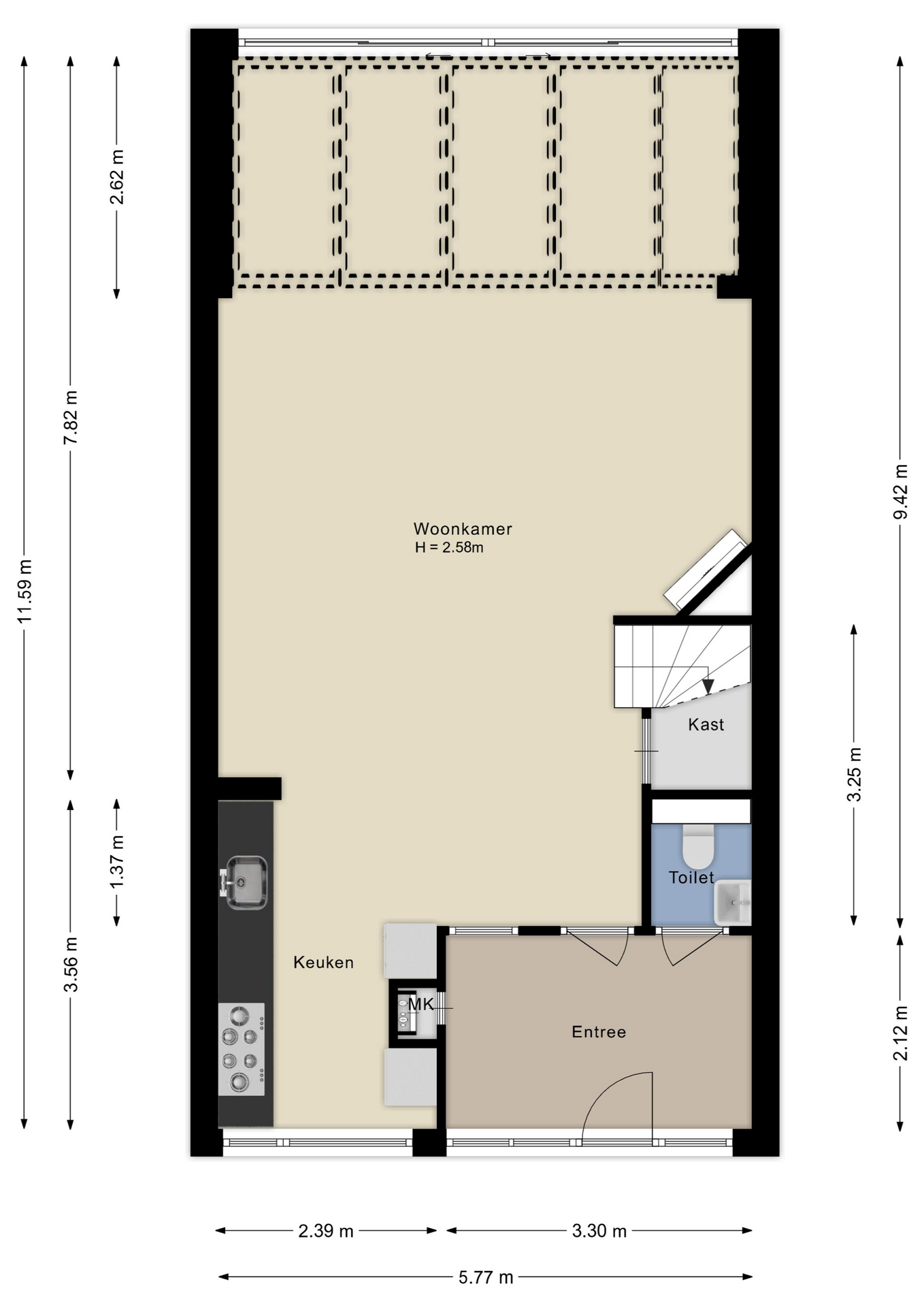
Entree, hal met tegelvloer, meterkast, moderne toiletruimte met hangend closet en fonteintje, en deur naar woonkamer.

De uitgebouwde living heeft een riant oppervlakte van ruim 45m2 en is voorzien van een parketvloer, open haard, convectorput, trapkast en trapopgang. Door de woningbrede, glazen achterpui met schuifdeur en het glazen dak van de uitbouw is de living heerlijk licht.

De keuken is aan de voorzijde van de woning gelegen en is voorzien van een vrij modern keukenblok aan twee zijden met composiet aanrechtblad. De inbouwapparatuur bestaat uit een koel-/vriescombinatie, 5-pits gaskookplaat, RVS-afzuigkap, combimagnetron en vaatwasser.

1e Verdieping:
De ruime overloop is voorzien van een laminaatvloer en deur met trapopgang naar de 2e verdieping.

De 1e verdieping beschikt over vier ruime slaapkamers (circa 12m2, 11m2, 8,5m2 en 8,5m2), die zijn voorzien van een laminaatvloer en grote raampartijen (voorzijde kunststof) met dubbele beglazing. De slaapkamer aan de rechter achterzijde van de woning beschikt tevens over een vaste schuifkastenwand.

De gemoderniseerde badkamer is geheel betegeld en voorzien van een ligbad met thermostaatkraan, douche met thermostaatkaan, badmeubel met wastafel en hangend closet.

2e Verdieping:
Via de vaste trap bereik je de overloop, die toegang biedt tot de vijfde slaapkamer en de separate bergkamer, waar je tevens de wasmachine -en drogeraansluiting, de CV-opstelling en een wastafelmeubel aantreft.

De zolderkamer is met circa 17,5m2 ruim van afmeting en enorm licht door de aan de achterzijde geplaatste dakkapel en de brede glazen pui met deur naar het dakterras aan de voorzijde. De slaapkamer is voorzien van een laminaatvloer en brede vaste kast.

Het riante dakterras heeft een afmeting van ruim 19m2 en een fijne vrije ligging met fraai uitzicht over de prettige woonomgeving.

Tuin:
De vrij gelegen en verzorgd aangelegde voortuin is met circa 15 meter lengte en een breedte van circa 6 meter zeer ruim van afmeting. Aan de entreezijde van de tuin, die is gelegen aan een groot woonplein met voldoende parkeerplaatsen en een speeltuin, staat een stenen schuur alsmede een houten berging. Door de gunstige ligging op het zuidwesten geniet je hier de gehele dag van de zon!

De compacte achtertuin heeft een van afmeting van circa 6m x 5m en biedt volledige privacy en rust.

Bijzonderheden:
- Bouwjaar 1976;
- Woonoppervlakte circa 145m2, dakterras ruim 19m2 en perceeloppervlakte 196m2;
- De woning is aan de achterzijde op de begane grond uitgebouwd;
- De voortuin dient als hoofdtuin, is ruim van afmeting en gelegen op het zuidwesten;
- Vijf ruime slaapkamers waarvan één met dakkapel;
- Energielabel B;
- De woning is deels voorzien van kunststof kozijnen;
- Vaillant VHR-combiketel van 2012;
- Ideaal voor gezinnen door het grote woonoppervlakte en de ligging nabij diverse scholen;
- Gelegen op korte afstand van het wijkpark, sportvelden en recreatiegebied De Haarrijnse Plassen.

In de onderhavige NVM-koopakte zullen de navolgende aanvullende artikelen worden opgenomen:
*Niet bewoners clausule;
*NEN2580;
*Ouderdomsclausule;
- Notariskeuze voor verkoper (Sutter Kars Notarissen te Nieuwegein).

Lees verder

Kenmerken

  • Vraagprijs € 525.000,- k.k.
  • Aanvaarding In overleg
  • Type Hoekwoning
  • Bouwjaar 1976
  • Woonoppervlakte ca. 145 m2
  • Oppervlakte gebouwgebonden ca. 19 m2
  • Externe bergruimte ca. 10 m2
  • Slaapkamers 5
  • Inhoud ca. 488 m3
  • Perceeloppervlakte ca. 196 m2
  • Ligging tuin Zuidwest
  • Energielabel B
  • Isolatie Dakisolatie, muurisolatie, vloerisolatie, dubbel glas
  • Verwarming Cv ketel, open haard
  • C.v.-ketel bouwjaar 2012
  • Voorzieningen Mechanische ventilatie, tv kabel, rookkanaal, schuifpui
  • Parkeerfaciliteiten Openbaar parkeren
  • Garage Geen garage
Meer kenmerken

In de buurt

Fazantenkamp 148 3607 CG Maarssen

      De buurt

      Burgerlijke staat in wijk
      Gehuwd
      Ongehuwd
      Gescheiden
      Verweduwd
      • Gehuwd (46.40%)
      • Ongehuwd (42.80%)
      • Gescheiden (7.42%)
      • Verweduwd (3.39%)
      Leeftijd in wijk
      0 - 15 jaar
      15 - 25 jaar
      25-45 jaar
      45 - 65 jaar
      65+ jaar
      • 0 - 15 jaar (18.99%)
      • 15 - 25 jaar (10.34%)
      • 25 - 45 jaar (25.32%)
      • 45 - 65 jaar (28.48%)
      • 65+ jaar (16.88%)
      Geslacht
      • Mannen (48.73%)
      • Vrouwen (51.27%)
      Gezinnen met kinderen
      0 - 15 jaar
      15 - 25 jaar
      25-45 jaar
      • Met kinderen (43.30%)
      • Zonder kinderen (30.93%)
      • Éénpersoons huishoudens (25.77%)
      Woningen koop / huur
      • Koop (92.00%)
      • Huur (8.00%)
      Aantal inwoners:

      2370

      Schaduwwijzer

      Media

      Plattegronden

      Tweede verdieping

      Ander aanbod