Eemplein 37, Amersfoort | Beumer

Eemplein 37

3812EA, Amersfoort

Via de website ik-zoek.de-alliantie.nl kun je reageren op deze woning tot en met maandag 30 september. Hiervoor maak je een Qii huurpaspoort aan. Sfeervol en licht 3-kamerappartement op een toplocatie! Deze woning met fijne living met vrij uitzicht en 2 royale slaapkamers

  • 90 m2
  • Label A

€ 1.425,- p/m Bereken maandlasten

Bereken maandlasten
Heb je een verzekering nodig?

Omschrijving

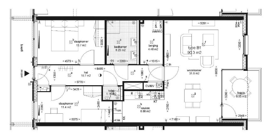
Via de website ik-zoek.de-alliantie.nl kun je reageren op deze woning tot en met maandag 30 september. Hiervoor maak je een Qii huurpaspoort aan. Sfeervol en licht 3-kamerappartement op een toplocatie! Deze woning met fijne living met vrij uitzicht en 2 royale slaapkamers ligt aan het Eemplein op loopafstand van de gezellige binnenstad. De strakke keuken en badkamer hebben een moderne uitstraling. Ook beschikt de woning over een prettig balkon. Met je een parkeerplaats in de ondergelegen parkeergarage kan je altijd je auto kwijt. Hoe ideaal is deze plek? Derde verdieping Entree, hal, meterkast, inpandige berging met wasmachineaansluiting, toilet met fontein.…

Via de website ik-zoek.de-alliantie.nl kun je reageren op deze woning tot en met maandag 30 september. Hiervoor maak je een Qii huurpaspoort aan.

Sfeervol en licht 3-kamerappartement op een toplocatie! Deze woning met fijne living met vrij uitzicht en 2 royale slaapkamers ligt aan het Eemplein op loopafstand van de gezellige binnenstad. De strakke keuken en badkamer hebben een moderne uitstraling. Ook beschikt de woning over een prettig balkon. Met je een parkeerplaats in de ondergelegen parkeergarage kan je altijd je auto kwijt. Hoe ideaal is deze plek?

Derde verdieping
Entree, hal, meterkast, inpandige berging met wasmachineaansluiting, toilet met fontein. Ruime woonkamer van ca. 32 m² met toegang naar het balkon. Het balkon is gelegen op het noordoosten. De halfopen is voorzien van inbouwapparatuur, waaronder een 4-pits gaskookplaat, afzuigkap, vaatwasmachine, koelkast en combi oven. De badkamer is geheel betegeld en ingedeeld met een douche en een dubbele wastafel. Twee prima slaapkamers van ca. 13,5 m² en 11,5 m².

Bijzonderheden
• Balkon gelegen op het noordoosten.
• 2 ruime slaapkamers.
• Het appartement is gedeeltelijk voorzien van vloerverwarming.
• Algemene fietsenstalling aanwezig.
• Parkeerplaats in ondergelegen parkeergarage (niet toegewezen plaats).
• Glazen douchescherm ter overname. Geen kosten.
• Energielabel A.
• Minimale huurperiode 1 jaar.
• Voorbehoud gunning verhuurder.
• Geen woningdelers.
• Garantstelling door derden is niet mogelijk.
• Direct beschikbaar.

Huurprijs: € 1.425,00 per maand inclusief parkeerplaats
Servicekosten: ca. € 35,21 per maand

Gezamenlijk SV loon is minimaal 45 keer de kale huurprijs (€ 65.709,45).Waar mogelijk geeft de Alliantie huurders van de Alliantie voorrang. De Alliantie behoudt altijd het recht om de woning te gunnen aan de meest geschikte kandidaat.

• Een huurovereenkomst wordt aangegaan voor ten minste één jaar en wordt vanaf dan verlengd voor onbepaalde tijd. Na de minimale termijn van één jaar bedraagt de opzegtermijn voor de huurder één maand.
• De huurperiode kan op elke dag van de maand ingaan, dit hoeft niet perse de 1e van de maand te zijn. De Alliantie bepaalt de ingangsdatum van de huur: deze zal over het algemeen niet later ingaan dan een week na de toewijzing/bezichtiging.

In aanmerking komen voor deze woning?

Via de website ik-zoek.de-alliantie.nl kun je reageren op de betreffende woning. Je kunt reageren door een Qii huurpaspoort aan te maken. De verhuurder kijkt na einde inschrijfdatum wie er in aanmerking komen voor een bezichtiging. Je hoeft bij het makelaarskantoor geen papieren in te vullen, alles gaat via de website ik-zoek.de-alliantie.nl via het Qii huurpaspoort. Inschrijven is mogelijk tot en met maandag 30 september.

Lees verder

Kenmerken

  • Vraagprijs € 1.425,- p/m
  • Type Appartement
  • Woonoppervlakte ca. 90.00 m2
  • Externe bergruimte ca. 0.00 m2
  • Slaapkamers 2
  • Inhoud ca. 290.00 m3
  • Energielabel A
Meer kenmerken

In de buurt

Eemplein 37 • 3812EA • Amersfoort

      Schaduwwijzer

      Media

      Plattegronden