Ebbenhorst 35B, Veenendaal | Beumer

Ebbenhorst 35 B

3905 VC, Veenendaal

Welkom bij dit leuke 3-kamerappartement met een tweetal slaapkamers en heerlijk zonnige terras van 13 m2 op het zuidwesten, met mooi vrij uitzicht! De woning bevindt zich op de tweede verdieping en is eenvoudig per lift op trap te bereiken. Het beschikt over een

  • 65 m2
  • Label C
  • 3 kamer(s)

€ 335.000,- k.k. Bereken maandlasten

Bereken maandlasten
Heb je een hypotheek nodig?

Omschrijving

Welkom bij dit leuke 3-kamerappartement met een tweetal slaapkamers en heerlijk zonnige terras van 13 m2 op het zuidwesten, met mooi vrij uitzicht!
De woning bevindt zich op de tweede verdieping en is eenvoudig per lift op trap te bereiken.
Het beschikt over een keukenblok, lichte woonkamer, badkamer en twee slaapkamers, een ideale woonruimte voor starters!
Gelegen aan de Ebbenhorst in Veenendaal West.
Het complex is gebouwd in terrasvorm, wat inhoudt dat de gevels aan de woonkamer op de eerste en tweede verdieping terugspringen waardoor er grote terrassen ontstaan.
Alle voorzieningen in de buurt aanwezig;…

Welkom bij dit leuke 3-kamerappartement met een tweetal slaapkamers en heerlijk zonnige terras van 13 m2 op het zuidwesten, met mooi vrij uitzicht!
De woning bevindt zich op de tweede verdieping en is eenvoudig per lift op trap te bereiken.
Het beschikt over een keukenblok, lichte woonkamer, badkamer en twee slaapkamers, een ideale woonruimte voor starters!
Gelegen aan de Ebbenhorst in Veenendaal West.
Het complex is gebouwd in terrasvorm, wat inhoudt dat de gevels aan de woonkamer op de eerste en tweede verdieping terugspringen waardoor er grote terrassen ontstaan.
Alle voorzieningen in de buurt aanwezig; Denk aan wijkwinkelcentrum ‘De Ellekoot’ waar je alle dagelijkse boodschappen kunt halen, het NS-station ‘Veenendaal-West’, sportaccommodaties en saunacomplex ‘de Heuvelrug’. Ook loop je zo de bossen in van de ‘Utrechtse Heuvelrug’ voor een heerlijke wandeling.
Het centrum van Veenendaal ligt op fietsafstand en de diverse uitvalswegen richting de autosnelwegen A12, A15 en A30 zijn goed bereikbaar. Rondom het complex kun je goed parkeren.

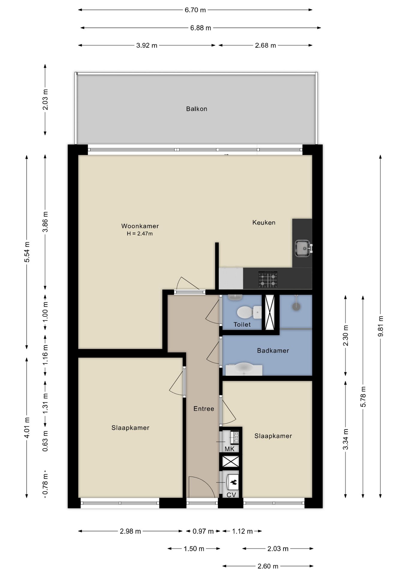
Indeling appartement:
Entree, hal met toegang tot 2 slaapkamers, berging. Separaat toilet. Badkamer met wastafel, douche en aansluiting voor het witgoed.
De lichte en brede woonkamer met keukenblok geeft toegang tot een ruim terras van circa 14 m2. Op de begane grond van het complex is nog een separate fietsenberging aanwezig.

Bijzonderheden:
- Twee slaapkamers;
- Intergas HRE combiketel uit 2015;
- Energielabel: C;
- Servicekosten circa € 130,52,- per maand;
- Oplevering in overleg, kan snel.

BIJZONDERHEDEN TEN AANZIEN VAN DE TRANSACTIE
- In de koopovereenkomst worden extra artikelen opgenomen, hieronder een opsomming van de belangrijkste bepalingen. De model-koopovereenkomst die door verkoper wordt gebruikt, vindt u in uw MOVE account;
- Het object wordt geleverd in de staat waarin het zich op dit moment bevindt ('As is, Where is'), wat onder andere inhoudt dat het object wordt opgeleverd in de huidige gebruikte, bouwkundige, technische en milieukundige staat.
- Verkoper heeft zelf nooit gebruik gemaakt van de woning, om deze reden is er geen vragenlijst en lijst van zaken aan de documentatie toegevoegd.
- De notariële eigendomsoverdracht van dit object dient plaats te vinden bij de daartoe aangewezen projectnotarissen: NL Notariaat te Etten-Leur in samenwerking met Hoffspoor notarissen. De volmacht voor de levering alsmede de hypotheekakte wordt getekend bij Koch & Compaijen te Utrecht.
- Indien er voordeel overdrachtsbelasting van toepassing is komt deze ten gunste van verkoper.

Interesse in deze woning? Kom gerust eens kijken samen met uw NVM aankoopmakelaar!

Lees verder

Kenmerken

  • Vraagprijs € 335.000,- k.k.
  • Aanvaarding In overleg
  • Bouwjaar 1980
  • Woonoppervlakte ca. 65 m2
  • Oppervlakte gebouwgebonden ca. 14 m2
  • Externe bergruimte ca. 4 m2
  • Slaapkamers 2
  • Inhoud ca. 202 m3
  • Ligging tuin Zuidwest
  • Energielabel C
  • Isolatie Dakisolatie, muurisolatie, gedeeltelijk dubbel glas
  • Verwarming Cv ketel
  • C.v.-ketel bouwjaar 2015
  • Voorzieningen Lift, schuifpui, natuurlijke ventilatie
  • Parkeerfaciliteiten Openbaar parkeren
  • Garage Geen garage
Meer kenmerken

In de buurt

Ebbenhorst 35B • 3905 VC • Veenendaal

      De buurt

      Leeftijd in wijk
      0 - 15 jaar
      15 - 25 jaar
      25-45 jaar
      45 - 65 jaar
      65+ jaar
      • 0 - 15 jaar (21.13%)
      • 15 - 25 jaar (12.53%)
      • 25 - 45 jaar (27.85%)
      • 45 - 65 jaar (25.97%)
      • 65+ jaar (12.53%)
      Geslacht
      • Mannen (49.25%)
      • Vrouwen (50.75%)
      Gezinnen met kinderen
      0 - 15 jaar
      15 - 25 jaar
      25-45 jaar
      • Met kinderen (40.74%)
      • Zonder kinderen (28.98%)
      • Éénpersoons huishoudens (30.28%)
      Aantal inwoners:

      14365

      Schaduwwijzer

      Media

      Plattegronden

      Ander aanbod