Dr. Ariënslaan 8, De meern | Beumer

Dr. Ariënslaan 8

3454 XD, De meern

Welkom in deze fijne tussenwoning in een rustige, kindvriendelijke straat nabij de dorpskern van De Meern. Hier woon je in een omgeving waar kinderen nog buiten kunnen spelen en waar het groen volop aanwezig is. Met een speeltuintje voor de deur, scholen en winkels in de

  • 114 m2
  • 134 m2
  • Label B
  • 5 kamer(s)

€ 495.000,- k.k. Bereken maandlasten

Bereken maandlasten
Heb je een hypotheek nodig?

Omschrijving

Welkom in deze fijne tussenwoning in een rustige, kindvriendelijke straat nabij de dorpskern van De Meern. Hier woon je in een omgeving waar kinderen nog buiten kunnen spelen en waar het groen volop aanwezig is. Met een speeltuintje voor de deur, scholen en winkels in de buurt én een uitstekende bereikbaarheid, vormt dit huis een ideale plek voor jonge gezinnen of stellen die op zoek zijn naar een warme, gezellige plek om thuis te komen.

De woning ligt in een groene, rustige woonwijk met volop voorzieningen in de buurt: basisscholen, sportclubs, en winkelcentrum Mereveldplein liggen allemaal op korte afstand. Ook…

Welkom in deze fijne tussenwoning in een rustige, kindvriendelijke straat nabij de dorpskern van De Meern. Hier woon je in een omgeving waar kinderen nog buiten kunnen spelen en waar het groen volop aanwezig is. Met een speeltuintje voor de deur, scholen en winkels in de buurt én een uitstekende bereikbaarheid, vormt dit huis een ideale plek voor jonge gezinnen of stellen die op zoek zijn naar een warme, gezellige plek om thuis te komen.

De woning ligt in een groene, rustige woonwijk met volop voorzieningen in de buurt: basisscholen, sportclubs, en winkelcentrum Mereveldplein liggen allemaal op korte afstand. Ook de uitvalswegen naar Utrecht en de A12 zijn snel bereikbaar.

Indeling
Begane grond:
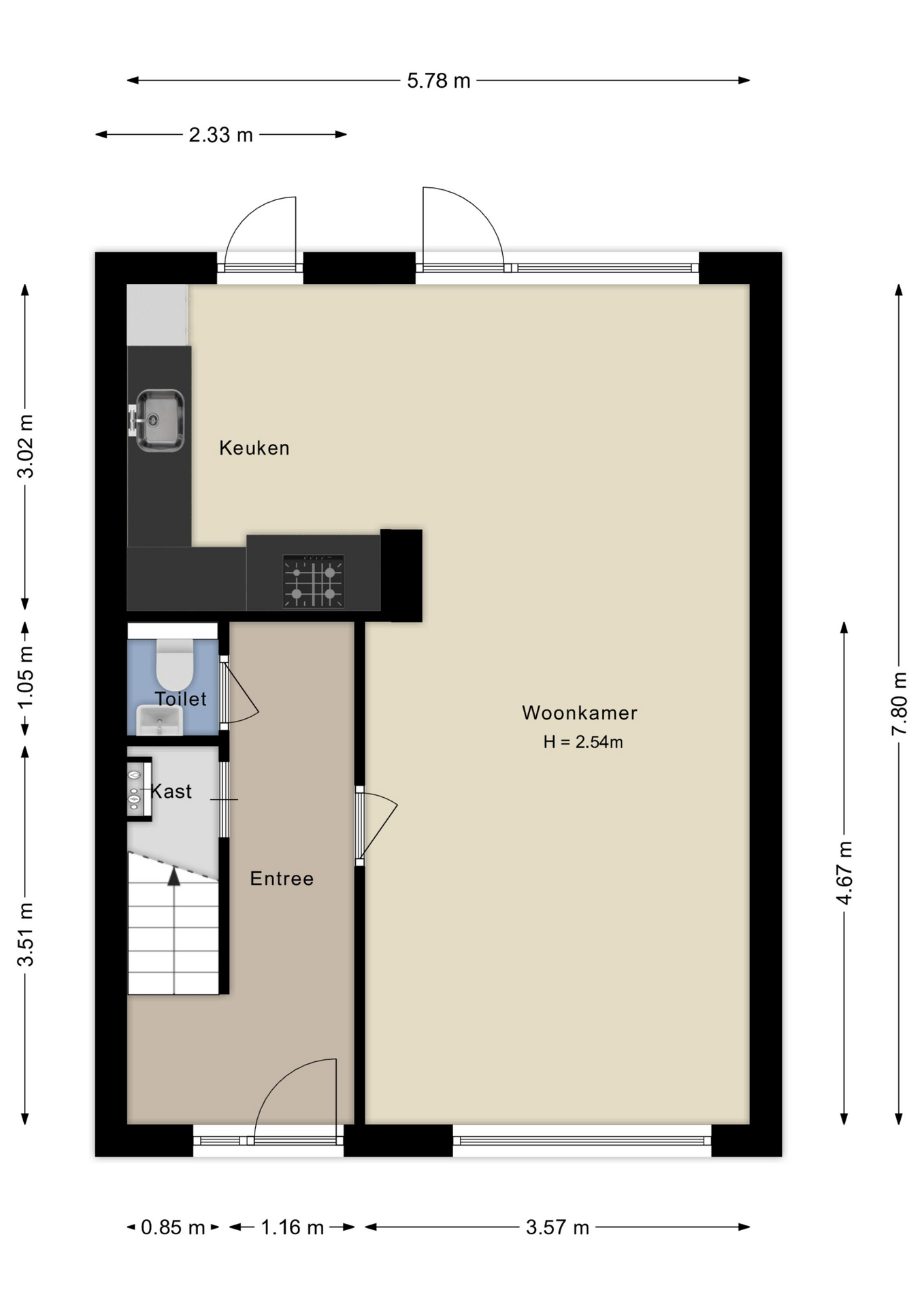
De lichte woonkamer biedt volop ruimte voor een gezellige zithoek en een grote eettafel waar lange avonden met familie en vrienden vanzelf ontstaan. De open keuken aan de achterzijde is overzichtelijk en praktisch ingericht – een fijne plek om samen te koken terwijl je in contact blijft met de rest van het gezin.

Via de woonkamer stap je zo de zonnige achtertuin in: gelegen op het zuidoosten, met voldoende plek voor een loungeset en eettafel. Achterin de tuin vind je een praktische berging, ideaal voor fietsen en tuinspullen.

Eerste verdieping:
Op de eerste verdieping bevinden zich een separaat toilet, drie slaapkamers en een nette badkamer met douche en wastafelmeubel. De slaapkamers zijn goed van formaat, keurig afgewerkt en voorzien van grote raampartijen.

Tweede verdieping:
De zolderverdieping, bereikbaar via een vaste trap, is voorzien van een dakkapel aan de achterzijde waardoor hier een royale vierde slaapkamer is ontstaan. Daarnaast is er extra bergruimte achter de knieschotten en op de voorzolder plek voor de wasapparatuur.

Kortom: een warme, uitnodigende gezinswoning op een heerlijke plek – klaar voor nieuwe bewoners die er met plezier hun eigen thuis van willen maken.

Bijzonderheden:
- Fijne eengezinswoning met 4 slaapkamers;
- Vrij uitzicht aan de voorzijde;
- Zonnige tuin gesitueerd op het zuidoosten;
- Grote dakkapel aan de achterzijde;
- Tado thermostaat (verwarmingsvraag per vertrek individueel regelbaar);
- Gelegen in een kindvriendelijke buurt tegenover een speeltuintje;
- Nabij scholen, kinderdagverblijven en sportfaciliteiten;
- Op steenworp afstand van winkelcentrum Mereveldplein;
- Ook het Meentpark is dichtbij voor zowel sporten als ontspannen;
- Ook het openbaar vervoer en uitvalswegen zijn dichtbij;
- Voorzien van energielabel B.

Benieuwd? Neem direct contact op met je NVM-aankoopmakelaar!

Lees verder

Kenmerken

  • Vraagprijs € 495.000,- k.k.
  • Aanvaarding In overleg
  • Type Tussenwoning
  • Bouwjaar 1969
  • Woonoppervlakte ca. 114 m2
  • Externe bergruimte ca. 8 m2
  • Slaapkamers 4
  • Inhoud ca. 393 m3
  • Perceeloppervlakte ca. 134 m2
  • Ligging tuin Zuidoost
  • Energielabel B
  • Isolatie Muurisolatie, vloerisolatie, grotendeels dubbelglas
  • Verwarming Cv ketel
  • C.v.-ketel bouwjaar 2023
  • Voorzieningen Tv kabel, dakraam, domotica
  • Parkeerfaciliteiten Openbaar parkeren
  • Garage Geen garage
Meer kenmerken

In de buurt

Dr. Ariënslaan 8 3454 XD De meern

      De buurt

      Burgerlijke staat in wijk
      Gehuwd
      Ongehuwd
      Gescheiden
      Verweduwd
      • Gehuwd (43.93%)
      • Ongehuwd (43.20%)
      • Gescheiden (7.04%)
      • Verweduwd (5.83%)
      Leeftijd in wijk
      0 - 15 jaar
      15 - 25 jaar
      25-45 jaar
      45 - 65 jaar
      65+ jaar
      • 0 - 15 jaar (16.83%)
      • 15 - 25 jaar (11.41%)
      • 25 - 45 jaar (21.28%)
      • 45 - 65 jaar (29.45%)
      • 65+ jaar (21.04%)
      Geslacht
      • Mannen (49.15%)
      • Vrouwen (50.85%)
      Gezinnen met kinderen
      0 - 15 jaar
      15 - 25 jaar
      25-45 jaar
      • Met kinderen (38.20%)
      • Zonder kinderen (31.46%)
      • Éénpersoons huishoudens (30.34%)
      Woningen koop / huur
      • Koop (70.00%)
      • Huur (30.00%)
      Aantal inwoners:

      6165

      Schaduwwijzer

      Media

      Plattegronden

      Ander aanbod