De Kranshof 128, Tiel | Beumer

De Kranshof 128

4005 DD, Tiel

Welkom bij dit 3-kamerappartement met een tweetal slaapkamers, Energielabel A+, een moderne keuken en badkamer en een riant balkon op het oosten gelegen met mooi vrij uitzicht! De woning bevindt zich op de 5e verdieping en is eenvoudig per lift of trap te bereiken.

  • 95 m2
  • Label A+
  • 3 kamer(s)

€ 425.000,- k.k. Bereken maandlasten

Bereken maandlasten
Heb je een hypotheek nodig?

Omschrijving

Welkom bij dit 3-kamerappartement met een tweetal slaapkamers, Energielabel A+, een moderne keuken en badkamer en een riant balkon op het oosten gelegen met mooi vrij uitzicht!
De woning bevindt zich op de 5e verdieping en is eenvoudig per lift of trap te bereiken.
Je loopt zo naar de Jumbo, Lidl of het stadscentrum; alles is eenvoudig binnen handbereik!
Daarnaast heeft het appartement een eigen parkeerplaats en een inpandige berging met elektra.

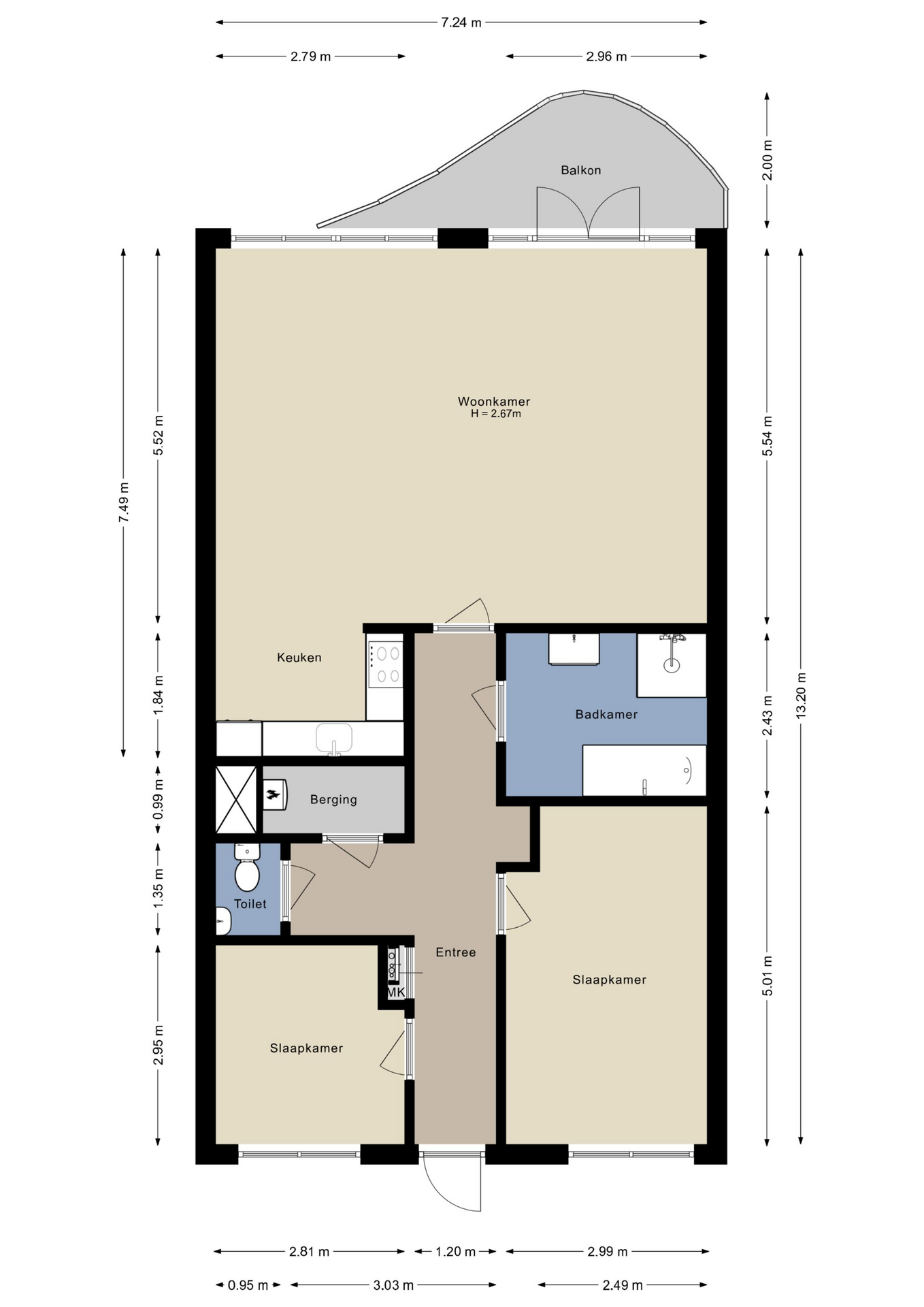
Indeling:
Entree, meterkast, toilet, video-intercom, hal vanwaar ieder vertrek te bereiken is. Er bevinden zich een tweetal slaapkamers in het appartement die allebei aan…

Welkom bij dit 3-kamerappartement met een tweetal slaapkamers, Energielabel A+, een moderne keuken en badkamer en een riant balkon op het oosten gelegen met mooi vrij uitzicht!
De woning bevindt zich op de 5e verdieping en is eenvoudig per lift of trap te bereiken.
Je loopt zo naar de Jumbo, Lidl of het stadscentrum; alles is eenvoudig binnen handbereik!
Daarnaast heeft het appartement een eigen parkeerplaats en een inpandige berging met elektra.

Indeling:
Entree, meterkast, toilet, video-intercom, hal vanwaar ieder vertrek te bereiken is. Er bevinden zich een tweetal slaapkamers in het appartement die allebei aan de galerij zijde zijn gesitueerd.
De woonkamer is bijzonder licht te noemen door de mooie glaspartijen en kijkt heerlijk weg. Tezamen met de keuken is dit een hele fijne leefruimte. De keuken is voorzien van een koelkast met vriesvak, vaatwasser, oven, magnetron, gaskookplaat, afzuigkap en bergruimte. Via de woonkamer is middels openslaande deuren het balkon te bereiken.
De badkamer is voorzien van een ligbad, separate douchecabine, wastafel en is grotendeels betegeld. Aan de overzijde van de badkamer is de witgoedruimte met opstelling CV (2017 / eigendom), WTW-installatie en is ideaal als voorraad -/ bergkast. Het toilet bevindt zich ernaast en is voorzien van een fonteintje.

De Kranshof / Tiel:
De Kranshof is een aangenaam en veilig appartementencomplex. Er zijn grote algemene ruimten met videofoon-installatie in de hal en een lift die je naar de juiste etage brengt van uw appartement, de parkeergarage en de berging. Ook is er een gezamenlijke, goed onderhouden binnentuin met volop zit mogelijkheden.
Op de begane grond van het appartementencomplex zijn verschillende supermarkten (Jumbo en Lidl) gevestigd. Het levendige centrum van Tiel ligt op loopafstand, net als rivier De Waal. Hier vind je de ideale combinatie van gemak van voorzieningen, levendigheid van het centrum en rust en ruimte langs de rivier.

Bijzonderheden:
- Woonoppervlakte 95 m²;
- Twee slaapkamers;
- Balkon op het oosten met mooi vrij uitzicht;
- Moderne keuken en badkamer;
- Nefit combiketel uit 2017 en warmte terugwin installatie;
- Energielabel A+;
- Servicekosten circa € 180,04,- per maand;
- Jaarlijkse VvE -bijdrage Beheervereniging circa € 267,16,-;
- Mooie groene binnentuin;
- Centrum en rivier de Waal op loopafstand;
- Boodschappen doen op de begane grond (Jumbo en Lidl);
- Eigen parkeerplaats en berging;
- Oplevering: in overleg, kan snel.

BIJZONDERHEDEN TEN AANZIEN VAN DE TRANSACTIE
- In de koopovereenkomst worden extra artikelen opgenomen, hieronder een opsomming van de belangrijkste bepalingen. De model-koopovereenkomst die door verkoper wordt gebruikt, vindt u in uw MOVE account;
- Het object wordt geleverd in de staat waarin het zich op dit moment bevindt ('As is, Where is'), wat onder andere inhoudt dat het object wordt opgeleverd in de huidige gebruikte, bouwkundige, technische en milieukundige staat.
- Verkoper heeft zelf nooit gebruik gemaakt van de woning, om deze reden is er geen vragenlijst en lijst van zaken aan de documentatie toegevoegd.
- De notariële eigendomsoverdracht van dit object dient plaats te vinden bij de daartoe aangewezen projectnotarissen: NL Notariaat te Etten-Leur in samenwerking met Hoffspoor notarissen. De volmacht voor de levering alsmede de hypotheekakte wordt getekend bij Koch & Compaijen te Utrecht.
- Indien er voordeel overdrachtsbelasting van toepassing is komt deze ten gunste van verkoper.

Interesse in deze woning? Kom gerust eens kijken samen met uw NVM aankoopmakelaar!

Lees verder

Kenmerken

  • Vraagprijs € 425.000,- k.k.
  • Aanvaarding In overleg
  • Bouwjaar 2007
  • Woonoppervlakte ca. 95 m2
  • Oppervlakte gebouwgebonden ca. 7 m2
  • Externe bergruimte ca. 7 m2
  • Slaapkamers 2
  • Inhoud ca. 299 m3
  • Energielabel A+
  • Isolatie Volledig geisoleerd
  • Verwarming Cv ketel
  • C.v.-ketel bouwjaar 2017
  • Voorzieningen Mechanische ventilatie, tv kabel, lift, balansventilatie, natuurlijke ventilatie
  • Parkeerfaciliteiten Op afgesloten terrein
  • Garage Parkeerkelder, geen garage
Meer kenmerken

In de buurt

De Kranshof 128 • 4005 DD • Tiel

      De buurt

      Burgerlijke staat in wijk
      Gehuwd
      Ongehuwd
      Gescheiden
      Verweduwd
      • Gehuwd (44.57%)
      • Ongehuwd (45.14%)
      • Gescheiden (6.48%)
      • Verweduwd (3.81%)
      Leeftijd in wijk
      0 - 15 jaar
      15 - 25 jaar
      25-45 jaar
      45 - 65 jaar
      65+ jaar
      • 0 - 15 jaar (18.25%)
      • 15 - 25 jaar (12.74%)
      • 25 - 45 jaar (25.67%)
      • 45 - 65 jaar (29.47%)
      • 65+ jaar (13.88%)
      Geslacht
      • Mannen (50.48%)
      • Vrouwen (49.52%)
      Gezinnen met kinderen
      0 - 15 jaar
      15 - 25 jaar
      25-45 jaar
      • Met kinderen (41.71%)
      • Zonder kinderen (30.81%)
      • Éénpersoons huishoudens (27.49%)
      Woningen koop / huur
      • Koop (80.81%)
      • Huur (19.19%)
      Aantal inwoners:

      2615

      Schaduwwijzer

      Media

      Plattegronden

      Ander aanbod