David van Bourgondieweg 21, Wijk bij duurstede | Beumer

David van Bourgondieweg 21

3961 VZ, Wijk bij duurstede

Instapklare luxe hoekwoning (2025 gerenoveerd) met 3 woonlagen, zonnige tuin én top ligging nabij centrum. Ben je op zoek naar een duurzame, luxueus afgewerkte hoekwoning in een kindvriendelijke buurt – op loopafstand van scholen, winkels, een kinderboerderij én de

  • 143 m2
  • 122 m2
  • Label A
  • 6 kamer(s)

€ 625.000,- k.k. Bereken maandlasten

Bereken maandlasten
Heb je een hypotheek nodig?

Omschrijving

Instapklare luxe hoekwoning (2025 gerenoveerd) met 3 woonlagen, zonnige tuin én top ligging nabij centrum.
Ben je op zoek naar een duurzame, luxueus afgewerkte hoekwoning in een kindvriendelijke buurt – op loopafstand van scholen, winkels, een kinderboerderij én de historische binnenstad? Dan is deze verrassend ruime eindwoning uit 2014 met maar liefst drie bewoonbare verdiepingen en een woonoppervlakte van 143 m² jouw nieuwe thuis!
De woning is in 2025 hoogwaardig gerenoveerd en werkelijk instapklaar: van een compleet vernieuwde badkamer tot een stijlvolle PVC vloer met nieuwe plinten, frisse wandafwerking én nieuwe keukenapparatuur. Je hoeft alleen nog maar je…

Instapklare luxe hoekwoning (2025 gerenoveerd) met 3 woonlagen, zonnige tuin én top ligging nabij centrum.
Ben je op zoek naar een duurzame, luxueus afgewerkte hoekwoning in een kindvriendelijke buurt – op loopafstand van scholen, winkels, een kinderboerderij én de historische binnenstad? Dan is deze verrassend ruime eindwoning uit 2014 met maar liefst drie bewoonbare verdiepingen en een woonoppervlakte van 143 m² jouw nieuwe thuis!
De woning is in 2025 hoogwaardig gerenoveerd en werkelijk instapklaar: van een compleet vernieuwde badkamer tot een stijlvolle PVC vloer met nieuwe plinten, frisse wandafwerking én nieuwe keukenapparatuur. Je hoeft alleen nog maar je spullen uit te pakken.
________________________________________
Pluspunten op een rij:
• Hoekwoning / eindwoning met extra lichtinval door hoge ramen
• Duurzaam gerenoveerd in 2025
• 3 volwaardige woonverdiepingen met 4 slaapkamers
• Splinternieuwe badkamer (2025) met luxe regendouche, nieuw badkamermeubel, moderne tegels, hangtoilet, LED-verlichte spiegel, kraan & wasbak
• Nieuwe PVC vloer & plinten (2025) op de begane grond
• Volledig opnieuw geschilderd benedenverdieping (2025)
• Bosch vaatwasser met droogsysteem (vernieuwd in 2024)
• Zonnige achtertuin op het zuiden met overkapping, berging en zonnescherm
• Lichte woonkamer met grote raampartijen
• Luie trap voor extra comfort
• Gelegen aan rustige Singel – autovrij voor de deur
• Kindvriendelijke wijk met basisscholen, kinderboerderij & winkelcentrum om de hoek
________________________________________
Indeling:
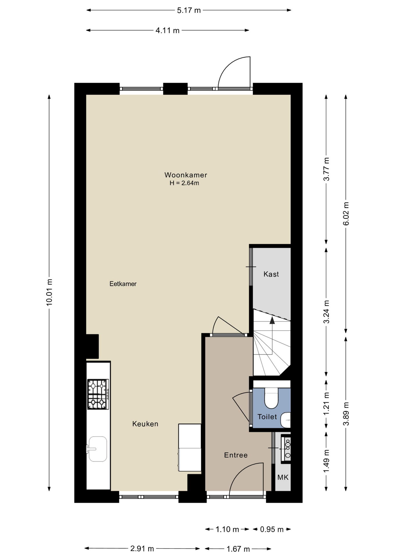
Begane grond:
Entree met hal, meterkast en modern toilet met wandcloset en fontein. De woonkamer is tuingericht en heerlijk licht dankzij de grote ramen. Vanuit hier stap je zo de zonnige tuin in, compleet met overkapping, achterom, berging en zonnescherm. De open keuken is voorzien van een moderne opstelling inclusief 5-pits gaskookplaat, combi-oven, koelkast, afzuigkap en nieuwe Bosch vaatwasser (2024). De PVC vloer met vloerverwarming en de in 2025 nieuw aangebrachte plinten maken de luxe afwerking compleet.
Eerste verdieping:
Overloop met toegang tot drie slaapkamers, waaronder een ruime ouderslaapkamer aan de voorzijde. De badkamer is in 2025 volledig vernieuwd en biedt alle comfort van nu: een luxe regendouche, modern wastafelmeubel, hangtoilet, LED-spiegel, hoogwaardige tegels en stijlvol sanitair.
Tweede verdieping:
Ruime vierde slaapkamer aan de achterzijde. Aan de voorzijde bevindt zich een royale waskamer met CV-opstelling en volop ruimte voor wasmachine, droger of zelfs een tweede badkamer.
________________________________________
Overige kenmerken:
• Woonoppervlakte: 143 m²
• Inhoud: 496 m³
• Perceel: 122 m²
• Bouwjaar: 2014
• Energielabel A
• Dubbel glas met kiep-/kantelramen op eerste en tweede verdieping
• Volledig geïsoleerd conform de moderne bouweisen
• Mogelijkheid tot zonnepanelen of extra badkamer
________________________________________
Ligging:
De woning ligt aan een rustige singel zonder verkeer, ideaal voor gezinnen. In de directe omgeving vind je een winkelcentrum, basisscholen, speelplekken en een kinderboerderij. De gezellige binnenstad bereik je in slechts enkele minuten lopen.
________________________________________
Samenvattend:
Een duurzaam gerenoveerde, luxe afgewerkte hoekwoning met drie woonlagen, een zonnige tuin, splinternieuwe badkamer én ideale ligging in een kindvriendelijke buurt. Deze woning is tot in de puntjes verzorgd en klaar voor de toekomst.
Mis deze unieke kans niet en plan snel een bezichtiging!

Lees verder

Kenmerken

  • Vraagprijs € 625.000,- k.k.
  • Aanvaarding In overleg
  • Type Eindwoning
  • Bouwjaar 2015
  • Woonoppervlakte ca. 143 m2
  • Externe bergruimte ca. 6 m2
  • Slaapkamers 4
  • Inhoud ca. 496 m3
  • Perceeloppervlakte ca. 122 m2
  • Ligging tuin Zuid
  • Energielabel A
  • Isolatie Volledig geisoleerd
  • Verwarming Cv ketel, vloerverwarming geheel
  • C.v.-ketel bouwjaar 2015
  • Voorzieningen Mechanische ventilatie, buitenzonwering, glasvezel kabel, natuurlijke ventilatie
  • Parkeerfaciliteiten Openbaar parkeren
  • Garage Geen garage
Meer kenmerken

In de buurt

David van Bourgondieweg 21 3961 VZ Wijk bij duurstede

      De buurt

      Burgerlijke staat in wijk
      Gehuwd
      Ongehuwd
      Gescheiden
      Verweduwd
      • Gehuwd (44.88%)
      • Ongehuwd (42.59%)
      • Gescheiden (8.21%)
      • Verweduwd (4.32%)
      Leeftijd in wijk
      0 - 15 jaar
      15 - 25 jaar
      25-45 jaar
      45 - 65 jaar
      65+ jaar
      • 0 - 15 jaar (16.62%)
      • 15 - 25 jaar (11.53%)
      • 25 - 45 jaar (21.52%)
      • 45 - 65 jaar (33.91%)
      • 65+ jaar (16.42%)
      Geslacht
      • Mannen (48.84%)
      • Vrouwen (51.16%)
      Gezinnen met kinderen
      0 - 15 jaar
      15 - 25 jaar
      25-45 jaar
      • Met kinderen (38.63%)
      • Zonder kinderen (34.24%)
      • Éénpersoons huishoudens (27.13%)
      Woningen koop / huur
      • Koop (67.00%)
      • Huur (33.00%)
      Aantal inwoners:

      17465

      Schaduwwijzer

      Media

      Plattegronden

      Ander aanbod