Boomstede 426, Maarssen | Beumer

Boomstede 426

3608 BG, Maarssen

Op zoek naar een Ruim bemeten - Uitstekend onderhouden - Modern afgewerkt - Energiezuinig - Gunstig gelegen - Hoekwoonhuis? Maak dan een bezichtigingsafspraak voor Boomstede 426 in Maarssen!! Deze ideale gezinswoning heeft een woonoppervlakte van 153m2 en

  • 153 m2
  • 203 m2
  • Label C
  • 6 kamer(s)

€ 525.000,- k.k. Bereken maandlasten

Bereken maandlasten
Heb je een hypotheek nodig?

Omschrijving

Op zoek naar een

Ruim bemeten - Uitstekend onderhouden - Modern afgewerkt - Energiezuinig - Gunstig gelegen - Hoekwoonhuis?

Maak dan een bezichtigingsafspraak voor Boomstede 426 in Maarssen!!

Deze ideale gezinswoning heeft een woonoppervlakte van 153m2 en beschikt over een leuke, groene voortuin, stenen schuur en sierlijk aangelegde, heerlijk vrij gelegen en zonnige achtertuin op het noordwesten.

De volgende kenmerken maken de woning daarnaast uniek:

- Bijzondere en unieke uitbouw met eetkeuken én bijkeuken;
- Royale living met schuifpui én separate eetkamer;
- Modern afgewerkte badkamer -én toiletruimte;
- Vijf ruime slaapkamers waarvan twee met dakkapel;

Op zoek naar een

Ruim bemeten - Uitstekend onderhouden - Modern afgewerkt - Energiezuinig - Gunstig gelegen - Hoekwoonhuis?

Maak dan een bezichtigingsafspraak voor Boomstede 426 in Maarssen!!

Deze ideale gezinswoning heeft een woonoppervlakte van 153m2 en beschikt over een leuke, groene voortuin, stenen schuur en sierlijk aangelegde, heerlijk vrij gelegen en zonnige achtertuin op het noordwesten.

De volgende kenmerken maken de woning daarnaast uniek:

- Bijzondere en unieke uitbouw met eetkeuken én bijkeuken;
- Royale living met schuifpui én separate eetkamer;
- Modern afgewerkte badkamer -én toiletruimte;
- Vijf ruime slaapkamers waarvan twee met dakkapel;
- Grotendeels voorzien van kunststof kozijnen;
- 4 Zonnepanelen en energielabel C;
- Heerlijk rustig gelegen aan het einde van een autoluw en doodlopend straatje.

De gunstige ligging nabij het wijkpark, gezondheidscentrum, de buurtsupermarkt, recreatiegebied De Haarrijnse Plassen, diverse sportfaciliteiten en uitvalswegen maakt het plaatje van deze comfortabele woning compleet.

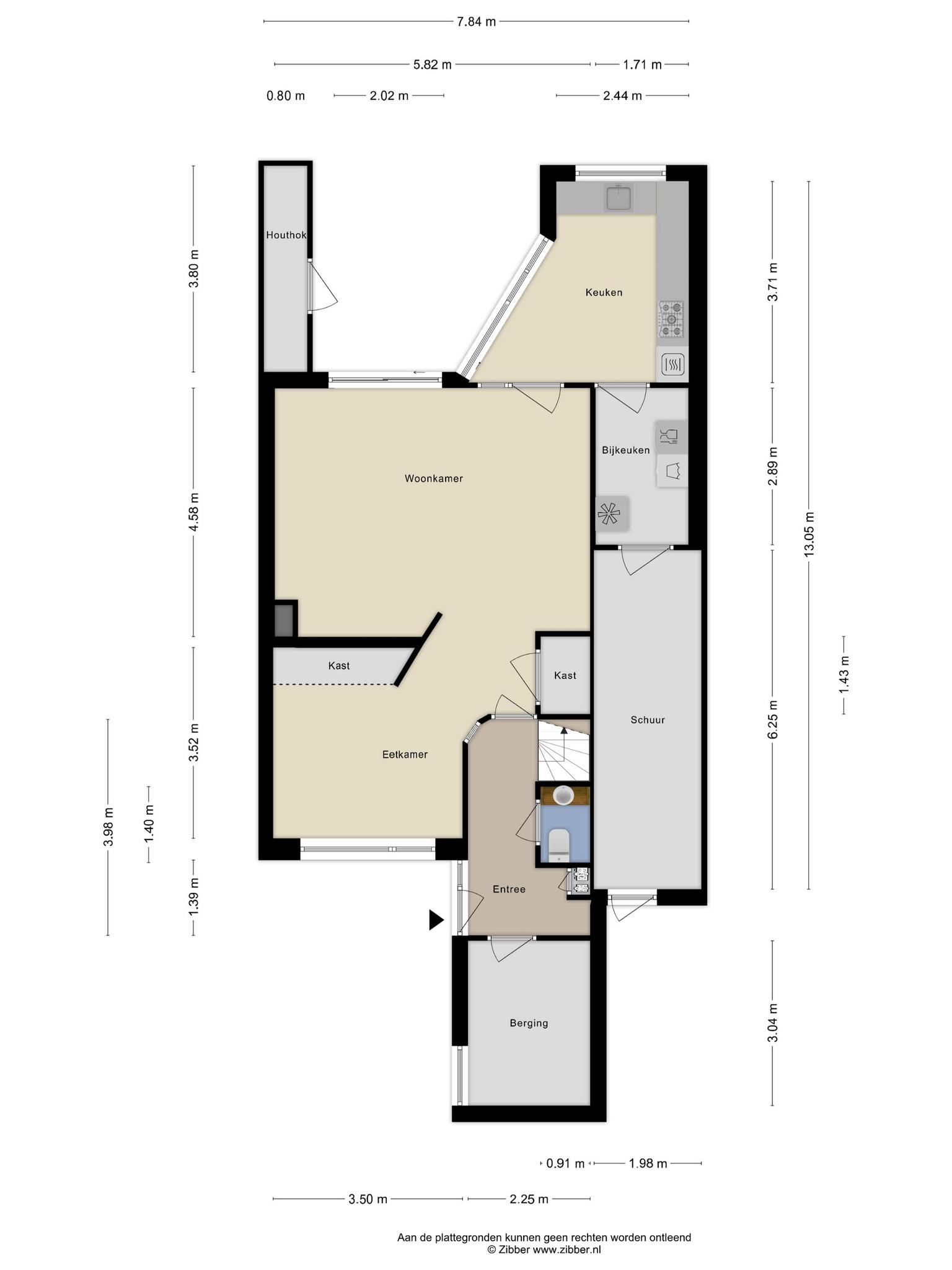
Indeling:

Begane grond:
Entree, hal met tegelvloer, gestucte wanden, gemoderniseerde toiletruimte met closet en fonteintje, garderobe, meterkast, toegang tot de aangebouwde berging, trapopgang en deur naar de living.

De living is- door het verplaatsen van de keuken naar de uitbouw- zeer ruim van afmeting en heerlijk licht door de grote raampartijen in de voor- en achtergevel. De living is thans in tweeën verdeeld; aan de voorzijde bevindt zich de eetkamer met handige boekenkast en aan de achterzijde tref je de fijne zitkamer aan, die door de brede schuifpui vrij uitzicht biedt op de fraai aangelegde tuin. De gehele ruimte is afgewerkt met een parketvloer en gestucte wanden.
Vanuit de zitkamer is de eetkeuken bereikbaar, die zich in de uitbouw aan de achterzijde bevindt. De keuken bestaat uit een groot keukenblok in hoekopstelling, die is uitgerust met een granieten aanrechtblad, koelkast, gaskookplaat, combimagnetron, RVS-afzuigkap, close-in boiler en bijzonder veel kast- en werkruimte.

Daarnaast beschikt de keuken over een schuifpui naar de tuin en is er directe toegang tot de naastgelegen bijkeuken. In de bijkeuken bevinden zich de (vaat)wasmachine-aansluiting en een buitendeur naar de schuur. Het groene (sedum) dak op de keuken en bijkeuken zorgt voor een unieke warmteregulering: isolering in de winter en koeling in de zomer.

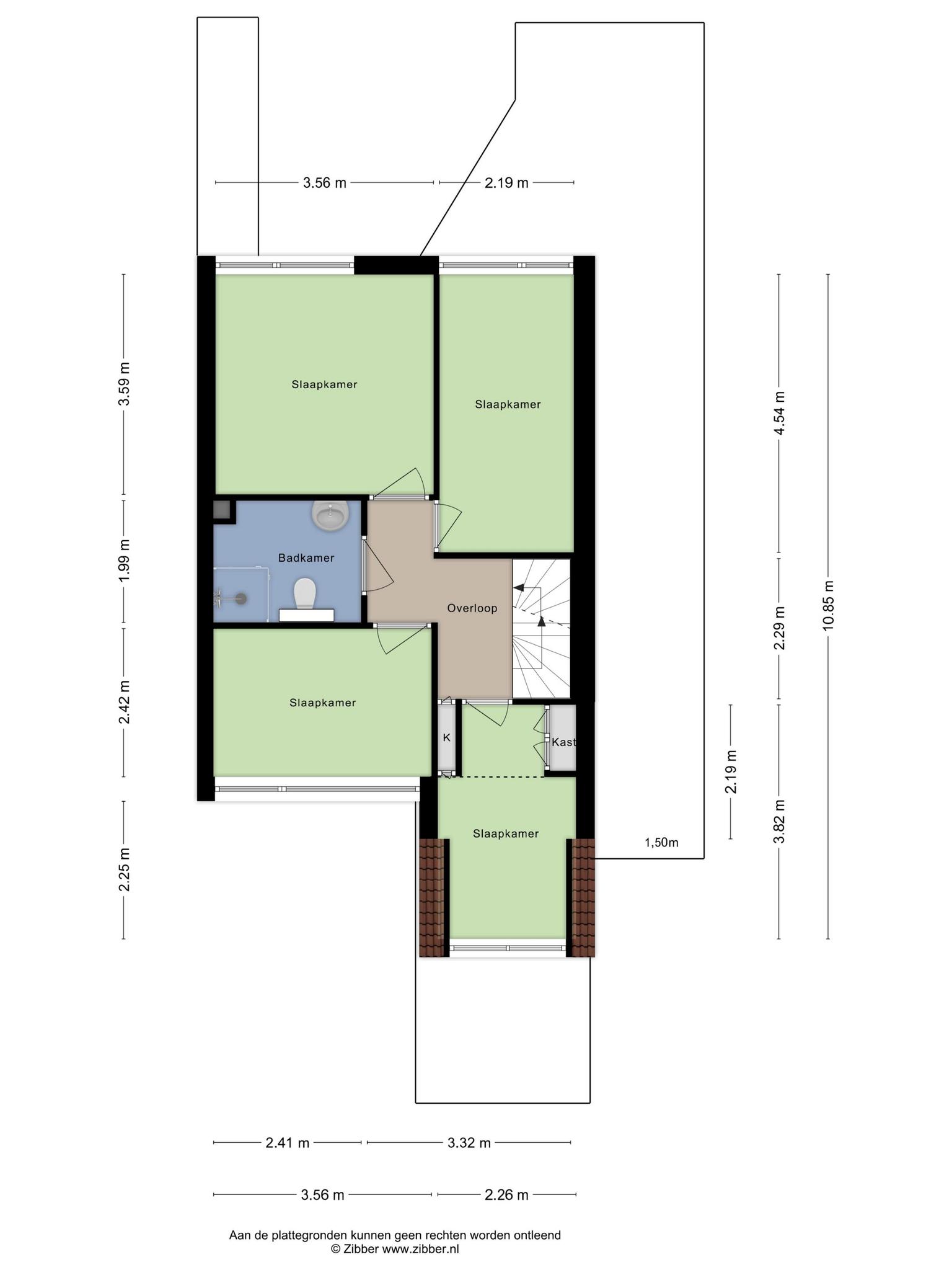
1e Verdieping:
Overloop met laminaatvloer, structuurverfwanden, bergkast en trapopgang.

De 1e verdieping beschikt over vier slaapkamers van goed formaat, die alle zijn voorzien van een laminaatvloer en kunststof kozijnen met draai-/kiepramen. De slaapkamer boven de hal en berging is voorzien van een dakkapel en leuke slaapvliering.
De modern uitgevoerde en geheel betegelde badkamer is voorzien van een grote inloopdouche met regen- en handdouche en thermostaatkraan, wastafel, hangend closet, designradiator en wandkast.

2e Verdieping:
Via een vaste trap is 2e verdieping bereikbaar, die is verdeeld in een riante en multifunctionele zolderkamer en een kleine, separate ruimte met CV-opstelling en mechanische ventilatie-unit

De zolderkamer is zeer ruim van afmeting, heerlijk licht door de grote raampartij met kunststof kozijnen en draai-/kiepramen aan de voorzijde en de dakkapel aan de achterzijde (beide voorzien van kunststof kozijnen met draai-/kiepramen), een laminaatvloer en bergkasten.

Tuin:
De voortuin ligt aan het einde van een autoluw en doodlopend straatje, is netjes bestraat en voorzien van vaste beplanting.

De royale achtertuin heeft een lengte van ruim 11 meter en een breedte van bijna 8,5 meter. Door de combinatie van diverse terrassen, borders met vast groen, sierlijke bomen, een kleine vijver en de geheel vrije ligging is hier een groene oase van rust gecreëerd. Tezamen met de gunstige ligging op het noordwesten (van halverwege de achtend tot einde avond de zon) zorgt dit voor heerlijke tuindagen!

Wij nodigen je graag uit voor een bezichtiging om dit fijne (t)huis met ons te beleven!

Lees verder

Bewoners aan het woord

  • Opmerking

    Toen we 23 jaar geleden binnenstapten in dit huis waren we meteen verkocht toen we in de keuken kwamen. Het licht, het zicht op de tuin, de grootte van het huis en de speelse inrichting maken dat we hier al die jaren hier met veel plezier wonen. De combinatie van het ruime en zonnige huis, de lekkere tuin en de ligging (tov winkels, Utrecht, uitvalswegen, mogelijkheden voor wandelen en fietsen en de tennisvereniging) zorgde ervoor dat we ook toen de kinderen uit huis gingen hier fijn bleven wonen.
    Maar.... we willen graag terug naar de kust en dat gaan we doen nu we een leuk kleiner huis met met een grotere tuin hebben gevonden. We gaan deze plek zeker missen en we hopen dat de nieuwe bewoners er met net zoveel plezier gaan wonen als wij.

Kenmerken

  • Vraagprijs € 525.000,- k.k.
  • Aanvaarding In overleg
  • Type Hoekwoning
  • Bouwjaar 1975
  • Woonoppervlakte ca. 153 m2
  • Oppervlakte gebouwgebonden ca. 12 m2
  • Overige inpandige ruimte ca. 3 m2
  • Slaapkamers 5
  • Inhoud ca. 553 m3
  • Perceeloppervlakte ca. 203 m2
  • Ligging tuin Noordwest
  • Energielabel C
  • Isolatie Dakisolatie, muurisolatie, vloerisolatie, dubbel glas
  • Verwarming Cv ketel
  • C.v.-ketel bouwjaar 2022
  • Voorzieningen Mechanische ventilatie, tv kabel, zonnepanelen
  • Parkeerfaciliteiten Openbaar parkeren
  • Garage Geen garage
Meer kenmerken

Kenmerken toegevoegd door verkoper, vrienden en familie

  • Kenmerk(en)
    Vrij gelegen tuin met verschillende zitmogelijkheden voor zon en schaduw
  • Kenmerk(en)
    Speelse en verrassende indeling van het huis
  • Kenmerk(en)
    Veel opbergruimte
  • Kenmerk(en)
    Fijne lichtinval
  • Kenmerk(en)
    Vrij uitzicht
  • Kenmerk(en)
    Dichtbij OV
  • Kenmerk(en)
    Voldoende parkeergelegenheid
  • Kenmerk(en)
    Energiezuinig
  • Kenmerk(en)
    Kindvriendelijke buurt
  • Kenmerk(en)
    Groene omgeving
  • Kenmerk(en)
    Gezellige buren
  • Kenmerk(en)
    Zonnige tuin

In de buurt

Boomstede 426 3608 BG Maarssen

      De buurt

      Leeftijd in wijk
      0 - 15 jaar
      15 - 25 jaar
      25-45 jaar
      45 - 65 jaar
      65+ jaar
      • 0 - 15 jaar (15.05%)
      • 15 - 25 jaar (11.18%)
      • 25 - 45 jaar (25.19%)
      • 45 - 65 jaar (31.59%)
      • 65+ jaar (16.99%)
      Geslacht
      • Mannen (49.48%)
      • Vrouwen (50.52%)
      Gezinnen met kinderen
      0 - 15 jaar
      15 - 25 jaar
      25-45 jaar
      • Met kinderen (38.19%)
      • Zonder kinderen (36.11%)
      • Éénpersoons huishoudens (25.69%)
      Aantal inwoners:

      3365

      Schaduwwijzer

      Media

      Plattegronden

      Ander aanbod