Bloemstede 488, Maarssen | Beumer

Bloemstede 488

3608 XM, Maarssen

Ruime tussenwoning met leef-woonkamer, moderne keuken, vier grote slaapkamers, luxe badkamer en groene achtertuin. Spreekt dit jou aan? Neem dan snel contact met ons op om een bezichtiging voor de Bloemstede 488 te Maarssen in te plannen. Deze ruime woning van

  • 129 m2
  • 140 m2
  • Label B
  • 5 kamer(s)

€ 475.000,- k.k. Bereken maandlasten

Bereken maandlasten
Heb je een hypotheek nodig?

Omschrijving

Ruime tussenwoning met leef-woonkamer, moderne keuken, vier grote slaapkamers, luxe badkamer en groene achtertuin.

Spreekt dit jou aan? Neem dan snel contact met ons op om een bezichtiging voor de Bloemstede 488 te Maarssen in te plannen.

Deze ruime woning van circa 129 m² ligt op een groot perceel van 140 m², heeft een ruime leef-woonkamer met schuifpui, nette keuken, luxe badkamer, vier royale slaapkamers en een groene achtertuin. Verder is de woning voorzien van dubbel glas, gedeeltelijk kunststof kozijnen en zonnepanelen.

De wijk is voorzien van diverse speeltuinen. Maarssenbroek staat bekend om zijn goede fietsverbinding en is…

Ruime tussenwoning met leef-woonkamer, moderne keuken, vier grote slaapkamers, luxe badkamer en groene achtertuin.

Spreekt dit jou aan? Neem dan snel contact met ons op om een bezichtiging voor de Bloemstede 488 te Maarssen in te plannen.

Deze ruime woning van circa 129 m² ligt op een groot perceel van 140 m², heeft een ruime leef-woonkamer met schuifpui, nette keuken, luxe badkamer, vier royale slaapkamers en een groene achtertuin. Verder is de woning voorzien van dubbel glas, gedeeltelijk kunststof kozijnen en zonnepanelen.

De wijk is voorzien van diverse speeltuinen. Maarssenbroek staat bekend om zijn goede fietsverbinding en is mede dankzij de centrale ligging uitstekend bereikbaar met zowel de auto als het openbaar vervoer. Binnen enkele minuten ben je met de auto op de A2 of A12, ga je liever met het openbaar vervoer dan kun je zowel de bus als de trein nemen. Maarssenbroek heeft alles om prettig te wonen: zo vind je er naast het winkelcentrum Bisonspoor onder meer diverse scholen voor basis- en voortgezet onderwijs, goede kinderdagopvang- en gezondheidszorgvoorzieningen, verschillende sportverenigingen, een modern zwembad, diverse parken en horeca.

Indeling

Begane grond:
Voortuin met toegang tot de voordeur en berging. Via de vernieuwde kunststof voordeur bereik je de hal met toegang tot de (vernieuwde) meterkast, toiletruimte en woonkamer. De luxe toiletruimte is vernieuwd in 2020 en voorzien van een hangend closet en fonteintje.

De sfeervolle leef-woonkamer bevindt zich aan de achterzijde van de woning. De woonkamer is voorzien van gestucte wanden, praktische trapkast en een kunststof schuifpui met toegang tot de tuin. De trap geeft toegang tot de eerste verdieping.

De open keuken is in 2019 vernieuwd en is aan de voorzijde van de woning gesitueerd. De keuken is voorzien van diverse (inbouw) apparatuur; afzuigkap, inductie kookplaat, combi-oven, koelkast, vriezer, vaatwasser en een werkblad van 4 meter. Er is voldoende ruimte voor een grote eettafel voor gezellige avonden met familie en vrienden.

De hal, woonkamer en keuken zijn voorzien van een laminaat vloer.

1e verdieping:
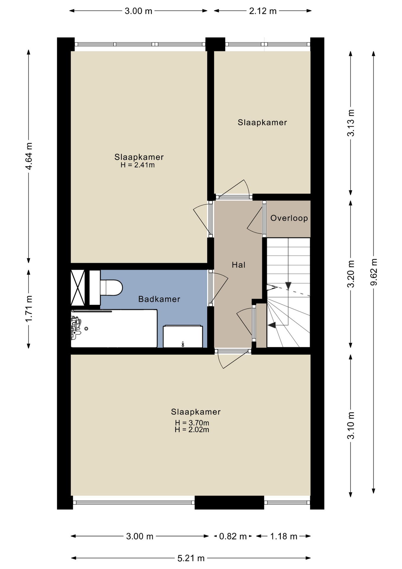
Overloop met toegang tot drie slaapkamers, badkamer en trapopgang naar de tweede verdieping. De eerste slaapkamer van circa 16 m² ligt aan de voorzijde van de woning over de volledige breedte. De tweede en derde slaapkamer liggen beiden aan de achterzijde van de woning, zijn circa 14 m² en 7 m² groot.

De luxe badkamer is in 2021 vernieuwd, volledig betegeld en voorzien van een bad met douche, hangend closet, wastafelmeubel, design radiator en een spiegelkast.

2e verdieping:
Via een vaste trap bereik je de zolder met de vierde slaapkamer van 20m² met ruime dakkapel. Handig is dat hier ook een aansluiting voor een wastafelmeubel aanwezig is. Tevens bevinden zich hier de witgoedaansluitingen, mechanische ventilatie en C.V. ketel (Remeha, 2022). De C.V. ketel en witgoedaansluitingen zijn netjes weggewerkt in een vaste kastenwand.

Tuin:
De speelse en groene achtertuin van circa 57 m² is gelegen op het noordwesten en sfeervol aangelegd met verschillende terrassen waar je heerlijk kunt zitten, een gazon, borders en een pergola. Een heerlijke plek om te genieten.

De zonnige voortuin is voorzien van sierbestrating en heeft een stenen berging.

Bijzonderheden:
- Bouwjaar 1974;
- Woonoppervlakte 129 m²;
- Inhoud 480 m³;
- Perceeloppervlakte 140 m²;
- Energielabel B;
- Lichte ruime woonkamer;
- 4 ruime slaapkamers;
- 9 zonnepanelen;
- C.V. ketel Remeha (2022);
- Meterkast is vernieuwd;
- Gelegen in een kinderrijke buurt, nabij het grote park.

Oplevering in overleg.

Lees verder

Kenmerken

  • Vraagprijs € 475.000,- k.k.
  • Aanvaarding In overleg
  • Type Tussenwoning
  • Bouwjaar 1974
  • Woonoppervlakte ca. 129 m2
  • Overige inpandige ruimte ca. 8 m2
  • Slaapkamers 4
  • Inhoud ca. 480 m3
  • Perceeloppervlakte ca. 140 m2
  • Ligging tuin Noordwest
  • Energielabel B
  • Isolatie Dubbel glas
  • Verwarming Cv ketel
  • C.v.-ketel bouwjaar 2022
  • Voorzieningen Mechanische ventilatie, tv kabel, glasvezel kabel, zonnepanelen
  • Parkeerfaciliteiten Openbaar parkeren
  • Garage Geen garage
Meer kenmerken

In de buurt

Bloemstede 488 3608 XM Maarssen

      De buurt

      Leeftijd in wijk
      0 - 15 jaar
      15 - 25 jaar
      25-45 jaar
      45 - 65 jaar
      65+ jaar
      • 0 - 15 jaar (15.05%)
      • 15 - 25 jaar (11.18%)
      • 25 - 45 jaar (25.19%)
      • 45 - 65 jaar (31.59%)
      • 65+ jaar (16.99%)
      Geslacht
      • Mannen (49.48%)
      • Vrouwen (50.52%)
      Gezinnen met kinderen
      0 - 15 jaar
      15 - 25 jaar
      25-45 jaar
      • Met kinderen (38.19%)
      • Zonder kinderen (36.11%)
      • Éénpersoons huishoudens (25.69%)
      Aantal inwoners:

      3365

      Schaduwwijzer

      Media

      Plattegronden

      Tweede verdieping

      Ander aanbod