2e Daalsedijk 183, Utrecht | Beumer

2e Daalsedijk 183

3551 EH, Utrecht

In de 2e Daalsebuurt ligt deze sfeervolle, instapklare, volledig verduurzaamde en gemoderniseerde eengezinswoning uit 1930. De woning biedt verrassend veel ruimte en heeft maar liefst 147 m² woonoppervlakte. En wat krijg je nou precies voor deze 147 m²? Een royale

  • 147 m2
  • 98 m2
  • Label A+
  • 6 kamer(s)

€ 760.000,- k.k. Bereken maandlasten

Bereken maandlasten
Heb je een hypotheek nodig?

Omschrijving

In de 2e Daalsebuurt ligt deze sfeervolle, instapklare, volledig verduurzaamde en gemoderniseerde eengezinswoning uit 1930. De woning biedt verrassend veel ruimte en heeft maar liefst 147 m² woonoppervlakte. En wat krijg je nou precies voor deze 147 m²? Een royale benedenverdieping met woonkamer en leefkeuken, vier ruime slaapkamers, één kleinere slaapkamer/inloopkast en maar liefst twee badkamers. Bij zo'n ruime woning hoort natuurlijk ook een heerlijke achtertuin, en die is er zeker. De achtertuin is circa 45 m² groot en gelegen op het oosten.

Bijzonderheden:
• Woonoppervlakte: 147 m²
• Energielabel A+
• Verwarming middels cv-ketel in…

In de 2e Daalsebuurt ligt deze sfeervolle, instapklare, volledig verduurzaamde en gemoderniseerde eengezinswoning uit 1930. De woning biedt verrassend veel ruimte en heeft maar liefst 147 m² woonoppervlakte. En wat krijg je nou precies voor deze 147 m²? Een royale benedenverdieping met woonkamer en leefkeuken, vier ruime slaapkamers, één kleinere slaapkamer/inloopkast en maar liefst twee badkamers. Bij zo'n ruime woning hoort natuurlijk ook een heerlijke achtertuin, en die is er zeker. De achtertuin is circa 45 m² groot en gelegen op het oosten.

Bijzonderheden:
• Woonoppervlakte: 147 m²
• Energielabel A+
• Verwarming middels cv-ketel in combinatie met een hybride warmtepomp
• Airconditioning aanwezig in de woonkamer en beide slaapkamers op de tweede verdieping
• 13 zonnepanelen, elk met een eigen micro-omvormer
• Afgesloten speeltuin exclusief voor bewoners aan de 2e Daalsedijk

WONEN
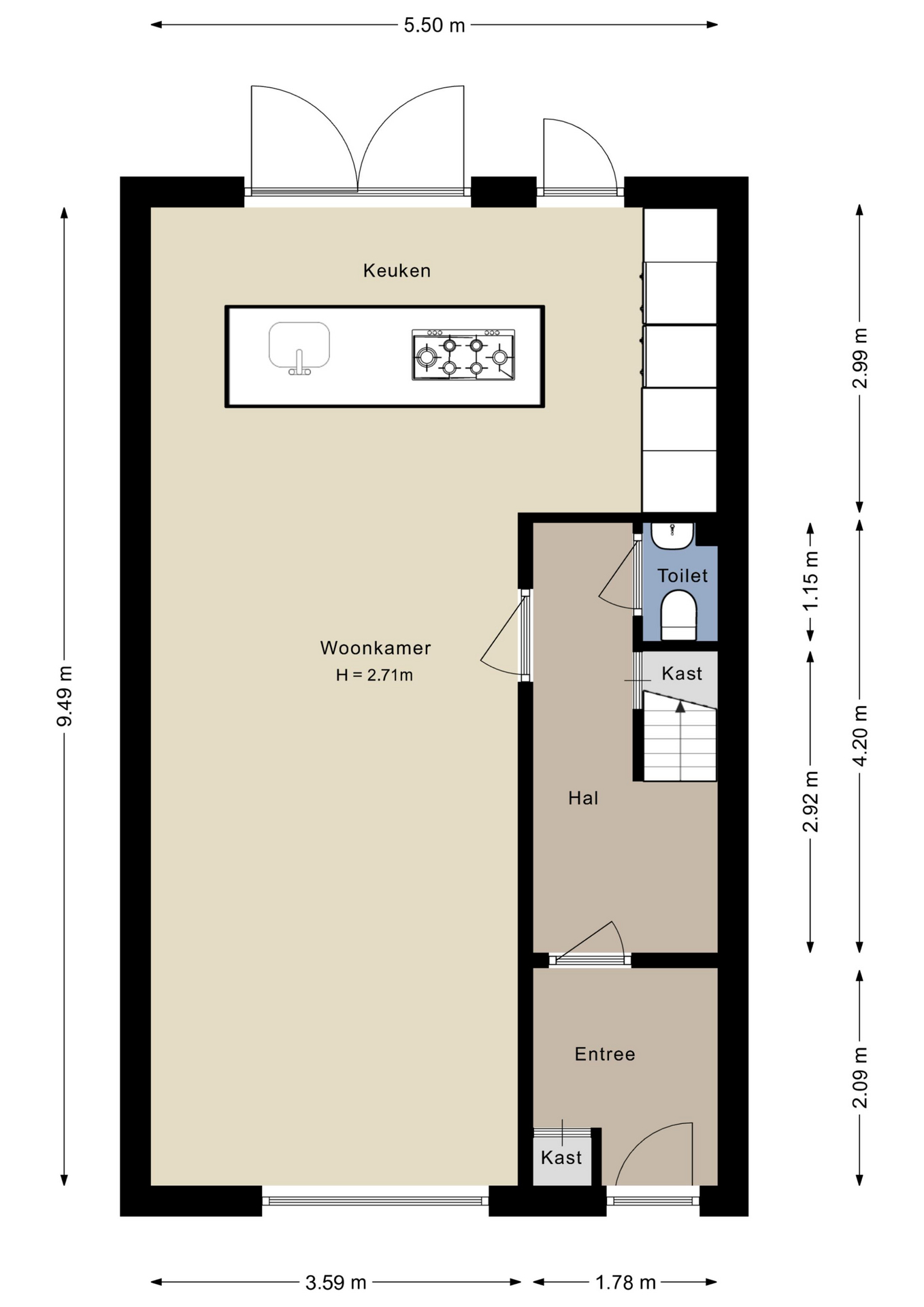
Je komt binnen in een ruime entree voordat je de hal binnenstapt. Vanuit de hal heb je toegang tot het toilet, een trapkast en de woonkamer. Bij binnenkomst in de woonkamer word je meteen verrast door de royale, lichte en open leefruimte. Aan de voorzijde bevindt zich een gezellige zithoek. Aan de achterzijde is een ruime en moderne leefkeuken aanwezig, met genoeg plek voor een grote eettafel voor minimaal zes personen. De luxe keuken (2017) beschikt over een kookeiland, vaste kastenwand en hoogwaardige inbouwapparatuur zoals een 5-pits gaskookplaat, Quooker, oven met stoomfunctie, combi-oven, koelkast, vriezer en vaatwasser.

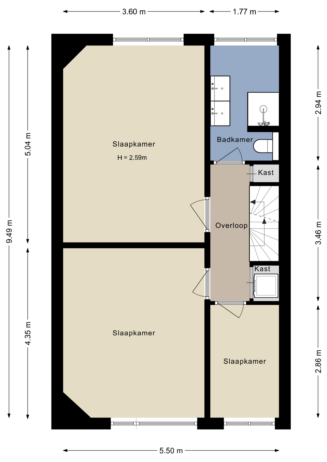
SLAPEN EN BADEN
Op de eerste verdieping bevinden zich twee ruime slaapkamers en één kleinere slaapkamer/inloopkast. Ook vind je hier een moderne badkamer (2017), voorzien van een douche, dubbel wastafelmeubel en toilet. Op de overloop bevinden zich nog twee handige bergkasten, waarvan één met aansluitingen voor de wasmachine en droger.

Dankzij de gerealiseerde opbouw beschikt de woning over nog twee ruime slaapkamers op de tweede verdieping. Eén daarvan is de master bedroom met prachtige badkamer en suite. Deze badkamer, gerealiseerd in 2020, beschikt over een inloopdouche, ligbad en dubbele wastafel. De andere slaapkamer op deze verdieping is ook royaal en kan indien gewenst gemakkelijk opgesplitst worden in twee kamers.

BUITEN
Een groot pluspunt van deze woning is de ruime achtertuin van circa 45 m², gelegen op het oosten. Hier kun je heerlijk genieten van het buitenleven: een kop koffie in de ochtendzon, een drankje na een lange dag werken of een gezellige BBQ met vrienden en familie. Met zo'n tuin ga je gegarandeerd een fijne zomer tegemoet.

LOCATIE
De woning ligt in een gezellige en levendige buurt. Op loopafstand vind je meerdere leuke, hippe restaurants voor lunch, diner of een kop koffie. Voor alle dagelijkse boodschappen kun je terecht bij de vele winkels aan de Amsterdamsestraatweg, die volop in ontwikkeling is. Zoek je groen in de buurt? Het Julianapark, met ruime speel- en dierenweide, ligt om de hoek. Bewoners van de 2e Daalsedijk hebben bovendien exclusief toegang tot een afgesloten speeltuin, die we tijdens bezichtigingen graag aan je laten zien.

Ook niet onbelangrijk: de binnenstad van Utrecht bereik je in slechts 5 minuten fietsen, en station Zuilen ligt op loopafstand. Werk je buiten Utrecht? Via de nabijgelegen uitvalswegen ben je snel op weg naar je bestemming.

Lees verder

Bewoners aan het woord

  • Opmerking

    Wij hebben hier 8 jaar met veel plezier gewoond met onze drie kinderen. Een fijn groot huis met veel lichtinval. Door de verduurzaming is het leefcomfort hoog en de energierekening laag. Rondom de leefkeuken hebben we veel gezellige avonden met familie en vrienden gehad. Vanaf het voorjaar kunnen de openslaande deuren open en eten we in de ruime stadstuin. En dat met leuke winkels, het Julianapark en horeca om de hoek. Kortom: we gaan deze fijne plek zeker missen!

Kenmerken

  • Vraagprijs € 760.000,- k.k.
  • Aanvaarding In overleg
  • Type Tussenwoning
  • Bouwjaar 1930
  • Woonoppervlakte ca. 147 m2
  • Slaapkamers 5
  • Inhoud ca. 495 m3
  • Perceeloppervlakte ca. 98 m2
  • Ligging tuin Oost
  • Energielabel A+
  • Isolatie Dakisolatie, muurisolatie, vloerisolatie, dubbel glas, hr glas
  • Verwarming Cv ketel, warmtepomp
  • C.v.-ketel bouwjaar 2018
  • Voorzieningen Mechanische ventilatie, tv kabel, airconditioning, dakraam, glasvezel kabel, zonnepanelen
  • Parkeerfaciliteiten Betaald parkeren, parkeervergunningen
  • Garage Geen garage
Meer kenmerken

Kenmerken toegevoegd door verkoper, vrienden en familie

  • Kenmerk(en)
    Gezellige buurt
  • Kenmerk(en)
    Dichtbij centrum en OV
  • Kenmerk(en)
    Energiezuinig

In de buurt

2e Daalsedijk 183 3551 EH Utrecht

      De buurt

      Leeftijd in wijk
      0 - 15 jaar
      15 - 25 jaar
      25-45 jaar
      45 - 65 jaar
      65+ jaar
      • 0 - 15 jaar (9.05%)
      • 15 - 25 jaar (22.59%)
      • 25 - 45 jaar (42.55%)
      • 45 - 65 jaar (15.11%)
      • 65+ jaar (10.69%)
      Geslacht
      • Mannen (45.23%)
      • Vrouwen (54.77%)
      Gezinnen met kinderen
      0 - 15 jaar
      15 - 25 jaar
      25-45 jaar
      • Met kinderen (14.59%)
      • Zonder kinderen (21.89%)
      • Éénpersoons huishoudens (63.52%)
      Aantal inwoners:

      7020

      Schaduwwijzer

      Media

      Plattegronden

      Ander aanbod