Willem Frederik Hermansstraat 520, Utrecht | Beumer

Willem Frederik Hermansstraat 520

3544KP, Utrecht

In bruisende Leidsche Rijn staat het appartementencomplex Amulet, een uniek industrieel ontworpen gebouw met een eigen karakter. Het is specifiek ontworpen met een gevel die omgevingsgeluid minimaliseert en is voorzien van grote ramen, wat zorgt voor een comfortabele

  • 102 m2
  • Label A

€ 1.840,- p/m Bereken maandlasten

Bereken maandlasten
Heb je een verzekering nodig?

Omschrijving

In bruisende Leidsche Rijn staat het appartementencomplex Amulet, een uniek industrieel ontworpen gebouw met een eigen karakter. Het is specifiek ontworpen met een gevel die omgevingsgeluid minimaliseert en is voorzien van grote ramen, wat zorgt voor een comfortabele woonervaring met veel natuurlijke lichtinval. De verwachting is dat de appartementen in september van dit jaar opgeleverd zullen worden. De appartementen in Amulet zijn ontworpen met een doordachte indeling en bevinden zich in een omgeving die zowel speels als divers is, wat bijdraagt aan een aangename woonbeleving. De woonkamers zijn ruim opgezet en voorzien van uitgebreide raampartijen en een open keuken. Verschillend…

In bruisende Leidsche Rijn staat het appartementencomplex Amulet, een uniek industrieel ontworpen gebouw met een eigen karakter. Het is specifiek ontworpen met een gevel die omgevingsgeluid minimaliseert en is voorzien van grote ramen, wat zorgt voor een comfortabele woonervaring met veel natuurlijke lichtinval. De verwachting is dat de appartementen in september van dit jaar opgeleverd zullen worden.

De appartementen in Amulet zijn ontworpen met een doordachte indeling en bevinden zich in een omgeving die zowel speels als divers is, wat bijdraagt aan een aangename woonbeleving. De woonkamers zijn ruim opgezet en voorzien van uitgebreide raampartijen en een open keuken. Verschillend per type heeft het appartement twee of drie slaapkamers.
De buitenruimtes variëren ook per appartementstype, waarbij sommige woningen beschikken over een balkon of een loggia. Bovendien heeft elk appartement in de vrije sector een eigen parkeerplek in de ondergelegen garage.

Bereikbaarheid

De bereikbaarheid van appartementencomplex Amulet is door de ligging optimaal. NS-station Terwijde ligt op circa vijf minuten loopafstand waardoor het openbaar vervoer altijd binnen handbereik is. Met de auto is de A2 snel en eenvoudig te bereiken via de Vleutensebaan. De supermarkt ligt op 5 minuten lopen en naar het centrum van Utrecht fiets je in 20 minuten. Op 5 minuten fietsen ligt het grotere Winkelcentrum Leidsche Rijn Centrum. Hier vind je onder andere kleding-, dieren- en speelgoedwinkels en zelfs een bioscoop. Appartementencomplex Amulet heeft de volmaakte ligging voor het dagelijkse leven.

Bijzonderheden

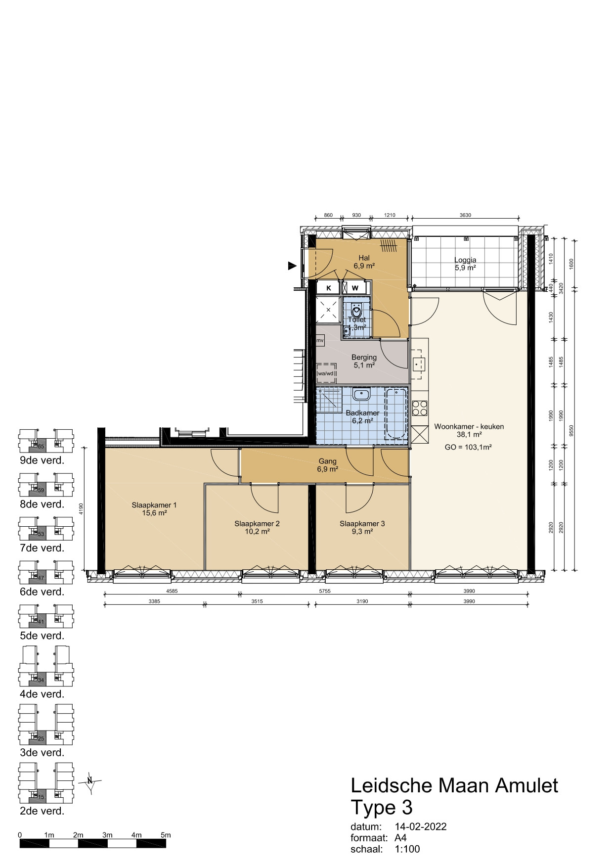
* Het appartement heeft een oppervlakte 102 m²;
* Gelegen op de 6e verdieping;
* Beschikt over 3 slaapkamers;
* Oplevering staat gepland voor september 2024;
* Beschikbaar voor onbepaalde tijd, minimaal 12 maanden;
* Woningdelers niet toegestaan;
* Servicekosten €35,- per maand;
* De huurprijs van de parkeerplaats bedraagt 100,- per maand;
* Het houden van huisdieren is niet toegestaan;
* Een bezichtiging is momenteel niet mogelijk omdat het complex nog in aanbouw is.

Interesse in de woning, schrijf je dan snel in via je www.hurenbij.beumer.nl en wie weet verwelkomen wij jou binnenkort in Amulet.

Lees verder

Kenmerken

  • Vraagprijs € 1.840,- p/m
  • Type Appartement
  • Woonoppervlakte ca. 102.00 m2
  • Slaapkamers 3
  • Inhoud ca. 265.00 m3
  • Energielabel A
Meer kenmerken

In de buurt

Willem Frederik Hermansstraat 520 • 3544KP • Utrecht

      Schaduwwijzer

      Media

      Plattegronden