Vlierhoeve 65, Nieuwegein | Beumer

Vlierhoeve 65

3438 MV, Nieuwegein

Strakke lijnen, een overvloed aan ruimte en een naadloze verbinding met buitenruimtes kenmerken dit moderne woonhuis dat bij uitstek geschikt is gezinnen en diegenen die op zoek zijn naar een upgrade in woonoppervlak. In een buurt die balans biedt tussen levendigheid en rust,

  • 160 m2
  • 170 m2
  • Label A++
  • 5 kamer(s)

€ 735.000,- k.k. Bereken maandlasten

Bereken maandlasten
Heb je een hypotheek nodig?

Omschrijving

Strakke lijnen, een overvloed aan ruimte en een naadloze verbinding met buitenruimtes kenmerken dit moderne woonhuis dat bij uitstek geschikt is gezinnen en diegenen die op zoek zijn naar een upgrade in woonoppervlak. In een buurt die balans biedt tussen levendigheid en rust, staat deze woning garant voor een praktisch en comfortabel leven. Met duurzaamheid hoog in het vaandel, biedt dit huis uit 2017 een energiezuinig thuis met tal van moderne voorzieningen.

Hoogtepunten:
- Aan het water: rustgevende achtertuin met overkapping
- Instapklare luxe: zorgeloos verhuizen naar een stijlvol thuis
- Efficiënte bereikbaarheid: Utrecht en Nieuwegein binnen…

Strakke lijnen, een overvloed aan ruimte en een naadloze verbinding met buitenruimtes kenmerken dit moderne woonhuis dat bij uitstek geschikt is gezinnen en diegenen die op zoek zijn naar een upgrade in woonoppervlak. In een buurt die balans biedt tussen levendigheid en rust, staat deze woning garant voor een praktisch en comfortabel leven. Met duurzaamheid hoog in het vaandel, biedt dit huis uit 2017 een energiezuinig thuis met tal van moderne voorzieningen.

Hoogtepunten:
- Aan het water: rustgevende achtertuin met overkapping
- Instapklare luxe: zorgeloos verhuizen naar een stijlvol thuis
- Efficiënte bereikbaarheid: Utrecht en Nieuwegein binnen handbereik
- Energielabel A++: duurzaam en comfortabel wonen.
- Praktische parkeeroplossingen: eigen oprit en vrij parkeren in de buurt

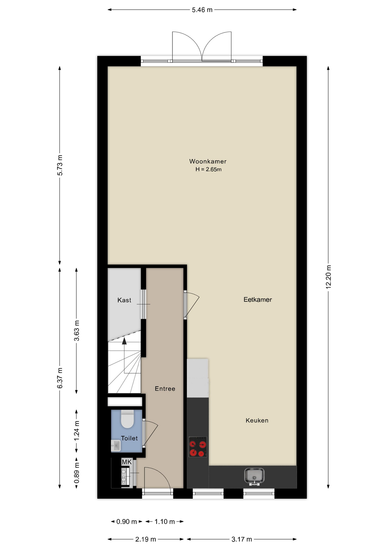
Binnen is het niet anders dan buiten - een plek waar elk detail telt. Betreed de hal en vindt direct toegang tot de stijlvol uitgeruste woonkamer, vervaardigd met een duurzame gietvloer en voorzien van vloerverwarming. De luxe open keuken vormt het hart van het huis, waar je uitkijkt over de verleidelijke achtertuin met zijn overkapping en waterzicht.

Op de begane grond voel je de harmonie tussen binnen en buiten naadloos samenvloeien. De ruim bemeten woonkamer kijkt uit op de tuin, die oostelijk is gesitueerd, zodat je vanaf het ochtendgloren heerlijk kunt ontspannen. Je vindt hier ook een trapkast voor praktische opbergruimte en een toegankelijke trapopgang naar de volgende verdieping.

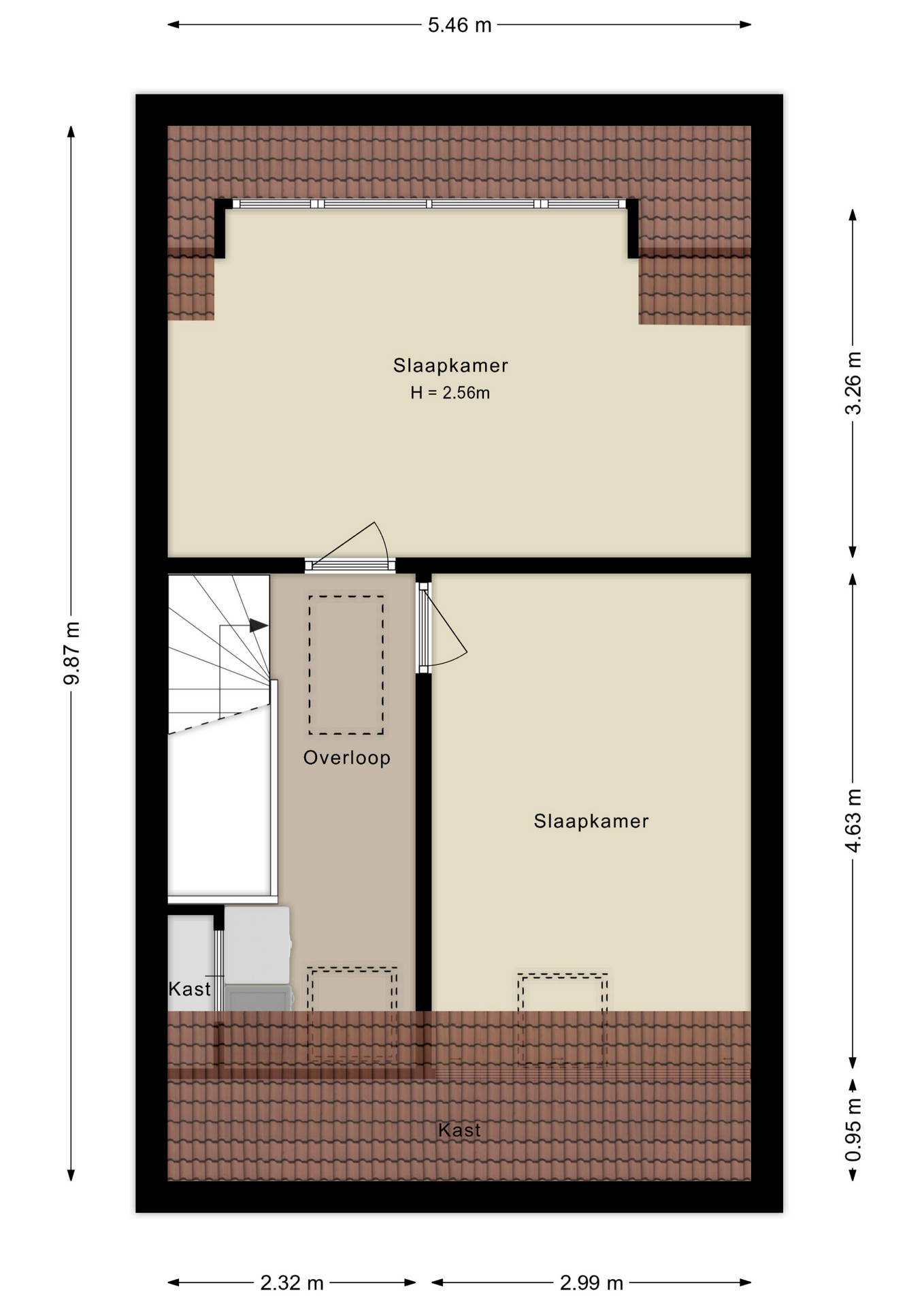
De eerste verdieping herbergt een innovatieve indeling met twee grote slaapkamers - een waarvan momenteel is voorzien van een inloopkast, die eenvoudig kan worden omgetoverd in een derde slaapkamer. De badkamer straalt een en al moderniteit uit, compleet met een hedendaagse inloopdouche, toilet en wastafel.

Maak je weg naar de tweede verdieping en wordt verrast door nog twee ruimtelijke slaapkamers en toegang tot een praktische bergvliering.

Met in totaal vier slaapkamers en een woonoppervlakte van 160 m², gestut op een perceel van 170 m², staat dit huis niet alleen garant voor ruimte, maar ook voor een onderhoudsvriendelijke omgeving waarin je zonder zorgen kunt leven.

De buurt ademt een aangename mix van ruimte, groen en speelgelegenheid voor kinderen. Met scholen, winkelcentra en gezellige horecagelegenheden op loopafstand, vormt het een levendige, maar rustige woonomgeving. Goede openbaar vervoersverbindingen en snelle toegang tot uitvalswegen benadrukken de strategische ligging van dit familiehuis. Utrecht stad en Nieuwegein stadscentrum zijn snel te bereiken.

Bijzonderheden en extra's:
- Bouwjaar 2017: moderne architectuur met aandacht voor detail
- Balkon/terras/tuin: het beste van buitenleven aan je eigen woonkamer
- Luxe keuken en moderne sanitair: esthetiek en functionaliteit hand in hand
- Slimme opbergruimtes: van trapkast tot bergvliering
- Vierkante meters woonkamer: 43 m² aan stijlvolle leefruimte

Vind je het hoog tijd voor een nieuwe start in een huis dat niet alleen je wensenlijst compleet afvinkt, maar ook je hart sneller laat kloppen? "Neem je NVM makelaar mee naar de bezichtiging." Zeker weten dat je deze woning kunt betalen? Beumer Hypotheken kijkt graag met je mee!

Lees verder

Kenmerken

  • Vraagprijs € 735.000,- k.k.
  • Aanvaarding In overleg
  • Type Tussenwoning
  • Bouwjaar 2017
  • Woonoppervlakte ca. 160 m2
  • Overige inpandige ruimte ca. 1 m2
  • Externe bergruimte ca. 3 m2
  • Slaapkamers 4
  • Inhoud ca. 572 m3
  • Perceeloppervlakte ca. 170 m2
  • Ligging tuin Oost
  • Energielabel A++
  • Isolatie Dakisolatie, muurisolatie, vloerisolatie, dubbel glas, volledig geisoleerd, hr glas
  • Verwarming Stadsverwarming, vloerverwarming gedeeltelijk
  • Voorzieningen Mechanische ventilatie, rolluiken, dakraam, zonnepanelen
  • Parkeerfaciliteiten Openbaar parkeren, op eigen terrein
  • Garage Geen garage
Meer kenmerken

In de buurt

Vlierhoeve 65 • 3438 MV • Nieuwegein

      De buurt

      Burgerlijke staat in wijk
      Gehuwd
      Ongehuwd
      Gescheiden
      Verweduwd
      • Gehuwd (40.32%)
      • Ongehuwd (52.17%)
      • Gescheiden (5.53%)
      • Verweduwd (1.98%)
      Leeftijd in wijk
      0 - 15 jaar
      15 - 25 jaar
      25-45 jaar
      45 - 65 jaar
      65+ jaar
      • 0 - 15 jaar (20.47%)
      • 15 - 25 jaar (8.66%)
      • 25 - 45 jaar (38.19%)
      • 45 - 65 jaar (24.80%)
      • 65+ jaar (7.87%)
      Geslacht
      • Mannen (53.60%)
      • Vrouwen (46.40%)
      Gezinnen met kinderen
      0 - 15 jaar
      15 - 25 jaar
      25-45 jaar
      • Met kinderen (36.04%)
      • Zonder kinderen (28.83%)
      • Éénpersoons huishoudens (35.14%)
      Woningen koop / huur
      • Koop (94.95%)
      • Huur (5.05%)
      Aantal inwoners:

      1250

      Schaduwwijzer

      Media

      Plattegronden

      Ander aanbod